ICS 53.020.20 ,…
中华人民共和国国家标准
GB/T 24818.2—2010/ISO 11660-2:1994
起重机通道及安全防护设施 第2部分:流动式起重机
Cranes—Access, guards and restrains—Part 2: Mobile cranes
(ISO 11660-2:1994,1DT)
2011-01-10 发布
2011-06-01 实施
中
中
华人民共和国国家质量监督检验检疫总局雑布 国国家标准化管理委员会发布
GB/T 24818. 2—2010/ISO 11660-2: 1994
前 言
GB/T 24818《起重机 通道及安全防护设施》分为4个部分:
--第1部分:总则;
--第2部分:流动式起重机;
--第3部分:塔式起重机;
—-第5部分:桥式和门式起重机。
本部分为GB/T 24818的第2部分。
本部分等同采用ISC)II66O∙2J994《起重机 通道及安全防护设施 第2部分:流动式起重机》(英 文版).
本部分等同翻译ISO 11660-2:1994.
为便于使用,本部分做了下列编辑性修改:
a) "ISO 11660的本部分"一词改为"GB/T 24818的本部分”:
b)删除 ISOII660-2:1994 的前言;
C)用小数点''∙''代替作为小数点的逗号",";
d)对于ISO 11660-2 : 1994引用的及参考文献中的国际标准,用已被采用为我国的标准代替对应 的国际标准J
e)规范性引用文件中ISo 4306-2;《起重机 术语 第2部分:流动式起重机》和ISon660-1 : 《起重机 通道及安全防护设施 第1部分:总则》现在均有了新的版本,它们分别为1994版 和2008版,因此在转化ISO 11660-2时均引用其最新的版本;
f)根据GB/T 1.1要求,将图和表中的字母用脚标以示区分其不同的含义;
g)将4.12中护栏高度调整为1 IOo mm,与正文中的表3一致;
h)將"附录B(资料性附录)参考资料"直接写为"参考文献”。
本部分的附录A为资料性附录.
本部分由中国机械工业联合会提出。
本部分由全国起重机械标准化技术委员会(SAC/TC 227)归口。
本部分起草单位:徐工集团徐州重型机械有限公司、长沙中联重工科技发展股份有限公司。
本部分主要起草人:徐周、张正德、杨武.
I
标准分享网 WW. bzfxw. com免费下载
GB/T 24818.2—2010/ISO 11660-2: 1994
起重机通道及安全防护设施 第2部分:流动式起重机
1范围
GB/T 24818的本部分规定了流动式起重机上的阶梯、楼梯、梯子、走道、平台、扶手、把手、护栏、进 出司机室的出入口、检查或维护用平台的技术要求.同时还提出对安全防护设施的要求。
本部分还与GB/T 17299和GB/T 17300保持了协调性。装有塔身的流动式起重机还应考虑与 GB/T 24818.3的协调性。
本部分适用于GB/T 6974. 2定义的流动式起重机。
2规范性引用文件
下列文件中的条款通过GB/T24818的本部分的引用而成为本部分的条款。凡是注日期的引用文件, 其随后所有的修改单(不包括勘误的内容)或修订版均不适用于本部分,然而,鼓励根据本部分达成协议的 各方研究是否可使用这些文件的最新版本。凡是不注日期的引用文件,其最新版本适用于本部分。
GB/T 6974. 2 起重机 术语 第 2 部分:流动式起重机(GB/T 6974. 2—2010,ISO 4306-2 : 1994, IDT).
GB/T 24818. 1 起重机通道及安全防护设施第1部分:总则(GB/’Γ 24818. 1—2009, ISO 11660-1:2008, IDT)
3总则
本部分给出了单人不携带物品使用流动式起重机通道装置(即无其他工作人员在该通道上时)的要 求,并以GB/T 8420中第95百分位〜第5百分位的人体尺寸为依据。
对于某些类型的流动式起重机,本部分提出的要求可以做一些修改或变动。
4术语和定义
下列术语和定义适用于本部分。
4. 1
通道装置 access system
包括进出司机室的出入口、检查或维护所用平台及其到地面之间的通道。
基本通道供日常使用,备用通道供紧急情况下基本通道不能用时使用。
4.2
臂架走道jib walkway
主要用于长臂架(如拉铲起重机)的走道。其臂架水平倾斜度为20。以下.
4.3
臂架高架平台 jib skywalk platform
基础臂节上的维护平台.
4.4
可控制的下降装置 controlled descent device
作为备用通道的一部分,可以在无动力的情况下以固定速度自动运下人员的装置。
1
GB/T 24818. 2—2010/ISO 11660-2:1994
4.5
出入口 enclosure opening
通道装置用,足以让一人通行的开口。
4.5. 1
基本出入口 primary opening
正常情况下的通道开口。
4・5.2
备用出入口 alternative opening
出现紧急情况,基本出入口不能使用时的开口。
4.5. 3
检修出入口 service opening
维护、检修或检查时使用的开口。
4.6
踢脚板 foot barrier
防止脚从平台或走道边缘滑落的装置。
4.7
护栏 guardrail
沿走道或平台开放边设置的防止人员跌落的装置。
4.8
扶手和把手 handrail and handhold
通道装置中可用手持续移动抓握和用单手抓握,支撑身体并保持平衡的构件。
4.9
梯子Iadder
通道装置或通道装置的一部分,与水平面的夹角大于50。但不大于90。,由能搁置单脚或双脚的若 干等距踏板(杆)组成。
4.9. 1
竖梯 vertical ladder
与水平面的夹角大于75°的梯子。
4.9.2
斜梯 inclined ladder
与水平面的夹角大于50。但不大于75。的梯子。
4.9.3
盲 Fu∏g Iadder
由侧杆和踏杆组成、能搁置双脚的梯子,推荐用于水平面的夹角超过75°的通道处。
4. 9.4
阶梯 stepped ladder
由侧杆和踏板组成,能搁置双脚的梯子,推荐用于水平面的夹角大于65°的通道处。
4. 10
限制跌落装置 ladder fall-limiting device
最大限度减小或限制人员从梯子上跌落的各种装置。
4.11
操作平台 operator's platform
操作人员控制流动式起重机行走和各种动作的区域。
标准分享网 WW. bzfxw. com免费下载
4∙ 12
GB/T 24818. 2—2010/ISO 11660-2:1994
过道 passageway
双侧带护栏的走道,在人员直立通过时护栏的垂直高度至少为1 IoOmm,爬行时其高度至少为 300 mmo
4. 13
平台 platform
支撑从事操作、维护、检查或修理工作人员的水平面。
4. 14
坡道ramp
与水平面的夹角不大于20。、无踏板(杆)的通道装置或通道装置的一部分,但带有防滑条或作了其 他增加摩擦力的表面处理。
4. 15
防滑条cleat
增加走道或坡道表面摩擦力的物件。
4. 16
休息平台 rest platform
驻脚台landing
与梯子相连、供人员休息或驻足的平台。
4. 17
踏板(杆)间距 riser height
两个连续踏板或踏杆之间的高度,从一个踏板或踏杆的踏面到下一个踏面的垂直距离。
4. 18
踏杆rung
搁置单脚或双脚的杆件,通常安装在竖梯上或供单脚蹬踏用。
4. 19
楼梯 stairway
与水平面的夹角大于33. 7",但不超过67。的通道装置或通道装置的一部分,由4级或4级以上踏板 组成,
4.20
踏板step
搁置单脚或双脚的构件,作为梯子或楼梯的一部分,或独立安装(设置)。
4.21
级距 Stride distance
从一个踏板前缘到相邻踏板前缘的水平距离。
4.22
三点支撑 three point support
通道装置的一种结构形式,供单人同时使用双手和单脚或双脚和单手在流动式起重机上上下或移动。
4. 23
踏板深度 tread depth
踏板前、后缘的水平距离。
4. 24
走道 walkway
通道装置的一部分,在流动式起重机上各部位之间,可供人员直立行走或爬行。
3
GB/T 24818. 2—2010/1So 11660-2 = 1994
4.25
动力或手动通道装置 powered or manually actuated access device
通过动力和手动操纵的全部或部分基本通道或备用通道。
4.26
防滑表面 slip-resistant surface
具有改善脚底摩擦力性能的通道装置的表面。
防滑表面的示例见附录A。
5 一般要求
5.1通道装置的设计应考虑:
a)操作者不慎被流动式起重机上的凸出物绊住的可能性,如操纵杆、踏板(杆)或手柄挂住身体某 个部位或磨坏衣服;
b)凸出物可能绊倒操作者或加重跌落的伤害;
c)设置表面光滑的扶手和把手;
d)操作者遇到潜在危险的可能性,如极大的冷热温差、带电、运动部件和尖角的伤害;
e)通道装置应易于使用且不需培训;
D 高于地面1 m的通道装置,使用者攀上攀下正常更换部件,应使用三点支撑。
5.2基本通道可以是轻便型的,以便在流动式起重机上存放。但其使用和存放位置应能确保安全 可靠.
5.3应设置备用出口,如果不在视线之内应明示。
6性能要求
6.1通道装置表面应能承受人员站立或行走.垂直于表面施加以下的力应无明显永久变形:
a) 2 00ON的力通过直径为125 mm的圆盘作用于任何位置;和
b) 4 500 N∕m2均布载荷。
不必同时施加以上两种力.
6. 2走道及平台表面的孔隙不允许直径等于和大于40 mm的球体通过;如果人员可在下面行走、站立 或工作,则不允许直径等于和大于20 mm的球体通过。必要时,人员所在处的上下方应采用无孔洞表 面,防止物料的通过,以免对人体造成伤害。在臂架走道和其他类似区域仅用于检查和维护时,人员站 立或驻足的表面孔隙可以增至上述规定值的2倍。
6.3扶手、把手和护栏上的任意点任意方向应能承受IOOON的力而无永久变形。活动式装置在试验 载荷作用下相对正常位置偏离不应超过80 mm。
6.4仅用于支撑检查人员的机器外罩顶部,如司机空和机棚盖,可以只遵守6. IaM
6.5所有通道装置如走道、阶梯和爬行道的表面(包括通道使用的任何装置或结构件)都应防滑。如用 三点支撑,流动式起重机的履带可用作通道踏板。
7台阶
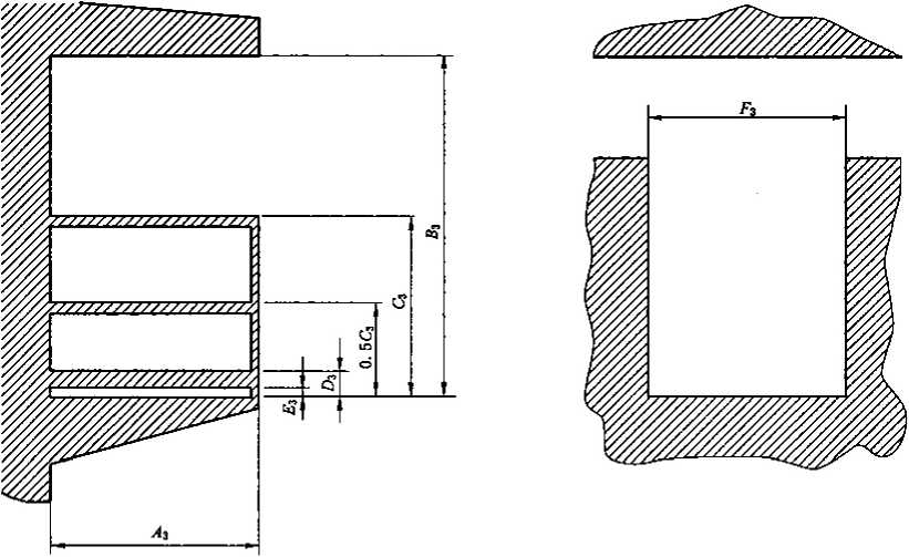
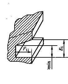
7. 1台阶的尺寸应符合图1和表1的规定。如有可能,踏板(杆)应尽可能加宽以方便容纳双脚。
7. 2人体需从梯子的顶部或底部侧移到另一承载面时,踏板(杆)距最近承载面边缘的距离应在最大半 径jR = 300 mm的球体以内(见图1)。
7.3应在相应位置安装扶手和把手。
7.4在脚可能伸出踏板(杆)与运动部件接触的地方,踏板(杆)和运动部件之间应安装防护装置。
7.5应在踏板(杆)的边缘设置屏障,以防脚在上面发生侧滑,
4
标准分享网WWW. bzfxw. com免费下载
GB/T 24818. 2—2010/ISO 11660-2 = 1994
7.6踏面不应作把手使用.
7.7踏板(杆)的设计应考虑最大限度地减少鞋底沾带的碎屑、泥块聚集在踏步上。履带作为踏板使用 时则不必满足这个要求。
7.8踏板(杆)设计应注重实用性,使用者在下行时应有自然落脚处,或在使用者下行时踏板(杆)应清 晰可见.
注:踏板(杆)的自然落脚并不能保证使用者的安全可靠,只有熟悉通道装置才能保证可靠性.
7.9不推荐安装活动式台阶。如需使用,当在从地面算起第一个非摆动踏板(杆)的前外缘集中作用一 个IOoON的水平力时,踏板(杆)的任意平面的移动距离不应超过80 mm.距地面最近的踏板(杆)可 以是摆动的。
|
i≡ ⅛ |
单位为毫米 ⅛ 个U |
图1阶梯、梯子和楼梯
5
GB/T 24818. 2—2010/ISO 11660-2:1994
表1阶梯、梯子和楼梯的尺寸
|
符号 |
说 明 |
尺寸/mm | |||
|
最小 |
最大 | ||||
|
Al |
地面或平台上第一级踏板(杆)高度 ’_________ |
— |
600 | ||
|
Bi |
踏板(杆)间距 |
直梯__________________ |
230 |
400 | |
|
阶梯、楼梯等 |
180 |
250 | |||
|
C1 |
踏板(杆)宽度 |
梯子 |
单脚 |
160 |
— |
|
双脚 |
320 |
— | |||
|
楼梯__________________ |
320 |
—— | |||
|
D1 |
踏杆一直径或宽度_______________________ |
19 |
40 | ||
|
E1 |
内踏板净空高度 |
150 |
— | ||
|
F11 |
踏板深度(阶梯、楼梯等) ~~ |
240* |
400 | ||
|
F12 |
脚趾间隙(直梯后部空间)_____________________ |
150 |
一 | ||
|
G |
级距b |
130 |
270 | ||
|
H |
梯子的顶部踏杆面到平台的跑离________________ |
— |
150 | ||
|
ɪɪ |
走道踏板上方的净空高度___________________ |
2 000 |
— | ||
|
J1 |
踏板布置(楼梯)(2B1+G) |
630 | |||
|
R |
踏板(杆)距最近承载面边缘的距离 |
— |
300 | ||
|
2见9. 3,具有脚趾间隙时,可减小到130mm。 bj1项给出的等式总是适用的.__________________________________________ | |||||
8梯子
8. 1梯子踏板(杆)应满足第7章的规定。
8.2距地面5 m以上直梯应安装限制跌落装置,被动型的比较可取。这种装置不应要求使用者在上 下梯子时频繁地操作。
8-2.1如果使用限制跌落装置,则梯子护圈或同类装置的底部距地面或平台的高度最高为3 m。
8.2.2直梯护圈内表面距踏杆不应超过700 mm,且其内部宽度不应超过700 mmo
8.3在垂直攀登时,至少每隔Iom应设置一个休息平台。
8.4垂直高度大于3 m的盘旋式或螺旋式梯子,应在开放的一侧设置护栏。
9楼梯
3.1楼梯应至少装有单侧把手。
9. 2垂直高度大于3 m的楼梯应在开放的一侧或两侧设置护栏。
9.3楼梯上的踏板深度应等于或大于踏板间距。连续的踏板间距和连续的踏板深度应为相同尺寸。
9.4楼梯踏板应符合第7章的规定.
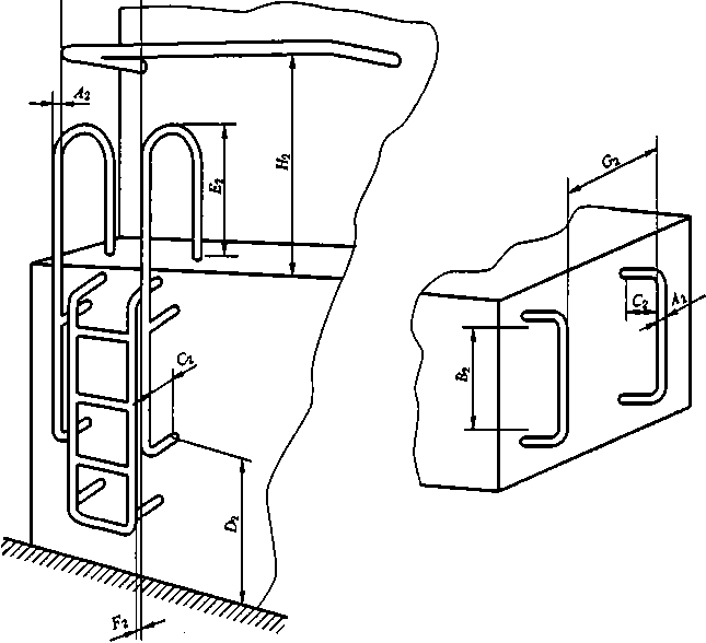
10扶手和把手
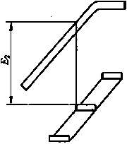
10. 1扶手和把手的尺寸应符合图2和表2的规定.
10. 2扶手和把手应设在通道装置适当位置,为走动的人员保持平衡提供连续的支撑.
10.3理想的扶手和把手的截面是圆形。带圆角的正方形或长方形截面也是允许的。
10.4任何扶手或把手的支撑段以外的手握表面的末端应有形状变化,以防止手从端部滑脱。
10.5梯子上的扶手首选把手,把手的间距应与踏板(杆)的间距相对应.
6
标准分享网 www.bzfxw.com 免费下载
GB/T 24818.2—2010/ISO 11660-2: 1994
注:扶手延伸可以是梯子的一部分,或是从梯子处分离的独立部分.
图2扶手和把手
表2扶手和把手的尺寸
|
符号 |
说 明 |
尺寸/mm | ||
|
最小 |
最大 | |||
|
Ag |
宽度(直径或对边) |
梯子、踏板或走道的扶手__________ |
16* |
38 |
|
楼梯和坡道的扶手 |
16 |
80 | ||
|
把手支腿的两个倒圆之间的长度 把手到安装面的距离 - |
150 |
— | ||
|
C2 |
75 |
— | ||
|
扶手或把手到站立面的品煮 ...... ~ |
— |
1 600 | ||
|
踏板、平台、楼梯或坡道上扶手的垂直跑离 |
850 |
960 | ||
|
扶手或把手到踏板边缘的距离 |
75 |
200 | ||
|
G2 |
平行扶手间的宽度 |
梯子_________________ |
— |
600b |
|
楼梯和坡道_______________ |
460 |
— | ||
|
ft |
走道、过道、踏板或楼梯踏板之上的扶手高度___________ |
850 |
1 400 | |
如果是垂直方向为19 mm.
b如果考虑臀部的间隙则为600 mm.
11平台、过道、走道、护栏和踢脚板
11.1平台、过道、走道、护栏和踢脚板的尺寸应符合图3和表3的规定。横杆应置于护栏的顶杆与走 道或平台之间的中部。
11.2如果平台表面开放一侧的垂直距离大于3 m,应设置护栏。如果与行驶要求产生了抵触,某些流
GB/T 24818.2—2010/ISO 11660-2 = 1994
动式起重机的机器外罩顶部可不满足这个要求。
11-3走道应设置把手、扶手或护栏。如果走道表面开放一侧的垂直距离大于3 m,则应设置护栏。
11.4仅用于通向维修和检查平台的走道,在与地面距离小于或等于3 m时,其最小宽度可为
230 mm。在保持三点支撑情况下,如果容易操作,则可从走道上进行维护和检查。
11.5在开放处除安装通向梯子或阶梯的通道,还应安装护栏.在穿过开放区域处应设置满足6. 3要 求的装置。
11.6若脚可能从走道或平台滑入运动中的机器或设备处,则应安装踢脚板。
图3平台、过道、走道和护栏
表3平台、过道、走道和护栏的尺寸
|
符号 |
说 明 |
尺寸/ mm | ||
|
最小 |
最大 | |||
|
A |
宽度 |
平台 |
600 |
— |
|
走道. _______ |
450 |
— | ||
|
风 |
净空高度 |
站姿 】一] |
2 000 |
— |
|
跪痴 ..... |
1 500 |
— | ||
|
爬行"______________________________ |
1 000 |
— | ||
|
护栏高度 ’__________________ |
1 000 |
1 100 | ||
|
DS |
踢脚板高度。 一__________________ |
50 |
— | |
|
踢脚板到地板面间隙 — |
0 |
10 | ||
|
F, |
过道 |
使用者正面通过 _______________ |
550 |
— |
|
使用者侧身通过 |
330 |
— | ||
|
使用者相向错位通过 |
900 |
— | ||
|
H通道内有障碍物时,其局部宽度可减小到400 mm. b仅在检查和维护时。 c在特殊情况下需要人员通过时,踢脚板最大高度应限制在500 mm之内. | ||||
8
标准分享网 www.bzfxw.com 免费下载
GB/T 24818. 2—2010/ISO 11660-2: 1994
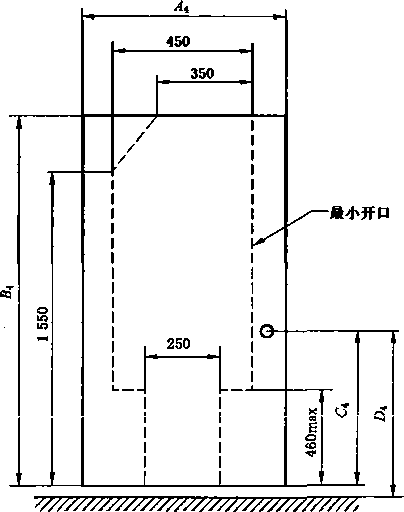
12出入口
12. 1出入口的尺寸应符合图4和表4的规定。
12.2如果不能使用长方形开口,可使开口的最小尺寸调整到如图4所示,即开口离地板面的最小垂直 .距离可从460 mm增大到770 mm,同时最小宽度从250 mm增至300 mm<,
12.3基本出入口应可从通道阶梯、平台或走道直接到达.
12.4人员站在开门处应不费力且无伤害地打开此门。
12.5坐姿司机室除了基本出入口还应有备用出入口。
12.6开关较接门或入口盖板,所用的力不应超过135 N。
12.7在流动式起重机操作过程中,应有使门保持开启位置的装置.
12.8较接门应采用外开式.推拉门的设计应考虑如何防止由于流动式起重机操作时的惯性力,导致 门的滑动对人员的伤害.
12.9在下列情况下,应至少留有80 mm的手间距:
a)较接门的外缘和除门框以外的任何固定物之间;
b)在需要打开或移动其他类型的门或盖板的地方。
12. 10可移动的出入口盖板如需借重力固定,设计时应考虑防止其打开时坠落。
12. 11可移动的出入口盖板如需垂直提起300 mm的高度,其质量不应超过40 kg,每增加提升高度
300 mm,其质量应至少减少5 kg。
单位为毫米
基本出入口
注1:改变为最小开U的形状,不必对称"
注2:该尺寸是最小的,除非另有说明.对站姿司机室才允许在头部有斜度.
图4 出入口
9
GB/T 24818. 2—2010/ISO 11660-2=1994
表4出入口的尺寸
|
符号 |
说 明 |
尺寸/mm | ||
|
最小 |
最大 | |||
|
基本出入口 | ||||
|
A4 |
宽度 |
450 |
— | |
|
曰 |
高度 |
坐姿司机室___________ |
1 300 |
— |
|
站姿司机室 |
1 800 |
— | ||
|
& |
门内把手距地板面的高度 |
坐姿司机室 |
350 |
850 |
|
站姿司机室 - |
800 |
1 000 | ||
|
R |
门外把手距站立面的高度 |
500 |
1 500* | |
|
备用出入口(最好与基本出入口尺寸相同) | ||||
|
圆形(宜径) |
650 |
— | ||
|
正方形 |
600X600 | |||
|
长方形 |
470X650 | |||
|
检修出入口 | ||||
|
H |
宽度 |
450 |
— | |
|
A |
高度 |
76。 |
— | |
|
九 |
豆地板面的距离 |
500 | ||
|
K |
圆角半径 |
一 |
0.5 H4 | |
|
H如果从地面开始为1 700 mm。________________________________________________ | ||||
13动力和手动通道装置
13.1第5章至第10章规定也适用于本章所涉及到的通道装置。
13. 2升降机和人力起升设备应遵循国家法规和标准确立的性能要求.
13.3通道装置控制器应:
a)防止误操作;
b)当控制器处于断开状态、转到空挡或稳定状态时,应停止通道装置并固定于所要求的位置上;
c)在每个通道站都应设置控制器以备提升或下降通道装置;
d)操作力不大于225 N;
e)如果断电,可使通道装置下降到通道站。
13.4设计的载荷应至少为最大预计工作载荷的4倍。
13.5应避免由于流体管路或电源故障导致的失控跌落事故。
13.6对高于地面3 m的控制器,应设置扶手或护栏。
13. 7应设一标牌,显示通道装置安全操作所容许的最大工作载荷以及最多人员数,并将其置于易读可 见之处。
13.8应防止能造成人员伤害或通道装置损坏的超速运动。
13.9只有在通道装置完全就位以后才允许人员进人.
13. 10通道装置在使用者通行时,不应摆动。在进出通道装置时允许任意方向上的最大位移为
80 mmo
13.11通道装置在其存放处应确保安全。如出现异常,则应由警灯或警铃发出警示。
10
标准分享网 www.bzfxw.com 免费下载
GB/T 24818.2—2010/ISO 11660-2: 1994
13. 12流动式起重机应带有备用通道,包括动力或手动通道装置。
13.13可控制的下降装置的下降速度无论有无载荷均应保持匀速,对于载重为135 kg时,其下降速度 应为1 m∕s~3 m/s。即使是在发生诸如机械故障、火灾的紧急情况下,速度也不应超过4. 5 m/s.
14安全防护设施
GB/T 24818.1中关于安全防护设施和电气防护的要求,适用于流动式起重机。
11
GB/T 24818.2—2010/ISO 11660-2:1994
附录A (资料性附录) 防滑表面的示例
以下是4. 26定义的防滑表面示例。
a)斜方花纹:具有凸出斜方图案或有凸出块的实体表面。
b)凸珠花纹:具有凸出多珠图案的实体表面.
C)多孔网:具有多孔斜方图案的网状表面。
d)砂粒涂层:表面涂有含砂粒油漆或在油漆干燥之前植入砂粒。
e)曲线状花纹薄膜:正面涂有高磨擦力碳硅化物磨粒形成的曲线状花纹,背面带有压力粘合剂的 塑料薄膜。
标准分享网 www.bzfxw.com 免费下载
GB/T 24818.2—2010/ISO 11660-2 : 1994
参考文献
EU GB/T 8420—2000《土方机械 司机身材尺寸与司机的最小活动空间》(eqv ISO 3411 : 1995).
[2] GB/T 17299-1998《土方机械 最小人口尺寸》Qdt ISO 2860 J992).
[3] GB/T 17300—1998《土方机械 通道装置》(idt ISO 2867 : 1994).
[4] GB/T 24818. 3—2009《起重机 通道及安全防护设施 第3部分:塔式起重机MlSoII660"3: 200 8, IDT).
13
GB/T 24818.2-2010
中华人民共和国 国家标准 起重机通道及安全防护设施
第2部分:流动式起重机
GB/T 24818. 2—2010/1So 11660-2i1994
关
中国标准出版社出版发行
北京复兴门外三里河北街16号 邮政编码:100045
网址 WWW. spc. net. cn
电话二 68523946 68517548 中国标准出版社秦皇岛印刷厂印刷 各地新华书店经销
*
开本880X1230 1/16 印张1.25 字数27千字 2011年5月第一版2011年5月第一次印刷
*
书号:155066 • 1-42254 定价 21.00 元
如有印装差错由本社发行中心调换 版权专有侵权必究 举报电话:(010)68533533
打印日期:2011年6月13日F008A00
标准分享网 WW. bzfxw. com免费下载
F 66 二 Z—099 二 OSI∕0≡ZIZ∙8L8寸Z I/90