《汽车库、修车库、停车场设计防火规范》图示

按《汽车犀修车库、停车场设计瞅规范》CB 5QD6Hol4编制


主编单位负责人名<尸% 主编单位技术负责人


批准部门


主编单位


实行日期


中华人联和国住房和城乡匏设部 上海市公安消防总队 中联觴准货计班娥有限公司 二0一五年九月一日


批准文号


统一编号


图集号


建质[2012]69


GJBT-I201


12J814




技术审定人


设计负责人



目录•… 编制说明


1总则........................

2术语........................

3分类和耐火等级.........

4总平面布局和平面布置

4.1 一般规定..........


1-1


2-1


4-1


4 2防火间距

4.3消防车道

5防火分隔和建筑构造

5.1防火分隔


• 4-6


4-17


5-1


5.2防火墙、防火隔墙和防火卷帘…

5.3电梯井.管道井和其他防火构造

6安全疏散和救援设施......................

7消防给水和灭火设施

7.1消防给水........................:...........

7.2自动灭火系统...........................

8供暖、通风和排烟

8.1供暖和通风.............................

8.2排烟......................................

9电气..........................................


5-9


5-13


6-1


7-6


8-1


8-2


9-1


______目    录______

1集号

12J814

审核曾杰*L恢对速Ll融遍I设计T焦翼曾

1 -


2


.             编 制

1 编制依据

住房和城乡建设部建质函[2 0使1 8 3号文“关于印发《2008年 国家建筑标准设计编制工作计划》的通知".

《汽车库、修车库、停车场设计防火规范》GB50067-2014及 相关的建筑设计标准、规范:

当依据的标准规范进行修订或有新的标准规范出版实施时, 本图集与现行工程建设标准不符的内容、限制或淘汰的技术或产 品,视为无效.工程技术人员在参考便用时,应注意加以区分, 并应对本图集相关内容进行复核后选用。

2 适用范围

本困集可供全国建设单位、规划和建筑设计.施工、监理、 验收等相关人员以及消防监督人员配合规范使用;也可作为建 筑设计相关专业的教师和学生对这部分内容教学的参考.

3 编制原则

将《汽车库、修车库、停车场设计防火规范》GB5 0067-2 014 的部分条文通过图示、表格等形式表示出来,力求简明、准确地 反映该规范的原意,以便于使用者更好地理解和执行规范.

4 编制方式

4.1本图集以《汽车库、修车库、停车场设计防火规范》GB50067 -2014的条文为依据,图示内容按《汽车库、修车库、停车场设计 防火规范》GB50067-2014条文的顺序拌列.


说 明

4.2用示表达:

4.2.1正文 部分是对《汽车库、修车库、停车场设计防火 规范》GB5 0067-20M原文(包括章节编号等)的直接引用。字 体按规范编制的要求,强制性条文为黑体,普通条文为宋体.

4. 2.2白底部分为图示的内容,是对《汽车库、修车库、停车 场设计防火规范》GB50067-2014条文的理解和注释,字体采用 仿宋体•

4.3【图示X】为本图集在《汽车库、修车库、停车场设计防火 规范》CB5O067-2O14条文相应处加注的图示对应编号.

4.4《条文说明X为本图集在《汽车库、修车库、停车场设计 防火规范》GB5 0067-2014条文相应处引用的条文说明的注解.

4.5 [注释)是编制单位对《汽车库、修车库、停车场设计防 火规范》GB5O067-2014条文所包含内容的说明,提示设计中应 注意的问题或该条目的适用范围。

4.6对规范条文的解释图示内容较多时,果用续页的编排方式• 4.7图集中凡涉及到的防火墙和防火堤采用红色填充表示.对 耐火极限有特别要求的隔墙、楼板、防火门窗等均采用红色表 示。

5图集解释

5.1本图集由上海市公安消防总队负责具体解释工作.

5.2实际工程中若对条文的理解有疑意,应与上海市公安消防 总队或当地消防部门协商解决.


编制说明 国集号


审核I曾杰胃2 I校对I胡波17融自 I设计I焦翼曾I:




12J814


M火摩及



πr^s



£比句专 女矍史色 -E火殳®



,i触火第圾和平百后置



I总则F■「十

l∙O∙l为了防止和减少汽车库、修车库、停车场的火灾危险和危害,保护人身和财产的安全,制定本规范。

1.0.2本规范适用于新建、扩建和改建的汽车库、修乍库、停车场的防火设计,不适用于消防站的汽车库、修举库、停军场的防火设计。

1.0.3汽车库、修车库、停车场的防火设计,应结合汽乍库、修车库、停车场的特点,采取有效的防火措施,并应做到安全可靠、技术先进、 经济合理。

].04汽车库、修车库、停车场的防火设计,除应符合本规范外,尚应符合国家现行冇关标准的规定。



耐火等级和平面布置 分类和总平面布局





建筑构造救援设施灭火设施 和排烟 防火分隔和安全疏散和消防给水和供暖通风



审核曾杏丄善校对胡波7射去


Sit




耐火等级和平面布S一建筑构造一救援设施 灭火设施-和排烟 分类和总平面布局一防火分隔和;安全疏散和一消防给水和一供暖通风





4


2术语



2.0.1 汽车库 garage

用户停放由内燃机驱动且无轨 客车、货干、工程车等汽车的建筑物。

2.0.2 4 motor repair shop

用尸保养、修理由内燃机駆动旦 轨道的客年、货车、工程车等汽车的 建(构)筑物。            ;

2.0.3 4 parking lot

《用户停放由内燃机驱动且无轨 的客军、货乍、L程军等汽车的露天 场地或构筑物。

2.0.4 地卜汽车地UndergroUnd garage

地卜室内地坪面与室外地坪面的高 度之茏大尸该层车库逢高1/2的汽车 【图示】

2.0.5 步地 F汽车库 semi-undergro garage

地卜室内地坪面与室外地坪面的高 度之差大『该层车库净高1/3且不大F 1/2的汽车库。【图示】



H∕2<h       坪面的高度之差大于该层车库



H∕3<h≤H∕2      坪面的高度之差大于该层车库


冷高1/3且不大于1/2的汽车库


R条文说明-摘录U2. 0.4条和第2.0.5•条条文中的净高一般是指层高和楼板厚度的差值.根据现行国家标准 《民用建筑设计通则》GB 50352的规定,室内净高应按地面至吊顶或楼板底面之间的垂直高度计算;楼板或 屋孟的下悬构件影响有效使用空间者,应按地面至结构下缘之间的垂直高度计算。



H-地下或半地下车库房问序高; h-室内地坪面低于室外地坪的高度,

____2术语____

图集号

12J814

审枝

WL伽对[胡用力温I设卅焦翼曾

11





2.0.6 多层汽车库 multi-storey garage

建筑高度今乏成管F24m的两员冬以自好伟库【图平1】或设在多苗建筑内地由I层以上楼层的汽车库」图示21



莖外地坪面



多层汽车库剖面示意图


2 0.6图示1


总术 则语



多层建筑刃面示意图

2. 0.6图示2


酎火等级 和平面布置一建筑构造-救援设施一灭火设施一和排烟 分类和 总平面布局 防火分隔和一安全疏散和一消防给水和 供暖通风_



2术语

BM

12J814

"矶曾杰I

/& I校对I胡浪I衣添设计I魚奖曾I鬼号

2-2




5


E「

总术 则语

总和 平平 面面 布布 _局置

瓚排

^X


2.0.7 高层汽车库 high-rise garage

建筑爲度大于24m的汽车库[图示1]或设在高层建筑内地面层以上楼层的汽车库.【图示2





6


2a 7图励


2. 0.7图示2


2术语

困集号

12J814

审核I曾杰I耳丄I校对I胡波I累浪I设计I献曾I王子


5



U^^L’ ; ^j,^r 电一,lʃS∙,a∙,看卜-t<^^-^;



2 0.8 机/式汽车库 mechanical garage


采用机械设备进行垂直或水平移动等形式停放汽车的汽车库【图不】




出入口层平面图


[注释]1.此图例为巷道堆垛机械式汽车库.

2•有关巷道堆块机械式汽车库技术参数可参见国标图集 08J927-2《机械式汽车库建筑构造》.


耐火等级和平面布置一建筑构造救援设施灭火设施 和悻烟 分类和 总平面布局防火分隔和安全琉散和消防给水和一供暖通风




出入口



1-1剖面图


机械式汽车库示意图


2. 0. 8图示


2术语


审核I曾杰IL I校对I胡波口斯自改开建竟曾



IS集号

12J814

2-4




7



总则,分类和



术语 耐,人尊圾和平面布置建筑构造救援设施-灭火设施 和排烟 电中 总平面布局防火分隔和安全疏散和消防给水和供暖通风 』



2.0.9敞开式汽车库open garage

任一层车库外墙敞开面积大于该层四周外墙体总面积的25%,

■车叫1图示】





≡I≡I≡K≡⅛≡


[1■酶幽


• ∙ ∙4∙ • ■


里踪W


任一层车库外墙敞开


面积大于该层四周外墙体 总面积的25%,敞开区域 均匀布置在外墙上且其长 度不小于车库周长的50% 的汽车摩


外增开敞洞口



外墙开敞洞口


∙λ ///////





Y.....

PfflW


8


敞开式汽车库平面示意图


Mi


M≡V 一 _嘛![關!■■■!


0; • • *


(b)


R条文说明-摘录U 车库(敞开区域)至少应有 两面墙是相对的


外墙开敞洞口



Sl*S2+S3*S4+∙∙∙∙Sn>S× 25%

其中:S为该层四周墙体总面积;Sh S2S3S4∙∙∙∙Sn-该层外墙 各开散洞口面积;

Ll+L2+L3*L4*∙∙∙∙Ln>L×50⅛

其中:L为车库周长;LIL2L3L4∙∙-Ln-该层外城各开敞洞 口长度•


2 0 8图示


2术语      图集号


审核曾杰■L板矶朗波i W"&]设计焦裳曽


12J814


2-5





fe

I



2


3分类和耐火等级



ʌ ʃ 3




忌术

则语


3. 0.1汽车库、修午库、停乍场的分类应根据停车(车位)数量和总建筑面积确定,并应符介表3. 0.1的规定C

3. 0.1汽车库、修车库、停车场的分类


名称

1

II

HI

IV

汽车库

停车数收(辆)

>300

151~300

51150______

≤50

总建筑而积S (m2

S> 10000

5000 VSWlOOOO

2000<S≤5000

S≤2000

修车库

车位数(个)

>15

615

35

W2

总建筑面积S (m2

S >3000

1000<S≤3000

500<S≤1000

S≤500

停车场

停车数量(辆)

>400

251-400

101250

≤100


:1当屋面露天停车场与下部汽卑库共用汽车坡道时,其停车数量应计莫在汽车库的车辆总数内。

& .2室外坡道、屋面露天停车场的建筑面积可不计入汽车库的建筑面积之内.【图:示I】 增独0倍,吗可y




当屋面露天停车场与下部汽车库共用汽车坡道时,其停车数


E三一m⅞z


室外坡道.屋面天停车场的建面积可不计入库的建茨,面积之内


R条文说明-摘录JI注解中第1)条是指在停车库的屋面露天停放车辆,当 屋面停车场与室内停车库共用疏散披道时,车库分类按泊位数量的限值应将 屋面停车效计人总泊位数内,但面积可以不计入车库的建筑面积内.如在其 建筑的屋顶上单独没置汽车坡道停车,可按露天停车场考虑.


衣一



量应计算在汽车库的

总车辆数内


3防火分类和耐火等级



12J814


审核I曾杰I WX I校矶胡汶HAI设卅保"| ^1


9



和平面布置一建筑构造 总平面布局防火分隔和



救援设施灭火设施 安全疏散和一消防给水和



和排烟 一 供暖通风







公交汽车库的分类


名称

I

Il

m

IV

停车数量(辆)

>300

151-300

51~150

< 50 .

厶人千斤

或总建筑面积S(M)

S >30000

150M<3< 30000

6000<S≤15 0 00

S < 6000


3防火分类和耐火等级 -

HO

12J814

审核I曾杰I蜂工I校对I胡遗I

訓液假计[焦翼曾I




总则 分类和*总平面布局防火分隔和安全疏散和消防给水和 供®通风一 左



10



3. 0.2汽车库、修车库的耐火等级应分为一级、二级和三级,其构件的燃烧性能和耐火极限均不应低于表3. 0.2的规定.


3. 0.2  汽车库、修车库构件的燃烧性能和耐火极限h)


建筑构件名称

耐火等级

—级

二级

三级____

________防火墙

不燃性3.00

不燃性3.00

不燃性3.00

承重墙

不燃性 3.00

不燃性2.50

不燃性 2. 00

楼梯间和前室的墙、防火隔墙

不燃性 2.00

不燃性2.00

不燃性 2.00

隔墙、非承重外墙

-不燃性_T^—

不燃性1.00

]   不 ⅜⅛ 0-50

不燃性 3.00

不燃性2.50

不燃性 2.00

一         梁

不燃性 2.00

不燃性1.50

不燃性1.00

楼板          —

不燃性 1.50

不燃性1.00

不燃性 0.50

疏散楼梯、坡道一

不燃性 1.50

不燃性1.∞

不燃性 1.00

承重构件       -

不燃性Γ5O

不燃性LoO

可燃性 0.50

吊顶7包括吊顶搁栅)

不燃性 0.25

不燃性O∙25

难燃性0.15


注:


2

3

4


术语 ,版火等级-和平面布置 建筑构造 救援设施 灭火设施 和排烟 总则 E 分类和)总平面布局防火分隔和安全疏散和消防给水和 供暖通风




預制钢筋混凝土构件的节点缝隙或金属承重构件的外露部位应加设防火保护层,其耐火极限不应低于表中相应构件的规定。【图示】


汽车库和修车库的耐火等级应符合下列规定:

地下、半地下和高层汽车库应为一级;

甲、乙类物品运输车的汽车库、修车库和I类汽车库、修车库,应为一级: II、川类汽车库、修车库的耐火等级不应低于二级: IV类汽车库、修车库的耐火等级不应低于三级。


R条文说明-摘录2防火隔墙比防火墙的耐火时间短,比一般分隔墙的耐火 时间要长,且不必按防火墙的要求必须砌筑在梁或基础上,只需从楼板砌筑 至顶板,这样分隔也较自由.这些都是落于汽车库内的火灾负载较少而提出 的防火分隔措施,具体实践证明还是可行的.


3防火分类和耐火等级

图集号

12J814

审核I曾杰I *L恢对I胡波

3-3


11



术语 总则



防火保温材料


屋面


耐火等级,和平面布S 分类和 总平面布局



建筑构造救援设施灭火设施 防火分隔和 安全疏散和 消防给水和





防火材料壇充


钢柱


面板


(a)


防火涂料保界层



N9U9韓通HVSBttUflW

Y■^^ —^――


钢梁




面板


防火材料填充


和排烟 供暖通风






(b)

钢柱防火保护


3. 0. 2图示


钢柱


钢梁防火保护


缝隙用不燃材料填塞密实



预制钢筋混凝土构件,


预制钢筋混凝土构件缝隙防火保护


电气



I注释]預制钢筋混凝土构件的节点缝隙或金属承重构件由外容部位应加设防火 保护层,其耐火极限不应低于表3. 0. 2相应构件的规定.


3防火分类和耐火等级


图集号


审核普引ShJ校矶电波国自问乐祠 & 页


12


12J814


3-4



4总平面布局和平面布置



4∙1 -般规定

4∙ Ll汽车库、修车库、停车场的选址和总平面设计,应根据城市规划要求,合理确定汽率库、修车库、停车场的位置、防火间 距、消防车道和消防水源等。

4.1.2汽车库、修车库、停车场不应布置在易燃、可燃液体或可燃气体的生产装置区和贮存区内.【图示】


易燃、可燃液体或可燃气体的储存区


易燃、


可燃液体或可燃气体的生产装置区


rΓp∙~~......



F.......击•



汽车




平面示意图 \犬车库、修车库、停车场不应布置在易越、可 港液体或可燃气体的生产装置区和Je存区内

4.1.2图示


口条文说明-摘录3 4.1.2本条规定不应件汽车库、修车库、停车场布置在易燃、可燃液体或可燃气体的生产装置区和Jt存区内,这对保证防火安全是 韭當必要的.


7 S 面^刍名利耳酒議£ 芻尔英證 fiM π^>M 利扫¢ 总则 分类和 总KHS布局防火分隔和安全疏散和消防给水和 供暖通风



4 1 一般规

图集号

12J814

审核

曾查学T恢对I胡汶I !⅛I设计IH

4-1


13


术语 耐火等级和平面布M,建筑构造救援设施灭火设施 和排烟 总则 分类和 总平面布局 防火分隔和安全疏散和 消防給水和 供暖通风



4.1.3汽车库不应与火灾危险性为甲、乙类的厂房、仓库贴邻或组合建造。【图示】

4. 1.4汽车库不应与托儿所、幼儿風,老年人建算,中小学校的教学楼,病房楼等组合建造。当符合下列要求时,汽车库可设置在托儿所、 幼儿园,老年人建筑,中小学校的教学楼•病房楼等的地下部分:

1汽车库与托儿所、幼儿园,老年人建筑,中小学校的教学楼,病房楼等建筑之间,应采用耐火极限不低于2. OOh的楼板完全分Sll

【图示1

2汽车座与托儿所、幼儿园,老年人建筑,中小学校的教学楼,病房楼等的安全出口和硫散楼梯应分别独立设置。【图示21



采用耐火极限不低于2∙ OOh的楼板完全分隔





托儿所、幼儿园,老年人建筑,


中小学校的教学楼,


剖面示意图


托儿所、幼儿园,老年人, 建筑,中小学校的教学楼,


面示意图

HBs^2


E


14


安全出口和疏散楼梯应


77分别独立设置


A


K1 XV w∙∙ — _

•• • ••


[注释]托儿所、幼儿园,老年 人建筑,中小学校的教学楼, 病房楼等室内门开启应符合相 关规范要求.


汽车库疏散楼梯



病房楼出入口


4.1 一般规定 图集号12J814 用研曾杰I吟丸恢对I胡滋I女演I设计I魚冀普I X^l页 匚丁




1.1.5甲、乙类物品运输车的汽车库、修车库应为单层建筑,且应独立建造【图示1】。当停车数量不大于3辆时,可与一、二级耐火等级 的IV类汽车库贴邻,但应采用防火墙隔开。【图示2





总术 则语





剖面示意图


4. 1.5田示1


甲、乙类物品运输车的汽车库、修车库应为单层建筑、且应独立建造



K条文说明-摘录U甲、乙类物品运输车在停放 或修理时有时有残留的易燃液体和可燃气体, 漂浮在地面上或散发在室内,遇到明火就会燃 烧、爆炸.其汽车库、修车库如与其他要筑组 合建造或附建在其他建筑物底层,一旦发生爆 然,就会威胁上层结构安全,犷大灾情.所以, 对甲、乙类物品运输车的汽车库、修车库强谓 单层独立瘦造.但对停车数不大于3辆的甲、乙 类物品运输车的汽车库、修车库,在有防火墙 隔开的条件下,允许与一、二级耐火等级的IV 类汽车库贴邻速造.


耐火等级和平面布置建筑构造-救援设施灭火设施 和排烟 分类和 总平面布局防火分隔和一安全琉散和消防给水和供暖通风



4. 1. 5图示2


4.1 -般规定

图集号

12J814

⅞ΓI

d限对1胡波I乱泳I设计I焦可

I^I

4-3


15



术语 耐火等級 总则 分类和



4.1.6 I类修车库应单独建造;HmW类修车库可设置在一、二级耐火等级建筑的首层或与其贴邻【图示1】,但不得与甲、乙类厂


房、仓库,明火作业的车间或托儿所、幼儿园、中小学校的教学楼,老年人建筑,病房楼及人员由集场所组合建造或贴邻.【图示2



建筑构造救援设施灭火设施 和排烟 防火分隔和安全疏散和消防给水和供嚟通风



电气



16



一、二级耐火等




nL IV类修



建筑


L


IIJIL IV

修车库


II、山、IV类修车库可设置在一、二级耐火等级建筑的首层或与其贴邻建造


组合建造剖面示意图


甲、乙类生产厂房、仓库, 明火作业的车恬


托儿所、幼儿历 老年人建筑,


病房楼及

人员密集场所


一、二级耐火等级的建筑


贴邻建造立面示意图


umIV类修车库不得与甲、乙类厂房、库房、明火作业的 车间或托儿所、幼儿园、中小学校的教学楼、老年人建筑, 及人员密集场所组合建造或贴邻



III、/;弋车库


组合建造剖面示意图


4.1.6图示2




、乙类厂房、库房,明火作业的车间 托儿所、幼儿园、中小学校的教学楼, 老年人建筑,病房楼及人员密集场所


贴邻建造立面示意图


[注释):本条对nniIV类修车库允许有所机动,可与没有明火作业的丙、丁、虎类危险性生产厂房、令摩及一、二级耐火等级的一般民用建筑 (除托儿所、幼儿园、中小学校的教学楼,老年人建筑,病房楼及人员密集场所,如商场、展览、餐饮、娱乐场所等)贴邻建造或附设在建筑底层, 但必须用防火墙、楼板、防火挑檐等结构进行分隔,以保证安全.


4. 1

一般规定

图集号

12J814    !

审核11I中之I校对

胡波丨力鴻t¼冀曾I

页一

4-4


4. 1.7为汽车库、修车库服务的下列附属建筑,可与汽车库、修车库貼邻,但应采用防火墙隔开,并应设置宜通室外的安全出口:


1贮存量不大于LOt的甲类物品库房;【图示1

2总安装容鼠不大F5∙0m3/h的乙蝶发生器间和贮存M不超过5个标准钢瓶的乙炊气瓶库;【图示2

3 1个车位的非封闭喷漆间或不大于2个车位的封闭喷漆间:【图示3

4建筑面积不大于200♦3的充电间和其他甲类生产场所.I图示4


防火墙


防火墙 /


术语 耐火等级和平面布S 总则 分类和 辜Ia布Eg.



直通室外的安全出口



为汽车库,修车库服务的下列 附漏建筑,可与汽车库、修车 库贴邻,但应采用防火指隔开, 并应设置直通室外的安全出口



总安裝容置不大于5∙0M/h 的乙煥发生器间

贮存量不超过5个标准钢瓶 的乙供气瓶库


平面示意图


4.1.7图示1




1个车位的非封闭喷漆间或

不大于2个车位的封闭喷漆间


K条文说明-摘录】

其他甲类生产场所主要是指与汽车修理有 关的甲类修理工段.


汽车库

修车库


建筑面积不大于200/的充-电间和其他甲类生产场所


平面示意图

4/7图示3


喜丝室外的 安全出口


TZF


平面示意图


4.1.7富旅4



直通室外的 安全出口


建筑构造救援设施灭火设施 和排烟 防火分隔和安全疏散和消防给水和一供暖通风



4.1 -般规定

殴集号

12J814

审核

校对I胡波I优禮"殳计I焦翼耳

ɪ

4-5


17



总则



分类和总平面布



4.1.8地卞、半地F汽车库内不应设置修理车位、喷漆间、充电间、乙焕间和甲、乙类物品库房。【图示】

4. 1.9汽车库和修车库内不应设置汽油罐、加油机、液化石油气或液化天然气储罐、加气机。【图示】

4. L 10停放易燃液体、液化石油气罐车的汽车库内,不得设置地下室和地沟。【图示】



防火分隔和一安全疏散和,消防给水和供暖通风-隹-




地下、半地下汽车库



修理敝、/电间. 喷漆间.X乙块间、 甲、次G^


地下、半地下汽车库




地下、半地下汽车库剖面示意图


汽车库和修车库内不应设置汽油管、加油机 液化石油气或液化天然气储罐、加气机



停放易燃液体、液化石油气罐车的汽车库内, 不得设置地下室和地沟


18


汽车库、修车库




4. L 9图示


X沟      地下室X

■■u z x

4.1 一般规定 图集号12J814


曾杰坤生校对胡波布液板计焦冀曾⅛⅛4-6




4.1.11燃油或燃气锅炉、油浸变压器、充有可燃油的高压电容器和多油开关等,不应设置在汽车库、修车库内.当受条件限制必须 贴邻汽车库、修车库布置时,应符合现行国家标准《建筑设计防火规范》GB 50016的有关規定.


总术

则语


4.1.12 1∙ II类汽车库、停年场宜设置酎火等级不低于二級的灭火器材间。【图示】 v&»^issSi^i^^ -ʌɔ^tɪiiði^w



4.. 12 ■示

K条文说明-摘录』

在汽车库、修车库、停车场内,一般都配各各种消防器材,对预防和扑救火灾起到了很好的作用.我们在调查中发现,有不少大型停车场、 汽车库内的消防器材没有专门的存放、 管理和维护房冋,不但平时维护保养困难,更新用的消防器材也无处存放,一旦发生火灾,将贻误灭火 时机.因此本条根据消防安全需要,规定了停车数量较多的IU类汽车库、停车场要设置专门的消防器材同,此消防器材间是消防员的工作 室和对灭火器等消防器材进行定期保养、换药、检修的场所.


耐火等级和平面至建筑构造救援设施灭火设施 和排烟 分类和 皐面看防火分隔和安全疏散和消防泉和供暖通风



4.1 一般规定

BM

12J814

中闵曾杰I MhJ枝研胡汶I乱温I没计I焦曾I生子

4-7


19


术语 耐火等级和平画布≡建筑构造救援设施灭火设施 和排烟 总则,分类和总平面布局防火分隔和安全疏散和消防给水和供暖通风



20


4.2防火间距

4. 2.1除本规范另有规定外,汽车库、修车库、停车场之间及汽车库、修车库、停车场与除甲类物品仓库外的其他建筑物的防火间距, 不应小于表4.2.1的规定【图示1】。其中,高层汽车库与其他建筑物,汽车库、修车库与高层建筑的防火间距应按表4. 2.1的规定值增加 3m【图示2】;汽车库、修车库与甲类厂房的防火间距应按表4. 2.1的规定值增加2m。【图示3J


4. 2.1  汽车库、修车库、停车场之间及汽车库、修车库、停车场与除甲类物品仓库外的其他建筑物的防火间距m)


名称和耐火等级

汽车库、

叁车库

_______厂房、仓库、民用建筑

一、二级

-三级

一、二级

三级

四级

-、二级汽车库、修车库

W^

T2

12

14

三级氏车库、修车库

12

14

12

16

停车场

6

8

6

8

10


注:1防火间距应按相邻建筑物外墙的最近距离算起,如外墙有凸出的可燃物构件时,则应从其凸出部分外缘算起[图示4】,停车场从最 近建筑物的最近停车位置边缘算起」图示5

%,. 2厂房、仓库的火灾危险性分类应符合现行国家标准《建筑设计防火规范》GB 50016的有关规定。


汽车库 (修车库)

汽车库、修车库、厂房、 仓库(除甲类物品仓库 外)、民用建筑

一、二级耐火等级›

>lftα

,一、二级耐火等级

J三级耐火等级

>1⅛

,四级耐火等级

三级耐火等级r

,一、二级耐火等级

,三级耐火等级

.四级耐火等级


立面示意图


4∙2,∙1 图示1


K条文说明-摘录】

根据汽车使用易燃、可燃液体为燃料容易引起火灾的特点,结合多年贯彻实 施国家标准《宜筑设计防火规范》GB50016和消防灭火战斗的实际经験,汽车库、 修车库按一般厂房的防火要求考虑,汽车库、修车库与一、二级耐火等级建筑物 之间,在火灾初期有IOm左右的间距,一般能满足扑救的需要和防止火势的蔓延. 高度大于24m的汽车库发生火灾时需使用登商车灭火抢救,间距需大些。露天停车 场由于自然条件好,汽油蒸气不易积聚,遇明火发生事故的机会要少一些,发生 火灾时进行扑救和车辆疏散条件较室内有利,对建筑物的威胁亦较小.所以,停 车场与其他建筑物的防火间距作了相应减少。


4. 2防火间距

图集号

12J814

串申曾本I #丄I校对I胡波I融添I设计I爲翼曾I 韭子

4-8



高层汽车库


其他池筑物


汽车库 (修车库)


阜、


注 生


14


高层建筑


一级耐火等级 n

.一、二级耐火等级

:     >15(» J

,三级耐火等级

: >1⅛> ~

,四级耐火等级


4.2 I图示2


汽车库

(修车库)


甲类厂房


一、二级耐火等级

三我耐火等级


>12ιι

>14q


L一级耐火等级


一、二级耐火等级J

J 一、二级耐火等级

三级耐火等级J

>1% I


凸出的可燃物构件



停车位边缘



汽车库、修车库, 厂房、仓库、

民用建筑


)6m 一、二级耐火等级

X,;三级耐火等级 TIS f四级时火等级



番么W当≡胃WBtFIR 裝名*龙 扌-PHi、为 :.1一;——- 总则 分类和 羣面布局防火分隔和安全疏散和消防给水和供暖通风



4. 2防火间距

画牌杰INk血胡波HRI波计I焦冀曾I



图集号


12J814

4一厂


21


术语 耐火等级和平而布置建筑构造一救援设施灭火设施一和排烟 总则一分类和 皐面布咼防火分隔和一安全疏散和消防给水和一供暖通风



4.2.2汽车库、修车库之间或汽车库、修车库与其他建筑之间的防火间距可适当减少,但应符合下列规定:

1当两座建筑相邻较高一面外墙为无门、窗、洞口的防火墙或当较高一面外墙比较低一座一、二级耐火等级建筑屋面高15m及 以下范围内的外墙为无门、窗、洞口的防火墙时,其防火间距可不限;【图示1】                           •

2当两座建筑相邻较高一面外墙匕 同较低建筑等高的以下范围内的墙为无门、窗、洞口的防火墙时,其防火间距可按本规范 我4. 2.1的规定值减小50%【图示2

3 相邻的两座一、二级耐火等级建筑,当较高一面外墙的耐火极限不低于2∙ OOh,墙上开口部位设置甲级防火门、窗或耐火极 限不低于2.0Oh的防火卷帘、水幕等防火设施时,其防火间距可减小,但不应小于4叱[阴示3

4相邻的两座一、二级耐火等级建筑,当较低一座的屋顶无开口,屋顶的耐火极限不低于LOOh,且较低•面外墙为防火墙时, 其防火间距可减小,但不应小于4πu【图示4



汽车库、修车库、其他建筑

(耐火等级为一、二级)一•无门、窗,洞口的防火墙



汽车库、修车库、其他建筑

/ (耐火等级为一、二级)

较高一面外墙比较低建筑屋面高

15见及以下范围内的墙为不开门、


S^A



窗、洞口的防火墙


22



汽车库、修车库



防火7距子不限 剖面示意图



防火0距可不限

H+ 剖面示意图


4. 2防火间距

图集号

12J814

⅞⅛?杰I

ɪ校对凭波融添圈计焦翼尚观f

1"

4-10



汽车库、修车库、其他建筑

J (耐火等级为一、二级)


汽车库、修车库、其他建筑



外墙耐火极限不低于2. OOh


甲级防火门、窗或耐火极限不低于

2.0Oh防火卷帘、水幕等防火设施



总则




T当两座建筑相邻较高一面外墙上,同较低建焼等高的 以下范围内的墙为无门、窗.洞口的防火墙时,其防 火间距可按本规范的规定值减小50 %(见下表)

汽车库、修车库之间或汽车库、修车库与其他建筑之同的防火问距L (m)


名称和耐火等级

汽车库、修车库

厂房、仓库、民用速筑

一、二级

三级

一、二级

三级

四级

二二级汽车库.修车库

5

6

5

6

7

三级汽车库、修车库

6

7

6

7

8




ι公墨马「簞}eφ■ SF秩進 粗援is34代前 分类和 鞏面布B防火分隔和 安全疏散和消防给水和



、 」. 车库


剖面示意图

4. 2.2图示2


WwvlCβK^C⅛HV9lV^KS 4 2.2图示4


_£2防火间距

图集号

12J814

审核I曹杰I2I校对I朗波17泡备I3KT

L≡

4-11 ^


23


术语 耐火等级和平面布置 建筑构造一救援设施 灭火设施 和排烟 总则一分类和,总平面奮贾分隔和一安全疏散和消防给水和供暖通风



24



4. 2. 3停专场与相邻的一、二级耐火等级建筑之间,当相邻建筑的外墙为无门、窗、洞口的防火墙,或比停车部位高15m范围以下的 外墙均为无入、窗、洞口的防火墙时,防火间距可不限。

4.2.4汽车库、修车库、停车场与甲类物品仓库的防火间距不应小于表4. 2. 4的规定。【图示】

4. 2. 4 汽车库、修车库、停车场与甲类物品仓库的防火间距m)


名称

总容量1

_______汽车库、修车库______

停车场

一、二级

三级

甲类物品仓库

34

^

>5

15

20

20

25

15

20

1256

≤10

>10

12

15

20

12

15


注:1甲类物品的分项应符合现行国家标准《建筑设计防火规范》GB50016的有关规定C

2甲、乙类物品运输车的汽车库、修车库、停车场与甲类物品仓库的防火间距应按本表的规定值增加55


汽车库、修车库、停车场


汽车库、修车库

一、二级

<5t

甲类物品仓库 34

三级    ,

,   <5t

∏5e               

<5t

汽车库、修车库

一、二级

:               )2個    _

,    >5t

,    >5t

,    >5t

汽车库、修车库

-二级

>12m                     '

<10t

甲类物品仓库

1256

三级

>T⅛               J

<10t-

停车场

—       5

~<]0t

龙车库、修车库

二级

:             >15m           ~

, Aiot

, >ιot

'   >ιot-


立面示意图

4 2 4图示:


4. 2防火间距

图集号

12J814

审枝

校对I胡波1芋后鹿I设计I爲冀曾:^

4<2


术语 总则



耐火等级wi-≡建筑构造 救援设施 灭火设施 和排烟 分类和平國布局 防火分隔和 安全啼散和 消防给水和 供暖通风





总术 则语




耐火等级和平面布置建筑构造救援设施灭火设施 和排烟 分类和总平面布伊防火分隔和安全疏散和消防给水和供暖通风




4.2. 6汽车库、修车库、停车场与易燃、可燃液体储罐,可燃气体储罐,以及液化石油气储德的防火间距,不应小于表4.2.6的规定C 4. 2. 6汽车库、修车库、停车场与易燃、可燃液体储罐,可燃气体储罐,以及液化石油气储縫的防火间距m)


名称

总容量(积)S3)

停车场

一、二级

三级

易燃液体储罐

150

51 200 201~1000

IOOl5000

12

15

20

25

20

25

30

15

20

25

可燃液体储罐

5 250 251IoOO 1001-5000 500125000

L2~

15

20

25

15

20

25

30

12    -

15

20

25

湿式可燃气体储罐

~≤1000-1001—1(X)00 >10000

12

15

20

20

25

15

20

液化石油气储罐

—30

31 200 201—500

>500

18

20

25

30

20

25

30

40

"~18~

20 25

30


注:1防火间距底从距汽车库、修车库、停车场最近的储罐外壁算起,但设有防火堤的储罐,其防火堤外側基脚线距汽车库、修车库、停车场的距离不 应小于IOm【图示1】.

2计算易燃、可燃液体储罐区总容材时InP的易燃液体按5∏P的可懲液体计算。

3干式可燃气体储罐与汽车库、修车库、停车场的防火间距,当可燃气体的密度比空气大时,应按本表对湿式可燃气体储罐的规定增加25%当可燃 气体的密度比空气小时,可执行本表对湿式可燃气体储罐的规定。固定容积的可燃气体储罐与汽车库、修车库、停车场的防火间距,不应小于本 表对湿式可燃气体储罐的规定.固定容积的可燃气体储罐的总容积按他罐几何容积UO和设计储存压力(绝对压力,IO3Pa)的乘积计算Ii

4容积小于lι∏3的易燃液体储续或小于5m的可燃液体储雜与汽车库、修车库、停车场的防火间跑,当采用防火墙隔开时,其防火间距可不限【帽示2】。




4. 2防火间距


臨号


申核曾杰I守丄版1胡沒I确溢I设计I保翼期如 页


26


12J814


4-14


术语 耐火等级和串®«建筑构造救援设施灭火设施 和排烟 总则 分类和 总平価痴局防火分隔和安全疏散和消防给水和供暖通风




>10m


防火间距


立面示意图


立面示意图



I    4.2防火间距 -

图集号

12J814

|∣曾和中L恢对I胡液丨优添I设计I焦真曾丨必京

4H5


4.2.6图示2


27



术语 耐火等级和平面布置建筑构造救援设施灭火设施 和排烟 总则 分类和 鞏面布局 防火分隔和一安全疏散和 消防给水和 供暖通风





4∙2.7汽车库、修车库、停车场与可燃材料露天、半:露天堆场的防火间距不应小于表4. 2. 7的规定。【图示】 表4. 2. 7汽车库、修车库、停车场与可燃材料露天、半露天堆场的防火间距m)


名称

总容量

汽车库、修车库

停车场

一、二级

三级

稻草、宏秸、芦苇等 t)

10-5000 5001IoOoO 10001-20000

15

20

25

20

25

30

15

20

25

棉麻、毛、化纤、百货t)

10—500 501~1000 IooI5000

10

15

20

15

20

25

IT"

15

20

煤和焦炭       t)

Γδδ^^δbδ~

>5000

6

8

8

10

6

8

粮食

筒仓⑴

IO~5OOO 5001~ 20000

W

15

^

20

10

15

席穴囤(t)

10-5000

500120000

"75 20

20

25

"^15

20

木材等可燃材料   m3)

50IOOO IOOIIOOoo

W

15

15

20

10

15


4.2.8汽车库、修车库、停车场与燃气调压站、液化石油气的瓶装供应站的防火间距,应符合现行国家标准《城镇燃气设计规范》GB 50028的有关规定.

4.2.9汽车库、修车库、停车场与石油库、汽车加油加气站的防火间距•应符合现行国家标准《石油库设计规范》GB 50074和《汽车 加油加气站设计与施工规范》GB 5Q156的有关规定。       ^^■,—r j j. —二一一 一 -也—一 .


4. 2防火间距一

图集号

12J814

审核

曾本I至上

胸[期波丨玉稽I设计I焦算曾I必孕

4-16


28


4.2.10停车场的汽车宜分组停放,每组的停车数量不宜大于50辆,组之冋的防火间距不应小于6m.【图示】


总术

则语


组与组之间的防火间距不应小于6oι


停车场的汽车宜分组停放,每组停车的数量不宜胡过50


分酎

翁筹


i


>6m



5


賤和 平平 亩面 布布 周置


ʌ



ʌ




∖AMMMW



mwwwwwwwwww≡



停车场平面示意图


2. IO图示


____4. 2防火间距

图集号

12J814

审核

WL恢研胡汶r⅞⅛或计悟冀曾i

4-17



29


术语 耐火等级和平面布S建筑构造救援设施灭火设施 和排烟 总则 分类和 慈平面布届一防火分隔和一安全疏散和消防给水和 供暖通风



30


4.2.11屋面停车区域当建筑其他部分或相邻其他建筑物的防火间距,应按地面停车场与建筑的防火间距确定。【图示】



屋面停车区域



叱斑^≡ ^≡

^≡ Tffl ^≡ ^æ



]    >6m

,一、二级耐火等级

[ Xm

,.三级耐火等级

[   >10a

,四级耐火等级


立面示意图


立面示意图


4.2 Il图示



防火间距

图集号

12J814

m曾杰IW上版对]胡读I』?& I设计I焦翼曾I

4-18



4.3消防车道                                                                    则语

4.3.1汽车库、渥车库周围应设置消防车道。                                                  "1 咽 -

4.3.2消防车道的设置应符合下列要求:                                                  . F 分午

1N类汽车库和修乍库以外,消防车道应为环形:当设置环形车道有困难时,可沿建筑物的一个长边和另一边设置;【图示1】       霏等

2尽头式消防车道应设置回车道或回车场,回午场的面积不应小于12mX12m;【图示2

3消防车道的宽度不应小于4m。                                                         葬.

4∙3∙3穿过汽车库、修车库、停车场的消防车道,其净空高度和逢宽度均不应小于4则当消防车道上空遇有障碍物时,路面与障碍       ≡≡

物豐轡SSSt⅛J吧―■  ,—   】- Q …Jtttir局豈


IV类汽车库和修车库以外,消防车道应为环形




,冃T 防贪

杰施


消防车道可利用交通道路


总平面示意图


■ 3.2图示1


和排烟 供暖通风



4. 3消防车道


I审核I曾杰 亜丄I校对I朗波丨7TI设计I焦*曾I j


图集号


12J814


4-19

31



总则一分类和总平面布



术语 耐火等级和平面布




口条文说明-摘录B 4. 3. 2本条是根据《建筑设计防火规范》GB50016关于消防 车通道的有关规定制定的.目前我国消防车的宽度大都不知过2∙ 5a,消防车道 的宽度不小于布是按单行线考虑的,许多火灾实践证明,设置宽度不小于4m的消 防车道,对消防车能维顺利迅速到达火场扑救起着十分重要的作用.回车道或 回车场的规定是根据消防车回转需要而要求的.各地也可根据当地消防车的实 际需要确定回转的半径和回车场的面积.


建筑构造救援设施灭火设施 和排烟 防火分隔和 安全疏散和 消防给水和供暖通风



平面示意图

4. 3. 2图示2


.障碍物



立面示意图

4. 3. 3图示


电气



4. 3消防车道

用集号

12J814

审枝

曾木IWX I枝矶胡波I优虐岡计I両曾I

4-20


32



5防火分隔和建筑构造

5.1防火分隔



51.1汽车库防火分区的最大允许建筑面积应符合表5. 1.1的规定e其中,敞开式、错层式、斜楼板式汽车库【图示1】的上下连


通层面积应疊加计算,每个防火分区的最大允许建筑面积不应大于表5 1 1规定的2. O倍:室内有车道且有人员停留的机械式汽车 库,其防火分区最大允许建筑面积应按表5, 1.1的规定减少35K【图示2

5. 1. 1汽车库防火分区的最大允许建筑面积m2.


耐火等级_____

单层汽车库

多层汽车库、半地下停车库

地下汽车库、高层汽车库

一、二级______

3000

2500

2000

Ξ^

IOOO

不允许

不允许


注:除本規范另有規定外,防火分区之间应系用符合本规花规定的防火墙、防火卷帘等分隔.


敞开式、错层式、斜楼板式汽车库的上下连通层面积应叠加计算,每个防火分区的最大允许建筑面积不应大于表5. 1.1规定的2. O




错层式汽车库


散开式、错层式、斜楼板式汽车库汽车库 防火分区最大允许建筑面积m2)


耐火等级

单层汽车库

多层汽车库、 半地下停车库

地下汽车库, 高层汽车库

一、二级

6000

5000

4000

2000

不允许

不允许



分类和 总平面布局




安全疏散和消防给水和供暖通风



5.1防火分隔

图集号

12J814

审核曾杰

I M1切波I索溫I设计像冀曾

5-1


33




术语-耐火等级和平面右置1^^^l 救援设施一灭火设施一和排烟 总则 分类和一总平面布局 防火分Bl和 安全疏散和一消防给水和-供暖通风




5.1.2设置自动灭火系统的汽车库,其每个防火分区的最大允许建筑面积不应大于本规范第5.1.1条规定的2.0倍。【图示】


室内有车道且有人员停留的机械式汽车库,其防 火分区最大允许建筑面积应按本表的规定减少35%



剖面示意图


室内有车道且有人员停留的机械式汽车库 防火分区最大允许座筑面积m2


耐火等级

单层汽车库

多层汽车库、

半地下停车库

地下汽车库、 高层汽车库

一、二级

Ii^

1625

BOO

三级

650

不允许

一 不允许


5. 1.1图示2


34



设置自动灭火系统的汽车库, 每个防火分区的最大允许建筑面积m2


耐火等级

单层汽车库

多层汽车库

地下汽车库、 高层汽车库

一、二级

6000

5000

4000

2000

不允许

不允许 •


5. I. 2图示


5. 1防火分隔

瞰号

12J814

市核I曹杰Iwx I枝矶胡法T⅛感 假计]蕉曾IXi子'

5-2



5 13P无车道且无人员停留的机械式汽车库,应符合下列规定;

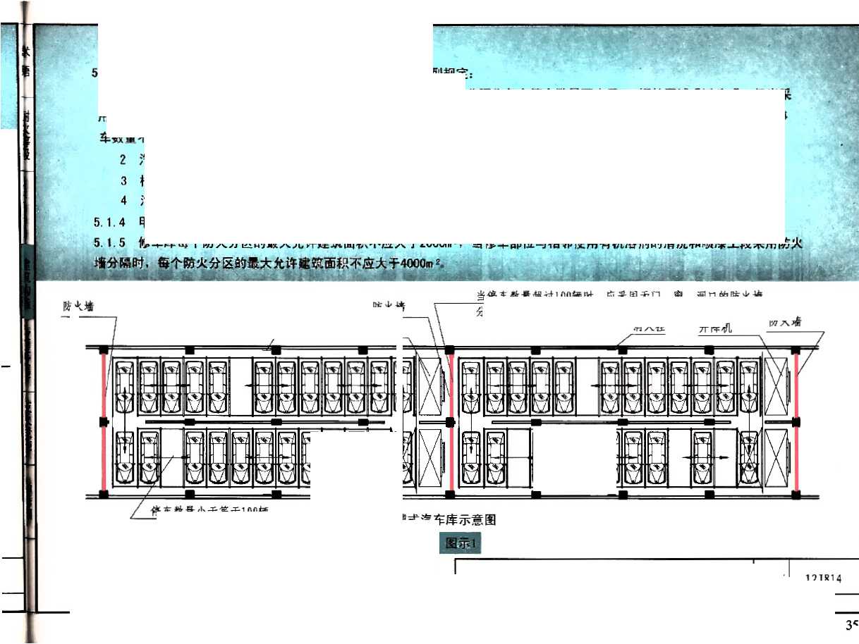
1当,车数量超过100辆时,应采用无门、窗、洞口的防火墙分隔为多个停车数量不大于100辆的区域[图示1】,但当采 用防火隔墙和耐火极限不低于1. OOh的不燃性楼板分隔成多个停车单元,且停车单元内的停车数量不大于3辆时,应分隔为停 车数量不大于300辆的区域:【图示2】【图示3]

汽车库内应设置火灾自动报警系统和自动喷水灭火系统,自动喷水灭火系统应选用快速响应喷头: 楼梯间及停车区的检修通道上应设置室内消火栓;

汽车库内应设置排烟设施,排烟口应设置在运输车辆的通道顶部。

甲、乙类物品运输车的汽车库、修车库,每个防火分区的最大允许建筑面积不应大于50Om 2

修车库每个防火分区的最大允许建筑面积不应大于2000m2,当修车部位与相邻使用有机溶剂的清洗和喷漆工段采用防火


历火域


防火墙


消火栓


升降机


当停车数量超过100辆时,应果用无门、窗、洞口的防火墙

分隔为多个停车数量不大于100辆的区域            U

消火栓 升降机 防火墙


X




停车数置小于等于IDo


机械式汽车库示意图


5 1.3


[注释】:此图例为水平循环汽车库.有关水平循环汽车库技术可参见国标 图集08J927-2《机械式汽车库建筑构造》.


5.1防火分隔     -

图集号

审核I曾杰

gI枝矶胡波17初噌I设计I青淳曾


12J8M


5-3


35


总术 则语








术语 总则



耐火等级 分类和



S筑构造 救援设施 灭火设施 和排烟 一总平面布局一防火分隔和 安全疏散和一消防给水和一供暖通风



电气



当采用防火隔墙耐火极限不低于LOOh的不燃性楼板分隔成多个停车单元, 且停车单元内的府数量不大于3辆时,应分隔为停车数量不大于300辆的区域


乙级防火门



管理室

出入口


管理室

出入口



乙级防火「


消火检


36


出入口


出入口


检修通道








撤运堆垛机


搬运堆垛机



\检修通道


机械式立体汽车库出入口层平面示童图


[注释]:此图例为巷道堆垛汽车库.有关巷道堆垛汽车库技术可参见国标 图集08J927-2《机械式汽车库瘦筑构造》•


5 1防火分隔

图集号

12J814

申可管杰I*I枝对13 1融底欣计I焦真曾]^^

"7~


.


火灾自动报警系统


排烟口


自动喷水


灭火系统


检修通道


出入口

Oo



耐火极限不低于1. Oh 的不燃性楼板


搬运堆垛机



检修通道


1-1剖面图

5. 1 3图示3


术语 耐火等级和平面布置建筑构造救援设施灭火设施 和排熠 总则 分类和 总平面布局8防火分R和一安全琉散和消防给水相 供暖通风



5.1防火分隔

图集号

12J814

审核「兽杰IWX I枚对I胡波I不也收吊焦翼曾丨兔辺

~1~

5≡5



37




术语 耐火等级和平面布置建筑构造救援设施灭火设施 和挪雉 总则 分类和 总平面布局舫火分隔和安全疏散和消防给水和 供暖通风



L 5.1.6汽车库、修车库与其他建筑物合建时,应符合下列规定:

1当贴邻建造时.应采用防火墙隔开:【图示1

2设在建筑物内的汽车库(包括屋顶停车场)、修车库与其他部位之间,应采用防火墙和耐火极限不低于2∙OOh的不燃性楼板分隔;【图示2

3汽车库、修车库的外墙门、洞口的上方,应设置耐火极限不低于1.0Oh、宽度不小于1.0m、怅度不小于开口宽度的不燃性防火挑檐:【图示3】 絵 4汽车库、修车库的外墙上、下层开口之间墙的高度,不应小于1.2.或设置耐火极限不低于LoOh、宽度不小于LOii的不燃性防火挑槽。


[图示4]


38




汽车库、修车库贴邻其他建网 物时,必须采用防火墙隔开∖


汽车库 修车库



a

A



其他建筑物


设在建筑物内的汽车库(包括屋顶的汽车库)、修车库 与其他部位之同,应采用防火墙和耐火极限不低于2. ODh 的不終性楼板分隔




剖面示意图

5. ■ 6图示I



剖面示意图


5.1.6图示2



开口宽度L 室内「


建筑外墙


\ 防火挑檐


≡>L


平面示意图


-ɪɪ


ɪl


汽车库、修车库的外墙门、洞口的上方应设置耐火


袱扱隈不低"OOh的不燃性楼板驚靠誥器黑露直上度不小于


/ 防火墙分隔


建筑其他部分


汽车库

修车库


剖面示意图



5.1防火分隔

图集号

12J814

审岗曾杰I Mh■ I校対I胡汶丨南癌I设计I焦真曾I地函

5-6


术语 耐火等级和平面布置,建策潮飓L救援设施灭火设施一和排烟 总则 分类和总平面布局防火分亂安全疏散和消防给水和供暖通风




39


总则



分类和



总平面布局



安全疏散和一消防给水和一供暖通风




电气



40


5.1∙9 *附设在汽车库、修车库内的消防控制室、自动灭火系统的设备室、消防水泵房和排烟、通风空气调节机房等,应采用防火隔墙 和耐火极限不低于L50h的不燃性楼板相互隔开或与相邻部位分隔。【图示】


汽车库


修车库


2, 消防控制室


Φ



平面示意图


汽车库

修车库

甲级防火门  F火隔


自动灭火系统的设备室 消防水泵房

排烟、通风空气调节机房


平面示意图


5.1.9图示



5.1防火分隔

图集号

12J814

⅜⅜g ⅞

豆 恢对1胡波I力造I设计悟糞曾I /⅛

5-8



术语 总则



5.2防火墙、防火隔墙和防火卷帘

5 2.1防火墙应直接设置在建筑的基础或框架、梁等承重结构上,権架、梁等承重结构的耐火极限不应低于防火墙的耐火 极限。防火墙、防火隔墙应从楼地面基层隔断至梁、楼板或屋面结构层的底面,【图示】

5. 2. 2当汽军库、修不库的屋面板为不燃材料口耐火极限不低于0∙50h时,防火墙、防火隔墙可砌至屋面基层的底部。【图示】 5.2.3三级耐火等级汽车库、修车库的防火墙、防火隔培应截断其屋顶结构,并应高出其不燃性屋面不小于0∙ 4m高出可燃 性或难燃性屋面不小于0.5πu【图示】                                      .



41


耐火等级和平面布置 分类和 总平面布局




安全疏散和消防给水和供暖通风



救援设施



灭火设施



和排烟



电气



术语 耐火等级和平面布W 总则 分类和 总平面布局



i____



5.2.4・防火墙不宜设在汽车库、修车库的内转角处【图示1】.当设在转角处时,内转角处两侧墙上的门、窗、洞口之间的水平距离 不应小于4id【图示2】。防火墙两侧的门、窗、洞口之间最近边缘的水平距离不应小于2m【图示3】。当防火墙两侧设置固定乙级防火窗

.时,可不受距离的限制。【图示4


室内


防火墙室内



防火培不宜设在汽车库、 修车库的内转角处


防火墙



室外


灭火设施 和排烟 电气 安全疏散和消防给水和供暖通风 含



救援设施




>2«

/防火墙两侧的门,窗、嗣口 之间最近边缘的水平距离

5. 2. 4图示3



5.2防火墙、防火隔墙和防火卷帘

图集号

12J814

审研曹杰I*I校对Ii⅛ I编也I设计快Krl^^

5-10


42


5.2.5可燃气体和申、乙类液体管道严禁穿过防火墙【图示1】,防火墙内不应设置排气道。防火墙或防火隔墙上不应设置通风孔道, 也不宜穿过其他管道(线);当管道(线)穿过防火墙或防火隔墙时,应采用防火封堵材料将孔洞周围的空隙紧密填塞【图示2L -


术语 总则




可燃气体和甲、 乙类液体管道\


防火墙




通风孔道

\


防火墙或




JfUiMtlUHl

I ■▲■•■•■•■ ・,>■*



防火



/1S防火阀



方火隔修/




当管道(统)穿过防火墙更7


防火隔墙时,应采用防火封墙、 材料将孔洞周围的空隙紧密填塞


防火墙或防火隔抵/




図俩




其他管道(线)


5. 2 5图示3


气流


ι,m


[注释】

风管穿过防火隔墙、楼板和防火墙 时,穿越处风管上的防火阀、排烟防火 阀两侧各2, Om范围内的风管应采用耐火 风管或风管外壁应采取防火保护措施, 且耐火极限不应低于该防火分隔体的耐 火极限.


耐火等级和平面布M建筑构造 分类和一总平面布局防火分隔和安全疏散和消防给水和一供暖通风



救援设施-灭火设施 和排烟



5.2防火墙、防火隔墙和防火卷帘图集号


审核I曾为 降工I校对I胡波7Al设计I焦算曾丨迫,


12J814


5-11


43


电气



术语 耐火等级一和平面布置 总则一分类和一总平面布局





救援设施 安全疏散和



灭火设施 消防给水和



和排烟 供暖通风



电气



44



5.2.6防火墙或防火隔墙上不宜开设门、窗、洞口【图示I】,当必须开设时,应设置甲级防火门、窗或耐火极限不低于30Oh的防 火卷帘。【图示2


5.2.7设置在车道上的防火卷帘的耐火极限,应符合现行国家标准《门和卷帘耐火试验方法》GB/T 7633有关耐火完整性的判定标 准;设置在停车区域上的防火卷帘的耐火极限,应符合现行国家标准《门和卷帘耐火试验方法》GB/T 7633有关耐火完整性和耐火隔


热性的判定标准。【图示】





防火堵或防火隔墙


5. 2. 6图示1


防火卷帘的耐火极限不应低于3. OOh


H颦卿繭3


O-—



设置在停车区域上的防火卷帘的耐火 极限,应符合现行国家拣准《门和卷 帘耐火试験方法》GB/T 7633有关耐 火完整性和耐火隔热性的判定标准




_______


甲级防火门


防火墙或防火隔墙 甲级防火窗


5. 2. 6图示2


耐火极限不低于3. OOh的防火卷帘



防火卷帝的耐火极限不应低于3. OOh


m二,


车位


5.2.7图示


-O


车道




设置在车道上的防火卷帘的耐火 极限,应符合现行国家标准《门 和卷帘耐火试验方法》CB/T 7633 有关耐火完整性的判定标准


5. 2防火墙、防火隔墙和防火卷帘图集号


审核曾杰丨中丄I校对I胡波RnI设计I焦宴曾I/⅛


12J814


5-12


5.3电梯井、管道井和其他防火构造

5.3.1电梯井、管道井、电缆井和楼梯间应分别独立设置。管道井、电缆井的井壁应采用不燃材料,且耐火极限不应低于1. OOh 电梯井的井壁应采用不燃材料,且耐火极限不应低于2.0Oh.【图示】

5. 3. 2电缆井、管道井应在每层楼板处采用不燃材料或防火封堵材料进行分隔,且分隔后的耐火极限不应低于楼板的耐火极限, 井壁上的检查门应采用丙级防火门。【图示】



岁缆井、管道井应在每层楼板处采用不燃 [材料或防火封堵材料进行分隔,且分瓦 后的耐火极限不应低于楼板的耐火极限


管道井


电梯井、



电堂井


7



电缆井


井壁上的检查门应采用丙级防火门



管道井、电缆井的井壁应果用不燃



和楼梯问应分别独立设置

平面示意图


材料,且耐火极限不应低于LoOh



管道井 电线井


剖面示意图


5.3.2 BB


术语 耐火等级和平面布置建筑构造救援设施 总则 分类和总平面布局-防火赛和-安全疏散和



灭火设施 和排烟 消防给水和供暖通风



5. 3电梯井、管道井和其他防火构造

国集号

12J814

麻|曾杰1 2I校对I胡波丨予法 收计I侏翼曹「成京

—页

5-13




45


术语 耐火等级和平面布置:建第构遠救援设施灭火设施 和排烟 总则 分类和 总平面布局一舫火分18和-安全疏散和消防给水和 供暖通风



5.3∙3除敞开式汽车库、斜楼板式汽车库外,其他汽车库内的汽车坡道两侧应采用防火墙与停车区隔开,坡道的出入口应采用水幕、防火 卷帘或甲级防火门等与停车区隔开【图示1】:但当汽车库和汽车坡道上均设置自动灭火系统时,坡道的出入口可不设置水幕、防火卷帘或 甲级防火门.【用示2

5∙3∙4 H车库、修车库的内部装修,应符合现行国家标准"建筑内部装修设计防火规范》GB 50222的有关規定. —∙⅛⅛.j




5.3电梯井、管道井和其他防火构造联号


师低1#l恢对I胡波1汆浪没计焦買曾丨〃页


46


12J814


5-14


6安全疏散和救援设施


6.0.1汽车库、修车库的人员安全出口和汽车疏散出口应分开设置[图示1】。设置在工业与民用建筑内的汽车库,其车辆疏散出 口应与其他场所的人员安全出口分开设置。【图示2


L 6.0∙2除室内无车道且无人员停留的机械式汽车库外,汽车库、修车库内每个防火分区的人员安全出口不应少于2个,IV类汽车库



WIV类约修车库疋设置1个。【四不】


毎个防火分区的人员安全出口不应少于两个, (疏散楼梯应满足6. B. 3条要求)



汽车疏散出口


人员安全出口 ʌ


^1y θ


平面示意图

■ Q. 1 18示£


汽车库《修车库)


汽车库


工业与民用建筑7


I ■ 1


E


平面示意图


W类汽东厚 "uι. W类嫉%车碑)


U楚岂率库和∏h IV應修车摩可设一小~


平面示意图


其他部分的人员安

全出口分开设置   平面示意图


6 0. 2图示


6 0|图示2


总术 则语




寵灭 艙


和 排 烟


6安全疏散和救援设施

图臬号

12J814

审核IiI *工「校对I4丨彼研用窜冀司二^^




47



术语 耐火等级和平面布置 建筑构造■救援设眼灭火设施 和排烟 总则 分类和总平面布局防火分隔和安全雷和消防给水和供暖通风



6. 0.3 汽车库、修车库的疏散楼梯应符合下列规定:

1建筑高度大于32m的高层汽车库、室内地面与室外出入口地坪的高差大于Iom的地下汽车库应采用防烟楼梯间【图示1】, 其他汽车库、修车库应采用封闭楼梯间;【图示2


2楼梯间和前室的门应采用乙级防火门,并应向疏散方向开启;

3疏散楼梯的宽度不应小于Llin





-6安全疏散和救援设施

困集号

12J814

审核I曾杰IVL收对I俊波Fliii I设计]焦算曾I

6-2


48



6.0.4除室内无车道且无人员停留的机械式汽车库外,建筑高度大于32m的汽车库应设置消防电梯。消防电梯的设置应符合现行国家 准《建筑设计防火规范》GB 50016的有关规定。【图示】       .    . 一 ,



术语 耐火等级和平面布S 总则 分类和 总平面布局



r




建筑构造 防火分隔和





救援设施



灭火设施 消防给水和



/消防电梯


和排烟 供暖通风



高层车库平面示意图


6 0 4图示


6安全疏散和救援设施


.......... 电

图集号12J814     -


审核I曾杰I号丄版对I胡波[7肘倉I设计谁算6-3


49





6.0.5室外疏散楼梯可采用金属楼梯,并应符合下列规定:【图示】

1倾斜角度不应大于45° ,栏杆扶手的高度不应小于L 1m

2每层楼梯平台应采用耐火极限不低于L Ooh的不燃材料制作;

3在室外楼梯周围2m范围内的墙面上,不应开设除疏散门外的其他门、窗、洞口

4通向室外楼梯的门应采用乙级防火门。


高层汽车库的室外楼梯,其、 疏散门应采用乙级防火门


外 室





50




ɪ^



室外的疏散楼梯\


可采用金属楼梯



^≡









I


高层汽车库平面京at


605图示


立面示意图

6手全疏散和救援设施  -

审核I曾杰I号上I校研胡液I力浪I设计]焦州I卫及


图集号12J814




术语 总则



6.0.6汽车库室内任一点至最近人员安全出口的琉散距离不应大于45m【图示1】,当设置自动灭火系统时,其距寓不应大于60m【图示2】,

对于单层或设置在建筑首层的汽车库,室内任一点至室外最近出口的疏散距离不应大于60m。【图示3】                  ..



汽车库


•u



平面示意图


β,,6图示1



酎火等级 分类和



和平面布置 总平面布局



建筑构造 防火分隔和



灭火设施 和排烟 消防给水和供暖通风



6安全疏散和救援设施

雎号

12J814

审阂曽杰IMK I校对I胡波I加添I设计I焦冀曾I由冢


电气一



51


术语 耐火等级和平面布置建筑构造救援養灭火设施 和排烟 总则 分类和 总平面布局防火分隔和安全蔭»和消防给水和供暖通风





6.0.7与住宅地下室相连通的地下汽车库、半地下汽车库,人员疏散可借用住宅部分的疏散楼樣【图示1】;当不能直接进入住宅部分 的疏散楼梯间时,应在汽车库与住宅部分的疏散楼梯之间设置连通走道,走道应采用防火隔墙分隔.汽车库开向该走道的门均应采用


甲级防火门/图示2


52


■—




6手全疏散和救援设施   图集号12J814

审核I曾杰I WX恢对I胡波HRI设计I集翼曾I j⅛M 页 —k



术语 总则



耐火等级和平面布置建筑构造 O 分类和 总平面布局防火分隔和,安全收





6.0.7 0B2

K条文说明-摘录B在大型住宅小区中,建筑同的独立大型地下、半地下汽车库均有地下通道与住宅相通,如技地下汽车的防火分区内设置疏散楼梯,将使 小区内地面的道路和绿化受到较大影响.所以,允许利用地下汽车库通向住宅的楼梯间作为汽车库的疏散楼梯是符合实际的,这样既可以节省投资,同时 在火灾情况下,人员的琉散路径也与人们平时的行走膝径相一致.

该走道的设置类似于楼梯间的扩大甫室,同时,考虑到汽车库与住宅地下室之间分别属于不同防火分区,所以,连通门采用甲级防火门.


S灭火设施 Ma和消防给水和





和排烟 供暖通风



6安全疏散和救援设施

IS集号

12J814

审核I*杰丨豆工I校对I胡波I融添 恢计IJI必子

6-7    -


电气



53


术语 总则



6.0.8室内无车道且无人员停留的机械式汽车库可不设置人员安全出口,但应按下列规定设置供灭火救援用的楼梯间;


耐火等级和平面布置 建筑构造N屈援设®:灭火设施一和排烟 分类和总平面布局防火分隔和安全疏散和消防给水和一供暖通风



1每个停车区域当停车数量大于100辆时,应至少设置]个楼梯间;【图示】

2楼梯间与停车区域之间应采用防火隔墙进行分隔,楼梯间的门应采用乙级防火门;

3楼梯的净宽不应小于0.9m.


>Q.9aι




机械式汽车库平面示意图


电气



6. 0. 8图示


54


[注释]:此图例为水平循环汽车库.有关水平循环汽车库技术可参见国标 图集08J927-2《机械式汽车库建筑构造》.


6安全疏散和救援设施


审核互里豆 I校対I胡波11貯版 I设计I焦糞曾I



图集号


12J814

6-8


⅜⅜-I4i訣軍一里踵雷 -*一+ 一 IIIMWIMILEm



6∙0∙9除本规范另有规定外,汽车库、修车库的汽车琉敞出口总数不应少于2个,且应分做布t图示1


除本规范另有规定外,汽车库,修车库的汽车 疏散出口总数不应少于2个,且应分散布置


除本规范另有规定外,汽车库.修车库的汽车


术语 总则





WmWVV MW



IL


汽车库:


1


I数勺殴顎≡ B MMr后屯刃m



1


平面示意图


Il




耐火等级和平面布H建筑构造 分类和 总平面布局防火分隔和




灭火设施 消防给水和



6 0 9图示


和排烟 供暖通风



6安全疏散和救援设施

图集号

12J814

码[杰IwI校对13I力涙I设讦I"I电仔

6-9


55


术语 耐火等级和平面布置 建筑构造 救援设施「灭火设施 和排烟 总则 分类和 总平面布局防火分隔和安全疏散和消防给水和供暖通风



6.0.10当符令下列条件之一时,汽车库、修车库的汽车疏散出口可设置1个:

I W类汽车库;【图示1

2设置双车道汽车疏散出口的ΓΠ类地上汽车库;【图示2

3设置双车道汽车疏散出口、停车数量小于或等于IOO辆且建筑面积小于4000m 2的地下或半地下汽车库:【图示3

4 IIm, IV类修车庵。


IV类汽车库(《50辆,面积<2000m2)


In类地上汽车库51 ~ 15 0辆,面积2001 ~ 5 0 00/)


56


汽车疏散出口可设置1


汽车疏散出口可设置1


停车数量小于或等于100辆且建筑面积小于

4(M)OiI2的地下或半地下汽车库



IV类汽车库 MMWWffl


平面示意图


6.a.i0 ≡^τ



\ .地3⅛⅛地下汽车库



PpP4





-个双车遒汽车疏散口


一个双车道汽车疏散口


平面示意图


平面示意图


6. 0.10 图示2


♦ 0X0團示3


6安全疏散和救援设施


I安杰I WX I校对I甄波R財鼠I设计I版曾[


图第号



12J814


6-10




术语 总则



6.0.11 IIr类地上汽车库和停车数量大于100辆的地下、半地下汽车阵,当采用错层或斜楼板式,坡道为双车道且设置自动喷水灭 火系统时,其首层或地下一层至室外的汽车疏散出口不应少于2个,汽车库内其他楼层的汽车疏放坡道可设置1个。【图示1】【图示2】   ■


地下一层琉散出口

直通室外地面)

\       (装道通首层出口)


汽车库内的其他楼层汽车 琉散坡道可设置1


地下一层琉散出口










M 。…" - J 1∙∙∙∙∙, <





III类斜楼板式 汽车库地下一层平面示意图


疏散出口         琉散出口 \

1II类斜楼板式 汽车库首层平面示童图




疏鱼       出口

III类错层式 汽车库首层平面示意图



III类错层式 汽车库其他层平面示意图



6. 0. 11 图示 1


6.0.11 图示 2


错层式汽车库立体示意图


斜楼板式汽车库立体示意图


6安全疏散和救援设施

图集号

12J814

Iq杰]wɪ I枝研胡哀丨南浪I没甘1焦奥曾I必步


57


耐火等级和平面布责 分类和 总平面布局



建筑构造 防火分隔和




灭火设施 消防给水和



和排烟 供暖通风



电气



术语 耐火等级和平面布置建筑构造-总则 分类和一总平面布局一防火分隔和一



6.0.12 W类汽车库设置汽车坡道有困难时,可采用汽车专用升降机作汽车硫散出口,升降机的数量不应少于2台【图示1】,停车数量


少于25辆时,可设置1台。【图示2






灭火设施 和排烟 消防给水和一供暖通风 隹-



58





S


IV类汽车库<50辆车,面积<2000m2)设置汽车坡道有困难时,可采用 汽车专用升降机作汽车疏散出口,汽车专用升降机的数量不应少于2台__





停车敷量少于25辆可设置1台 京车专用升降机作汽车琉散出口


总旧 平P ≡5



汽车专用升降机



平面TF意图

6∙0∙2图示1




汽车库 □

i


1台汽车专用升降机


平面示意图

6. 0. 12图示


6安全疏散和救援设施-

图集号

12J814

國曾杰丨#l恢对!胡31南混I设计I焦翼肌_^

6-12




ig^等¾扣巫二跳6貰一一竟勾言 一 上岂书 IIUL訂XP=可 isA'分膈租



6. 0.13汽车疏散坡道的净宽度,单车道不应小于3.0m,双车道不应小于5∙ 5m。【图示】

6.0.14除室内无车道且无人员停留的机械式汽车库外,相邻两个汽车疏散出口之间的水平距离不应小于Iom【图示1上毗翎设 置的两个汽车坡道应采用防火隔堵分隔。【图示2



总术 则语




lRk.s s⅛⅛ -消防给水和一供暖通风





R条文说明-摘录a为了确保坡道出口的安全,对两个出口之间 的距离作了限制,Ioal的问距是考虑平时确保车羅安全转弯进出 的需要,一旦发生火灾也为消防灭火双向扑救创造基本的条件. 但两个车道相毗邻时,如剪刀式等,为保证车道的安全,要求 车道之问应设防火墙予以分隔。



两个汽车坡道毗邻设査平面示意图

6.0.13 图示2


6安全疏散和救援设施

图集号

12J814

审核

ffɪf^I校对I胡波I力滝I设计悟真曾I

6-13


59


耐火等级和平面布置建筑构造»-■援设旅灭火设施 分类和 总平面布局防火分隔和 安全%«和消防给水和



和排烟 供暖通风



Λ≈


术语 耐火等级和平面布置建筑构造救援设施灭火设施 和排烟 总则 分类和总平面布局防火分隔和安全養和消防给水和供暖通风



6. O. 15停车场的汽车疏散出口不应少于2个【图示1】:停车数量不大于50辆时,可设置1个。【图示2

6.0.16除室内无车道且无人员停留的机械式汽车库外,汽车库内汽车之间和汽车与墙、柱之间的水平距离,不应小于表6∙0.16的规定。


6. 0.16汽车之间和汽车与墙、柱之间的水平距离m)


项目

___________________ 汽车尺寸In)

车长W6 或 乍宽《1.8

6V车长W8

1.8V车宽2.2

8V车长W12

2.2V车宽^2.5

大长›12 或 乍宽>2. 5

汽车与汽车

0.5

0.7

0.8

0.9

汽车与墙

0.5

0.5

0.5

0.5

汽车与柱

0.3

0.3

0.4

0.4


注:当墙、柱外有暖气片等突出物时,汽车与墙、柱之间的水平距离塔从其凸出部分外级算起.




60



、停车场的汽车疏散出口不应少于2I                      &仇M围示2


停车场平面示意图(大于50辆)

6.0. 14 图示 1

6金全疏散和救援设施、 ;

联号

12J814

I曾杰Tl画胡沒丨"W&画焦翼曾[方矛

6-14



M消防给水

7. Ll汽车库、修车库、停乍场应设置消防给水系统。消防给水可由市政给水管道、消防水池或天然水源供给。利用天然水源时,应设 置可雜的取水设旅和通向天然水源的道路,并应在枯水期最低水位时,确保消防用水量。


7.1.2


2


3


符合下列条件之一的汽车库、修车库、停车场,可不设置消防给水系统:

耐火等级为一、二级且停车数量不大于5辆的汽乍库:

耐火等级为--、二级的W类修车库;

停车数量不大于5辆的停车场。

当室外消防给水采用高压或临时高压给水系统时,汽车库、修车库、停车场消防给水管道内的压力应保证在消防用水量达到最大


时,最不利点水枪的充实水柱不小Flon);当室外消防给水采用低压给水系统时,消防给水管道内的压力应保证灭火时最不利点消火栓的 水压不小于0∙ LMPM从室外地面算起)。



7.1-4汽车库、修车库的消防用水量应按室内、外消防用水量之和计算C其中,汽车库、修车库内设置消火栓、自动喷水、泡沫等灭


火系统时,其室内消防用水胃应按需要同时开启的灭火系统用水量之和计算。

7∙1 5除本规范另有规定外,汽车库、修车库、停车场应设置室外消火栓系统,其室外消防用水量应按消防用水量最大的一座计算, 并应符合下列规定:

1 I、【I类汽车库、修车库、停车场,不应小于20L/S

2 Ill类汽车库、修车库、停车场,不应小于15L/S

3 IV类汽车库、修车库、停车场,不应小于10L/s


耐火等级一和平面布置建筑构造,救援设施 分类和总平面布局防火分隔和安全疏散和







A<火设国和排』 消防给水和供暖通风



审核


7.1消防给水


图集号


12J814



曾杰wɪ I校对I胡波I初底I设计I魚翼曾



61


术语 耐火等级和平面布置建筑构造救援设施 灭火设施 和排烟 总则 分类和一总平面布局 防火分隔和一安全疏散和.消防给水»:供暖通风一



7.1∙6汽车丿身.修车库、停牟场的室外消防给水管道、室外消火栓、消防泵房的设置,应符合现行国家标准《消防给水及消火栓系 统技术规范》GB 50974的有关规定。

停军场的室外消火栓宜沿停车场周边设置,且距离最近一排汽车不宜小于7m【图示1】,距加油站或油库不宜小于15m【图示2】。

7.1.7室外消火栓的保护半径不应大于150ιn,在市政消火栓保护半径150In范围内的汽车库、修车库、停车场,市政消火栓可计入建筑 一室外消火栓的数量【图示】。.



7.1.6图示1


J .术m "-打七 ⅛⅛ 殁 一-,UKA∙-巾置-itl-59,UF;-;LtR ‘-,'m.〔 — lτζr 则 分类和 总平面布貝二跄纯分視43录能理*WSHM!S1住面^



_____7J消防给水

图集号

12J814

宙很曾杰I啃了

校对|胡波1小液I设计I焦翼曾

—页


62




7. 1.8除本规范另有规定外,汽车库、修车库应设置室内消火栓系统,其消防用水量应符合下列规定:

1 1II、川类汽车库及II【类修车库的用水量不应小于10L/S,系统管道内的压力应保证相邻两个消火栓的水枪充实水柱同时到 达室内任何部位;

2 Iv类汽车库及IlL IV类修车库的用水量不应小干5L∕s,系统管道内的压力应保证一个消火栓的水枪充实水柱到达室内任何部位。

7.1.9室内消火栓水枪的充实水柱不应小于IOK同从相邻室内消火栓的间距不应大于50m,高层汽车库和地下汽车库、半地下汽车库室 内消火栓的间距不应大于30m。【图示1

*j⅛窗^火检应设置在易于取用的明显地点,栓口距离地面宜寺L庙,其出水方向宜向下或与设置消火栓的墙面垂宜。【图示2




室内消火栓


]               CDn               ]

(高层汽车库和地下汽车库W 30πι)

□       □       □        □       □

□       □       □       □       口

室内消火栓

O       B       □       □       B-J

C

定   匸

L        C

平面示意图



月 易 M




出水方向与设置消火栓的墙面垂直


7 19图示2


总术 则语


分 类 和



和 排 烟


7∙1消防给水

图集号

12J814

申核

曾杰*L I校对I胡波I玄浩I设计1京算曾∣上




63


一 术语 耐火等级和平面布置建筑构造救援设施 灭火设施 和排烟

一 总则一分类和 总平面布局防火分隔和安全疏散和消防给水和供暖通风



电气




7. 1. 10汽车岸、修车库的室内消火栓数量超过IO个吋,室内消防管道应布置成环状,并应有两条进水管与室外管道相连接。

7.1.11室内消防管道应采用阀门分成若干独立段,每段内消火栓不应超过5个。高层汽车库内管道阀门的布置,应保证检修管道时关闭 的竖管不超过1根,当竖管超过4根时•,可关闭不相邻的2根。

7.1.12 4层以上的多层汽车库、高层汽车库和地下、半地F汽车库,其室内消防给水管网应设置水泵接合器,水泵接合器的数量应按室 内消防用水量计算确定,每个水泵接合器的流量应按10L/s15L/s计算。水泵接合器应设置明显的标志,并应设置在便于消防车停靠和 安全使用的地点,其周围15m40m范围内应设室外消火栓或消防水池。

7.1.13设置高压给水系统的汽车库、修车库,当能保证最不利点消火栓和自动喷水灭火系统等的水量和水压时,可不设置消防水箱。 设置临时高压消防给水系统的汽车库、修车库,应设置屋顶消防水箱,其容量不应小于12m 3,并应符合现行国家标准《消防给水及

消火栓系统技术规范》GB 50974的有关规定。消防用水与其他用水合用的水箱,应采取保证消防用水不作他用的技术措施。

7.1.14采用临时高压消防给水系统的汽军库、修车库,其消防水泵的控制应符合现行国家标准《消防给水及消火栓系统技术规范》GB 50974的有关规定C

7.1.15采用消防水池作为消防水源时,其有效容量应满足火灾延续时间内室内、外消防用水量之和的要求。

7.1.16火灾延续时间应按2. OOh计算,但自动喷水灭火系统可按LOOh计算,泡沫灭火系统可按0.5Oh计算。当室外给水管网能确保连续 补水时,消防水池的有效容量可减去火灾延续吋间内连续补充的水量。


7.1∙17供消防车取水的消防水池应设置取水口或取水井,其水深应保证消防车的消防水泵吸水高度不大于6限消防用水与其他用水共 用的水池,应采取保证消防用水不作他用的技术措施。严寒或寒冷地区的消防水池应采取防冻措施。


7.1消防给水

图集号

12J814

申核

1⅞1

L I校对I胡波丨衣施I设计I焦奠普I3

7-4


64



K 则吾


分? 齡


%



7.2自动灭火系统

7.2.1除敞开尤气车库、屋面停车场外•下列汽车库、修车库应设置自动灭火系统:

1 ILlIl类地上汽车库;                                                     r

2停车数大于10辆的地下、半地下汽车库;                                    /      '

3机械式汽车库;

4采用汽车专用升降机作汽车疏散出口的汽车库;

5 I类修车库。

7.2. 2F需要设竟自动火火系统的场所,除符合本规范第7. 2. 3条、第7. 2. 4条的规定可采用相应类型的灭火系统外,应采用自动喷 水灭火系统。

7.2.3下列汽车库、修车库宜采用泡沫-水喷淋系统,泡沫-水喷淋系统的设计应符合现行国家标准《泡沫灭火系统设计规范》GB 50151 的有关规定:

ɪ 1类地下、半地下汽车库:

2 1类修车库;

3停车数大于100辆的室内无车道且无人员停留的机械式汽车声.

7. 2.45、半地下汽年库可采用高倍数泡沫灭火系统。停车数量不大于50辆的室内无车道.无人员停留的机械式汽车库,可釆用二 氧化碳等气体灭火系统C高倍数泡沫灭火系统、-氧化碳等气体灭火系统的设计,应符合现行国家标准《泡沬灭火系统设计规范》GB 50151、《二氧化碳灭火系统设计规范》GB 50193和《气体灭火系统设计规范》GB 50370的有关规定。

7. 2.5环境温度低于4.C时间技短的非严寒或寒冷地区,可采用湿式白动喷水灭火系统,但应采取防冻措施C

7.2.6设置在汽乍库、修车库内的自动喷水灭火系统,其设计除应符合现行国家标准《自功喷水灭火系统设计规范》GB 50084的有关 规定外,喷头布置还应符合下列规定:

1应设置在汽车库停车位的上方或侧上方,对于机械式汽车库,尚应按停车的我车板分层布置,且应在喷头的上方设置集热板; 2错层式、斜楼板式汽车库的车道、坡道上方均应设置喷头。

7.2.7除室内无车道旦无人员停留的机械式汽车库外,汽车库、修车库、停车场均应配置灭火器。灭火器的配置设计应符合现行国家 《建筑灭火器配置设计规范》GB 50140的有关规定。

7.2自动喷水灭火系统



总术

则语


耐火等级和平面布≡建筑构造救援设施 分类和总平面布局防火分隔和安全琉散和



灾火设施 和排烟 消防给水和供暖通风




图集号121814



7-5


65



术语 ~ 耐火等级和平面布≡建筑构造一救援设施一灭火设施一和排 总则一分类和 总平面布局-■防火分隔和(安全疏散和一消防给水和 供暖通



66



8供暖、,通风和排烟


8.1供暖和通风


8. 1. 1

8.1.2


汽车库、修车库、停车场内不得采用明火取暖。

需要供暖的下列汽车库或修车库,应采用集中供暖方式;

甲、乙类物品运输车的汽车库;

IHIII类汽车库;

III类修车库。


8.1.3

车库内。



IV类汽车库,111IV类修车库,当集中供暖有困难时,可采用火墙供暖,但其炉门、节风门、除灰门不得设置在汽车库、修


B.I-4喷漆间、电瓶间均应设置独立的排气系统。乙块站的通风系统设计,应符合现行国家标准《乙块站设计规范》GB 50031的有 关规定。

S.1.5设置通风系统的汽车库,其通风系统宜独立设置。

8.1.6风管应采用不燃材料制作,且不应穿过防火墙、防火隔墙,当必须穿过时,除应符合本规范第5. 2. 5条的规定外,尚应符合下 列规定:

1应在穿过处设置防火阀,防火阀的动作温度宜为7OC

2位于防火墙、防火隔墙两侧各2m范围内的风管绝热材料应为不燃材料,


8-1供暖和通风


踝号


12J814


^ 校对柳放効盧设计像冀曾启 页 8-1






8. 2排烟 ■

8 2.1除敞开式汽车库、建筑面积小于IOoOm2的地下一层汽车库和修车库外,汽车库、修车库应设置排烟系统,并应划分防烟分区.

8.2.2防烟分区的建筑面积不宜大于2000M,且防烟分区不应跨越防火分区。防烟分区可采用挡烟垂壁、隔墙或从顶棚F突出不小于


术语 总则



0. 5m的梁划分。【图示】


,x^^


^^ιii^



汽车库,防烟分区的

建筑面积不宜大于2000m2


防烟分区不应跨越防火分区


顶梅

挡烟垂蟹


MMM

•、防火墙



≡≡VBM∣^^


÷




耐火等级和平面布置 建筑构造 救援设施-灭火设施 分类和 总平面布局一防火分隔和安全疏散和一消防给水和




8.2排烟           图集号12J814

n曾杰*L极对I胡浪丨优浪收计I縫晋11页丨8-2 -


67


电气一



术语 总则



耐火等级和平面布置建筑构造救援设施灭火设施 分类和总平面布局防火分隔和安全疏散和一消防给水和



豊烟 供暧通风



电气




8.2.3拌烟系统可采用自然排烟方式或机械拝烟方式。机械措烟系统可与人防、卫生等的排气、通风系统合用。【图示】 ⅛⅛a^≡^^


机械排烟的排烟匸



择烟管道





自然排烟方式


可开启窗户(自然排烟方式)


机械排烟方式


8.2.3图示


I术 剧语


避口 [


8.2排烟

图集号

12J814

审核I曾杰IVLI校对I产洩I南海I设计I献曾Lg

ɪ

8-3



当采用自然扑烟方式时,可采用手动排烟窗、自动排烟窗、孔洞等作为自然排烟口,并应符合下列规定:

1自然措烟口感总面积不应小于室内地面面积的2%

2自然排烟口应设置在外墙上方或随顶上,并应设置方便开启的装置;

3房间外墙上的排烟口(窗)宜沿外墙周长方向均匀分布,排烟口(窗)的下沿不应低于室内净高的1/2,并应沿何流方向开启.[图示】 825汽乍阵、修午库内每个防烟分区排烟风机的排烟量不应小F825的规定。

8. 2. 5汽车库、修车库内每个防烟分区排烟风机的排烟量


汽车库、修车库的净高 _______________(m)______________

汽车库、修车库的排烟中

<mVh)

汽车库、修车库的净高 (m)

汽车库、修车库的排烟量 (m Vh)

3.吸以下    —

30000

7.0

36000

4.0

31500

8.0

37500

5.0

33000

9.0

39000___________

6?0

34500

9.0以上

40500



一 术语 耐火等级和平面布置建筑构造 - 总则 分类和总平面布局防火分隔和



注:建筑空间净高位于表中两个高度之间的,按线性插值法取值。

8.2.6每个防烟分区应设置.排烟口,排烟口宜设在顶棚或靠近顶棚的墙面上。排烟匚I距该防烟分区内最远点的水平距高不应大于30m J图示】 827排姻风机可采用高心凤机或排烟轴流风机,井应保证28Oe时能连续工作30min

8.2.8在穿过不同防烟分区的排烟支管上应设置烟气温度大于280C时能自动关闭的排烟防火阀,排烟防火阀应联慎关闭相应的排烟风机。

8.2.9机械排烟管道的凤速,采用金属管道时不应大于20m/s采用内表面光滑的非金属材料风道时,不应大于15πVs。排烟口的风速不宜 大于IOm∕s°

8210汽车库内无直接通向室外的汽车疏散出口的防火分区,当设置机械排烟系统时,应同时设附补风系统,FI补风量不宜小于排烟量的


救援设施灭火设施 安全疏散和消防给水和 ^




69


术语一耐火等级和平面布置建筑构造救援设施一灭火设施 和排烟 ¾ 总则一分类和 总平面布局 防火分隔和一安全疏散和-消防给水和 供暖通风 住



开启外窗的总面积不应小于室内地面面积的2%


房间外墙上的排烟口(窗)宜沿外墙周长方向均匀分布



机械排烟的排烟口 J 7 可开启窗户(自然排烟方式)-/


70


总术 唬



二 N⅛⅛⅛ - ,Mtl 酎直二¾g 分类和总平面布防/分隱稚



8. 2. 4图示


每个防姻分区应设置排烟• 口,排烟口宜设在顶棚或 靠近顶棚的墙面上




8. 2. 6图示


⅛⅜⅜⅛⅛.,⅛⅛⅛g



8.2排烟

图集号

12J814

审核I曾杰I *[假对I胡吊I依凌I设计I魚囂曾I山子

ɪ


9电气

9.0.1消防水泵、火灾自动报警系统、自动灭火系统、防排烟设备、电动防火卷帘、电动防火门、消防应急照明和疏散指示标志等消 防用电设备,以及采用汽车专用升降机作车辆疏散出口的升降机用电,应符合下列规定:

1 J类汽车库、采用汽车专用升降机作车辆疏散出口的升降机用电应按一级负荷供电:

2 UW类汽车库和【类修车库应按二级负荷供电;

3 IV类汽车库和IIwW类修车库可采用三级负荷供电。

9. 0.2按一、二级负荷供电的消防用电设备的两个电源或两个回路,应能在最末一级配电箱处自动切换。消防用电设备的配电线路应 与其他动力、照明等配电线路分开设置。消防用电设备应采用专用供电回路,其配电设备应有明显标志。

9.0.3消防用电的配电线路应满足火灾时连续供电的要求,其敷设应符合现行国家标准《建筑设计防火规范》GB 50016的有关规定。

9.0.4除停车数量不大于50辆的汽车库,以及室内无车道且无人员停留的机械式汽车库外,汽车库内应设置消防应急照明和疏散指示 标志。用于疏散走道上的消防应急照明和疏散指示标志,可采用蓄电池作备用电源,但其连续供电时间不应小F30min

9.0.5泊防应急照明灯宜设置在墙而或顶棚上,其地面最低水平照度不应低FLOLx【图示IL安全出口标志宜设况在疏散出口的顶 部;疏散指示标志宜设置在疏散通道及其转角处,且距地面高度E以下的墙面上。通道上的指示标志,其何距不宜大于20m,、【图示2

9.0.6甲、乙类物品运输车的汽车库、修车库以及修车库内的喷漆间、电瓶间、乙快间等室内的电气设备防爆要求,均应符合现行国 家标准《爆炸和火灾危险环境电力装置设计规范》GB 50058的冇美规定。


术语 耐火等级和平面布置一建筑构造 救援设施 总则 分类和总平面布局防火分隔和安全疏散和 11




9.0.7


除敞开式汽车库、屋面停车场外,下列汽车库、


I类汽车库、修车库;

II类地下、半地下汽车库、修车库;

I1类高层汽车库、修车库:

机械式汽车库;


采用汽车专用升降机作汽车疏散出口的汽车库.


修车库应设置火灾自动报警系统,


灭火设施 消防给水和




9电气


图集号


审核


曾杰WX校对


胡波


设计


12J814

9-1



71


术语 耐火等级 总则 j 分类和



E 9.0.8气体灭火系统、泡沫-水喷淋系统、高倍数泡沫灭火系统以及设置防火卷帘、防烟排烟系统的联动控制设计,应符合现行国家标 准《火灾自动报警系统设计规范》GB 50116等的有关规定。

9.0.9设置火灾自动报警系统和自动灭火系统的汽车库、修车库,应设置消防控制室,消防控制室宜独立设置,也可与其他控制室、」 值班室组合设置9

⅝K⅝⅝⅝h"%,Wq此疋 ⅜⅛⅛託就⅛⅞⅛⅜⅛>⅞⅛⅜^   隣]           !¾⅛M⅛⅛⅛j⅛M⅜i⅜⅛MM


总则一分类和



和平面布置建筑构造救援设施灭火设施 和排烟 总平面布局防火分隔和安全疏散和消防给水和供暖通风



安全出口标志宜设在疏散出口的顶部




72


消防应急照明灯宜设置在墙面或顶棚上, 其她面最低水平照度不应低于L OLx





人员安全出口



疏散通道疏散指示标志




剖面小意图


剖面示意图


9.0 5图示1



平面示意图


9 0.5图示2



一总平面布局-伤火9隔和「安全摩Ss^ -消曲铝方利一佃爾通風



9电气

图集号

12J814

申阂曾杰I峰*恢对I胡波口斯& I设计[焦n^g^


相关技术资料




扌片中一总平面布层-倣入£ls系二渉2必豐東一 ¾⅛n方禾一勺用足5



怡丰车库产品相关技术资料


1•产品简介

深圳怡丰自动化科技有限公司是国内智能立体停车整体方案 设计者和设备供应商,主要产品有:垂直移动、垂直升降类、平 面移动、巷道堆垛;适合各种场地及规模的建设。

2.适用范围


类型

层数

(最高)

传动方式

适用范围

PCYTF垂直移动类

29

电机、链条

银行、办公、

医院、学校等

PCS-YF垂直升降类

29

电机、链条

PPYrYF平面移动类-

~12

电机、链条

PXD-YF巷道堆垛类

7

电机、链条


3.性能特点

各种设备可依据现场需求而设计,车辆只需停在出入口,存取 车全过程均由系统自动完成。配以完善的安全装置及控制系统, 结构简单、标准化设计、规模化生产,安装速度快,运行成熟。 实现舒适停车、快速存取、简便操作、智能化管理:可达到安全 可靠、绿色环保无污染停车。



注:本页根据深圳怡丰自动化科技有限公司提供的技术资料编制.


73


国家建筑标准设计图集 12J814


爲车库修轴、停车職计防火嬲》



按僞车库淮车库、停车场整強映挪gGB5Q06HQl傾制


批准部门:中华人民共和国住房和城乡建设部 组织编制:中国建筑标准设计研究院


中圍计划丛版社