UDC
中华人民共和国国家标准
 
P
GB 50550-2010
建筑结构加固工程施工质量验收规范
Code for acceptance of construction quality of strengthening building structures
2010- 07-15 发布
2011-02-01 实施
中华人民共和国住房和城乡建设部
中华人民共和国国家质量监督检验检疫总局 联口发布
中华人民共和国国家标准
建筑结构加固工程施工质量验收规范
Code for acceptance of construction quality of strengthening building structures
GB 50550 -2010
主编部门:中华人民共和国住房和城乡建设部 批准部门:中华人民共和国住房和城乡建设部 施行日期:2 0 1 1年2月t日
/VW
中国建筑工业出版社
2010北京
标准分享网WWW. bzfxw. com免费下载
中华人民共和国住房和城乡建设部 公 告
第683号
关于发布国家标准《建筑结构
加固工程施工质量验收规范》的公告
现批准《建筑结构加固工程施工质量验收规范》为国家标 准,编号为GB 50550 - 2010,自2011年2月1日起实施。其 中,第 4,1.1、4.1.2、4.2.1、4.2.2、4.2.3、4.2.5、4.2・6、 4.3.1、4.4.1、4・4・5、4.5・1、4.5.2、4.7.1、4.9.2、4.11.1、 5.3.2、5・4・2、 6.5.1、8.2.1、10.4.2、11.4.2、12.4.1、 12.5.1、12.5.3、13.3.6、13.4.1、13.4.3、15.1.5、15.4.1、 15.5.1、16.1.5、19.4.1、20.3.1、21.4.3 条为强制性条文, 必须严格执行。
本规范由我部标准定额研究所组织中国建筑工业出版社出版 发行。
中华人民共和国住房和城乡建设部
2010年7月15日
3
前 言
本规范是根据原建设部《关于印发《二Oc)二〜二OC)三年 度工程建设国家标准制订、修订计划〉的通知》(建标[2003] 102号)下达的任务和要求,由四川省建筑科学研究院会同有关 的高等院校:科研、质监、施工等单位共同制订而成e
在制订过程中,规范编制组开展了各类结构加固施H方法的 专题研究:进行了广泛的调查分析和重点项目的验证性试验;总 结了近十五年来我国建筑结构加固工程的施工经验,并与国外先 进的标准、规范进行了比较分析和借鉴。在此基础上以多种方式 广泛征求了有关单位和社会公众的意见并进行了新加固材料和新 施工工艺的试点应用和加固效果的评估。据此,还对主要问题进 行了反复修改,最后经审查定稿。
本规范主要规定的内容有:建筑结构加固工程施工的基本规 定、材料、混凝土构件增大截面工程、局部置换混凝土工程、混 凝土构件绕丝工程、混凝土构件外加预应力工程、外粘或外包型 钢工程、外粘纤维复合材工程、外粘钢板工程、钢丝绳网片外加 聚合物砂浆面层工程、砌体或混凝土构件外加钢筋网一砂浆面层 工程、砌体柱外加预应力撑杆工程、钢构件增大截面工程、钢构 件焊缝补强工程、钢结构裂纹修复工程、混凝土及砌体裂缝修补 工程、植筋工程、锚栓工程、灌浆工程、建筑结构加固工程竣工 验收及有关附录。
本规范的黑体字标志的条文为强制性条文,必须严格执行。
本规范由住房和城乡建设部负责管理和对强制性条文的解 释手由四川省建筑科学研究院负责具体技术内容的解释。
为充实提高规范的质量,请各使用单位在执行本规范过程 中,结合工程实践,注意总结经验,积累数据、资料,随时将意
4
标准分享网WWW. bzfxw. com免费下载
见和建议寄交成都市一环路北三段55号(四川省建筑科学研究 院内)住房和城乡建设部建筑物鉴定与加固规范管理委员会 (邮编:610081 j http- //www. astcc. com/) Q
本规范主编单位:四川省建筑科学研究院
本规范参编单位;同济大学
湖南大学
武汉大学
/VW
福州大学 山东建筑大学 中国科学院大连化学物理研究所 山东省建筑科学研究院 辽宁省建设科学研究院 重庆市建筑科学研究院
上海市建设工程质量监督总站 山东省建设工程质量监督总站 成都市建设工程质量监督站 海口市建设工程质量监督站 厦门市建设工程质量安全监督站 上海加固行建筑技术工程公司 亨斯迈先进化工材料(广东)有限公司 厦门中连结构胶有限公司 同济大学建筑科技工程公司 大连凯华新技术工程有限公司 中国华西企业公司
慧鱼建筑锚栓有限公司 喜利得(中国)有限公司 江苏东南特种技术工程有限公司 上海协固建筑材料有限公司 武汉长江加固技术有限公司. 湖北德盛结构工程加固有限公司
5
长沙固特邦土木技术发展公司 上海怡昌碳纤维材料有限公司
上海同华特种土木工程有限公司
| 主要起草人:孙前元 | 梁爽 | 梁坦 | 吴善能 | 
| 黄兴棣 | 林文修 | 卜良桃 | 崔士起 | 
| 郑建岚 | 成勃 | 张鑫 | 莫群速 | 
| 李明柱 | 蒋松岩 | 卢同新 | 潘延平 | 
| 魏建东 | 陈科荣 | 冯鸿浩 | 王立民 | 
| 张成英 | 陈友明 | 张晔 | 徐德新 | 
| 李力平 | 张首文 | 肖雯 | •王聪慧 | 
| 周激 | 王晓波 | 侯发亮 | 彭勃 | 
| 张坦贤 | 周海明 | 何英明 | 刘延年 | 
| 主要审査人员:刘西拉 | 戴葆诚 | 高小旺 | 张家启 | 
| 沈琨 | 李德荣 | 蒋寿时 | 王庆霖 | 
| 完海鹰 | 唐岱新 | 徐共和 | 程依祖 | 
| 陈跃熙 | 罗进元 | 
ZVWV
6
标准分享网WWW. bzfxw. com免费下载
目 次
1总则.......................... 1
2术语.....................................................................2
2.1 一般术语............................................................2
2.2材料术语......................... 3
2.3施工术语............................................................5
3基本规定...............................................................6
4 材料........................... 10
4.1混凝土原材料............................................ 10
4.2钢材...............................................................11
4.3焊接材料.........................................................15
4.4结构胶粘剂...................................................... 16
4.5纤维材料........................*....... 19
4.6水泥砂浆原材料.........................................ʌ........ 21
4.7聚合物砂浆原材料................ 22
4.8裂缝修补用注浆牌....................... 23
4.9混凝土用结构界面胶(剤) 25
4.10结构加固用水泥基灌浆料.......................................26
4∙ 11 锚栓...............................................................27
5混凝土构件增大截面工程..........................................30
5.1 一般规定.........................................................30
5.2界面处理.......................................................-31
5.3新增截面施工......................................................32
5.4施工质量检验......................................................34
6局部置换混凝土工程................................................37
6.1 一般规定..........................................:..............37
7
6,2卸载的实时控制...................................................38
6.3混凝土局部剔除及界面处理....................................... 39
6.4置换混凝土施工..................."............................... 39
6.5施工质量检验,........:............ 40
7混凝土构件绕丝工程................................................42
7.1 一般规定.................. 42
7.2界面处理 ............................................ 42
7.3 绕丝施工 ...... 43
7-4施•工质量检验................. 44
8混凝土构件外加预应力工程....................................... 46
&1 一般规定..................... 46
8.2制作与安装.........................................................47
8.3张拉施工.........................................................48
&4施工质量检验......................................................52
9外粘或外包型钢工程................................................53
9.1 一般规定.........................................................53
9.2型钢骨架制作......................................................54
9.3界面处理 ....... *............. 55
9.4型钢骨架安装及焊接.............................................56
9.5注胶(或注浆)施工 ............................. 57
9.6施工质所检验.................................................. 53
10外粘纤维复合材工程.......................... 60
10.1 一般规定.............*........................................... 60
10.2界面处理.........................................................61
10.3纤维材料粘贴施工................................................ 62
10.4施工质量检验...................................................64
11外粘钢板工程 ......................................................66
ILI 一般规定................................................ 66
IL 2界面处理.........................................................67
IL 3钢板粘贴施工.......... 68
8
标准分享网WWW. bzfxw. com免费下载
IL4施工质量检验*'
70
12钢丝绳网片外加聚合物砂浆面层工程 ........... 71
12÷ 1 一般规定 ...........*............................................. 71
12.2界面处理 .........................................................72
12.3钢丝绳网片安装................................................72
12.4聚合物砂浆面层施工•…:............... 74
12.5施工质量检验 ............ 75
13砌体或混凝土构件外加钢筋网—砂浆面层工程 ............78
13.1 一般规定.................................................... 78
13.2界面处理................................................. 78
13.3钢筋网安装及砂浆面层施工 ................ 79
13.4施工质量检脸...................................................80
14砌体柱外加预应力撑杆工程..................................83
14.1 一般规定................................................................... 83
14.2界面处理......................................... 84
.14,3撑杆制作.......................................... 85
14.4撑杆安装与张拉...............................................- 87
14.5施工质量检验 .................... 88
15钢构件增大截面工程 ...........*................................. 89
15.1' 一般规定............................................... 89
15.2界面处理................. 90
15.3新增钢部件加工......................... 90
15.4新増部件安装、拼接施工 ........................... 93
15.5施工质量检验...................................................94
16钢构件焊缝补强工程 .............................................98
16.1 一般规定................. 98
16.2焊区表面处理...................................................98
16.3焊缝补强施工...................................................99
16. 4焊接质量检验...................................................101
17钢结构裂纹修复工程............................................. 102
9
17.1 一般规定......................................*............... 102
17.2焊缝补强施工及质量检鹽....................................102
18混凝土及砌体裂缝修补工程....................................106
18.1 一般規定 ......................................................106
18.2界面处理 ......................................................106
18.3表面封闭法施工................................................107
18.4柔性密封法施工................................................109
18. 5压力灌注法施工................................................110
1&6施工质量检验............... 112
19植筋工程............................................................113
19.1 一般规定 ......................................................113
19.2界面处理 ......................................................114
19.3 植筋工程施工............................. 115
19.4施工质量检验...................................................117
20 锚栓工程............................................................ 118
2Q∙1 一般规定......................................................118
20.2锚栓安装施工..................................... 118
20. 3施工质量检验...................................................120
21灌浆工程............................................................ 121
21.1 —般规定.......................... 121
2L2施工图安全复查................................................121
21.3界面处理......................................................122
21.4灌浆施工......................................... 123
21.5施工质量检验...................................................125
22建筑结构加固工程竣工验收.............................................. 126
附录A建筑结构加固子分部工程、分项工程划分.........128
附录B质量验收记录............................................... 130
附录C高压水射流技术应用规定................. 133
附录D加固材料或产品进场复验抽样规定.....................136
附录E粘结材料粘合加固材与基材的正拉粘结强度
10
标准分享网WWW. bzfxw. com免费下载
试验室测定方法及评定标准............................∙.∙ 138
附录F结构胶粘剂抗冲击剥离能力测定方法及 评定标准......................................................146
附录G结构胶粘剂不挥发物含量测定方法.....................151
附录H结构胶粘剂湿热老化性能测定方法..................154
附录J结构用粘结材料湿热老化性能现场快速复验 方法及评定标准.............................................158
附录K结构胶粘剂初黏度测定方法•........................... 162
附录L结构胶粘剂触变指数测定方法...........................166
附录M 碳纤维织物中碳纤维K数快速判定方法 ............169
附录N纤维复合材层间剪切强度测定方法.............-171
附录P锚固型结构胶及聚合物砂浆浇注体劈裂 抗拉强度测定方法..........................................177
附录Q结构加固用砂浆体和灌浆料浆体抗折 强度测定方法.............................................181
附录R聚合物砂浆及复合砂浆拉伸抗剪强度 测定方法(钢套筒法) ............................... 185
附录S结构界面胶(剂)剪切粘结强度测定方法 及评定标准...................................................190
附录T现场推定新增混凝土强度的取样规则与 评定方法...............................................-........... 196
附录U粘结材料粘合加固材与基材的正拉粘结强度 现场测定方法及评定标准..............................198
附录V承重构件外加砂浆面层抗压强度采用回弹 法检测的规定.............................................204
附录W锚固承载力现场检验方法及评定标准...............206
附录Y钢筋阻锈剂应用规定.......................................211
本规范用词说明................... 215
引用标准名录......................... 216
附:条文说明................…;........................................219
11
Contents
ɪ General Provision ...... 1
2 Terms ...........................................*.........………∙∙ 2
2.1 General Terms ........................ …… 2
2. 2 Material ɜ'erms ....... 3
2∙3 Construction Terms ......... ■■・・・■・・•■・・•••••• 5
3 Basic Requirement ********..............-........ 6
4 Materials .................. 10
4∙ 1 Concrete MateriaU ....................... 10
4∙ 2 Steels.................. ɪɪ
4< 3 Welding Materials ............・•・••*•♦•・•*••■•••••••••••■••••••••• 15
4.4 Structural Adhesives ••••••■••**••♦*•**<**<*♦*•*•♦*•••••••••••♦•*• 16
4・ 5 Fiber Reinforced Polymers ∙∙∙∙*∙∙∙∙∙-*∙∙∙*-j∙∙∙∙∙∙∙∙∙∙∙∙∙∙∙∙∙∙ 19
4∙ 6 Cements and Sands..............•••••••••■••••・—・•・■•••・•・・・••••・ 21
4∙ 7 Polymer Mortars ...... 22
4・ 8 Crack Repairs with Injections .....................*****..... 23
4*9 Interface Adhesives for Concrete ••■■••••,•■••■••••••••・•••••••••• 25
4. 10 Grouts for Structural Strengthening ...............•••••••■•・■• 26
4∙11 Anchors .............................. 27
5 Strengthening with EnIarged Concrete Sections ............ 30
5.1 General Requirement ∙*∙∙∙*∙∙**^∙<♦*♦♦*****•***•*-••■•■••■-•-•■*• 30
5. 2 Interface Treatment *........................*.......... 31
5. 3 Enlarge Concrete Section ........................ 32
5. 4 Inspection of Construciion Quality ..............∙∙∙∙"∙*∙*∙∙∙∙∙∙ 34
6 Strengthening with Replaced RC Structural Elements ......... ∙∙∙∙∙∙∙ 37
12
标准分享网www. bzfxw. com免费下载
6・ 1 General Requirement .......... ・•・•・•••• 37
6. 2 Real-time Control for Unloading .......... 3g
6・ 3 Surface Treatment of Concrete ..... 39
6.4 Replacement of Concrete/•*•♦**.............................••♦”• 39
6∙ 5 Inspection of Construction Quality .......................... 40
7 RC Elements Strengthened with Wrapped Wires ......... 42
7.1 General Requirement ................................. 42
7. 2 Surface Treatment ..................... 42
7.3 Wrapping with Wires .................. 43
7. 4 Inspection of Construction Quality .................... 44
8 RC Member Strengthened by Externally Applied Prestress ........... 46
8∙ 1 General Requirement ......................................... 46
8,2 Fabrication and Installation ....... ∙∙∙∙∙∙∙.∙∙x∙∙∙∙∙∙ 47
8*3 Prestredding Tension ..............................*......∙∙∙∙∙∙∙∙ 4g
8∙4 Inspection of Construction Quality ...................... 52
9 Strengthening by Externally Bonded or Wrapped Shaped Steel ...............*.............. 53
9.1 General Requirement .......... 53
9∙ 2 Fabrication of Steel Skeleton ........... 54
9∙ 3 Surface Treatment ^∙∙∙∙••••*■•**■••■-»• ...............*♦*••♦•*♦••• 55
9*4 Installation and Welding of Steel Skeleton .................. 56
9∙5 Injection of Grouts ..........................………•…•…… 57
9・ 6 Inspection Cf Construction QUality ••••••■••••••••••••••*••••・•■・ 58
10 Strengthening by Externally Bonded Fiber Reiforced Polymers ...............-..............・•・・••••••• 60
10.1 General Requirement......................................"∙∙∙*∙ 60
10・2 Surface Treatment .............. ・•••"•*•*••••• 61
10∙3 Bonding of Fiber Reinforced Polymers .................…•… 62
10.4 Inspection of Construction Quality ........................ 54
13
11 Strengthening by Bonding Steel Plates ..................... 66
ILl GeneralRequirement ...................................……■… 66
11-2 SurfaceTreatment ..........*...........................:......... 67
IL 3 Bonding of Steel Plates *••••••・••.・............... 68
11- 4 Inspection of Construction Quality ......... 70
12 Strengthening by Polymer Mortars Reinforced with Steel Wire Mesh ............ 71
12.1 General Requirement............. 71
12. 2 Surface Treatment.....................申•**••*•••・•・••・•+•*・・■■・▼• 72
12∙ 3 Installation of Steel Wires ............. 72
12.4 Application of Polymer Motars .............∙∙**∙*∙∙*∙∙∙τ∙*.∙∙∙ 74
12, 5 Inspection of Construction Quality ...................... 75
13 Strengthening Concrete or Masonry Members by Steel Bar MeSh and Mortars Layer ................■••••・••••• 78
13,1 General Requironent ............................ 78
13.2 Surface Treatment ................. 78
13. 3 Application of Steel Bar Meshes.....*........... 79
13. 4 Inspection of Construction Quality ***∙∙**∙∙-∙∙∙∙∙∙∙*∙∙**∙∙∙∙∙∙∙∙ SO
14 Strengthening Masonry Columns with Prestressed Rods ....... 83
14∙1 General Requirement *...... 83
14∙ 2 Surface Treatment ・•••*•*•、■**•••,•戸∙j∙∖*∙**∙∙∙"∙∙∙3*∙∙∙*∙∙∙∙∙∙ 84
14. 3 Fabrication Of Rods ...................................••……g5
14.4 Installation and Stress of Rods .............. 87
14. 5 Inspection of Construction Quality .....*...... 88
15 Strengthening Steel Members with Enlarged Section ∙∙* 89
15.1 General Requirement..........................……………∙∙∙* 89
15・2 Surface Treatment....................... 9。
15∙ 3 Fabrication of Steel Elements ................. •••*■・■•••• 9。
15∙ 4 Installation and Connection of Steel Elements .................. 93
14
标准分享网www. bzfxw. com免费下载
15. 5 Inspection of Construction Quality ■•…………•…•……•…■ 94
16 Strengthening Welds in Steel Structures ............ 98
16∙ 1 General Requirement............................ 98
16. Z Treatment of Welding Sruface ........ ■■••••• 98
16. 3 Strengthening of Welding ........ 99
16・ 4 Quality Inspection of Welding ..... Iol
17 Repair Cracks in Steel Structures ......... 102
17∙ 1 General Requirement ..................................-...... 102
17. 2 Strengthening of WeldS and Quality Inspection ........ 102
18 Repair Cracks in Concrete and Masonry Structures •♦* 106
18.1 General Requirement .............. ******* 106
1& 2 Surface Treatment ............. —................... IO6
18. 3 Seal Crack Surfaces ........... 107
18. 4 Fill cracks with Flexible Materials •••••••・•••••・••■•■•■•■・“• IO9
18, 5 Inject Cracks with Epoxy............. 110
18. 6 Quality Inspection ...... •・•*••**■・•••*•••■•・•••・•・■• H2
19 Plant rebars .................. 113
19.1 General Requirement ....................... 113
19. 2 Surface Treatment ........ ••••••・• 114
19・ 3 Plant Rebars ...................................... ɪɪʒ
19・ 4 Quality Inspection of Construction ................... 117
20 Anchors ................................. 118
20.1 General Requirement ..... *....... 118
20∙ 2 Installation of Anchors ........... 118
20. 3 Quality Inspection .......*.....*........ 120
21 Grouts ..... ∙∙ 121
21.1 General Requirement ....... 121
21- 2 Review of Construction Drawings............................ 121
2L 3 Surface Treatment ......... 122
21. 4 Application of Grouts .....................W-......... 123
15
21. 5 Quality Inspection .................. 125
22 Acceptance of Building Structure Strengthening
Engineerings .........................*...... 126
Appendix A Division of Sub-projects in Structural
Strengthening Engineerings ................. 128
Appendix B Records of Quality Inspection ................. 130
Appendix C Technical Specification for High-
Pressed Water Flow .............................. 133
Appendix D Sample Specification for Re-inspection of Materials for Strengthening .................- 136
Appendix E Specifications for Test and Evaluation of
Bonding Tensile Strength between Strengthening Material and Substrate ……… 138
Appendix F Specifications for Test and Evaluation of Debonding Performance of Structural
Adhesives under T-PBel Impacts ......... 146
Appendix G Test of Non-volatile Matter of Structural Adhesives ..............................•…………ɪʒi
Appendix H Test o£ Durability Performance of Structural
Adhesive under Circles of Wet and Heat …154 Appendix J Quick Test on Site of DUrability Performance of Structural Adhesive under Circles of Wet and Heat ..................... 158
Appendix K Test Method of Initial Viscosity ......... 162
Appendix L Determination of Thixotropy Coefficient of
Structural Adhesive......................... 166
Appendix M Quick Determination of K Number of Carbon Fiber Reinforced Polymers ....... 169
Appendix N TeSt Methods of Interface Shear
Strength of Fiber Reinforced Polymers ∙∙∙…171
16
标准分享网www. bzfxw. com免费下载
Appendix P Test Method of Split Tensile Strength of Structural Adhesives and Polymer Motars … 177
Appendix Q Test Method of Flexural Strength of Mortars and Grouts .............. 181
Appendix R Test Method of Shear Strength under Tension of Polymer Mortars .........*........... 185
Appendix S Test and Determination of Interface Shear Strength of Structural Adhesives ......……… 190
Appendix T Sample Rules and Determination on Site of
Newly Added Concrete Strength ・••••••••— 196
Appendix U Test and Determination of Normal TenSiIe Bonding Strength between Bonded Material and Substrate ...................................... 198
Appendix V Mbrtar Strength of Surface Layer
Determination with Rebounding Method •■■・•• 204
Appendix W On Site Test and Determination of Anchorage Capacity ...................... 206
Appendix Y Steel Bar Inhibitor Application Requirement ......... 211
Explanation of Wording in This Code ........ 215
List of Quoted Standards ...................... 216
Addition: Explanation of Provisions .................. 219
17
1总 则
1.0.1为了加强建筑结构加固工程质量管理,统一建筑结构加 固工程施工质量的验收,保证工程的质量和安全,制定本规范。
1.0*2本规范适用于混凝土结构、砌体结构和钢结构加固工程 的施工过程控制和施工质量验收。
1. 0.3建筑结构加固工程技术文件和承包合同中规定的对加固 工程质量的要求不得低于本规范的规定。
1. 0.4本规范应与下列现行国家标准配套使用:
1《建筑工程施工质量验收统一标准》GB 50300;
2《混凝土结构工程施工质量验收规范》GB 50204,
3《砌体工程施工质量验收规范》GB 50203;
4《钢结构工程施工质量验收规范》GB 50205。
1. 0,5建筑结构加固工程的施工过程控制和施工质量验收除应 执行本规范及其配套使用的标准规范外,尚应符合国家现行有关 标准的规定Q
标准分享网WWW. bzfxw. com免费下载
2术 语
2.1 一般术语
2・ L I 结构加固工程 structure strengthening engineering
对可靠性不足的承重结构、构件及其相关部分进行增强或调 整其内力,使之具有足够的安全性和耐久性,并力求保持其适 用性。
2.1.2 结构加固工程质量 quality of structure strengthening engineering
反映结构加固工程满足现行相关标推规定或合同约定的要 求,包括其在安全性能、耐久性能、使用功能以及环境保护等方 面所有明显和隐含能力的特性总和Q
2.1.3 验收 acceptance
结构加固工程质量在施工单位自行检查评定的基輔上,由参 与该工程活动的有关单位共同对检験批、分项、子分部、分部工 程的质量进行抽样复查,根据现行相关标准以书面形式对工程质 量达到合格与否做出确认。
2.1.4 进场检査 site inspection
对进入施工现场的加固材料、制品、构配件、连接件、锚固 件、器具和设备等,按相关标准规定的要求进行检查或检验,以 对其质量达到合格与否做出确认。
2.1. 5 复验 repeat test
凡涉及安全或功能的加固材料、产品,进场时,不论事先持 有何种检验合格证书,均应按现行有关标准规范所指定的项目进 行见证抽样检验活动。
2.1.6 批 lot
在一致条件下生产、施工,或按规定的方式汇总起来的,由
2
-定数量个体(或散装料)组成的产品或材料集合。
2.1.7 检验批 inspection lot
为实施抽样检验(检查)而指定的受检批次。
2. L 8 见证取样 evidential sampling
在监理单位或建设单位(业主)监督下,由施工单位或检测 机构专业人员实施的现场取样过程。
见证取样的样本应经监督人员签封后,送至具备相应资质的 独立检测机构进行测试。
2. L 9 主控项目 dominant item
结构加固工程中对安全、卫生、环境保护和公众利益起决定 ,性作用的检验项目。
2.1.10 —般项目 general item
除主控项目以外的检验项目。
2« 1.11 原构件 existing structure member
实施加固前的原有(已有)构件。
2.1.12 基材 substrate
涂布胶粘剂或其他粘结材料的被粘物之一。在结构加固工程 中,系指被粘结的原构件。若原构件为复合材或组合材,则专指 其中被粘合部分的材料。
2.2材料术语
2.2.1 结构胶粘剂 StrUCtUtaI adhesives .
用于承重结构构件胶接的,能长期承受设计应力和环境作用 的胶粘剂。在土木工程中,基于现场条件的限制,其所使用的结 构胶粘剂,主要指室温固化的结构胶粘剂。
2.2.2 底胶 primer
为改善胶接性能并防止基材表面处理后受污染或腐蚀,而先 在基材粘合面上涂布的,与结构胶粘剂和基材均有良好相容性和 粘附能力的一种室温固化的胶粘剂。
2.2.3 裂缝修补胶 repairing adhesive for concrete crack
3
标准分享网www. bzfxw. com免费下载
以低黏度改性环氧类胶粘剂配制的用于填充、封闭混凝土裂 缝的胶粘剂,也称裂缝修补剂。当有可靠的工程经验时,也可用 其他改性合成树脂替代改性环氧树脂进行配制。
若工程要求恢复开裂混凝土的整体性和强度时,应使用高粘 结性结构胶配制的具有修复功能的裂缝修补胶(剂),也称裂缝 修复胶(剂)。
2.2.4 裂缝注浆料 grout for concrete crack
一种高流态、塑性的、采用压力注入的修补裂缝材料,一般 分为改性环氧类注浆料和改性水泥基类注浆料两类。
2.2. S 结构界面胶(剂)structural interfacial adhesive(agent)
为改善粘结材料、加固材料与基材之间的相互粘结性能而在 基材表面涂布的胶粘剂,专称为结构界面胶(剂*其性能和质 量完全不同于一般界面处理剂。
2.2.6 纤维增强复合材 fibeι^reinforced ρoIymer(FRP)» composite FRP
以具有所要求特性的连续纤维或其制品为增强材料,与基 体一结构胶粘剂粘结而成的高分子复合材料,简称纤维复合材。 在工程结构中常用的有碳纤维复合材、玻璃纤维复合材和芳纶纤 维复合材等。
2.2.7 阻锈剂 corrosion inhibitor
能抑制混凝土中钢筋电化学腐蚀的抑制剂;一般分为掺入型 和喷涂型两种。在结构加固中,一般使用后者;仅当重新浇筑混 凝土时,才使用掺入型阻锈剂。
2.2.8 聚合物砂浆 polymer motar
掺有改性环氧乳液(或水性环氧)或其他改性共聚物乳液的 高强度水泥砂浆。结构加固用的聚合物砂浆在安全性能上有专门 要求,应与普通聚合物砂浆相区别。
2.2.9 结构加固用灌浆料 grout for structural strengthening
在混凝土增大截面工程中,为保证钢筋密集部位新旧混凝土 之间紧密接合、填充饱满并减小收缩,而掺入细石混凝土的高品
4
质水泥基灌浆料.
2.3施工术语
2・3・1 表面处理 surface treatment, surface preparation
为改善加固材料与原构件之间,或新旧基材之间的粘合能 力,而对其表面进行的物理或化学处理。在结构加固工程中以物 理处理为主。
2.3・ 2 平整度 degree of plainness
原结构构件经修整、处理后,尚允许表面存在的起伏、凹凸 程度6
2.3.3 垂直度一degree of gravity vertical
在设计规定的高度范围内,加固后构件表面轴线偏离重力线 的程^,。
2.3. 4 轴线位移 displacement Of axies
结构或构件加固后的轴线实际位置与设计位置的偏差。
2.3.5 尺寸偏差 dimensional errors
结构、构件实际几何尺寸与原设计尺寸之间的差值。
2∙3∙6 缺陷 defect
结构加固工程施工质量检查中发现的不符合规定要求的检验 项或检验点,按其程度可分为严重缺陷和一般缺陷,前者对加固 后结构、构件的受力性能或使用功能有决定性影响,后者则无决 定性影响.
2.3.7 返修 repair
对施工质量不符合现行规范规定的结构加固工程部位采取的 整修、补救措施。
2.3.8 返工 rework
对施工质量不合格且无法返修的结构加固工程部位采取的事 新制作、重新施工的措施。
5
标准分享网WWW. bzfxw. com免费下载
3基本规定
3.0.1建筑结构加固工程施工现场质量管理,应有相应的施工 技术标准、健全的质量管理体系、施工质量控制与质量检验制度 以及综合评定施工质量水平的考核制度。
3.0.2建筑结构加固工程作为建筑工程的一个分部工程,应根 据其加固材料种类和施工技术特点划分为若干子分部工程:每一 子分部工程应按其主要工种、材料和施工工艺划分为若干分项工 程;每一分项工程应按其施工过程控制和施工质量验收的需要划 分为若干检验批。子分部工程和分项工程的具体划分应符合本规 范附录A的规定。
3.0.3建筑结构加固工程应按下列规定进行施工质量控制:
1结构加固设计单位应按审查批准的施工图,向施工单位 进行技术交底;施工单位应据以编制施工组织设计和施工技术方 案,经审查批准后组织实施;
2加固材料、产品应进行进场验收,凡涉及安全、卫生、 环境保护的材料和产品应按本规范规定的抽样数量进行见证抽样 复验;其送样应经监理工程师签封J复验不合格的材料和产品不 得使用;施工单位或生产厂家自行抽样、送检的委托检验报告 无效;
3结构加固工程施工前,应对原结构、构件进行清理、修 整和支护;
4结构加固工程的每道工序均应按本规范及企业的施工技 术标准进行质量控制;每道工序完成后应进行检查验收;必要时 尚应按隐蔽工程的要求进行检查验收;合格后方允许进行下一道 工序的施工;
5相关各专业工种交接时,应进行交接检验,并应经监理
6
工程师检查认可.
3.0.4原结构的清理、修整和支护主要包括下列内容:
1拆迁原结构上影响施H的管道和线路以及其他障碍;
2卸除原结构上的荷载(当设计文件有规定时》
3修整原结构、构件加固部位;
4搭设安全支撑及工作平台,
3.0.5修整原结构,构件加固部位时,应符合下列要求:
1应清除原构件表面的尘土、浮浆、污垢、油渍、原有涂 装、抹灰层或其他饰面层:对混凝土构件尚应剔除其风化、剥 落、疏松、起砂、蜂窝、麻面、腐蚀等缺陷至露出骨料新面:对 钢构件和钢筋,还应除锈、脱脂并打磨至露出金属光泽;对砌体 构件,尚应剔除其勾缝砂浆及已松动、粉化的砌筑砂浆层,必要 时,还应对残损部分进行局部拆砌。当工程量不大时,可采用人 工清理:当工程量很大或对界面处理的均匀性要求很高时,宜采 用高压水射流进行清理。高压水射流的作业应按本规范附录C 的规定执行:
2应采用相容性良好的裂缝修补材料对原构件的裂缝进行 修补;若原构件表面处于潮湿或渗水状态,修补前应先进行疏 水、止水和干燥处理。
3.0.6在现场核对原结构构造及清理原结构过程中,若发现该 结构整体牢固性不良或原有的支撑、连接系统有缺损时,•应及时 向业主(或监理单位)和加固设计单位报告。在设计单位未采取 补救措施前,不得按现有加固方案进行施工。
3.0.7建筑结构加固施工的全过程,应有可靠的安全措施:
1加固工程搭设的安全支护体系和工作平台,应定时进行 安全检查并确认其牢固性;
2加固施工前,应熟悉周边情况,了解加固构件受力和传 力路径的可能变化。对结构构件的变形、裂縫情况应设专人进行 检测,并做好观测记录备查;
3在加固过程中,若发现结构、构件突然发生变形增大、
标准分享网WWW. bzfxw. com免费下载
裂缝扩展或条数增多等异常情况,应立即停工,支顶并及时向安 全管理单位或安全负责人发出书面通知;
4对危险构件、受力大的构件进行加固时,应有切实可行 的安全监控措施,并应得到监理总工程师的批准,
5当施工现场周边环境有影响施工人员健康的粉尘、噪声、 有害气体时,应采取有效的防护措施;当使用化学浆液(如胶液 和注浆料等)时,尚应保持施工现场通风良好;
6化学材料及其产品应存放在远离火源的储藏室内,并应 密封存放;
7工作场地严禁烟火,并必须配备消防器材;现场若需动 火应事先申请,经批准后按规定用火。
3.0.8当结构加固需搭设模板、支架和支撑时,应根据结构的 种类,分别按现行国家标准《混凝土结构工程施工质量验收规 范》GB 50204、《钢结构工程施工质量验收规范》GB 50205和 《砌体工程施工质量验收规范》GB 50203的规定执行。
3.0.9加固工程的冬期施工,应符合现行行业标准《建筑工程 冬期施工规程》JGJIO4的要求和本规范有关章节的补充规定。
3.0.10当采用的结构加固方法需做防护面层时,应按设计规定 的材料和工艺要求组织施工。其施工过程的控制和施工质量的检 验应符合国家现行有关标准的规定。
3.0.11建筑结构加固工程检验批的质量检险,应按本规范根据 现行国家标准《建筑工程施工质量验收统一标准》GB 50300的 抽样原则及本规范所规定的抽样方案执行。
3.0.12检验批中,凡涉及结构安全的加固材料、施工工艺、施 工过程留置的试件、结构重要部位的加固施工质量等项目,均须 进行现场见证取样检测或结构构件实体见证检验。任何未经见证 的此类项目,其检测或检验报告,不得作为施工质量验收依据。
3.0.13检验批合格质量标准应符合下列规定:
1主控项目的质量经抽样检验合格;
2 一般项目的质量经抽样检验合格:当采用计数检验时,
8
除本规范另有专门规定外,其抽检的合格点率应不低于80%, 且不得有严重缺陷:
3具有完整的施工操作依据、质量检查记录及质量证明 文件。
3.0.14分项工程的质量验收,应在其所含检验批均验收合格的 基础上,按本规范规定的检验项目,对各检验批中每项质量验收 记录及其合格证明文件进行检查。
3.0.15分项工程合格质量标准应符合下列规定:
1分项工程所含的各检验批,其质量均符合本规范的合格 质量规定;
2分项工程所含的各检验批,其质量验收记录和有关证明 文件完整。
3.0.16建筑结构加固子分部工程和分部工程的施工质量,应按 本规范第22章的规定进行竣工验收。
3.0.17检验批、分项工程、子分部工程和分部工程的质量验 收,应按本规范附录B的格式填写质量验收记录。
ZVW
标准分享网WWW. bzfxw. com免费下载
4材 料
4.1混凝土原材料
(I)主控项目
4.1.1结构加固工程用的水泥进场时应对其品种、级别、包装 或散装仓号、出厂日期等进行检查,并应对其强度、安定性及其 他必要的性能指标进行见证取样复验。其品种和强度等级必须符 合现行国家标准《混凝土结构加固设计规范》GB 50367及设计 的规定;其质量必须符合现行国家标准《通用硅酸盐水泥》GB 175和《快硬硅酸盐水泥》GB 199等的要求。
加固用混凝土中严禁使用安定性不合格的水泥、含氯化物的 水泥、过期水泥和受潮水泥。
检查数量:按同一生产厂家、同一等级、同一品种、同一批 号且同一次进场的水泥,以3M为一批(不足30t,按SOt计), 每批见证取样不应少于一次Q
检验方法:检查产品合格证、出厂检验报告和进场复验 报告。
4.1.2普通混凝土中掺用的外加剂(不包括阻锈剂),其质量及 应用技术应符合现行国家标准《混凝土外加剂》GB 8076及《混 凝土外加剂应用技术规范》GB 50119的要求。
结构加固用的混凝土不得使用含有氯化物或亚硝酸盐的外加 剂;上部结构加固用的混凝土还不得使用膨胀剂。必要时,应使 用减缩剂。
检查数量:按进场的批次并符合本规范附录D的规定。
检验方法:检查产品合格证、出厂检脆报告(包括与水泥适 应性检验报告)和进场复验报告。
10
4.1.3现场搅拌的混凝土中,不得掺入粉煤灰。当采用掺有粉 煤灰的预拌混凝土时,其粉煤灰应为I级灰,且烧失量不应大 于5%。
检查数量:逐批检查。
检查方法:检查粉煤灰生产厂出具的粉煤灰等级证书、出厂 检验报告及商品混凝土检验机构出具的粉煤灰烧失量检验报告。
• (Il)-般项目
4.1.4配制结构加固用的混凝土,其粗、细骨料的品种和质量, 除应符合现行行业标准《普通混凝土用砂、石质量及检验方法标 准》JGJ 52的要求外,尚应符合下列规定:
1粗骨料的最大粒径:对拌合混凝土,不应大于20mm; 对喷射混凝土,不应大于12mmj对掺加短纤维的混凝土,不应 大于IOmlru
■ 2细骨料应为中、粗砂,其细度模数不应小于2∙ 5。
检查数量:按进场的批次和产品复验抽样并符合本规范附录 D的规定。
检验方法:检查进场复验报告。
4. L 5拌制混凝土应采用饮用水或水质符合现行行业标准《混 凝土用水标一准》JGJ 63规定的天然洁净水。
检查数量:同一水源检查不应少于一次。
检验方法:送独立检测机构化验。
4.2鋼 材
(工)主控项目
4.2.1结构加固用的钢筋,其品种、规格•性能等应符合设计 要求。钢筋进场时,应分别按现行国家标准《钢筋混凝土用钢 第1部分:热轧光圆钢筋》GB 1499.1、《钢筋混凝土用钢 第2 部分二热轧带肋钢筋》GB 1499.2、《钢筋混凝土用余热处理钢
11
标准分享网WWW. bzfxw. com免费下载
筋》GB/T 13014.《预应力混凝土用钢绞线》GB/T 5224等的规 定,见证取样作力学性能复验,其质量除必须符合相应标准的要 求外,尚应符合下列规定:
ɪ对有抗震设防要求的框架结构,其纵向受力钢筋强度检 喩实测值应符合现行国家标准《混凝土结构工程施工质♦验收规 范》GB 50204的规定;
2对受力钢筋,在任何情况下,均不得采用再生钢筋和钢 号不明的钢筋。
检查数量:按进场的批次并符合本规范附录D的规定。
检验方法:检查产品合格证、出厂检验报告和进场复駿 报告。
4.2.2结构加固用的型钢、钢板及其连接用的紧固件,其品种、 规格和性能等应符合设计要求和现行国家标准《碳素结构钢》 GB/T700、《低合金高强度结构钢》GB/T1591、《紧固件机械性 能》GB/T 3098以及有关产品标准的规定。严禁使用再生钢材以 及来源不明的钢材和紧固件。
型钢、钢板和连接用的紧固件进场时,应按现行国家标准 《钢结构工程施工质量验收规范》GB 50205等的规定见证取样作 安全性能复验,其质■必须符合设计和合同的要求。
检查数量:按进场的批次,逐批检查,且每批抽取一组试样 进行复验。组内试件数■按所执行试验方法标准确定。
检駿方法:检查产品合格证、中文标志、出厂检验报告和进 场复验报告。
4.2.3预应力加固专用的钢材进场时,应根据其品种分别按现 行国家标准《钢筋混凝土用余热处理钢筋》GB/T 13014.《预应 力混凝土用钢丝》GB/T5223、《预应力混凝土用钢绞线》GB/T 5224和《碳素结构钢》GB/T700、《低合金高强度结构钢》GB/ T1591等的规定,见证取样作力学性能复验,其质■必须符合 相应标准的规定。
检查数■:按进场批次,逐批检查,且每批抽取一组试样进
12
行复骏。组内试件数*按所到行的试验方法标准确定。
检验方法:检查产品合格证.出厂检验报告和进场复験 报告。
4.2.4千斤顶张拉用的锚具、夹具和连接器等应按设计要求采 用多其性能应符合现行国家标准《预应力筋用锚具、夹具和连接 器》GB/T 14370等的规定。 ^
检验数量:按进场批次和产品复验抽样并符合本规范附录D 的规定。
检验方法;检查产品合格证、出厂检验报告和进场复验 报告,
4.2.5统丝用的钢丝进场时,应按现行国家标准《一般用途低 碳鋼丝》GB/T 343中关于退火钢丝的力学性能指标进行复验。 其复載结果的抗拉强度最低值不应低于490MPaβ
注:若直径4mm退火钢丝供应有困难,允许采用低碳冷拔钢丝在现场 退火。但退火后的钢丝抗拉强度值应控制在(490〜54D) MPa 之间。
检查数■:按进场批号,每批抽取5个试样。
检验方法:按现行国家标准《金属材料 室温拉伸试验方 法》GB" 228规定的方法进行复验,同时,尚应检查其产品合 格证和出厂检嗡报告。1 1 f
4.2.6结构加固用的钢丝绳网片应根据设计规定选用高强度不 锈钢丝绳或航空用镀锌碳素钢丝绳在工厂预制。制作网片的鋼丝 绳,其结构形式应为6X7+IWS金属股芯右交互捻小直径不松 散钢丝绳(图4∙2∙6a),或1X19单股左捻钢丝绳(图4.2∙6b); 其钢丝的公称强度不应低于现行国家标准《混凝土结构加固设计 规范》GB 50367的规定值。
钢丝绳网片进场时,应分别按现行国家标准《不锈钢丝绳》 GB/T9944和行业标准《航空用钢侵绳》YB/T5197等的规定见 证抽取试件作整绳破断拉力.弹性模・和伸长率检验。其质置必 须符合上述标准和现行国家标准《混凝土结构加固设计规范》
13
标准分享网WWW. bzfxw. com免费下载
GB 50367的规定。
检查数量:按进场批次和产品抽样检验方案确定。
检验方法:检查产品质量合格证、出厂检驗报告和进场复验 报告。
注:单股钢丝绳也称钢绞线(图4.2.6b),但不得擅自将6X7+1WS 金属股芯不松散钢丝绳改称为钢狡线。若施工图上所写名称不符 合本规范规定,应要求设计单位和生产厂家书面更正,否则不得 付诸施工。
 
(a) 6X7+ΓWS钢丝縄 (b) IX19钢絞线(单股钢丝瓶)
图4. 2. 6钢丝绳的结构形式
4.2.7结构加固用的钢丝绳网片,其经绳与纬绳的品种、规格、 数量、位置以及相应的连接方法应符合设计要求,其连接质量应 牢固,无松弛、错位。
检查数量:全数检查。
检验方法:观察,手拉。
(II)-般项目
4.2.8加固用钢筋应平直、无损伤,表面不得有裂纹、油污以 及颗粒状或片状老锈,也不得将弯折钢筋敲直后作受力筋使用。
检查数量:全数检查。
检验方法:观察。
4.2∙9型钢、钢板以及连接用的紧固件,其外观质量及尺寸偏 差,应按现行国家标准《钢结构工程施工质量验收规范》GB 50205的规定进行检查和合格评定。其检查数量及检验方法也应
14
符合该规范的要求。
4∙2∙10预应力筋和预应力撑杆,以及其锚固件、锚夹具等零部 件,其外观质量及尺寸偏差应符合现行国家标准《混凝土结构工 程施工质量验收规范》GB 50204的规定。其检查数量及检验方 法也应符合该规范的要求。
4.2.11冷拔低碳退火钢丝的表面不得有裂纹、机械损伤、油污 和锈蚀。
检查数量:全数检查。
检验方法:观察;油污可用吸湿性好的薄纸擦拭检查。
4.2∙12结构加固用的钢丝绳不得涂有油脂。
检查数量:全数检查。
检验方法:拆散钢丝绳进行触摸检查。必要时也可用沸水浸 泡检查。
4.3焊接材料
(I)主控项目
4.3.1结构加固用的焊接材料,其品种.规格、型号和性能 应符合现行国家产品标准和设计要求。焊接材料进场时应按现 行国家标准《碳钢焊条》GB/T 5117s《低合金钢焊条》GB/T 5118等的要求进行见证取样复验。复验不合格的焊接材料不 得使用。
检查数量:应按产品复验抽样并符合本规范附录D的规定。
检查方法:检查产品合格证.中文标志及出厂检验报告和进 场复验报告。
(JOD一般项目
4.3.2蟬条应无焊芯锈蚀、药皮脱落等影响焊条质量的损伤和 缺陷;燜剂的含水率不得大于现行国家相应产品标准规定的允 许值。
15
标准分享网WWW. bzfxw. com免费下载
检查数量:按使用量1%,且不少于10包抽查。当使用量 少于10包时,应全数检查。
检验方法:观察及测定焊条含水率。
4.4结构胶粘剂
(I)主控项目
4.4.1加固工程使用的结构胶粘剂,应按工程用量一次进场到 位。结构胶粘剂进场时,施工单位应会同监理人员对其品种、级 别、批号、包装、中文标志、产品合格证、出厂日期、出厂检验 报告等进行检查;同时,应对其钢-钢拉伸抗剪强度、钢-混凝土正 拉粘结强度和耐湿热老化性能等三项重要性能指标以及该胶粘剂 不挥发物含量进行见证取样复验;对抗震设防烈度为7度及7度以 上地区建筑加固用的粘钢和粘贴纤维复合材的结构胶粘剂,尚应进 行抗冲击剥离能力的见证取样复睑;所有复验结果均须符合现行国 家标准《混凝土结构加固设计规范》③50367及本规范的要求。
检验数量:按进场批次,每批号见证取样3件,每件每组分 称取500g,并按相同组分予以混匀后送独立检验机构复检。检 验时,每一项目每批次的样品制作一组试件。
检验方法:在确认产品批号、包装及中文标志完整的前提 下,检查产品合格证、出厂日期、出厂检验报告、进场见证复验 报吿,以及抗冲击剥禽试件破坏后的残件。
4.4.2结构胶粘剂安全性能复验采用的测定方法应符合下列 规定:
1钢-钢拉伸抗剪强度应按现行国家标准《胶粘剂拉伸剪 切强度的测定(刚性材料对刚性材料)》GB/T 7124测定,但钢 试片应经喷砂处理。
2钢■■混凝土正拉粘结强度、抗冲击剥离能力和胶粘剂不挥 发物含量,应分别按本规范附录E、附录F和附录G测定。其 中,抗冲击剥离试件破坏后的残件,应经设计人员确认其剥离长
16
度后,方允许销毁。
4.4∙3对结构胶粘剂性能和质量的复验,宜先测定其不挥发物 含量:若测定结果不合格,便不再对其他复验项目进行测定,而 应检查该结构胶存在的质量问题。若发现有问题,应弃用该型号 胶粘剂。•
4.4.4结构胶粘剂耐湿热老化性能的见证抽样复验应符合下列 规定:
1对进入加固市场前未做过该性能验证性试验的产品,应 将见证抽取的样品送独立检测机构补做验证性试验。其试验方法 及评定标准应符合现行国家标准《混凝土结构加固设计规范》 GB 50367及本规范附录H的规定:
2对该性能已通过独立检测机构验证性试验的产品,其进 场复验,应按本规范附录J的规定进行快速检测与评定;
3当一种胶粘剂的快速复验不合格时,允许重新采用本规 范附录H规定的试验方法,以加倍试件数量再进行复验。若复 验合格,允许改评为符合耐老化性能要求的结构胶粘剂;
4不得使用仅具有湿然老化性能快速复验报告的胶粘剂。
4.4.5加固工程中,严禁使用下列结构胶粘剂产品:
1过期或出厂日期不明;
2包装破损、批号涂毁或中文标志、产品使用说明书为复 印件;
3掺有挥发性溶剂或非反应性稀释剂;
4固化剂主成分不明或固化剂主成分为乙二胺;
S游离甲醛含量超标;
6以"植筋-粘钢两用胶"命名。
注:过期胶粘剂不得以厂家出具的“质■保证书"为依据而擅自延长 其使用期限。
4.4.6结构胶粘剂的主要工艺性能指标应符合表4.4. 6的规定。 结构胶粘剂进场时,应见证取样复验其混合后初黏度或触变 指数。
17
标准分享网WWW. bzfxw. com免费下载
表4.4.6结构胶粘剂工艺性能要求
| 工艺性能指标__ | |||||||||
| . 结构胶粘剂类别' 及其用途 | 混合后 初黏度 (mPa ∙ s) | ^^ 指数 | 25(下 垂流度 (πκn) | 在各季节试验温度 下測定的适用期 (min) | |||||
| 春秋用 (23'C) | 夏用 (30*C) | 冬用 (10 9) | |||||||
| ___底胶 | ≤600 | — | — | >60 | >30 | 60-180 | |||
| 修补胶 一 | — | >3.0 | ≤2∙0 | >50 | >35 | 50~180 | |||
| 纤维复 合材届 构胶 | ^^ | A级 | — | >3.0 | — | >90 | >60 | 90—240 | |
| B级 | — | >2.2 | — | >80 | >45 | 80—240 | |||
| A级 | — | 沁0 | ≤2∙0 | ≥50 | ≥40 | 50~180 | |||
| 涂刷型粘髒梅胶 | A级 | — | >4.0 | ≤2∙0 | >50 | >40 | 50~180 | ||
| B级 | — | >3.0 | <2.0 | ≥40 | >30 | 40 〜180 | |||
| "言型粘瞄构胶 | A级 | ≤1000 | — | — | 》40 | 》30 | 40~210 | ||
| 裂缝利 ^›弦 用胶 | 0.05≤tt<0.2 | A级 | ≤1SO | — | — | ≥50 | >40 | 5O~21O | |
| 0.2≤%^<0.5 | ≤300 | — | — | ≥40 | ≥30 | 40 〜180 | |||
| 0.5<wCl. 5 | ≤800 | — | — | >30 | ≥2O | 3O~18O | |||
| 锚固用快固型结构胶 | A级 | —' | 沁0 | ≤2∙0 | 10—25 | 5—15 | 25 〜60 | ||
| 锚固用非快固型结构胶 | A级 | — | X.0 | ≤2,0 | 》40 | ≥30 | 40~120 | ||
| B级 | 沁0 | <20 | ≥40 | >25 | 40~120 | ||||
| 试验方^⅛s准 | 本规范 附录K | 本规范 附录L | GNT 13477 | GB/T 7123.1 | |||||
注:1表中的指标,除已注明外,均是在(23士0.5)‘C试验温度条件下测定;
2当表中仅给出A级皎的指标时,表明该用途不允许使用B级胶;
3表中符号W为裂缝宽度,其单位为mm;
4当外粘钢板采用压力顯注法施工时,其结构胶工艺性能指标应按"压注型粘钢 结构胶"一栏的规定值采用;
5对快固型植筋、锚栓用胶的适用期.本表根据不同型号产品的特性和工程的要 求规定了一个范刖。选用时.应由设计单位与厂家事先商定,且厂家应保证其 产品在适用期内能良好地完成注股作业;
6快固型植筋胶粘剂在锚孔深度大于8æmm的情况下使用时,厂家应提供气动 或电动注胶器及全套配件,并派技术人员进行操作指导;
7当裂缝宽度u>2. Omm时,宜按本规范表4. & 1的规定,采用注浆刊修补裂缝;
8当按本表所列试睑方法标准测定胶液的垂流度(下垂度)时,其模具深度应 改为3mm,且干燥箱内温度应调节到(25±2)'C。
18
检查数量:同本规范第4.4.1条。
检验方法:检查产品出厂检验合格报告和进场复验报告。
4.4.7封闭裂缝用的结构胶粘剂进场时,应对其品种、级别、 包装、中文标志、出厂日期、出厂检验合格报告等进行检查;若 有怀疑时,应对其安全性能和工艺性能进行见证抽样复验,其安 全性能复验结果应符合现行国家标准《混凝土结构加固设计规 范》GB 50367对纤维复合材粘结用胶的B级胶规定;其工艺性 能复验结果应符合本规范表4. 4. 6的规定。
检查数量:按进场的批次和产品复验抽样,符合本规范附录 D的规定C
检验方法:在确认产品包装及中文标志完整性的前提下,检 查产品合格证、出厂日期、出厂检验报告与进场复验报告。
(Il)-般项目 ^
4.4.8结构胶粘剂的外观质量应无结块、分层或沉淀。若在拌 胶过程中发现这些现象,应及时通知监理人员确认,且立即停止 在结构加固工程中使用。
检查数量:全数检查}
检验方法:观察判断,或送专业机构鉴定。
V 4.5纤维材料
(I)主控项目
4.5.1碳纤维织物(碳肝维布)、碳纤维预成型板(以下简称板 材)以及玻璃纤维织物(玻璃纤维布)应按工程用量一次进场到 位。纤维材料进场时.施工单位应会同监理人员对其品种、级别、 型号、规格、包装、中文标志、产品合格证和出厂检验报告等进 行检查,同时尚应对下列重要性能和质量指标进行见证取样复验:
1纤维复合材的抗拉强度标准值、弹性模量和极限伸长率; 2纤维织物单位面积质量或预成型板的纤维体积含量;
19
标准分享网WWW. bzfxw. com免费下载
3碳纤维织物的K数。
若检险中发现该产品尚未与配套的胶粘剂进行过适配性试 验,应见证取样送独立检测机构,按本规范附录E及附录N的 要求进行补检。
检查、检疆和复験结果必须符合现行国家标准《混凝土結构 加固设计规范》GB 50367的规定及设计要求。
检查数量:按进场批号,每批号见证取样3件,从每件中, 按每一检验项目各裁取一组试样的用料。
检验方法:在确认产品包装及中文标志完整性的前提下,检查 产品合格证、出厂检验报告和进场复验报告;对进口产品还应检查 报关单及商检报告所列的批号和技术内容是否与进场检查结果相符。
注:1纤维复合材抗拉强度应按现行国家标准《定向纤维增强塑料拉 伸性能试验方法》GB/T3354测定,但其薨脸的试件数■不得 少于15个,且应计算其试验结果的平均值、标准差和变异系 数,供确定其强度标准值使用;
2纤维织物単位面积质■应按现行国家标准《增强制品试验方法 第3部分:单位面积质量的测定》GB/T9914.3进行检测;碳 纤维预成型板材的纤维体积含量应按现行国家标准《碳纤维增 强塑料体积含量试验方法》GB/T3366进行检测;
3碳纤维的K数应按本规范附录M判定。
4.5.2结构加固使用的碳纤维,严禁用玄武岩纤维、大丝束碳纤 维等替代。结构加固使用的S玻璃纤维(高强玻璃纤维)、E玻璃纤 维(无碱玻璃纤维),严禁用A玻璃纤维或C玻璃纤雄替代。
4.5.3纤维复合材的纤维应连续、排列均匀;织物尚不得有皱 褶、断丝、结扣等严重缺陷:板材尚不得有表面划痕、异物夹 杂、层间裂纹和气泡等严重缺陷。
检查数量,全数检查.
检验方法,观察,或用放大镜检查。
4.5.4纤维织物单位面积质量的检测结果,其允许偏差为 ±3%;板材纤维体积含量的检测结果,其允许偏差为戏%。
检查数量:按进场批次,每批抽取6个试样。
20
检验方法:检查产品进场复验报告。
(ID一般项目
4.5.5碳纤维织物的缺纬、脱纬,每IOOm长度不得多于3处J碳 纤维织物的断经(包括单根和双根),每IOom长度不得多于2处。
玻璃纤维织物的疵点数,应不超过现行行业标准《无碱玻璃
纤维布》JC/T 170的规定Q
检查数量:全数检查。
检验方法:检查出厂检验报告。若此报告缺失,应进行 补检。
4.5.6纤维织物和纤维预成型板的尺寸偏差应符合表4. 5.6的 规定。
表4.5.6纤维材料尺寸偏差允许值
| 检验项目 | . 纤维织物 | 纤维预成型板 | 
| 长度偏差'(%) | ±1,5 | ±1.0 | 
| 宽度偏差(义) | 土 Q5 | 土 0.5 | 
| 厚度偏差(mm) | — | 士 0. 05 | 
检查数量:每批6个试样。 v ILC
检验方法:长度采用精度为l≡n钢尺测量;宽度采用精度为 0. 5mm的钢尺测量;厚度采用精度为0.02mm的游标卡尺测量。
4.6水源砂浆原材料
(I)主控项目
4.6.1配制结构加固用砂浆的水泥,其品种、性能和质量应符 合本规范第4. Ll条的规定:其检查数量及检验方法也应符合该 条的规定。
4.6.2配制砂浆用的外加剂,其性能和质量应符合现行国家标 准《砌体工程施工质量验收规范》GB 50203的规定。其检查数
21
标准分享网WWW. bzfxw. com免费下载
量及检验方法也应按该规范的规定执行。
(ID一般项目
4.6.3配制砂浆用的砂和拌•合水,其质量应分别符合本规范第 4.1. 4条及第4.1. 5条的规定,其检查数量及检验方法也应按该 条的规定执行。
4.7聚合物砂浆原材料
(I)主控项目
4. 7.1配制结构加固用聚合物砂浆(包括以复合砂浆命名的聚 合物砂浆)的原材料,应按工程用置一次进场到位。聚合物原材 料进场时,施工单位应会同监理单位对其品种、型号、包装、中 文标志、出厂日期、出厂检验合格报告等进行检查,同时尚应对 聚合物砂浆体的劈裂抗拉强度、抗折强度及聚合物砂浆与钢粘结 的拉伸抗剪强度进行见证取样复验。其检查和复验结果必须符合 现行国家标准《混凝土结构加固设计规范》GB 50367的规定。
检查数量:按进场批号,每批号见证抽样3件,每件每组分 称取500g,并按同组分予以混合后送独立检测机构复验。检验 时,每一项目每批号的样品制作一组试件。
检验方法:在确认产品包装及中文标志完整性的前提下,检 查产品合格证、出厂日期、出厂检验合格报告和进场复验报告。
注:聚合物砂浆体的劈裂抗拉强度、抗折强度及聚合物砂浆拉伸抗剪强 度应分别按本规范附录P、附录Q及附录R规定的方法进行测定。
4.7.2当采用镀锌钢丝绳(或钢绞线)作为聚合物砂浆外加层 的配筋时,除应将保护层厚度增大IOmm并涂刷防碳化涂料外, 尚应在聚合物砂浆中掺入阻锈剂,但不得掺入以亚硝酸盐等为主 成分的阻锈剂或含有氯化物的外加剂。
检查数量:按进场批次并符合本规范附录D的规定。
检验方法:检查产品合格证书,证书中应有该产品不含有害
22
成分的保证;同时还应检查进场复验报告。
(Il)一般项目
4.7.3聚合物砂浆的用砂,应采用粒径不大于2. 5mm的石英 砂配制的细度模数不小于2. 5的中砂。其使用的技术条件,应按 设计强度等级经试配确定。
检查数量:按进场批次和试配试验方案确定。
检验方法:检查试配试验报告,
4ɪ8裂缝修补用注浆料
(I)主控项目
4.8.1混凝土及砌体裂縫修补用的注浆料进场时,应对其品种、 型号、出厂日期及出厂检验报告等进行检查;当有恢复截面整体 性要求时,尚应对其安全性能和工艺性能进行见证抽样复验,其 复检结果应符合现行国家标准《混凝土结构加固设计规范》GB 50367及本规范表4. 8.1的要求。
表4.8.1混凝土及砌体裂缝用注浆料工艺性能要求
| 检喩项目 | 注浆料性能指标 | 试验方法标准 | ||
| 改性环氧类 | 改性水泥基类 | |||
| 密度(g∕g*) | >1.0 | — | GB/T 13354 | |
| 初始黏度(mPa , s) | ≤1500 | — | 本规范附录K | |
| 流动度 [自流) | 初始值(mm) | — | >380 | GB/T 50448 | 
| 30min保留率《%) | — | ≥90 | ||
| 竖向 膨胀率 | 3h〈%) | — | >6 10 | GB/T 50448 及 GB/T 50119 | 
| 2妬与3h之差值(%) | — | 0. 02~。. 20 | ||
| 23(下7d无约束线性收缩率(%) | ≤d 10 | 一 | HG/T 2625 | |
| 泌水率(%)’ | — | 0 | GB/T 50080 | |
| 25簿测定的可操作时间(TniG | 》60 | ≥90 | GB/T 7123 | |
23
标准分享网WWW. bzfxw. com免费下载
续表4.8.1
| 检验项目 | 注浆料性能指标 | 试晚方法标准 | |
| 改性环氧类 | 改性水泥基类 | ||
| 适合注浆的裂缝宽度w(mɪn) | 1. 5Vw≤3. 0 | 3. 0<tt≤5.0 且符合产品 说明书规定 | — | 
注:1适合注浆的裂缝宽度系指有恢复截面整体性要求的情况而言,若仅要求封 闭、填充表缝,可按产品使用说明书给出的B值,通过试灌注确定.
2当混凝土构件有补强要求时,应采用裂缝修补胶(注射剂),其工艺性能应 符合本规范表4. 4. 6的要求。
4. 8. 2改性环氧类注浆料中不得含有挥发性溶剂和非反应性稀 释剂;改性水泥基注浆料中氯离子含量不得大于胶凝材料质量的 0. 05%。任何注浆料均不得对钢筋及金属锚固件和预埋件产生腐 蚀作用。
4.8.3注浆料工艺性能复验项目,对环氧改性类应为拌合后初 黏度及线性收缩率;对其他聚合物改性类应为流动度、竖向膨胀 率及泌水率。
检查数量:按进场的批次和产品复验抽样并符合本规范附录 D的规定。
检验方法:在确认产品包装及中文标志完整性的前提下,检 査产品合格证、出厂日期、出厂检验报告和进场复验报告。
(II)-般项目
4.8.4水泥基注浆料用水的水质应符合本规范第4.1.5条的 规定。
4.8.5灌注裂缝用的器具及封缝材料的质量应符合现行国家相 应产品标准的规定。
检查数量:按进场的批次和产品的抽样检验方案确定。
检验方法:检查产品合格证、出厂检验报告及试灌注报告。
24
4.9混凝土用结构界面胶(剂)
(I)主控项目
4.9.1混凝土用结构界面胶(也称结构界面剂),应采用改性环 氧类界面胶(剂),或经独立检验机构确认为具有同等功效的其 他品种界面胶(剂)。
4.9.2结构界面胶(剂)应一次进场到位。进场时,应对其品 种、型号、批号、包装、中文标志、出厂日期、产品合格证、出 厂检验报告等进行检查,并应对下列项目进行见证抽样复验:
1与混凝土的正拉粘结强度及其破坏形式;
2剪切粘结强度及其破坏形式;
3耐湿热老化性能现场快速复验。
复験结果必须分别符合本规范附录E、附录S及附录J的 规定。
注:结构界面胶(剂)耐湿热老化快速复验,应采用本规范附录S规 定的剪切试件进行试験与评定。
检查数量:按进场批次,每批见证抽取3件;从每件中取出 一定数量界面胶(剂)经混匀后,为每一复验项目制作5个试件 进行复验。
检验方法:在确认产品包装及中文标志完整的前提下,检查 产品合格证.出厂检验报告和进场复验报告。
(Il)-般项目
4∙9.3对结构界面胶(齐I])的新产品,在使用前,应进行现场 试涂刷。其涂刷工艺(包括涂刷前对原构件粘合面的洁净处理) 应按产品使用说明书及该H程施工图的规定和要求执行。
检查数量:对每项工程应至少试涂刷三个界面。
检验方法:通过观察其可操作性,检查其涂刷质量的均匀 性,对该产品的工艺性能作出是否可以接受的评价。
25
标准分享网WWW. bzfxw. com免费下载
4.10结构加固用水泥基灌浆料
(I)主控项目
4.10.1混凝土结构及砌体结构加固用的水泥基灌浆料进场时, 应按下列规定进行检查和复验:
1应检查灌浆料品种、型号、出厂日期、产品合格证及产 品使用说明书的真实性;
2应按表4.10.1规定的检验项目与合格指标,检查产品出 厂检验报告,并见证取样复验其浆体流动度、抗压强度及其与混 凝土正拉粘结强度等3个项目。若产品出厂报告中有漏检项目, 也应在复验中予以补检;
3若怀疑产品包装中净重不足,尚应抽样复验。复验测定 的净重不应少于产品合格证标示值的99%。
检查数量:按进场批次和产品复验抽样规定(本规定附录 D)确定。
检验方法:检査产品出厂检验报告和进场复验报告。
表4.10.1结构加固用水泥基灌浆料安全 性能及重要工艺性能要求
| 检驗项目 | 龄期 (d) | 技术指标 | 试验方法标准 | ||
| 最大骨料粒径《mm) | — | ≤4 | JC/T 986 | ||
| 流动度 | 初始值(mm) | — | ≥300 | GB/T 50448 | |
| 30min保留率(%〉 | — | ≥90 | |||
| 竖向膨胀率 〈%) | 3h | — | ≥0-10 | GB/T 50448 及 GB/T 50119 | |
| 24h与3h之差值 | — | 0.020~0. 20 | |||
| 泌水率(%) | — | •0 | GB/T 50448 | ||
26
续表4.10.1
| 检验项目 | 龄期 館) | 技术指标 | 试验方法标准 | |
| 抗压强度(YPa) | 7d | >40 | JGJ 70 | |
| 28d | >55 | |||
| 劈裂抗拉强度(MPa) | 28 | >5,0 | 本规范附录P | |
| 抗折强度(MPa) | 28 | >10.0 | 本规范附录Q | |
| 与C3Q混凝土正拉粘结强度 (MPa) | 28 | NL 8,且为混 凝土内聚破坏 | 本规范附录E | |
| 与钢艦贊度I热轧带肋钢筋 | 28 | >12.0 | DL/T 5150 | |
| 对钢筋腐蚀作用 | 0(新拌 浆料) | 无 | GB/T 8076 | |
| 浆液中氯离子含量(%) | 0(新拌 浆料) | 不大于胶凝材 斜质量的0.05 | GB/T 8077 | |
注:表中各项目的性能检验,应以产品规定的最大用水量制作试样。
4.10.2当不同标准给出的检验项目和性能指标有差别时,对建 筑结构加固设计和施工,必须执行本规范的规定;若水泥基灌浆 料产品检验结果不符合本规范表4.10.1的要求,应改用环氧改 性水泥基灌浆料,并重新按本表的要求进行检验。
(Il)一殻项目
4.10.3配制灌浆料的用水.其水质应符合本规范第4.1. 5条的 规定。
检查数量:同一水源检查不应少于1次。
检验方法:送独立检测机构化验。
4∙ 11锚 栓
(I)主控项目
4.11.1结构加固用锚栓应采用自扩底锚栓、模扩底锚栓或特殊 倒锥形锚栓,且应按工程用量一次进场到位。进场时,应对其品
27
标准分享网WWW. bzfxw. com免费下载
种、型号、规格、中文标志和包装、出厂检验合格报告等进行检 查,并应对锚栓钢材受拉性能指标进行见证抽样复验,其复验结 果必须符合现行国家标准《混凝土结构加固设计规范》GB 50367的规定。
对地震设防区,除应按上述规定进行检查和复验外,尚应复 查该批锚栓是否属地震区适用的锚栓。复查应符合下列要求:
1对国内产品,应具有独立检验机构出具的符合行业标准 《混凝土用膨胀型、扩孔型建筑锚栓》JG 160-2004附录F规定 的专项试验验证合格的证书;
2对进口产品,应具有该国或国际认证机构检验结果出具 的地震区适用的认证证书。
检查数量:按同一规格包装箱数为一检验批,随机抽取3箱 (不足3箱应全取)的锚栓,经混合均匀后,从中见证抽取5%, 且不少于5个进行复验;若复验结果仅有一个不合格,允许加倍 取样复験;若仍有不合格者,则该批产品应评为不合格产品。
检验方法:在确认锚栓产品包装及中文标志完整性的条件 下,检查产品合格证、出厂检验报告和进场见证复验报告;对扩 底刀具,还应检查其真伪;对地震设防区,尚应检查其认证或验 证证书。
4.11.2钢锚板的钢种、规格、质量等应符合现行国家相应产品 标准要求。对设计有复验要求的钢锚板,应进行见证抽样复验, 其复验结果应符合本规范第4. 2. 2条的要求。 ^
检查数量:以现行相应的产品标准为依据,按进场批号逐批 检查。当设计有复验要求时,应按每批的钢锚板总数见证抽取 1%。,且不少于3块进行复验。
检验方法:检查产品合格证、出厂检验报告和进场见证复验 报吿O
(Il)-般项目
4.11.3锚栓外观表面应光洁、无锈、完整,栓体不得有裂纹或
28
其他局部缺陷;螺纹不应有损伤。
检查数量:按包装箱数抽査5%,且不应少于3箱。
检验方法:开箱逐个目测检查。
4.U.4钢锥板应平直、完整;表面不得有锈蚀、裂纹,端边不 得有分层、夹渣等缺陷。
检查数量:全数检查。
检验方法:观察。
/VW
29
标准分享网WWW. bzfxw. com免费下载
S混凝土构件增大截面工程
5.1 一般规定
5.1.1本章适用于钢筋混凝土构件增大截面加固工程的施工过 程控制和施工质量检验。
5.1.2混凝土构件增大截面工程的施工,应按下列程序进行:
1清理、修整原结构、构件;
2安装新增钢筋(包括种植箍筋)并与原钢筋、箍筋连接;
3界面处理;
4安装模板;
5浇筑混凝土;
6养护及拆模;
7施工质量检验。
5.1.3浇筑混凝土前,应对下列项目按隐蔽工程要求进行验收: 1界面处理及涂刷结构界面胶(剂)的质量;
2新增钢筋(包括植筋)的品种、规格、数量和位置;
3新增钢筋或植筋与原构件钢筋的连接构造及焊接质量;
4植筋质量:
5预埋件的规格、位置。
5.1.4混凝土构件新增截面的施工,可根据实际情况和条件选 用人工浇筑、喷射技术或自密实技术进行施工。当有可靠的工程 经验时,也可采用符合本规范要求的潼浆技术进行施工。不论选 用哪种方法或技术,其模板架设、钢筋加工、焊接和安装,以及 新混凝土的配制(包括工作性能检验)、浇筑、养护、强度检验 及拆模时间等,均应按国家标准《混凝土结构工程施工质量验收 规范》GB 50204、本规范第21章以及有关喷射混凝土和自密实 混凝土的技术规程执行,
30
5.2界面处理
(I)主控项目
5.2.1原构件混凝土界面(粘合面)经修整露出骨料新面后, 尚应采用花锤、砂轮机或高压水射流进行打毛;必要时,也可凿 成沟槽。其做法应符合下列要求:
1花锤打毛:宜用1.5kg〜2.5kg的尖头筌石花锤,在混 凝土粘合面上鑒出麻点,形成点深约3mm、点数为600点/m2〜 800点/m2的均匀分布,也可鑒成点深4mm〜5mm、间距约 30mm的梅花形分布。
2砂轮机或高压水射流打毛:宜采用输出功率不小于 340W的粗砂轮机或压力符合本规范附录C要求的水射流.在混 凝土粘合面上打出方向垂直于构件轴线、纹深为3mm〜4mm、 间距约50mm的横向纹路。
3人工凿沟槽:宜用尖锐、锋利凿子,在坚实混凝土粘合 面上凿出方向垂直于构件轴线、槽深约6mm、间距为100mm〜 15Omm的横向沟槽。
当采用三面或四面新浇混凝土层外包梁、柱时,尚应在打毛 同时,凿除截面的棱角.
在完成上述加工后,应用钢丝刷等工具清除原构件混凝土表 面松动的骨料、砂砾、浮渣和粉尘,并用清洁的压力水冲洗干 净。若采用喷射混凝土加固,宜用压缩空气和水交唐冲洗干净。
检查数量:全数检查。
检验方法:观察和触摸;有争议时,可用测深仪复查其平均 深度。
5.2.2原构件混凝土的界面,应按设计文件的要求涂刷结构界 面胶(剂):结构界面胶(⅛)的进场复验,应符合本规范第 4.9.2条的规定:界面胶(施)'的涂刷方法及质量要求应符合该 产品使用说明书及施工图搦!的飘定。 '
31
标准分享网WWW. bzfxw. com免费下载
对板类原构件,除涂刷界面胶(剂)外,尚应锚人直径不小 于6mm的r形剪切销钉;销钉的锚固深度应取板厚的2/3;其 间距应不大于300mm;边距应不小于70mm。锚固销钉用胶的 性能应符合现行国家标准《混凝土结构加固设计规范》 GB 50367的要求。
检查数量:全数检查。
检验方法:观察,并检查界面胶(剂)复验报告、剪切销钉 锚固承载力现场检验报告以及施工记录Ο
5.2.3原构件钢筋的外露部分在除锈时,若发现锈蚀已导致其 截面削弱严重,尚应通知设计单位,并按设计补充图纸进行 补筋。
检查数量;全数检查。
检验方法:按图核对,并检查施工记录。
(Il)-般项目
5.2.4涂刷结构界面胶(剤)前,应对原构件表面界面处理质 量进行复查,不得有漏剔除的松动石子、浮砂以及漏补的裂缝和 漏清除的其他污垢等。
检查数量:全数检查。
检验方法:观察,并辅以钢丝刷或其他小工具检查。
5.3新增截面施工
(I)主控项目
5.3.1新增受力钢筋、箍筋及各种锚固件、预埋件与原构件的 连接和安装,除应符合现行国家标准《混凝土结构加固设计规 范》GB 50367的构造规定和设计要求外,尚应符合现行国家标 准《混凝土结构工程施工质量验收规范》GB 50204的规定。
检查数量:全数检查;当有植筋时,应按本规范第19章确 定检查数量。
32
检验方法:观察、钢尺检查;当有植筋时,应按本规范第 19章的规定进行检验。
5.3.2新增混凝土的强度等级必须符合设计要求。用于检查结 构构件新增混凝土强度的试块,应在监理工程师见证下,在混凝 土的浇筑地点随机抽取。取样与留置试块应符合下列规定:
1每拌制50盘(不足50盘,按50盘计)同一配合比的混 凝土,取样不得少于一次;
2每次取样应至少留置一组标准养护试块;同条件养护试 块的留置组数应根据混凝土工程量及其重要性确定,且不应少于 3组。
检验方法:检查施工记录及试块强度试验报告。
5.3∙3若试块不慎丢失:漏取或受损;或对试块强度试验报告 有怀疑时,应经监理单位核实并同意后,由独立检测机构按本规 范附录T的规定,选用适宜的现场非破损检测方法推定新增混 凝土强度.
检查数量:按本规范附录T的取样规则确定。
检验方法:按本规范附录T规定的检测方法执行,并检查 现场非破损检测报告。
(K) 一般项目
5.3.4混凝土浇筑完毕后,应按施工技术方案及时采取有效的 养护措施,并应符合下列规定:
1在浇筑完毕后应及时对混凝土加以覆盖并在12h以内开 始浇水养护;
2混凝土浇水养护的时间:对采用硅酸盐水泥、普通硅酸 盐水泥或矿渣硅酸盐水泥拌制的混凝土,不得少于7d;对掺用 缓凝剂或有抗渗要求的混凝土,不得少于14"
3浇水次数应能保持混凝土处于湿润状态;混凝土养护用 水的水质应与拌制用水相同:
4采用塑料布覆盖养护的混凝土,其敞露的全部表面应覆
33
标准分享网WWW. bzfxw. com免费下载
盖严密,并应保持塑料布内表面有凝结水;
5混凝土强度达到L2MPa前,不得在其上踩踏或安装模 板及支架。
注:1当日平均气温低于52时,不得浇水;
2当采用其他品种水泥时,混凝土的养护时间,应根据所采用水 泥或混合料的技术性能确定;
3混凝土的表面不便浇水或使用塑料布覆盖时.应涂刷养护剂; 养护剂的性能和质量应符合现行行业标准《水泥混凝土养护 剂》JC/T 901的要求.
检查数量:全数检查。
检验方法:观察,检查施工记录。
5.4施工质量检验
(I)主控项目
5. 4.1新增混凝土的浇筑质量缺陷,应按表5. 4.1进行检查和 评定:其尺寸偏差应按设计单位在施工图上对重要部位尺寸所注
的允许偏差进行检查与评定。
表S.4.1新增混凝土浇筑质■缺馅
| 名称 | 现象 | 严重缺陷— | 一般缺陷 | 
| 露筋 | 构件内钢筋未被混 凝土包裹而外露 | 发生在纵向受力 钢筋中 | 发生在其他鋼筋中, 且外露不多 | 
| 蜂窝 | 混凝土表面缺少水 泥砂浆致使石子外露 | 出现在构件主要 受力部位 | 出现在其他部位, 且范围小 | 
| 孔洞 | 混凝土的孔洞深度 和长度均超过保护层 厚度 | 发生在构件主要 受力部位 | 发生在其他部位, 且为小孔洞 | 
| 夹杂异物 | 混凝土中夹有异物 且深度超过保护层 厚度 | 出现在构件主要 受力部位 | 出现在其他部位・ | 
34
续表5.4.1
| 仝称 | 现象 | 严重缺陷 | 一般缺陷 | 
| 内部疏松 或分离 | 混凝土局部不密实 或新旧混凝土之间 分离 | 发生在构件主要 受力部位 | 发生在其他部位, 且范围小 | 
| 新浇混凝 土出现 裂缝 | 缝隙从新增混凝土 表面延伸至其内部 | 构件主要受力部 位有影响结构性能 或使用功能的裂缝 | 其他部位有少量不 影响结构性能或使用 功能的裂缝 | 
| 连接部 位缺陷 | 构件连接处混凝土 有缺陷•连接钢筋、 连接件、后锚固件有 松动 | 连接部位有松动, 或有影响结构传力 性能的缺陷 | 连接部位有尚不影 响结构传力性能的 缺陷 | 
| 表面缺陷 | 因材料或施工原因 引起的构件表面起砂、 掉皮 | 用刮板检查,其 深度大于5mm | 仅有深度不大于 5mm的局部凹陷 | 
注:1当检查混凝土浇筑质母时,若发现有麻面、缺棱、掉角、棱角不直,翘曲
不平等外形缺陷,应责令施工单位进行修补后,重新检查验收。
2潮浆料与细石混辘土拌制的混合料,其淡濫质擎缺陷也应按本表检査和 评定.
5.4.2新增混凝土的浇筑质量不应有严重缺陷及影响结构性能 和使用功能的尺寸偏差。
对已经出现的严重缺陷及影响结构性能和使用功能的尺寸偏 差.应由施工单位提出技术处理方案,经监理(业主)和设计单 位共同认可后予以实施。对经处理的部位应重新检查、验收。
检查数量:全数检查。
检验方法:观察、测量或超声法检测,并检查技术处理方案 和返修记录。
5.4.3新I日混凝土结合面粘结质量应良好。锤击或超声波检测 判定为结合不良的测点数不应超过总测点数的10%,且不应集 中出现在主要受力部位。
检查数量:,每一界面,每隔IoomIn~300mm布置一个 测点。
35
标准分享网WWW. bzfxw. com免费下载
检验方法:锤击或超声波检测。
注:超声检测应按现行国家标准《建筑结构检测技术标准》GB/T 50344的规定执行。
5.4.4当设计对使用结构界面胶(剂)的新旧混凝土粘结强度 有复验要求时,应在新增混凝土 28d抗压强度达到设计要求的当 日,进行新旧混凝土正拉粘结强度(人)的见证抽样检验。检验 结果应符合ft>L5MPa,且应为正常破坏(见本规范附录U 第 U.6. 2条)。
检查数量:按本规范附录U抽样方案确定。
检验方法:按本规范附录U规定的方法进行。
5.4.5新增钢筋的保护层厚度抽样检验结果应合格。其抽样数 量、检验方法以及验收合格标准应符合现行国家标准《混凝土结 构工程施工质量验收规范》GB 50204的规定,但对结构加固截 面纵向钢筋保护层厚度的允许偏差,应改按下列规定执行:
1对梁类构件,为+ 10mm, -3mm;
2对板类构件,仅允许有8mm的正偏差,无负偏差;
3对墙、柱类构件,底层仅允许有IOmm的正偏差,无负 偏差:其他楼层按梁类构件的要求执行。
(口)一般项目
5.4.6新增混凝土的浇筑质量不宜有一般缺陷。一般缺陷的检 查与评定应按本规范表5. 4.1进行。
对已经出现的一般缺陷,应由施工单位按技术处理方案进行 处理,并重新检查验收。
检查数量:全数检查。
检验方法:观察,量测,并检查技术处理方案和返修记录。
5.4.7新增混凝土拆模后,应对构件的尺寸偏差进行检查。其 检查数量、检验方法以及允许偏差值应按现行国家标准《混凝土 结构工程施工质量验收规范》GB 50204执行。
36
6局部置换混凝土工程
& 1 一般规定
6. Ll本章适用于钢筋混凝土结构、构件局部置换混凝土工程 的施工过程控制和施工质量检验。
6.1.2置换混凝土的施工程序.应按施工设计规定的工序(图 6∙L2)进行。
 
 
重板除 承模拆
施工质量 检验
竣工险收
 
非承重 .模板拆除
施工缺陷 返修
 
图6.1.2局部置换混凝土施工程序框图
6.1.3混凝土浇筑前,除应对模板及其支撑进行验收外,尚应 对下列项目进行隐蔽工程验收;
]补配钢筋或箍筋的品种、级别、规格、数量、位置等;.
2补配钢筋和原钢筋的连接方式及质量:.
3界面处理及结构界面胶(剂)涂刷的质量.
37
标准分享网WWW. bzfxw. com免费下载
6.2卸载的实时控制
(I)主控项目
& 2.1被加固构件卸载的力值、卸载点的位置确定、卸载顺序 及卸载点的位移控制应符合设计规定及施工技术方案的要求。
检查数量:全数检查。
检验方法:测量、观测:检查卸载及监控记录。
6.2.2卸载时的力值测量可用千斤顶配置的压力表经校正后进 行测读:卸载点的结构节点位移宜用百分表测读。卸载所用的压 力表、百分表的精度不应低于1.5级,标定日期不应超过半年。
检查数量:全数检查。
检验方法:观察,检查仪表校正合格证及施工监控记录。
6.2.3卸载时,应有全程监控设施和安全支护设施,保证被卸 载结构及其相关结构的安全。
检查数量:全数检查。
检验方法:检查卸载设施的安全性及监控仪器的检定记录。
(ID一般项目
6.2.4当需将千斤顶压力表的力值转移到支承结构上时,可采 用螺旋式杆件和钢楔等进行传递,但应在千斤顶的力值降为零时 方可卸下千斤顶。力值过渡时,应用百分表进行卸载点的位移 控制。
检查数量:全数检查C
检验方法:观测、检查卸载控制记录。
6.2.5卸载的支撑结构应满足承载力及变形要求。其所承受的 荷载应传递到基础上。
检査数量:全数检查。
检验方法:观察,检查施工监控记录。
38
6.3混凝土局部剔除及界面处理
(I)主控项目
6.3.1剔除被置换的混凝土时,应在到达缺陷边缘后,再向边缘 外延伸清除一段不小于50mm的长度B对缺陷范围较小的构件, 应从缺陷中心向四周扩展,逐步进行清除,其长度和宽度均不应 小于20Cmm。剔除过程中不得损伤钢筋及无需置换的混凝土;若 钢筋或混凝土受到损伤,应由施工单位提出技术处理方案,经设 计和监理单位认可后方可进行处理;处理后应重新检查验收。
检查数量:全数检查。
检验方法:检查钢筋和混凝土外观质量•并检查技术处理方 案及施工记录Q
6.3.2新旧混凝土粘合面的界面处理应符合设计规定及本规范 第5.2节的要求,但不歯成沟槽。若用高压水射流打毛,宜按本 规范附录C的规定打磨成垂直于轴线方向的均匀纹路。
检查数量:全数检查。
检验方法:观察。
A
(n)一般项目
6∙3∙3当对原构件混凝土粘合面涂刷结构界面胶(剂)时,其 涂刷质量应均匀,无漏刷。
检查数量:全数检査。
检验方法,观察:并检查施工记录。
6.4置换混凝土施工
(I)主控项目
6∙ 4∙ 1置换混凝土需补配钢筋或箍筋时,.其安装位置及其与原钢 筋焊接方法,应符合设弁规定:其焊接质直应符合现行行业标准
39
标准分享网WWW. bzfxw. com免费下载
《钢筋焊接及验收规程》JGJI8的要求;若发现焊接伤及原钢筋, 应及时会同设计单位进行处理;处理后应重新检查、验收。
检查数量:全数检查。
检验方法:观察、钢尺量测、检查焊接接头力学性能试验报 告及施工记录。
6.4.2采用普通混凝土置换时,其施工过程的质量控制,应符 合本规范第5.3. 2条及第5.3. 3条的规定;其他未列事项应符合 现行国家标准《混凝土结构工程施工质量验收规范》GB 50204 的规定。
检查数量及检验方法按本规范第5. 3. 2条及5. 3. 3条的规定 执行。
6.4.3采用喷射混凝土置换时,其施工过程的质量控制,应符 合有关喷射混凝土加固技术的规定,其检查数量和检验方法也应 按该规程的规定执行。
6.4∙4置换混凝土的模板及支架拆除时,其混凝土强度应达到 设计规定的强度等级。
检查数量:按本规范第5.L4条指定的标准中有关规定 执行。
检验方法:检查施工记录及试块的抗压强度试验报告。
(Il)一般项目
6.4.5混凝土浇筑完毕后,应按施工技术方案及时进行养护。 养护的措施应符合本规范第5. 3. 4条的规定。
检查数量:全数检查。
检验方法:观察,检查施工记录。
6.5施工质量检验
(I)主控项目
6.5.1新置换混凝土的浇筑质量不应有严重缺陷及影响结构性
4。
能或使用功能的尺寸偏差。
对已经出现的严重缺陷和影响结构性能或使用功能的尺寸偏 差,应由施工单位提出技术处理方案,经设计和监理单位认可后 进行处理。处理后应重新检查验收。
检查数量:全数检查。
检验方法:观察、超声法检测、检查技术处理方案及返修 记录。
6.5.2新旧混凝土结合面粘合质量应良好。
检查数量及检验方法按本规范第5.4. 3条的规定执行。
6.5.3当设计对使用界面胶(剂)的新旧混凝土结合面的粘结 强度有复验要求时,应按本规范第5. 4. 4条的规定进行见证抽样 检验和合格评定。
检查数量及检验方法也应按本规范第5.4∙ 4条的规定执行。
6∙ 5. 4钢筋保护层厚度的抽样检验结果应合格。
其抽样数量、检验方法以及合格评定标准应符合现行国家标 准《混凝土结构工程施工质量验收规范》GB 50204及本规范第 5.4. 5条的规定。
(Il)-般项目
6.5.5新置换混凝土的浇筑质量不宜有一般缺陷。
对已经出现的一般缺陷,应由施工单位提出技术处理方案, 经监理单位认可后进行处理,并重新检查验收。
检查数量:全数检查。
检验方法2观察,检查技术处理方案。
6∙5∙6新置换混凝土拆模后的尺寸偏差应符合现行国家标准 《混凝土结构工程施工质量验收规范》GB 50204的规定。
检查数量:按上述规范的规定执行。 ^
检验方法:量测,检查技术处理方案。
41
标准分享网WWW. bzfxw. com免费下载
7混凝土构件绕丝工程
7.1 一般规定
7. Ll本章适用于以退火钢丝缠绕混凝土受压构件工程的施工 过程控制和施工质量检验。
7.1.2混凝土构件绕丝工程的施工程序应符合下列规定:
1清理原结构;
2剔除绕丝部位混凝土保护层;
3界面处理;
4绕丝施工;
5混凝土面层施工;
6旅工质量检验。
7.1.3浇筑混凝土面层前,应对下列项目进行绕丝隐蔽工程 验收:
1界面处理质量;
2绕丝的间距;
3退火钢丝、构造钢筋与原构件钢筋的焊接质量;
4楔紧质量。
7.2界面处理
(I)主控项目
7.2.1原结构构件经清理后,应按设计的规定,凿除绕丝、焊 接部位的混凝土保护层。凿除后,应清除已松动的骨料和粉尘, 并鑿去其尖锐、凸出部位,但应保持其粗糙状态。凿除保护层露 出的钢筋程度以能进行焊接作业为度;对方形截面构件,尚应凿 除其四周棱角并进行圆化加工;圆化半径不宜小于40mm,且不
42
应小于25mm<s然后将绕丝部位的混凝土表面用清洁压力水冲洗 干净Q
检查数量:全数检查。.
检验方法:观察、触摸、圆弧量规检查。
7.2.2原构件表面凿毛后,应按设计的规定涂刷结构界面胶 (剂)。结构界面胶(剂)的性能和质量应符合本规范第4. 9. 2条 的规定。界面胶(剂)的涂刷工艺和涂刷质量应符合产品说明书 的要求。
检查数量:全数检查。
检验方法:观察,并检查施工记录。
(Il)一般项目
7.2,3涂刷结构界面胶(剂)前,应对原构件表面处理质量进 行复查,不得有松动的骨料、浮灰、粉生和未清除干净的污 染物。
检查数量:全数检查。■
检验方法:观察、擦拭、尖头小槌敲探,并检查施工记录。
7.3绕丝施工
" (工)主控项目
Z3J绕丝前,应采用间歇点焊法将钢丝及构造钢筋的端部焊 牢在原构件纵向钢筋上。若混凝土保护层较厚,焊接构造钢筋 时,可在原纵向钢筋上加焊短钢筋作为过渡。
检查数量:全数检查。
检验方法:观察并检查试焊接头的力学性能试验报告。
7.3∙2绕丝应连续,间距应均匀;在施力绷紧的同时,尚应每 隔一定距离以点焊加以固定;绕丝的末端也应与原钢筋焊牢。绕 丝焊接固定完成后,尚应在钢丝与原构件表面之间有未绷紧部位 打入钢片予以楔紧。
43
标准分享网WWW. bzfxw. com免费下载
检查数量:全数检查。
检验方法:锤击法检查。
7.3.3混凝土面层的施工,可根据工程实际情况和施工单位经 验选用人工浇筑法或喷射法。当采用人工浇筑时,其施工过程控 制应符合现行国家标准《混凝土结构工程施工质量验收规范》 GB 50204的规定;其检查数量及检验方法也应按该规范的规定 执行。当采用喷射法时,其施工过程控制应符合有关喷射混凝土 加固技术的规定。其检查数量及检验方法也应按该规程执行。
7.3.4绕丝的净间距应符合设计规定,且仅允许有3mm负 偏差。
检查数量:每个构件抽检绕丝间距3处。
检验方法:钢尺量测。
(II)一般项目
7-3.5混凝土面层模板的架设,当采用人工浇筑时,应符合现 行国家标准《混凝土结构工程施工质量验收规范》GB 50204的 规定。当采用喷射法时,成符合有关喷射混凝土加固技术的 规定。
检查数量:按该规范或规程的要求确定。
检验方法:检查施工记录。
7.3.6混凝土面层浇筑完毕后,应按本规范第5. 3. 4条的规定 及时进行养护。
检查数量:全数检查。
检验方法:观察、检査施工记录。
7.4施工质■检验
(I)主控项目
7.4.1混凝土面层的施工质量不应有严重缺陷及影响结构性能 或使用功能的尺寸偏差。其检查、评定和处理方案应按本规范第
44
5. 4.1条及第5. 4. 2条的规定执行。
7,4.2钢丝的保护层厚度不应小于30mm,且仅允许有3mm正 偏差。
检查数量:随机抽取不少于5个构件,每一构件测量3点。 若构件总数不多于5个,应全数检查.
检验方法:采用钢筋位置测定仪探測。
(Il)-般项目
7.4.3混凝土面层的施工质量不宜有一般缺陷。若发现有一般 缺陷,应按技术处理方案进行处理,并重新检查验收。
检查数量:全数检查。
检验方法:观察,检查技术处理方案。
7∙4∙4混凝土面层拆模后的尺寸偏差应符合下列规定:
1面层厚度:仅允许有5mm正偏差,无负偏差;
2表面平整度:不应大于0.5%,且不应大于设计规定值。
检查数量:每一检验批不少于3个构件,
检验方法:用钢尺检査厚度,用靠尺和塞尺检査平整度。
45
标准分享网WWW. bzfxw. com免费下载
8混凝土构件外加预应力工程
8.1 一般规定
8.1.1本章适用于混凝土构件外加预应力钢拉杆或钢撑杆工程 的施工过程控制和施工质量检验。
8.1.2混凝土构件外加预应力工程的施工方法,应根据设计规 定的预应力大小和工程条件进行选择。预应力值较大时宜用机张 法;若张拉力值较小,且张拉工艺允许时,可采用人工张拉法。 必要时,还可辅以花篮螺栓收紧;当采用预应力撑杆时,宜采用 横向拉紧螺栓建立预应力。
8.1.3混凝土外加预应力工程的施工程序应符合下列规定:
1清理原结构;
2画线标定预应力拉杆(或撑杆)的位置;
3预应力拉杆(或撑杆)制作及锚夹具试装配;
4剔凿锚固佯安装部位的混凝土,并做好界面处理;
5安装并固定预应力拉杆(或撑杆)及其锚固装置、支承 垫板、撑棒、拉紧螺栓等零部件;
6安装张拉装置(必要时);
7按施工技术方案进行张拉并固定;-
8施工质量检验;
9防护面层施工。
8.1.4当采用千斤顶张拉时,应定期标定其张拉机具及仪表。 标定的有效期限不得超过半年。当千斤顶在使用过程中出现异常 现象或经过检修,应重新标定。
8.1.5外加预应力工程的施工,应由具有相应资质等级的预应 力专业施工单位承担。.
8.1.6在浇筑防护面层的水泥砂浆或细石混凝土前,应进行预
46
应力隐蔽工程验收。其内容包括:
1预应力拉杆(或撑杆)的品种、规格、数量、位置等;
2.预应力拉杆(或撑杆)的锚固件、撑棒、转向棒等的品 种、规格、数量、位置等;
3当采用千斤顶张拉时,应验收锚具、夹具等的品种、规 格、数量、位置等;
4锚固区局部加强构造及焊接或胶粘的质量。
8.2制作与安装
(I)主控项目
8.2.1预应力拉杆(或撑杆)制作和安装时,必须复查其品种、 级别.规格、数量和安装位置。复查结果必须符合设计要求。
检查数量:全数检查。
检騎方法:制作前按进场验收记录核对实物;检查安装位置 和数量。
8.2.2预应力杆件锚固区的钢托套、传力预埋件、挡板、撑棒 以及其他锚具、紧固件等的制作和安装质量必须符合设计要求。
检查数量:全数检查。
检验方法:观察,检查交货或交接验收记录及预张拉记录。
8.2.3施工过程中应避免电火花损伤预应力杆件或预应力筋, 受损伤的预应力杆件或预应力筋应予以更换。,
检查数量:全数检查。
检验方法:观察。
(II)-般项目
8.2.4预应力拉杆下料应符合下列要求:
1应采用砂轮锯或切断机下料,不得采用电弧切割;
2当预应力拉杆采用钢丝束,且以徽头锚具锚固时;同束 (或同组)钢丝长度的极差不得大于钢丝长度的1/5000,且不得
47
标准分享网WWW. bzfxw. com免费下载
大于3mm;
检查数量:预应力拉杆总数的3%,且不得少于3束(对钢 丝为3束或3组)。 .
检验方法:观察,钢尺量测。
3钢丝傲头的强度不得低于钢丝强度标准值的98%。
8.2.5钢绞线压花锚成型时,其表面应洁净、无油污:梨形头 尺寸及直线段长度尺寸应符合设计要求。
检查数量:每工作班抽查3件。
检验方法:观察,检查压花锚强度试验报告。
8.2.6锚固区传力预埋件、挡板、承压板等的安装,其位置和 方向应符合设计要求:其安装位置偏差不得大于5mm。
检查数量:全数检查。
检验方法:观察,钢尺检查。
8.3张拉施工
(I)主控项目
8.3.1预应力拉杆张拉前,应检测原构件的混凝土强度:其现 场推定的强度等级应基本符合现行国家标准《混凝土结构设计规 范》GB 50010对预应力混凝土结构的混凝土强度等级的规定。
若构件锚固区填充了混凝土,其同条件养护的立方体试件抗 压强度,在张拉时,不应低于设计规定的强度等级的80%。
检查数量:全数检查。
检验方法:检查原构件混凝土强度检测报吿及锚固区充填混 凝土同条件养护试块的强度试验报告。
8.3.2当采用机张法张拉预应力拉杆时,其张拉力、张拉顺序 和张拉工艺应符合现行国家标准《混凝土结构工程施工质量验收 规范》GB 50204的有关要求,并应符合下列规定:
1应保证张拉施力同步、应力均匀一致;
2应实时控制张拉量;
48
3应防止被张拉构件侧向失稳或发生扭转。
检查数量及检验方法按上述规范执行。
8.3-3当采用横向张拉法张拉预应力拉杆时,应遵守下列规定2
1拉杆应在施工现场调直,然后与钢托套、锚具等部件进 行装配。调直和装配的质量应符合设计要求:
2预应力拉杆锚具部位的细石混凝土填灌、钢托套与原构 件间隙的填塞,拉杆端部与预埋件或钢托套连接的焊缝等的施工 质量应检查合格;
3横向张拉量的控制,可先适当拉紧螺栓,再逐渐放松至 拉杆仍基本平直、尚未松弛弯垂时停止放松;记录此时的读数, 作为控制横向张拉量△h的起点;
4横向张拉分为一点张拉和两点张拉。两点张拉时,应在 拉杆中部焊一撑棒,使该处拉杆间距保持不变(图8.3.3),并 应用两个拉紧螺栓,以同规格的扳手同步拧紧;
5当横向张拉量达到要求后,宜用点焊将拉紫螺栓的螺母
/VW
 
C)两点张拉
图8∙3.3同步对称张拉示意图
~水平拉杆扌2一技紧螺栓革3一被加固构件:4一撑棒
49
标准分享网WWW. bzfxw. com免费下载
固定,并切除螺杆伸出螺母以外部分。
检查数量:全数检查。
检验方法:观察,检查见证张拉施工记录。
8.3.4当采用横向张拉法张拉 预应力撑杆时,应符合下列 规定:
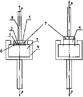
1宜在施工现场附近,先 用缀板焊连两个角钢,形成组合 杆肢,然后在组合杆肢中点处, 将角钢的侧立肢切割出三角形缺 口,弯折成所设计的形状:再将 补强钢板弯好,焊在角钢的弯折 肢面上(图&&4-1)。
2 撑杆肢端部由抵承板
 
图8. 3.4-1角钢缺口处 加焊钢板补强 I一角钢撑杆I 2一剖口处箍板;
3一扑强钢板I4一拉紧爆检
(传力顶板)与承压板(承压角钢)组成传力构造(图8.3.4-
2)。承压板应采用结构胶加锚栓固定于 梁底。传力焊缝的施焊质量应符合现行 行业标准《建筑钢结构焊接技术规程》 JGJ 81的要求。经检查合格后,将撑杆 两端用螺栓临时固定。
3预应力撑杆的横向张拉量应按 设计值严格进行控制,可通过拉紧螺栓 建立预应力(预顶力工
4横向张拉完毕,对双侧加固, 应用缀板焊连两个组合杆肢(图8. 3. 4-3):对单侧加固,应用连接板将压杆肢 焊连在被加固柱另一侧的短角钢上,,以 固定组合杆肢的位置(图8. 3. 4-4)。焊 接连接板时,应防止预压应力因施焊受 热而损失;可采取上下连接板轮流施焊
 
图8.3.4-2撑杆杆肢上 端的传力构造(施加预 应力并就位后)
1 一角钢制承压板;2-T专力 顶板;3一安装用蝦栓I 4一 箍板I 5一胶缝I 6一原柱
50
/VW
 
未施加预应力
已施加預应力
图8.3. 4-3混凝土柱双侧预应力加固的撑杆构造
I一抵承板(传力顶板" 2…撑杆I 3-缀板扌
4一加宽缀板;5一安装螺栓『6一拉紧螺栓
 
51
标准分享网WWW. bzfxw. com免费下载
或同一连接板分段施焊等措施以减少预应力损失。焊好连接板 后,撑杆与被加固柱之间的缝隙,应用细石混凝土或砂浆填塞 密实。
检查数量:全数检查。
检验方法:观察,检查见证张拉施工记录。
8.4施工质量检验
(I)主控项目
8.4.1预应力拉杆锚固后,其实际建立的预应力值与设计规定 的检验值之间相对偏差不应超过±5%。
检查数量:同一检验批抽査不少于1%,且不少于3根。
检验方法:检查见证张拉记录及预应力拉杆应力检测记录。
8.4.2当采用钢丝束作为预应力筋时,其钢丝断裂、滑丝的数 量不应超过每束一根C
检查数量:全数检查。
检验方法:观察,检查张拉记录。
(Il)-般项目
8.4.3预应力筋锚固后多余的外露部分应用机械方法切除,但 其剩余的外露长度宜为25mm0
检查数量:同一检验批内不少于5处。
检验方法:观察,钢尺测量。
52
9外粘或外包型钢工程
9.1 一般规定
9.1.1本章主要适用于混凝土结构、构件外粘型钢(旧称湿式 外包钢)加固工程的施工过程控制和施工质量检验;同时也适用 于混凝土结构、构件无粘结外包型钢(以下简称干式外包钢)加 固工程的施工过程控制和施工质量检验。
9.1.2混凝土结构、构件外粘或外包型钢加固工程的施工程序 应符合下列规定:
1清理、修整原结构、构件并画线定位;
2制作型钢骨架;
3界面处理;
4型钢骨架安装及焊接;
5注胶施工(包括注胶前准备工作);
6养护S
7施工质量检验J ^
j 8防护面层施工Q
注:对干式外包钢,注胶工序应改为壊塞砂浆或灌注水泥基注浆料的 注浆工序。
9.1.3外粘型钢工程的施工环境应符合下列要求:
1现场的温湿度应符合灌注型结构胶粘剂产品使用说明书 的规定:若未作规定,应按不低于15p进行控制。
2操作场地应无粉尘,且不受日晒、雨淋和化学介质污染。
9.1. 4干式外包钢工程施工场地的气温不得低于IOt,且严禁 在雨雪、大风天气条件下进行露天施工。
9.1.5外粘型钢或干式外包钢的钢构件施工过程所需搭设的支 撑和工作平台,应遵守本规范第3章及国家现行有关安全规程的
53
标准分享网WWW. bzfxw. com免费下载
规定。
9.2型钢骨架制作
(I)主控项目
9.2.1钢骨架及钢套箍的部件,宜在现场按被加固构件的修整 后外围尺寸进行制作。当在钢部件上进行切口或预钻孔洞时,其 位置、尺寸和数量应符合设计图纸的要求。
检查数量:全数检查。
检验方法:量测。
9.2.2钢部件的加工、制作质量应符合现行国家标准《钢结构 工程施工质量验收规范》GB 50205的规定。加工、制作质量的 检查数量及检验方法也应按该规范的规定执行。对已经出现的严 重缺陷和损伤,应由施工单位提出技术处理方案,经设计和监理 单位共同认可后,予以实施。对经处理的部位,应重新检查 验收。
9.2.3钢部件及其连接件的制作和试安装不应有影响结构性 能和使用功能的尺寸偏差。其检查数量、检验方法和合格评 定标准应按现行国家标准《钢结构工程施工质量验收规范》 GB 50205的规定执行。对已出现的过大尺寸偏差的部位,应 按设计提出的技术处理方案,由施工单位实施后,重新检查 验收。
(口)一般项目
9.2.4钢部件加工制作外观质量应检査的一般项目,应符合现 行国家标准《钢结构工程施工质量验收规范》GB 50205的规定, 且不宜有一般缺陷。对已出现的一般缺陷,应由施工单位按技术 处理方案实施,并重新检查验收。
54
9.3界面处理
(I)主控项目
9∙3.1外粘型钢的构件,其原混凝土界面(粘合面)应打毛; 打毛的质量应符合本规范第5. 2.1条的要求,但在任何情况下均 不应凿成沟槽。
检查数量:全数检查。
检验方法:观察及触摸。
9.3.2钢骨架及钢套箍与混凝土的粘合面经修整除去锈皮及氧 化膜后,尚应进行糙化处理。糙化可采用砂轮打磨、喷砂或高压 水射流等技术,但糙化程度应以喷砂效果为准Q
注:钢加因件表面处理用的喷砂机,其工作压力应为0.45MP&其所 配的喷砂料应为通过80R筛孔,但通不过60R筛孔的筛余料.
检查数量:全数检查。
检验方法I观察及触摸。
9.3.3干式外包钢的构件,其混凝土表面应清理洁净,打磨平 整,以能安装角钢肢为度。若钢材表面的锈皮、氧化膜对涂装有 影响,也应予以除净。
检查数量:全数检查。
检验方法:观察,以靠尺检查平整度。
(II)-般项目 .
9.3.4原构件混凝土截面的棱角应进行圆化.打磨,圆化半径应 不小于20mm,磨圆的混凝土表面应无松动的骨料和粉尘。
检查数量:全数检查,
检验方法:观察,圆弧样板(靠尺)检查,尖头小槌轻敲。
9.3.5外粘型钢时,其原构件混凝土表面的含水率不宜大于 4%,且不应大于6%。若混凝土表面含水率降不到6%,应改用 高潮湿面专用的结构胶进行粘合。
55
标准分享网WWW. bzfxw. com免费下载
检查数量:每一检验批不少于5处。 检验方法:用含水率测定仪检测。
9.4型钢骨架安装及焊接
(I)主控项目
9.4.1钢骨架各肢的安装,应采用专门卡具以及钢楔、垫片等 箍牢、顶紧;对外粘型钢骨架的安装,应在原构件找平的表面 上,每隔一定距离粘贴小垫片,使钢骨架与原构件之间留有 2mm〜3mm的缝隙,以备压注胶液;对干式外包钢骨架的安装, 该缝隙宜为4mm〜5mm,以备填塞环氧胶泥或压入注浆料。
检查数量:全数检查。
检验方法:用塞尺或钢片检查。
9.4.2型钢骨架各肢安装后,应与缀板、箍板以及其他连接件 等进行焊接。焊缝应平直,焊波应均匀,无虚焊、漏焊;焊缝的 质量应符合现行国家标准《钢结构工程施工质量验收规范》GB 50205的要求。其检查数量及检验方法也应按该规范的规定 执行<■ ^
注:当采用压力注胶法(或注浆法)施工时,扁钢制作的缀板,应采 用平焊方法与角钢连接牢固;平蟬时,应使缀板底面与角钢内表 面对齐,在保持平整状态下施焊;对干式外包钢灌注充填用注浆 料时,也应采用平焊方法,但若采用环氧胶泥填塞缀板与原构件 混凝土之间的缝隙时,缀板可焊在角钢外表面上。
9.4.3外粘或外包型钢骨架全部杆件(含缀板、箍板等连接件) 的缝隙边缘,应在注胶(或注浆)前用密封胶封缝。封缝时,应 保持杆件与原构件混凝土之间注胶(或注浆)通道的畅通。同 时,尚应在设计规定的注胶(或注浆)位置钻孔,粘贴注胶嘴 (或注浆嘴)底座,并在适当部位布置排气孔。待封缝胶固化后, 进行通气试压。若发现有漏气处,应重新封堵。
检查数量:全数检查。
56
检验方法:沿封堵全线涂抹皂液;通过空气压缩机压气进行 检查。
(Il)一般项目
9.4.4型钢骨架及其套箍的安装尺寸偏差和焊縫尺寸偏差,应 符合现行国家标准《钢结构工程施工质量验收规范》GB 50205 对尺寸允许偏差的规定;其检查数量及检验方法也应按该规范的 规定执行。
9. 4.5型钢骨架上的注胶孔(或注浆孔)、排气孔的位置与间距 应符合施工技术方案或产品使用说明书的规定。当两者的规定值 不一致时,应取较小间距。
检查数量:全数检查。
检验方法,观察及量测。
9.5注胶(或注浆)施工
(I)主控项目
9.5.1注胶(或注浆)设备及其配套装置.在注胶(或注浆)施 工前应按该产品标准规定的技术指标进行适用性检查和试运作安 全检查,其检验结果应合格。
检查数量:•每检验批一次。
检验方法:按产品标准出厂检验的规定执行。
9.5.2灌注用结构胶粘剂应经试配,并测定其初黏度;对结构 构造复杂工程和夏期施工工程还应测定其适用期(可操作时间)。 若初黏度超出本规范及产品使用说明书规定的上限,应査明其原 因:若属胶粘剂的质量问题,应予以更换,不得勉强使用。对气 温异常的夏期工程,若适用期达不到本规范表4. 4. 6的要求,应 采取措施降低施工环境气温:对结构构造复杂工程,宜改用其他 优质结构胶粘剂。
灌注干式外包钢缝隙用的注浆料,应按本规范第4. 8. 3条进
57
标准分享网WWW. bzfxw. com免费下载
行试配和检验。
检查数量:同一批号胶粘剂不少于一次。
检验方法:按本规范表4. 4. 6规定的试验方法进行试配和 检验。
9.5∙3对加压注胶(或注浆)全过程应进行实时控制。压力应. 保持稳定,且应始终处于设计规定的区间内。当排气孔冒出浆液 时,应停止加压,并以环氧胶泥堵孔。然后再以较低压力维持 IOmin,方可停止注胶(或注浆)。
检查数量:全数检查。
检验方法:观察,检查监控记录。
(Il)-般项目
9. 5.4注胶(或注浆)施工结束后,应静置72h进行固化过程 的养护。养护期间,被加固部位不得受到任何撞击和振动的影 响。养护环境的气温应符合灌注材料产品使用说明书的规定。若 养护无误,仍出现固化不良现象,应由该材料生产厂家承担 责任。
检查数量:全数检查。
检验方法:观察,检查养护记录。
9.6施工质量检验
(I)主控项目
9.6.1外粘型钢的施工质量检验,应在检查其型钢肢安装、缀 板焊接合格的基础上,对注胶质量进行下列检验和探测:
1胶粘强度检验 应在注胶开始前,由检验机构派员到现 场在被加固构件上预贴正拉粘结强度检验用的标准块(本规范 附录U);粘贴后,应在接触压条件下,静置养护74到期时, 应立即进行现场检验与合格评定。其检查数量及检验方法应按本 规范附录U确定。
58
2注胶饱满度探测 应由检验机构派员到现场用仪器或敲 击法进行探测,探测结果以空鼓率不大于5%为合格。
检查数量:全数检查。
检验方法:检查独立检测机构出具的检测报告。
9.6.2对干式外包钢的注浆质量检验,应探测其注浆的饱满度, 且以空鼓率不大于10%为合格。对填塞砂浆的干式外包钢,仅 要求检查其外观质量,且以封闭完整,满足型钢肢安装要求为 合格。
检查数量:全数检查。
检验方法:检查独立检测机构出具的检测报告。
(II) 一般项目
9.6.3被加固构件注胶(或注浆)后的外观应无污渍、无胶液 (或浆液)挤出的残留物;注胶孔(或注浆孔)和排气孔的封闭 应平整;注胶嘴(或注浆嘴)底座及其残片应全部铲除干净。
检查数量:全数检查。
检验方法:观察。
/VWU
59
标准分享网WWW. bzfxw. com免费下载
10外粘纤维复合材工程
10.1 一般规定
10.1.1本章适用于外粘增强纤维织物或其预成型板工程的施工 过程控制和施工质量检验。
10.1.2外粘纤维织物或板材加固混凝土承重结构时,其施工程 序应按施工设计规定的工序(图10.1∙2)进行。
 
 
(当为免底 涂工艺时)
修补、 找平
刷胶、粘贴
纤维材博 及养护
 
施质检
工½脸
护层工 防面施
图10. L 2施工程序框图
10.1.3粘贴纤维材料的施工环境,应符合下列要求:
1施工环境温度应符合结构胶粘剂产品使用说明书的规定。 若未作规定,应按不低于15t进行控制。
2作业场地应无粉尘,且不受日晒、雨淋和化学介质 污染。
10.1.4防护面层的构造和施工应符合设计规定。对各种不同面 层的施工过程控制和施工质量验收,应符合国家现行有关标推的 规定。
60
10.2界面处理
(I)主控项目
10∙2.l经修整露出骨料新面的混凝土加固粘贴部位,应进一步 按设计要求修复平整,并采用结构修补胶对较大孔洞、凹面、露 筋等缺陷进行修补、复原:对有段差、内转角的部位应抹成平滑 的曲面;对构件截面的棱角,应打磨成圆弧半径不小于25mm 的圆角。在完成以上加工后,应将混凝土表面清理干净,并保持 干燥。
检查数量:全数检查。
检验方法:观察、触摸,并辅以圆弧样板(靠尺)检查。
10.2.2粘贴纤维材料部位的混凝土,其表层含水率不宜大于 4%,且不应大于6%。对含水率超限的混凝土应进行人工干燥 处理,或改用高潮湿面专用的结构胶粘贴。
检查数量:每根梁、柱构件不少于1处:每Ioom2板、墙不 少于3处;不足IoOm2的工程,也应检查3处。
检验方法:用含水率测定仪检测。
W. 2.3当粘贴纤维材料采用的粘结材料是配有底胶的结构胶粘 AA 剂时,应按底胶使用说明书的要求进行涂刷和养护,不得擅自免 去涂刷底胶的工序。若粘贴纤维材料采用的粘结材料是免底涂胶 粘剂,应检查其产品名称、型号及产品使用说明书,并经监理单 位确认后,方允许免涂底胶。
检查数量:全数检查。
检验方法:监督涂刷底胶并检查底胶进场复验报告及施工 记录Q
10.2.4底胶应按产品使用说明书提供的工艺条件配制,但拌匀 后应立即抽样检测底胶的初黏度。其检测结果应符合本规范表 4.4.6的要求,且不得以添加溶剂尊稀释剂的方法来改变其黏 度,一经发现应予弃用,已涂刷部质应予返工。底胶指干时,其
61
标准分享网WWW. bzfxw. com免费下载
表面若有凸起处,应用细砂纸磨光,并应重刷一遍。底胶涂刷完 毕应静置固化至指干时,才能继续施工。
检查数量:全数检查。
检验方法:监理人员旁站监督其配制并检查初黏度检测报 吿:若怀疑掺有溶剂或稀释剂,应取样送检。
(H) 一般项目
10.2.5若在底胶指干时,未能及时粘贴纤维材料,则应等待 12h后粘贴,且应在粘贴前用细软羊毛刷或洁净棉纱团沾工业丙 酮擦拭一遍,以清除不洁残留物和新落的灰尘。
检查数量:全数检查。
检验方法:观察并检查施工记录。
10.3纤维材料粘贴施工
(I)主控项目
10.3.1浸渍、粘结专用的结构胶粘剂,其配制和使用应按产品 使用说明书的规定进行:拌合应采用低速搅拌机充分搅拌;拌好 的胶液色泽应均匀、无气泡;其初黏度应符合本规范表4.4. 6的 要求:胶液注人盛胶容器后,应采取措施防止水、油、灰尘等杂 质混入。
检查数量:全数检查。
检验方法:观察,并对照产品使用说明书检查配制记录、测 定初黏度记录及施工记录。
10.3.2纤维织物应按下列步骤和要求粘贴:
1按设计尺寸裁剪纤维织物,且严禁折叠;若纤维织物原 件已有折痕,应裁去有拆痕一段织物;
2将配制好的浸渍、粘结专用的结构胶粘剂均匀涂抹于粘 贴部位的混凝土表面; .
3将裁剪好的纤维织血按照放线位置敷在涂好结构胶粘剂
62
的混凝土表面。织物应充分展平,不得有皱褶;
4沿纤维方向应使用特制滚筒在已贴好纤维的面上多次滚 压,使胶液充分浸渍纤维织物,并使织物的铺层均匀压实,无气 泡发生,
5多层粘贴纤维织物时,应在纤维织物表面所浸渍的胶液 达到指干状态时立即粘贴下一层。若延误时间超过Ih,则应等 待12h后,方可重复上述步骤继续进行粘贴,但粘贴前应重新将 织物粘合面上的灰尘擦拭干净;
6最后一层纤维织物粘贴完毕,尚应在其表面均匀涂刷一 道浸渍、粘结专用的结构胶。
'检查数量:全数检查。
检舱方法:由监理人员负责检查,并签字确认无误。
10.3. 3预成型板应按下列步骤和要求粘贴:
1按设计尺寸切割预成型板。切割时,应考虑现场检验的 需要,由监理人员按本规范附录U取样规则,指定若干块板予 以加长约150mm,以备检测人员粘贴标准钢块,作正拉粘结强 度检验使用;
2用工业丙酮擦拭纤维板材的粘贴面(贴一层板时为一面、 贴多层板时为两面),至白布擦拭检查无碳微粒为止;
3将配制好的胶粘剂立即涂在纤维板材上。涂抹时,应 使胶层在板宽方向呈中间厚、两边薄的形状,平均厚度为 3 5mm~2mm;
4将涂好胶的预成型板贴在混凝土粘合面的放线位置上用 手轻压,然后用特制橡皮滚筒顺纤维方向均匀展平、压实,井应 使胶液有少量从板材两侧边挤出。压实时,不得使板材滑移 错位;
5需粘贴两层预成型板时,应重复上述步骤连续粘贴:若 不能立即粘贴,应在重新粘贴前,将上一工作班粘贴的纤维板材 表面擦拭干净;
6按相同工艺要求,在邻近加固部位处,粘贴检验用的
63
标准分享网WWW. bzfxw. com免费下载
150mm× 150mm的预成型板。
检查数量:全数检查。
检验方法:由监理人员负责检查并签字确认无误。
(口)一般项目
10.3.4纤维织物可采用特制剪刀剪断或用优质美工刀切割成所 需尺寸。织物裁剪的宽度不宜小于IOOmm。
10.3.5纤维复合材胶粘完毕后应静置固化,并应按胶粘剂产品 说明书规定的固化环境温度和固化时间进行养护S当达到7d时, 应先采用D型邵氏硬度计检测胶层硬度,据以判断其固化质量, 并以邵氏硬度Hd>70为合格,然后进行施工质量检验、验收。 若邵氏硬度H1>V70,应揭去重贴,并改用固化性能良好的结构 胶粘剂。
检查数量;全数检查。
检验方法:用D型邵氏硬度计检测硬度。
10.4施工质量检验
(I)主控项目
10.4.1纤维复合材与混凝土之间的粘结质量可用锤击法或其他 有效探测法进行检查。根据检查结果确认的总有效粘结面积不应 小于总粘结面积的95%β .
探测时,应将粘贴的纤维复合材分区,逐区测定空鼓面就 (即无效粘结面积"若单个空鼓面积不大于IOOOOmm2,允许采 用注射法充胶修复:若单个空鼓面积大于或等于IooOOmm"应 割除修补,重新粘贴等量纤维复合材。粘贴时,其受力方向(顺 纹方向)每端的搭接长度不应小于200mm;若粘贴层数超过3 层,该搭接长度不应小于300mm;对非受力方向(横纹方向) 每边的搭接长度可取为100mm。
检查数量:全数检查。
64
检验方法:检查检测报告及处理记录。
10.4.2加固材料(包括纤维复合材)与基材混凝土的正拉粘结 强度,必须进行见证抽样检验。其检验结果应符合表10.4.2合 格指标的要求G若不合格,应揭去重贴,并重新检查验收。
表10. 4.2现场检验加固材料与混凝土正拉粘结强度的合格指标
| 检验项目 | 原构件实测混凝 土强度等級 | 检感合格指标 | 检验方法 | 
| 正拉粘结强度 | C15 〜C20 | "SMPa且为混凝土 | 本规范 | 
| 及其破坏形式 | 25 | ≥2,5MP⅛ 内聚破坏 | . 附录U | 
注:J加固前应按本规范附录T的规定,对原构件混凝土强度等级进行现场检测
与推定;
2若检测结果介于C20~日S之间.允许按换算的强度等级以线性播值法确 定其合格指标;
3检查数量;应按本规范附录U的取样规则确定;
4本表给出的是单个试件的合格指标。检验批质■的合格评定,应按本规范 附录U的合格评定标准进行IS
10.4.3纤维复合材胶层厚度(》应符合下列要求:
1 对纤维织物(布):8=(L5±0∙5) mm;
2对预成型板S ⅛=(2∙0±6 3) mm。
.检查数量:全数检查。
检验方法;每根构件检查2处,但应选在胶层最厚及最薄 处,用刻度放大镜测量。
(口)一般项目
10.4.4纤维复合材粘贴位置,与设计要求的位置相比,其中心 线偏差不应大于IOmnU长度负偏差不应大于15mm。
检查数量:全数检查。
检验方法;钢尺测量。
65
标准分享网WWW. bzfxw. com免费下载
11外粘钢板工程
ILl 一般规定
11.1.1本章适用于外粘钢板加固钢筋混凝土结构的施工过程控 制及施工质量检验。
11. L 2外粘钢板加固的施工程序应符合下列规定:
1清理、修整原结构、构件(本规范第3.0.4条及第
3. 0.5 条);
2加工钢板、箍板、压条及预钻孔;
3界面处理;
4粘贴钢板施工(或注胶施工);
5固定、加压、养护;
6施工质量检验:
7防护面层施工。
1I.1∙3当采用压力注胶法粘钢时,应采用锚栓固定钢板,固定 时,应加设钢垫片,使钢板与原构件表回之间留有约2mm的畅 通缝隙,以备压注胶液;然后按本规范第9章规定的程序进行 施工。
11.1.4固定钢板的锚栓,应采用化学锚栓,不得采用膨胀 锚栓。锚栓直径不应大于MIOJ锚栓埋深可取为60mm;锚 栓边距和间距应分别不小于60mm和250mmo锚栓仅用于施 工过程中固定钢板。在任何情况下,均不得考虑锚栓参与胶 层的受力。
11.1.5外粘钢板的施工环境应符合下列要求:
1现场的环境温度应符合胶粘剂产品使用说明书的规定Q 若未作具体规定,应按不低于15℃进行控制。
2作业场地应无粉尘,且不受日晒、雨淋和化学介质污染。
66
U∙L6加固用钢板的加工(包括切割、展平、矫正、制孔 和边缘加工等),其施工过程控制和施工质量检验,应符合现 行国家标准《钢结构工程施工质量验收规范》GB 50205的 规定。
11.2界面处理
(工)主控项目 ’
-1L2.1原构件混凝土及加固钢板的界面(粘合面)经修整后, 尚应分别按本规范第9. 3.1条及第9. 3. 2条的要求进行打毛和植 化处理。
检查数量:全数检查。
检验方法:观察。必要时,可采用按喷砂效果制成的样片进 行粗糙度手感的比较。
11.2.2外粘钢板部位的混凝土,其表层含水率不宜大于4%∙ 且不应大于6%。对含水率超限的混凝土梁、柱、墙等,应改用 高潮湿面专用的胶粘剂。对俯贴加固的混凝土板,若有条件,也 可采用人工干燥处理。
检查数量:每根构件不少于一处。
检验方法:含水率測定仪测定。
11.2.3在处理混凝土粘合面的同时•尚应由检测机构派员到现 场做粘贴质量检验的预布点工作。布点前应按本规范附录U的 取样规则随机抽取受检构件,然后在邻近受检构件加固部位处选 择一个IOOmmXlOomm见方的混凝土表面进行同条件的界面处 理,以备在粘钢施工的同时,粘贴检验用的钢标准块。
(U) 一般项目
11. X 4若需在钢板和混凝土上钻制锚栓孔,应先探明混凝土中 原钢筋位置,并在画线定位时予以避让。若探测有困难,且已在 钻孔过程中遇到钢筋的障碍,允许移位2d 3为钻孔直径)重
67
标准分享网WWW. bzfxw. com免费下载
钻,但应用植筋胶将废孔填实。
钻好的孔洞,应采用压缩空气吹净孔内及周边的粉尘、碎 渣;若孔壁的混凝土含水率超限,宜采用电热棒吊人烘烤孔壁。
检查数量:全数检查。
检验方法:探测、观察、触摸、测量孔壁混凝土含水率。
11.2.5钢板粘贴前,应用工业丙酮擦拭钢板和混凝土的粘合画 各一道。若结构胶粘剂产品使用说明书要求涂刷底胶,应按规定 进行涂刷。
'IL 3钢板粘贴施工
(I)主控项目
11.3.1粘贴钢板专用的结构胶粘剂,其配制和使用应按产品使 用说明书的规定进行.拌合胶粘剂时,应采用低速搅拌机充分搅 拌。拌好的胶液色泽应均匀,无气泡,井应采取措施防止水、 油、灰尘等杂质混入。
严禁在室外和尘土飞扬的室内拌合胶液。
胶液应在规定的时间内使用完毕。严禁使用超过规定适用期 (可操作时间)的胶液。
检查数量:全数检查。
检验方法:观察,并对照产品使用说明书检查配制记录及施 工记录。
11.3.2拌好的胶液应同时涂刷在钢板和混凝土粘合面上,经检 查无漏刷后即可将钢板与原构件混凝土粘贴;粘贴后的胶层平均 厚度应控制在2mm〜3mm。俯贴时,胶层宜中间厚、边缘薄; 竖贴时,胶层宜上厚下薄,仰贴时,胶液的垂流度不应大 于 3mm o
检查数量;全数检查。
检验方法:观察、量测并按隐蔽工程验收。
U.3.3钢板粘贴时表面应平整,段差过渡应平滑,不得有折
68
角。钢板粘贴后应均匀布点加压固定。其加压顺序应从钢板的一 端向另一端逐点加压,或由钢板中间向两端逐点加压f不得由钢 板两端向中间加压。
检查数量:全数检查。
检验方法:观察,以钢板周边有少量胶液均匀挤出为合格。
IL 3.4加压固定可选用:夹具加压法、锚栓(或螺杆)加压 法、支顶加压法等。加压点之间的距离不应大于500mm。加压 时.应按胶缝厚度控制在2mm〜2. 5mm进行调整。
检查数量:全数检查。
检验方法:观察。
H.X5在粘贴钢板施工的同时,应将钢标准块(本规范附录 U)粘贴在本章第11. 2. 3条指定的位置上,按同条件进行加压 和养护,以备检验使用。
检查数量:全数检查。
检验方法工由独立检测机构派员粘贴,并作好记录。
(ID一般项目
IL 3.6外粘钢板中心位置与设计中心线位置的线偏差不应大于 5mm$长度负偏差不应大于IOmmtj一
检查数量:全数检查。
‘检验方法:钢尺量测。
11.3.7混凝土与钢板粘结的养护温度不低于15C时.固化24h 后即可卸除加压夹具及支撑;72h后可进入下一工序。若养护温 度低于15。C,应按产品使用说明书的规定采取升温措施,或改 用低温固化型结构胶粘剂。 、
检查数量:同一检验批的养护环境中,测温点应不少于2 处,且应布置在朝西和朝北两部位。
检验方法:检查测温记录。
69
标准分享网WWW. bzfxw. com免费下载
IL 4施工质量检验
(I)主控项目
11.4.1钢板与混凝土之间的粘结质量可用锤击法或其他有效探 测法进行检查。按检查结果推定的有效粘贴面积不应小于总粘贴 面积的95%。
检查时,、应将粘贴的钢板分区,逐区测定空鼓面积(即无效 粘贴面积)S若单个空鼓面积不大于IOOOOmm2,可采用钻孔注 射法充胶修复;若单个空鼓面积大于IOooOmm2,应掲去重贴, 并重新检查验收。
检查数量:全数检查。
检验方法:检查检测报告及处理记录。
H.4.2钢板与原构件混凝土间的正拉粘结强度应符合本规范 第10.4. 2条规定的合格指标的要求。若不合格,应揭去重贴, 并重新检查验收。
检查数量及检验方法应按本规范附录U的规定执行。
(H)一般项目
11.4.3胶层应均匀,无局部过厚、过薄现象;胶层厚度应按 (2. 5士0.5) mm 控制。
检查数量:每一构件检测最厚和最薄各一处。
检验方法:观察、测量。
70
12钢丝绳网片外加聚合物砂浆面层工程
1X1 一般规定
12.1.1本章适用于以钢丝绳网片外加聚合物砂浆面层加固混凝 土构件或砌体构件的施工过程控制和施工质量检验Q
注I单股钢丝绳也称钢绞线,但不得将多股钢丝绳称作钢絞线。即使 个别设计坚持以钢绫线命名,也应校本规范的要求进行施工。
12.1.2钢丝绳网片外加聚合物砂浆面层的施工程序应符合下列 规定:
1清理、修整原结构、构件(本规范第3.0. 5条);
2界面处理;
3安装钢丝绳网片F
4配制聚合物砂浆:、
5聚合物砂浆面层施工;
6养护:
7施工质量检验;
8喷涂防护层。
■注:钢丝绳网片应在工厂制作、检验、包装后运至现场6
12.1.3钢丝绳网片外加聚合物砂浆面层工程的施工环境应符合 下列要求:
1施工现场的气温:对改性环氧类或改性丙烯酸酯共聚物 类聚合物砂浆,不应高于35七;对乙烯-醋酸乙烯共聚物类聚合 物砂浆,不应高于30七;而且均不得受日晒、雨淋;
2施工环境最低温度应符合聚合物砂浆产品使用说明书的 规定;若未作规定,应按不低于15℃进行控制;
3冬期施工时,配制聚合物砂浆的液态原材料,在进场验 收后应采取措施防止冻害。
71
标准分享网WWW. bzfxw. com免费下载
12.2界面处理
(I)主控项目
12.2.1原结构、构件的混凝土表面应按本规范第3.0. 4条的要 求进行清理,并参照第3. 0. 5条的要求剔除原构件混凝土或砌体 的风化、腐蚀层,除去原钢筋锈层和锈坑。必要时,还应进行补 筋。修整后尚应清除松动的骨料和粉尘,并应用清洁的压力水清 洗洁净。若混凝土有裂缝,还应用结构加固用的裂缝修补胶进行 修补。
检查数量:全数检查。
检验方法:会同监理人员观察,并检查施工记录。
12.2.2在原构件的混凝土或砌体表面喷涂的结构界面胶(剂), 宜采用与聚合物砂浆配套供应的结构界面胶(剂);其性能和质 量应符合本规范和设计的规定。
注:产品使用说明书提供的界面胶(剂)性能和质量指标,应高于本 规范的要求,否则该产品不能在结构加固工程中使用。
检查数量:全数检查。
检验方法:观察,检查施工记录。
(n)一般项目
12.2.3原构件表面的含水率,应符合聚合物砂浆及其界面胶 (剂)施工的要求。
检查数量:全数检查。
检验方法:含水率测定仪检测,并检查施工记录。
12.3钢丝绳网片安装
(工)主控项目
12.3.1安装钢丝绳网片前,应先在原构件混凝土表面画线标定
72
安装位置,并按标定的尺寸在现场裁剪网片。裁剪作业及网片端 部的固定方式应符合产品使用说明书的规定。
检查数量:全数检查。
检验方法:观察,钢尺量测。
12.3.2安装网片时,应先将网片的一端锚固在原构件端部标 定的固定点上,而网片的另一端则用张拉夹持器夹紧,并在此 端安装张拉设备,通过张拉使网片均匀展平、绷紧。在网片没 有下垂的状态下保持网片拉力的稳定,并应有专人进行监控。 经检查网片位置及网片中的经绳和纬绳间距无误后,用锚栓和 绳卡将网片经、纬绳的每一连接点在原构件混凝土或砌体上固 定牢靠。然后卸去张拉设备,并按隐蔽工程的要求进行安装质 量检查和验收。
检查数量:全数检查。
检验方法:用手压检查绷紧程度;用夹钳检查锚固件有无 松动。
12.3.3当网片需要接长时,沿网片长度方向的搭接长度应符合 设计规定:若施工图未注明,应取搭接长度不小于200mm,且 不应位于最大弯矩区。
检查数量:全数检查。
检验方法:观察、量测,检查安装记录。
12.3.4安装网片时,应对钢丝绳保护层厚度采取控制措施予以 保证,且允许按加厚3mm〜4mm设置控制点。
(II)-般项目
12.3.5网片中心线位置与设计中心线位置的偏差不应大于 IOnunt网片两组纬绳之间的净间距偏差不应大于IOmm。
检查数量:全数检查。
检验方法:钢尺量测。
73
标准分享网WWW. bzfxw. com免费下载
12.4聚合物砂浆面层施工
(1)主控项目
12.4.1聚合物砂浆的强度等级必须符合设计要求。用于检查钢 丝绳网片外加聚合物砂浆面层抗压强度的试块,应会同监理人员 在拌制砂浆的出料口随机取样制作。其取样数量与试块留置应符 合下列规定:
1同一工程每一楼层(或单层),每喷抹500m2 (不足 500mz,按500m2计)砂浆面层所需的同一强度等级的砂浆「其 取样次数应不少于一次。若搅拌机不止一台,应按台数分别确定 每台取样次数。
2每次取样应至少留置一组标准养护试块;与面层砂浆同 条件养护的试块,其留置组数应根据实际需要确定。
检验方法:检查施工记录及试块强度的试验报告。
12.4.2若试块漏取,或不慎丢失,或对试块强度试验报告有怀 疑时,应按本规范附录V规定的现场检测方法进行补测。
12.4.3聚合物砂浆面层喷抹施工开始前,应按30min时间的 砂浆用量,将聚合物砂浆各组分原料按序置入搅拌机充分搅拌。 拌好的砂浆,其色泽应均匀,无结块、无气泡、无沉淀,并应防 止水、油、灰尘等混入。
检查数量:全数检查。
检验方法,会同监理人员观察聚合物砂浆的配制作业并检查 称量记录。
12.4.4喷抹聚合物砂浆时,可用喷射法,也可采用人工涂抹 法J但应用力擀压密实。喷抹应分3道或4道进行。仰面喷抹 时,每道厚度以不大于6mm为宜,后一道喷抹应在前一道初期 硬化时进行。初期硬化时间应按产品使用说明书确定.
检查数量:按每一种类、每一规格被加固构件,任意抽取3 个已喷抹面层7d的构件,在钢丝绳网格较稀部位粘贴钢标准块,
74
以备28d时作现场正拉粘结强度检验。
检验方法:检查施工记•录及独立检测单位的现场正拉粘结强 度检验报告。
(Il)-般项目•
12.4.5聚合物砂浆面层喷抹完毕后,应按现行有关标准或产品 使用说明书规定的养护方法和时间指派专人进行养护。
检查数量:全数检查。 、
检验方法:检查养护记录。
12.5施工质量检验
(工)主控项目
12. 5.1聚合物砂浆面层的外观质量不应有严重缺陷及影响结构 性能和使用功能的尺寸偏差。严重缺陷的检查与评定应按表 12.5.1进行;尺寸偏差的检查与评定应按设计单位在施工图上 对重要尺寸允许偏差所作的规定进行。
对已经出现的严重缺陷及影响结构性龍和使用功能的尺寸偏 差,应由施工单位提出技术处理方案,经业主(监理)和设计单 位共同认可后予以实施。对经处理的部位应重新检查、验收。
检查数量:全数检查。
检验方法:观察.当检查缺陪的深度时应凿开检查或超声探 测,并检查技术处理方案及返修记录。
表12.5.1聚合物砂浆面层外观质量缺陷
| 名称 | ɪ^ | 严重缺陷 | 一般缺陷 | 
| 霧绳(或 露筋) | 钢丝绳网片(或钢 筋网)•未被砂浆包裏 而外餘______ | 受力纲丝绳(或受 力钢筋)外露 、 | 按构造要求设置的 钢丝绳(或搁筋)有 少■外露______ | 
| 疏松 | 砂架局部不密实 | 构件主要受力部位 有疏松 | 其他部位有少■ 疏松 | 
75
标准分享网WWW. bzfxw. com免费下载
续衰12. S. 1
| 名称 | 现象 | 严重缺馅 | 一般健脸 | 
| 夹杂异物 | 硅浆中夹有异物 | 构件主要受力部位 夹有异物 | 其他部位夹有少■ 异物 | 
| 孔洞 | 砂浆中存在深度和 长度均超过砂浆保护 层厚度的孔洞 | 构件主要受力部位 有孔洞 | 其他部位有少置 孔洞 | 
| 硬化(或 固化)不良 | 水泥或聚合物失 效,致使面层不硬化 (或不固化) | 任何部位不硬化 (戒不固化) | (不属一般缺陷) | 
| 裂缝 | 缝隙从砂浆表面延 伸至内部 | 构件主要受力部位 有影响结构性能或使 用功能的裂缝 | 仅有表面细裂纹 | 
| 连接部 位缺陷 | 构件端部连接处砂 浆层分离或權固件与 砂浆层之间松动、 脱落_______ | 连接部位有影响结 构传力性能的缺陪 | 连接部位有轻微影 响或不影响传力性能 的讎陷 | 
| 表观虢陷 | 表面不平整、缺楼 掉狗、短曲不齐、麻 面、‘掉皮 | 有影响使用功能的 缺陷 | 仅有影响观感的 缺陷 | 
注;复合水泥砂浆及普通水混砂浆固层的喷抹质■缺陷电可按本表进行检查与 评定。
12. 5.2聚合物砂浆面层与原构件混凝土之间有效粘结面积不应 小于该构件总粘结面面积的95%。否则应揭去重做,并重新检 查验收。
检查数量:全数检查.
检验方法:敲击法、超声法或其他有效的探测法。
1X5.3聚合物砂浆面层与原构件混凝土间的正拉粘结强度,应 符合本规范表10.4.2规定的合格指标的要求。若不合格,应揭 去重做,并重新检查、验收。
76
检查数量、检髓方法及评定标准应按本规范附录U的规定 执行。
12.5.4聚合物砂浆面层的保护层厚度检查,宜采用钢筋探测仪 测定,且仅允许有8mm的正偏差.
'(口)一般项目
12.5.5聚合物砂浆面层的喷抹质量不宜有一般缺陷。一般缺陷 的检查与评定应按表12・5.1进行。
对已经出现的一般缺陷,应由施工单位按技术处理方案进行 处理,并重新检查、验收。
检查数量:全数检查。
检验方法:观察,检查技术处理方案及施工记录。
12.5.6聚合物砂浆面层尺寸的允许偏差应符合下列规定:
1面层厚度:仅允许有5mm正偏差,
2表面平整度:≤0.3⅝β
检查数量:全数检查。
检验方法:钢尺检査厚度:用2m靠尺及塞尺检查平整度。
/VW
标准分享网WWW. bzfxw. com免费下载
13砌体或混凝土构件外加钢筋 网—砂浆面层工程
13.1 一般规定
13.1.1本章适用于砌体构件外加钢筋网一高强度水泥砂浆面层 或混凝土构件外加钢筋网-水泥复合砂浆面层加固的施工过程控 制和施工质量检验。
注:在以下条文中,高强度等级普通水泥砂浆和高强度水泥复合砂浆 分别简称为普通砂浆和复合砂浆。若本规范某些条文中无需区分 哪种砂浆时.仍统称为砂浆。
13. L 2砌体或混凝土构件外加钢筋网一砂浆面层的施工程序应 符合下列规定:
1清理、修整原结构、构件(本规范第3. 0.4条及第
3.0.5 条);
2制作钢筋网及拉结件或拉结筋;
3界面处理:
4安装钢筋网:
5配制砂浆;
6钢筋网砂浆层施工;.
7养护、拆模,
注:若设计要求对原钢筋和新配钢筋进行阻锈处理,应按阻锈剂产品 使用说明书的施工程序规定增补一个阻锈工序。
13.2界面处理
(I)主控项目
13.2.1在清理、修整原结构、构件过程中发现的裂缝和损伤,
78
应逐个予以修补。对砌体构件,若修补有困难,应进行局部拆 砌。修补或拆砌完成后,应用清洁的压力水冲刷干净,并按设计 规定的工艺要求喷涂结构界面胶(剂)。
检查数量:全数检查。
检验方法:观察,检查施工记录。
(Il)一般项目
13.2.2当设计对原构件表面喷抹砂浆层前有湿润要求时,应按 规定的提前时间,顺墙面反复浇水湿润,并应待墙面无明水后再 进行面层施工。若设计无此要求,不得擅自浇水。
13.2.3在原构件表面喷涂结构界面胶(剂)时,其喷涂方法及 喷涂质量应符合产品说明书的规定。
检查数量:全数检查。
检验方法:观察,并检查施工记录。
13.3钢筋网安装及砂浆面层施工
(I)主控项目
13.3.1钢筋网的安装及砂浆面层的施工,应按先基础后上部结 构、由下而上的顺序逐层进行;同一楼层尚应分区段加固:不得 擅自改变施工图规定的程序。
13.3.2钢筋网与原构件的拉结采用穿墙S形筋时,S形筋应与 钢筋网片点焊,其点焊质量应符合现行行业标准《钢筋焊接及验 收规程》JGJ 18的规定。
检查数量及检验方法:按上述规程确定。
13∙3∙3钢筋网与原构件的拉结采用种植F形剪切销钉、胶粘 螺杆或尼龙锚栓时,其孔径、孔深及间距应符合设计要求;其种 植质量应符合本规范第19章的规定。 ■
检查数量及检验方法:按本规范第19章确定。
13.3.4穿墙S形筋的孔洞、楼板穿筋的孔洞以及种植T形剪
79
标准分享网WWW. bzfxw. com免费下载
切销钉和尼龙锚栓的孔洞,均应采用机械钻孔。
检查数量:全数检查。
检验方法:观察。 .
13∙3∙5钢筋网片的钢筋间距应符合设计要求;钢筋网片间的搭 接宽度不应小于IOOmnU钢筋网片与原构件表面的净距应取 5mm,且仅允许有Imm正偏差,不得有负偏差。
检查数量:每检验批抽查10%,且不应少于5处。
检验方法:钢尺量測。
13.3.6砌体或混凝土构件外加钢筋网采用普通砂浆或复合砂浆 面层时,其强度等级必须符合设计要求。用于检查砂浆强度的试 块,应按本规范第12.4.1条的规定进行取样和留置,并应按该 条规定的检查数量及檢验方法执行。
13.3.7当砂浆试块漏取或不慎丢失,或对试块强度试验报告有 疑义时,应按本规范附录V规定的回弹方法进行检测与评定。
检查数量:按每一检验批见证抽取5个构件,在每构件上任 选3个测区进行检测。
检验方法:检查现场检测报告。
(Il)-般项目
13.3.8砌体或混凝土构件外加钢筋网的面层砂浆,其设计厚度 f≤35mm时,宜分3层抹压;当f>35mm时,尚应适当增加抹 压层数。
13.4施工质量检验
(I)主控项目
13.4.1砌体或混凝土构件外加钢筋网的砂浆面层,其浇筑或喷 抹的外观质量不应有严重缺陷。对硬化后砂浆面层的严重缺陷应 按本规范表12.5.1进行检查和评定。对已出现者应由施工单位 提出处理方案,经业主(监理单位)和设计单位共同认可后进行
8。
处理并应重新检查、验收。
检查数量:全数检查。
检验方法:观察;检查技术处理方案及施工记录。
13.4.2砌体或混凝土构件外加钢筋网一砂浆面层与基材界面粘 结的施工质量,可采用现场锤击法或其他探测法进行探查。按探 查结果确定的有效粘结面积与总粘结面积之比的百分率不应小 于 90%。
检查数量:全数检查。
'检验方法:检查探测报告。
13.4.3砂浆面层与基材之间的正拉粘结强度,必须进行见证取 样检验。其检验结果,对混凝土基材应符合本规范表1O. 4.2的 要求;对砌体基材应符合本规范表13.4.3的要求。
表13.4.3现场检验加固材料与砌体正拉粘結强度的合格指标
| 检验项目 | 烧结普通转或 混凝土砌块强 度等级 | 2时检验合格指标 | 正常破坏 形式 | 检验方法 | |
| 普通砂浆 (》M1S) | 聚合物侬浆 或复合砂浆 | ||||
| 正拉粘结强度 | MU10-MU15 | 部 6MPa | K∙0MPa | i$或砌块 | 本规范 | 
| 及其破坏形式 | >MU20 | 沁 OMPa | >L3MPa | 内聚破坏 | 附录U | 
注:1加固前应通过现场检測,对砖或砌块的强度等级予以穢认;
2当为旧标号块材,且符合原规范规定时,仅要求检雜结果为块材内聚 破坏。 :k. g K上q I
13.4.4新加砂浆面层的钢筋保护层厚度检测,可采用局部凿开 检查法或非破损探测法。检测时,应按钢筋网保护层厚度仅允许 有5mm正偏差;无负偏差进行合格判定。
注:钢筋保护层厚度检验的检测误差不应大于1mm.
检查数量:每检验批抽取5%,且不少于5处。.
检验方法:检查检测报告。
13.4.5当采用植筋或锚栓拉结钢筋网时,应在其施工完毕后, 分别按本规范第19章和第20章的规定,以及隐蔽工程的验收要 求提前进行施工质量检验。
81
标准分享网WWW. bzfxw. com免费下载
(Il)-般项目
13.4.6砌体或混凝土构件外加钢筋网的砂浆面层,其外观质量 不宜有一般缺陷。对已出现的一般缺陷,应由施工单位按技术处 理方案进行处理,并重新检查验收。
检查数量:全数检查。
检验方法:观察、量测并检查技术处理方案。
82
14砌体柱外加预应力撑杆工程
14.1 一般规定
14.1.1本章适用于抗震设防烈度为7度及7度以下地区砌体柱 外加双侧预应力撑杆(简称撑杆)工程的施工过程控制和施工质 量检验。
14.1.2砌体柱外加撑杆的施工程序应符合下列规定;
1清理原结构、构件;
2画线标定预应力撑杆的位置F
3制作撑杆(含传力构造)及张拉装置:
4剔除有碍安装的局部砌体并加以补强$
5安装撑杆及张拉装置;
6施加预应力(预顶力M
7焊接固定撑杆;
8施工质量检验;
9防护面层施工。
14.1.3若原结构、构件的基础为毛石或毛条石基础(图 14.1.3)或虽为仁基础,但外观质量很差?应在清理原结构构件 后,增加一个加固基础的施工程序。其一般做法是在原基础上增 设钢筋混凝土围套,围套内应按设计要求设置箍筋及纵向构造 筋。围套应采用强度等级不低于C20的混凝土现浇而成。
检查数量:全数检查。
检验方法:检查设计、施工图纸和施工记录。
14.1.4外加撑杆焊接时,其施工环境应符合现行行业标准《建 筑钢结构焊接技术规程》JGJ 81的要求。
83
标准分享网WWW. bzfxw. com免费下载
 
•:♦.△ '∙.∙厶;:a ∙.∙-A ∙.∙.a ∖^*^∣
(a)毛石基础
 
图14.1.3毛、条石基础加设围套处理示意图
I-被加固砌体柱,2-混凝土围套;3一箍筋;4一构造钢筋;5一毛石基础;
6一柱脚加劲角钢:7一地梁1 8-条石;9一索混凝土垫层
14.2界面处理
.(I)主控项目
14.2.1原结构、构件经按本规范第3.0. 4条的要求清理后,应 根据贴合角钢的需要,将砌体构件表面打磨平整,截面四个棱角 还应打磨成圆角,其半径r约取15mm〜25mm,以角钢能贴紧 原构件表面为度。
检查数量:全数检查。
检验方法:试安装角钢肢,检查其平整度与贴合程度。
(II)-般项目
14.2.2当原构件的砌体表面平整度很差,且打磨有困难时,可 在原构件表面清理洁净并剔除勾缝砂浆后,采用M15级水泥砂
84
浆找平,但应在改变本规范第14.2∙1条做法前,征得设计单位 同意。
检查数量:全数检查。
检验方法:观察,并通知设计单位参与检查。
14.3撑杆制作
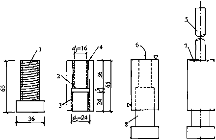
(I)主控项目
14.3.1预应力撑杆及其部件宜在现场就近制作。制作前应在原 构件表面画线定位,并按实测尺寸下料、编号。
检查数量:全数检查。
检验方法:观察,检查编号。
14∙3∙2撑杆的每侧杆肢由两根角钢组成,并以钢缀板焊接成槽 形截面组合肢(简称组合肢)。其截面尺寸及缀板尺寸、间距等 应符合设计规定。
檢査数量:全数检查。
检验方法:观察,钢尺量测。
14.3.3在组合肢中点处,应将角钢侧立翼板切割出三角形缺 口,并将组合肢整体弯折成设计要求的形状和尺寸(参照本规范 图&3.4T)。然后在弯折角钢另一完好翼板的该部位,用预先 弯好的补强钢板焊上。补强钢板的厚度应符合设计要求。
检查数量:全数检查。
检验方法:观察,钢尺量测e
14.3.4撑杆组合肢的上下端应焊有钢制抵承板(传力顶板), 抵承板的尺寸和板厚应符合设计要求,且板厚不应小于14mm。 抵承板与承压板及撑杆肢的接触面应经刨平。
检查数量:全数检查,
检验方法:观察,钢尺及游标卡尺量测。
14.3.5制作撑杆肢承力构造的承压板时,应根据所来用的锚栓 品种确定其构造方式。当采用埋头锚栓与上部混凝土构件锚固
85
标准分享网WWW. bzfxw. com免费下载
 
图14. 3. 5柱端处撑杆承力构造
1 一槽形承压板I 2一抵承板(传力顶板);
3一撑杆组合肢:4一被加固砌体柱
时,宜采用角钢制成(参照 本规范图8. 3. 4-2)$当采用 一般锚栓时,应将承压板做 成槽形(图14.3.5),套在 上部混凝土构件上,从两侧 进行锚固。承压板的厚度应 符合设计要求。承压板与抵 承板相互顶紧的面,应经 刨平。
检查数量:全数检查。
检验方法:观察,游标 卡尺量测。
14:3.6预应力撑杆的横向 张拉构造,可利用本规范第 14. 3.3条的补强钢板钻孔
(图14. 3. 6),穿以螺杆,
通过收紧螺杆建立预应力。张拉用的
86
 
 
 
图14. 3. 6预应力撑杆横向张拉构造
1 一补强钢板;2一拉紧螺检:3T孔(供穿拉紧螺栓用)i 4一撑杆3 5-被加固砌体柱
螺杆,其净直径不应小于18mnu其蝶母高度不应小于L 5d (d 为螺杆公称直径)。
检查数量:全数检查。
检验方法:观察,游标卡尺量测。
14.3.7预应力撑杆钢部件及其连接的制作、加工质量应符合现 行国家标准《钢结构工程施工质量验收规范》GB 50205的规定。
检查数量及检验方法按该规范的规定执行。
(口)一般项目
14.3.8钢部件及其连接的加工偏差应符合现行国家标准《钢结 构工程施工质量验收规范》GB 50205对加工允许偏差的规定。
检查数量及检验方法按该规范的规定执行。
14.4撑杆安装与张拉
(I)主控项目
14.4.1撑杆的安装与张拉应符合下列规定:
1安装撑杆前,应先安装上下两端承压板。承压板与相连 接构件(如混凝土梁)的接触面应涂抹快固型结构胶,并用化学 锚栓予以锚固;K ,T /貝 DT 4 ,
2安装两侧的撑杆组合肢,应使其抵承板抵紧于承压板上, 然后用穿在抵承板中的安装螺杆进行临时固定『
3按张拉方案,同时收紧安装在补强钢板两侧的螺杆,进 行横向张拉。横向张拉量AH的控制,应以撑杆开始受力的值 作为张拉的起始点。为此,宜先拧紧螺杆,再逐渐放松,直至撑 杆基本复位,且以尚能抵承,但无松动感为度;此时的测试读数 即可作为横向张拉量AH的起点:
4横向张拉结束后,应用缀板焊连两侧撑杆组合肢.焊接 缀板时可采取上下缀板、连接板轮流施焊或同一板上分段施焊等 措施,以防止预应力受热损失。焊好缀板后,撑杆与被加固柱之
87
标准分享网WWW. bzfxw. com免费下载
间的缝隙,应用水泥砂浆填塞密实。
检查数量:全数检查。
检验方法:见证试张拉,检查上下端顶紧质量及张拉记录。
14.4.2设计要求顶紧的抵承节点传力面,其顶紧的实际接触面 积不应少于设计接触面积的80%,且边缘最大缝隙不应大 于 0. 8mmo
检查数量:按抵承节点数抽查10%,且不应少于5个。
检验方法:用塞尺检査。
(Il)一般项目
14.4.3撑杆及其连接件安装的偏差应符合现行国家标准《钢结 构工程施工质量验收规范》GB 50205对安装允许偏差的规定。
检查数量:按同类构件抽查10%,且不应少于3件。
检验方法:钢尺量测,检查施工记录。
14.5施工质量检验
(I)主控项目
14.5.1预应力撑杆建立的預顶力不应大于加固柱各阶段所承受 的恒荷载标准值的90%,且被加固的砌体柱外观应完好,未出 现预顶过度所引起的裂纹。
检查数量:全数检查。
检验方法:观察,检查设计文件及张拉记录。
(口)一般项目
14.5.2预应力撑杆及其连接件的外观表面不应有锈迹、油渍和 污垢。
检查数量:按同类构件抽查10%,且不应少于3件。
检验方法:观察。
88
15钢构件增大截面工程
15.1 一般规定
15.1.1本章适用于负荷状态下钢构件增大截面工程的施工过程 控制和施工质量检验。
15.1.2卸荷状态下钢构件增大截面工程的施工,可在卸荷并清 理、修整原结构、构件后按新建钢结构的施工程序进行。
15. L 3负荷状态下钢构件增大截面工程的施工程序应符合下列 规定:
1核算施工荷载,并采取严格的安全与控制措施;
2清理、修整原结构、构件:
3加工、制作新增的部件和连接件;同时制订施工工艺和 技术条件;
4界面处理:
5安装、接合新部件;
6施工质量检验;
7重做涂装工程。
15.1∙4钢构件增大截面工程进入焊接工序时,其施工现场的气 温要求应按本规范第16.1. 3条的规定执行。
雨雪天气条件下禁止露天焊接。在4级以上风力焊接时,应 采取挡风措施。 ^
15.1.5负荷状态下钢构件增大截面工程.应要求由具有相 应技术等级资质的专业单位进行施工;其焊接作业必须由取 得相应位置施焊的焊接合格证、且经过现场考核合格的焊工 施焊O
89
标准分享网WWW. bzfxw. com免费下载
15.2界面处理
(I)主控项目
15.2.1原结构、构件的加固部位经除锈和修整后,其表面应显 露出金属光泽,且不应有明显的凹面或损伤;若有划痕,其深度 不得大于O. 5mmO
检查数量:全数检查。
检验方法:观察及量测。
15.2.2原构件的裂纹应按本规范第17章进行修复。修复所采 取的焊接措施,其焊缝质量应符合本规范第16章的规定。
检查数量:全数检查。
检验方法:超声法探伤并检查探伤记录。
15. 2.3待焊区钢材焊接面应无明显凹面、损伤和划痕;对原有 的焊疤、飞溅物及毛刺应清除干净。
检查数量:全数检查。
检验方法:观察。
(II)一般项目
15.2.4加固施焊前应复査待焊区间及其两端以外各50mm范 围内的清理质量。若有新锈,或新沾的尘土、油迹及其他污垢, 应重新进行清理。
检查数量:全数检查。
检验方法:观察。
15.3新增钢部件加工
(I)主控项目
15.3.1钢材的切割面或剪切面应无裂纹、夹渣、分层和大于 Imm的缺棱。
9。
检查数量:全数检查d
检验方法:观察,或用刻度放大镜、百分尺、焊缝量规检 查;有疑义时,作探伤检查。
15.3.2气割或机械剪切的零部件,需要进行边缘加工时,其刨 削量不应小于2. Omme
检查数量「全数检查。
检验方法:检查工艺报告和施工记录。
15.3.3当采用高强度螺栓连接时,钢结构制作和安装单位应按 国家标准《钢结构工程施工质量验收规范》GB 50205 - 2001附 录B的规定分别进行高强度螺栓连接摩擦面的抗滑移系数试验 和复验;现场处理的构件摩擦面应单独进行摩擦面抗滑移系数试 验:其结果应符合设计要求。
检查数量及检验方法:按该规范附录B确定。
15.3.4 A、B级螺栓孔(I类孔)应具有H12的精度;C级螺 栓孔(II类孔)的孔径允许偏差为*mmc A、B级螺栓孔的孔 壁表面粗糙度R不应大于12. 5*m。 C级螺栓孔(II类孔),孔 壁表面粗糙度凡不应大于25Mm。
检查数量:按钢构件数量抽查10%,且不应少于3件。 检验方法:用游标卡尺或孔径量规检查。
15.3.5气割的偏差不应大于表15.3. 5对允许偏差的规定。 检查数量:按切割面数抽查上0%,且不应少于3个。
检验方法:用钢尺、直角尺、斜角尺、塞尺检查。
表15.3.5气割的允许偏差
| 检査项目一 | - 允许偏差 | 
| 零部件宽度、长度 | + L Omm -3. Omm | 
| 切割面平面度 ‘ | 0.05h 且不应大于2. 0mτn | 
| 一 割纹深度(表面粗糙度》 | 0. 5mm | 
| 一 局部缺口深度 | 1. Omm | 
注:1 r为切割面厚度;
2对重要加固部位,表面粗糙度应不大于0.3mm。
91
标准分享网WWW. bzfxw. com免费下载
15.3.6机械剪切的偏差不应大于表15.3.6对允许偏差的规 定值。
检查数量:按切割面数抽查10%,且不应少于3个。
检验方法:用钢尺、直角尺、塞尺检查。
表15.3.6机械剪切的允许偏差(mm)
| _________项 目 | 允i午偏差 | 
| 零件宽度、长度 | +1.0 —3.0 | 
| 边缘缺棱 | LO — | 
| 笛钢端部垂直度 | 2.0 — | 
(II)-般项目
15.3.7边缘加工偏差不应大于表15. 3. 7对允许偏差的规定。 检查数量:按加工面数抽查10%,且不应少于3件。
检验方法:用钢尺及量规检查。
表15.3.7边缘加工允许偏差
| ________项 目_________ | ____允许偏丸____ | 
| 零件宽度、长度 | +0. 5mm —1. Omm | 
| 加工边直线度 | "3000.且不大于云Omm 二 | 
| 相邻两边夹角 | ±0.5° 一 | 
| 加工面垂直度 | 0.025f,旦不应大于0.5mm . | 
| 加工面表面粗糙度 | 50/ 25/ 一般部位寸;嵌人部位T | 
注:£为钢板也缘厚度.2为钢板长度》
15.3.8螺栓孔孔距的偏差应符合现行国家标准《钢结构工程施 工质量验收规范》GB 50205对允许偏差的规定。
检查数量:•按钢构件数量抽查10%,且不应少于3件。
检验方法:用钢尺检査。
注:螺栓孔的孔距偏差超过该规范规定的允许偏差时,应采用与母材 材质相匹配的焊条补焊后重新制孔,经修磨平整后,重新检查、 验收。
92
15.4新增部件安装、拼接施工
(I)主控项目
15.4.1在负荷下进行钢结构加固时.必须制定详细的施工技术 方案,并采取有效的安全措施,防止被加固钢构件的结构性能受 到焊接加热、补加钻孔、扩孔等作业的损害。
15.4.2新增钢构件与原结构的连接采用焊接时,必须制定合理 的蟬接顺序和施焊工艺。其制定原则应符合下列要求:
1应根据原构件钢材材质,选用相适应的低氢型焊条,其 直径不宜大于4. 0mm;
2焊接电流不宜大于200AS
3应采用合理的焊接工艺,并采取有效控制焊接变形的措 施Q施焊顺序应能使输人热量对构件的中和轴平衡。
15.4.3在负荷下采用焊接方法对钢结构构件进行加固时,应先 将加固件与被加固件沿全长互相压紧,并用长20mm、间距 30Omm〜50Omm的定位焊缝焊接后,再由加固件端部向内划分 区段(每段不大于70mm)进行施焊。每焊好一个区段,应间歇 3min〜5min。对于截面有对称的成对焊缝,应平行施焊:当有 多条焊缝时,应按交错顺序施焊;对上下侧有加固件的截面,应 先施焊受拉侧的加固件,然后施焊受压侧的加固件;对一端为嵌 固的受压杆件,应从嵌固端向另一端施焊:若为受拉杆,则应从 非嵌固的一端向嵌固端施焊。
检查数量:全数检查。
检验方法:观察,并检查施工技术方案及施工记录。
15.4.4采用螺栓(或像钉)连接新增钢板件时,应先将原构件 与被加固板件相互压紧,然后从加固板件端部向中间逐个制孔并 随即安装、拧紧螺栓(或斜钉)。
检查数量:全数检查。
检验方法:观察,检查施工技术方案及施工记录。
93
标准分享网WWW. bzfxw. com免费下载
15.4.5高强度螺栓连接副的施拧顺序和初拧、复拧扭矩应符合 设计要求和国家现行行业标准《钢结构高强度螺栓连接的设计、 施工及验收规程》JGJ 82的规定。
检查数量及检验方法按该规程的规定执行。
15.4.6采用增大截面法加固静不定结构时,应首先将全部加固 件与被加固构件压紧并点焊定位,然后按第15. 4. 3条的要求从 受力最大构件依次连续地进行加固连接。
检查数量:全数检查。
检验方法:观察,并检查施工技术方案及施工记录。
(Il)-般项目
15.4.7新增钢部件与原结构拼接的尺寸偏差,应按现行国家标 准《钢结构工程施工质量验收规范》GB 50205的规定进行检查 和评定。
15.5施工质量检验
T)主控项目
15.5.1设计要求全焊透的一、二级焊缝应采用超声波探伤进行 内部缺陷的检验;超声波探伤不能对缺陷作出判断时,应采用射 线探伤。探伤时,其内部缺陷分级应符合现行国家标准《钢焊缝 手工超声波探伤方法和探伤结果分级》GB 11345和《金属熔化 焊焊接接头射线照相》GB/T3323的规定。
检查数量:全数检查。
检验方法:超声波探伤;必要时,采用射线探伤;检查探伤 记录。
15.5.2焊缝外观质量的检查与评定应符合表15. 5. 2的规定。
检查数量:每批同类构件随机抽查10%,且不应少于3件; 被抽查构件中,每一类型焊缝按条数抽查5%,且不应少于1 条:每条检查外观质量相对较差的1处,总抽查数不应少于
94
10处Q
表15∙5.2焊缝外观质■检查评定标准
| 应检查的 外观缺陷名称 | ___合格评定标准________ | |||
| —级 | 二级 | 三级 | ||
| 裂纹、焊瘤,弧坑、 未熔合、烧穿、 接头不良 | 不允许 | |||
| 夹渣 | 不允许 | 不允许 | 允许有深度不大于 6 2上的夹渣 | |
| 表面气孔 | 不允许 | 不允许 | 允许有直径不大于 2.0mm的气孔,但每 50mm焊缝长度上不得 多于2个 | |
| 电弧擦伤 | 不允声 | 不允许 | 允许存在个别电瓠 擦伤 | |
| 根部收缩 | 不允许 | 允许有深度不大于 0- 4mm的根部收缩 | 允许有深度不大于 S 6mπι的根部收缩 | |
| 咬 边 | 不修磨焊缝 | 不允许 | 允许有深度不大于 0- 5mm的咬边T但 焊缝两侧咬边总长不 得大于焊縫总长 的10% | 允许有深度不大于 l∙0mm的咬边,长度 不限 | 
| 霜修磨焊縫 | 不允许有咬边 | 不允许有咬边 | (无此情形) | |
注,1表中E为连接处较薄的板厚:
2三级对接焊缝应按二级牌缝标准进行外观缺陷的检查与评定;
3本表的合格评定标准仅适用于结构加固工程及其常用的板厚;当板厚 f>15mm时,应按现行国家标准《钢结构工程施工质盘验收规范》GB 50205评定,
检验方法:观察,或使用放大镜、焊缝量规和钢尺检查。
15.5.3高强度大六角头螺栓连接副终拧完成Ih后的48h内应 进行终拧扭矩检查;检查结果应符合现行国家标准《钢结构工程 施工质量验收规范》GB 50205的规定。
95
标准分享网WWW. bzfxw. com免费下载
检查数量:按节点数随机抽查10%,且不应少于10个:每 个被抽查节点按螺栓数抽查10%,且不应少于3个。
检验方法:按该规范的要求执行。
1S.5.4扭剪型高强度螺栓连接副终拧后,除因构造原因无法使 用专门扳手拧掉梅花头外,未在终拧中拧掉梅花头的螺栓数不应 多于该节点螺栓数的5%。对所有梅花头未拧掉的扭剪型高强度 螺栓连接副应采用扭矩法或转角法进行终拧并作标记,且应进行 终拧扭矩检查。
检查数量:按节点数随机抽查10%,但不应少于10个节 点:被抽查节点中梅花头未拧掉的扭剪型高强度螺栓连接副,应 全数进行终拧扭矩检查。
检验方法:按现行国家标准《钢结构工程施工质量验收规 范》GB 50205规定的方法执行。
15.5.5焊缝的尺寸偏差应符合现行国家标准《钢结构工程施工 质量验收规范》GB 50205的规定。
检查数量:每一检验批同类构件随机抽查10%,且不应少 于3件;被抽查构件中•每一类型焊缝按条数抽查5%,且不应 少于1条;每条检查外观质量相对较差的1处,总抽查数不应少 于10处。
检验方法:观察,或使用放大镜、焊缝量规和钢尺检查。
(U) 一般项目
15.5.6焊缝的焊波应均匀;焊道与焊道、焊道与基本金属间过 渡应较平滑;焊渣和飞溅物应基本清除干净。
注:本条中"基本"的涵义,是指其清理结果应得到监理单位的认可。 检查数量:每批同类构件随机抽查10%,且不应少于3件, 被抽查构件中,每种焊缝按数量各抽查5%,总抽查数不应少于 5处。
检验方法:观察,并检查施工记录。
15.5.7高强度螺栓连接副的施拧顺序和初拧、复拧扭矩应符合
96
设计要求和现行行业标准《钢结构高强度螺栓连接的设计、施工 及验收规程》JGJ 82的规定。.
检查数量:全数检查。
检验方法:检查扭矩扳手标定记录和螺栓施工记录。
15. 5.8高强度螺栓连接副终拧后,螺栓丝扣外露应为2扣或3 扣,其中允许有10%的螺栓丝扣外露3扣至4扣。
检查数量:按节点数随.机抽查5%,且不应少于10个。
检验方法:观察。
/VW
97
标准分享网WWW. bzfxw. com免费下载
16钢构件焊缝补强工程
16.1 一般规定
16.1.1本章适用于负荷状态下钢构件焊缝补强的施工过程控制 与施工质量检验。
16.1.2负荷状态下钢构件焊缝帆⅛T程的施工程序应符合7洌规定 1核算施工荷载,并采取严格的安全与控制措施; 2清理原结构,修整构件施焊区;
3制订合理、安全的焊接工艺,并进行试焊;
4焊区表面处理;
5焊接补强施工j •
6焊缝质量检验;
7重做涂装工程。
16.1.3负荷状态下焊缝连接补强施工,其现场环境气温应符合 下列规定;
1 施焊镇静钢板的厚度不大于30mm时,不应低于 -15C:当厚度超过30mτn时,不应低于Ot;
2施焊沸腾钢板时,不应低于5£。
16.1.4雨雪天气时,严禁露天焊接;4级以上风力时,焊接作 业区应有挡风措施。
16.1.5对负荷状态下焊缝补强施焊的焊工要求,必须符合本规 范第15.1.5的规定。
16.2焊区表面处理
(I)主控项目
16.2.1钢构件焊缝补强工程施焊前,应清除待焊区间及其两端
98
以外各50mm范围内的尘土、漆皮、涂料层、铁锈及其他污垢, 并打磨至露出金属光泽。
检查数量,全数检查。
检验方法:会同监理人员逐个焊区检查,经确认合格后签字 留档备查。
16.2.2当发现旧焊缝或其母材有裂纹时.应按本规范规定的修 补方法进行修复。
(Il)-般项目
16.2.3施焊前,焊接作业人员应复查钢构件焊区表面处理的质 量,并做好检查记录。若不符合要求•应经重新修整后方可施 焊。钢构件焊区表面若有冷凝水或结冰现象时,应经清除和烘干 后方可施焊。
检查数量:全数检查。
检验方法:观察,触摸。
16.3焊缝补强施工
(工)主控项目
16.3.1在下列情况下,焊接补强施工,应先进行焊接工艺 试验:
1原构件钢材的品种和钢号系加固施工单位首次使用;
2补强用的焊接材料型号需要改变;
3焊接方法需要改变,或因焊接设备的改变而需要改变焊 接参数;
4焊接工艺需要改变;
5需要预热、后热或焊后需作热处理。 ■
检查数量:按现行行业标准《建筑钢结构焊接技术规程》 JGJ 81的要求确定。
检验方法:检查焊接工艺试验报告。
99
标准分享网WWW. bzfxw. com免费下载
16.3.2负荷状态下的焊接施工,应先对结构、构件最薄弱部位 进行补强,并应采取下列措施:
1对立即能起到补强作用,且对原结构影响较小的部位应 先施焊;
2当需加大焊缝厚度时,应从原焊缝受力较小的部位开始 施焊,且每次敷焊的焊缝厚度不宜大于2mm;
3根据原构件钢材的品种,选用相应的低氢型焊条,且焊 条直径不宜大于4mm;
4焊接电流不宜大于200A;
5当需多道施焊时,层间温度差应低于100℃;
6应采取有效的控制煽接变形的措施。
检查数量:全数检查。
检验方法:按施工技术方案核查操作过程,并检查施工 记录。
16.3.3当用双角钢与节点板角焊缝连接加固焊接时(图 16. 3. 3),应先从一角钢一端的肢尖"1"开始,沿箭头方向施 焊,继而施焊同一角钢另一端"2"的肢尖焊缝;再按图中顺序 施焊角钢的肢背焊缝"3”和"4%以及另一角钢的焊缝"5"、 “6”、 “7"和 “8”。
节点板
 
 
节点板
 
16.3.4负荷状态下焊缝补强的焊接施工,应指派有经验的焊接
】00
专业工程师在场指导,并应在施工记录上签字。
16.4焊接质量检験
(I)主控项目
16.4.1对一级、二级焊缝应进行焊缝探伤,其探伤方法及探伤 结果分级应符合现行国家标准《钢结构工程施工质量验收规范》 GB 50205的规定。
检查数量:全数检查。
检验方法:检查超声波或射线探伤记录。
16.4.2焊縫的外观质量以及焊缝尺寸偏差的检查结果应符合本 规范第15. 5. 2条及第15. 5. 5条的规定。
检查数量:每一检验批同类构件随机抽取10%,且不少于3件。 检验方法:观察,并使用放大镜、焊缝量规和钢尺检查。
(Il)-般项目
16.4.3焊缝的焊波、焊道的施工质量应符合本规范第15. 5. 6 条的要求.焊接完成后,应将焊渣和飞溅物清理干净。
检查数量和检验方法按本规范第15. 5. 6条的规定执行。
101
标准分享网WWW. bzfxw. com免费下载
17钢结构裂纹修复工程
17.1 -般规定
17.1.1本章适用于修复钢结构裂纹的施工过程控制和施工质量 检验。
17.1.2当发现钢结构构件上有裂纹时,应立即在裂纹端点外 0.5£〜ι.o, α为板厚)处钻制'止裂孔'作为应急措施(图 17. L 2),以防其继续发展;然后再根据裂纹的性质采取修复 措施。
 
0.5∕~0.5i
图17.1.2裂纹两端钻制"止裂孔"
17.1.3钢结构、构件裂纹的修复,不论采用对接堵焊法、挖补 嵌板法,还是采用附加盖板法进行修复,均须严格按设计、施工 图的要求和专门制定的焊接施工技术方案进行施工。
17.1.4裂纹修复工程,当采用婦接方法时,其施工现场气温及 天气条件,应符合本规范第16. L 4条及第16.1. 5条的要求。
17.2焊缝补强施工及质量检验
17.2.1当采用堵焊法修复裂纹时,应按下列程序进行,
1清洗裂纹两边各50mm以上范围内板面油污、尘垢至显 露出洁净的金属光泽;
2用碳弧气刨、风铲或砂轮将裂纹边缘加工成坡口,并延
102
 
伸至裂纹端头的钻孔处。坡口的形式应根据板厚和施工条件,按 现行国家标准《气焊、手工电弧焊及气体保护焊焊缝坡口的基本 形式与尺寸》GB/T 985的规定选用;
3将裂纹两侧及端部金属预热至100℃〜150℃,并在堵焊 全过程中保持此温度:
4采用与钢材相匹配的低氢型焊条或超低氢型焊条施焊;
5宜用小直径焊条以分段分层逆向焊施焊;焊接时应按规 定的顺序(图17.2.1)进行.每一焊道焊完后宜立即进行锤击 检查$
 
 
 
(a)裂纹由板端开始
 
(0裂縫在中部
图17. 2.1堵焊焊道顺序
6对承受动力荷载的构件,堵掉后其表面应磨光,使之与 原构件表面齐平,磨削痕迹线应大体与裂纹切线方向垂直;
7对重要结构或厚板构件,堵焊后应立即进行退火处理Q
检查数量:全数检査。
检験方法:监理人员全程跟班观察、检查。
103
标准分享网WWW. bzfxw. com免费下载
17.2.2对网状、分叉状裂纹区和有破裂、过烧、烧穿等缺陷的 梁、柱腹板部位,宜采用嵌板修补,修补程序为:
1检查确定缺陷的范围;
2将缺陷部位切除,且宜切成带圆角的矩形洞口。切除部 分的尺寸应比缺陷界线的尺寸扩大IOOmm (图17. 2. 2a);
3用等厚度、同材质的嵌板嵌入切除部位,嵌板的长宽边 缘与切除孔间两个边应留有2mm〜4mm的间隙,并将其边缘加 工成对接焊缝要求的坡口形式;
4嵌板定位后,将孔口四角区域预热至Ioon〜150C,并 按规定的顺序(图17. 2. 2b)采用分段分层逆向焊法施焊;
检查数量:全数检查。
检验方法:监理人员全程跟班检查。
 
图17.2.2缺陷切除后的修补(mm)
1 一切割线;2一缺陷界线;3--预热部位
17.2.3采用附加盖板修补裂纹时,宜采用双层盖板:其厚度应 与原板等厚。此时裂纹两端仍须钻孔。当焊上盖板时,应设法将 加固盖板压紧;焊脚尺寸应等于板厚。盖板的焊接也应按规定的 顺序(图17.2.2b)执行。
检查数量:全数检查。
检验方法:监理人员全程跟班观察。
17.2.4当吊车梁腹板上部出现裂纹时,应根据检查的情况先采
104
取构造措施(如调整轨道偏心等),再按本规范第U. 2.1条的规 定修补裂纹。同时,尚应按设计、施工图的规定进行加固。
17.2.5钢结构、构件裂缝修复工程的施工质量检验,应符合本 规范第16.4节的规定。
/VWW
105
标准分享网WWW. bzfxw. com免费下载
18混凝土及砌体裂缝修补工程
18.1 一般规定
18. L 1本章适用于混凝土或砌体结构、构件中裂缝修补的施工 过程控制和施工质量检验。
注:对影响结构、构件承载力的裂缝,以及地基不均匀沉降引起的裂 缝,当需按本章的规定进行修补时,应先采取必要的加固措施, 消除裂缝产生的根源。
18.1.2裂缝修补的施工程序应符合F列规定:
1裂缝复查;
2制订修补技术方案;
3清理、修整原结构、构件:
4界面处理及原构件含水率控制:
5裂缝修补施工;
6修补质量检验。
18.1.3修补裂缝现场的气温,应符合裂缝修补材料使用说明书 的规定;若无具体规定,不应低于15P)修补过程不得遭受日 晒雨淋,并严禁在风沙和雨雪天气条件下进行露天修补施工。
对现场环境的湿度要求,也应符合产品使用说明书的规定。
18.2界面处理
(1)主控项目
18.2.1原结构、构件除应按本规范第3.0. 4条和第3.0. 5条的 要求清理、修整外,尚应按下列规定进行界面处理:
1沿裂缝走向,在裂缝中插入作为临时标志的竹钉或其他 钉,钉距以能在打磨后找到裂缝为度。然后对裂缝两侧各
106
IoQmm范围内的原构件表面,用喷砂机或砂轮机打磨平整,直 至露出坚实的骨料新面,经检查无油渍、污垢后用压缩空气或吸 尘器清理干净;
2当设计要求沿裂缝走向骑缝凿槽时,应按施工图规定的 剖面形式(如V形、U形等)和尺寸进行画线、开凿、修整并 清理洁净。若设计未规定槽形,宜凿成U形槽。若原构件表面 不平,尚应沿裂缝走向削成便于连续封闭的平顺弧面,不得有局 部凸起或高差;
3裂缝腔内的粘合面处理,应按产品使用说明书的规定或 在该产品厂方指用的专业工程师指导下进行。
(Il)-般项目
18.2.2原构件界面含水率应按胶粘剂使用说明书的要求进行控 制。若有困难,应改用高潮湿面专用的结构胶粘剂。
检查数量:全数检查。
检验方法:混凝土含水率测定仪检测;砌体用烘干法检测。
18.3表面封闭法施工
(I)主校项目
18.3.1粘贴封闭材料修补裂缝前,应复査裂縫两侧原构件表面 打磨的质量是否合格。若已合格,应采用工业丙酮擦拭一遍。
检查数量:全数检查。
检验方法:观察,并检查施工记录。
18.3.2若粘贴纤维织物的施工工艺有底涂要求时,应按规定配 制和拌合底胶。拌合后的底胶,其色泽应均匀,黏度低、渗透性 好,无结块,且不受尘土、水分和油烟的污染。
底胶应用滚筒刷或特制的毛刷均匀涂布在洁净的原构件表 面。涂刷时,应注意刮去胶液中的气泡。调好的底胶应在规定的 时间内用完。底胶涂刷完毕,应立即进行养护,并防止胶面受到
107
标准分享网WWW. bzfxw. com免费下载
污染。当胶面呈指触干燥(指干)时,立即进入下一工序。
检查数量:全数检查。
检验方法:观察,触摸,并检查施工记录。
18.3.3浸渍、粘结纤维织物用的结构胶粘剂,其配制和拌合应 按产品使用说明书进行。拌合后的胶液色泽应均匀,无结块和气 泡;随即将其均匀涂抹于底胶层的面上。若采用免底涂胶粘剂, 应先检查其产品使用说明书,经监理单位确认为免底涂胶粘剂 后,再直接涂抹在粘贴部位的混凝土面上。
检查数量:全数检查。
检验方法:观察,检查施工记录。
18.3.4粘贴纤维织物时,应按下列步骤和要求进行:
1将裁剪好、经检查无误的纤维织物敷在涂好胶粘剂的基 层上;
2用特制的滚筒在已贴好纤维织物的面上,沿纤维经向多 次滚压,使胶液充分润透、渗到纤维中,且应仔细刮、挤平整, 排出气泡;
3多层粘贴时,应在底层纤维织物所涂的胶液达到指干状 态时立即涂胶粘贴下一层。若拖延时间超过Ih,则应等待12h 后,再涂刷胶粘剂粘贴下一层,且粘贴前应重新将织物粘合面上 的灰尘擦拭干净;
4最外一层纤维织物的表面应均匀涂抹一道胶粘剂。
检查数量:全数检查。
检验若法:观察,检查施工记录。
(II)-般项目
18.3.5粘贴织物时,其边缘距裂缝中心线的距离应不小于 50mm,且不允许有负偏差。织物长度应至少大于裂缝长度 100mm,若由于构造原因不能满足此要求,应在织物端部加贴 横向压条。压条的长度应比封闭用的织物宽度至少大IOomm。
检查数量:随机抽查修补构件数的10%,且不少于5个
108
构件。
检验方法:钢尺测量.
18.3.6当粘贴织物不止一层时,其粘贴工艺应符合本规范第 10. 3. 2条第5款的规定。
检查数量:全数检查。
检验方法:观察。
18.3.7在纤维织物最上一层的面上应涂刷胶粘剂一遍,并随即 撒上石英砂或豆石。待胶粘剂完全固化后再抹水泥砂浆或设计指 定的材料,作为防护面层。
检查数量:全数检查。
检验方法:观察,检查施工记录。
18.4柔性密封法施工
(I)主控项目
18.4.1按设计规定的尺寸开凿U形槽或V形木槽,并仔细检 查凿槽质量。检查结果应符合设计及本章第18. 2节的要求。
检查数量:全数检查。
检验方法:观察,检查施工记录. l h
18.4.2当需设置隔离层时,U形槽的槽底应为光滑的平底。 槽底铺设的隔离层,应是不吸潮膨胀,且不与弹性密封材料及基 材发生化学反应的材料;隔离层应紧贴槽底(图18∙4.2),但不 与槽底粘连。
封护材料\
 
图1&4.2裂缝处开U形槽充填修补材料
109
标准分享网WWW. bzfxw. com免费下载
检查数量:全数检查。
检验方法;观察,检查施工记录。
18.厶3当在槽内填充柔性或弹性密封材料时,应先在槽内凿毛 的两侧壁表面上涂刷一层胶液,方可填充所选用的密封材料。
检查数量:全数检查。
检验方法:观察,检查施工记录。
(Il)-般项目
18.4. 4密封材料填充完毕后,应在裂缝槽口及其两侧各50mm 范围内粘贴无碱玻璃纤维织物或无纺布封护。
检查数量:全数检查。
检验方法:观察,检查施工记录。
18.5压力灌注法施工
(I)主控项目
18. 5.1采用压力灌注法注入低黏度胶液或注浆料修补混凝土、 砌体裂缝时,应根据裂缝宽度、深度和内部情况,选用定压注射 器自动注胶法或机控压力注浆法。其选择应符合下列原则:
1当混凝土或砌体的水平构件和竖向构件中,有宽度为 0. 05mm~l. 5mm,深度不超过300mm的贯穿或不贯穿裂缝时, 宜采用定压注射器注胶法施工。注射器安装的方法和间距应符合 产品使用说明书的规定。这种方法所产生的压力应不小于 0.2MPa。若压力过低,应改用其他产品。
2裂缝宽度大于0.5mm且走向蜿蜒曲折或为体积较大构 件的混凝土深裂缝,宜采用机控压力注胶:注人压力应根据产品 使用说明书确定。
3当裂缝宽度大于2mm时,应采用符合本规范表4. 8.1规 定的注浆料,以压力灌注法施工。
18.5.2压力灌注装置的安装和试压检验应符合下列要求:
IlO
1注胶嘴(或注浆嘴)及其基座应按裂缝走向设置。针筒 注胶嘴间距为Ioomm〜300mm;机控注胶(浆)嘴间距为 300mm〜500mm?同时尚应设在裂缝交叉点、裂缝较宽处和端 部。注胶(浆)嘴基座之间的裂缝表面应采用封缝胶封闭。每条 裂缝上还必须设置排气嘴。对现浇板裂缝,注胶(浆)嘴可设在 板底,也可设在板面,但均应保证裂缝上下表面的密封;
2封缝胶固化后,应进行压气试验,检查密封效果;观察 注胶(浆)嘴之间的连通情况。当注胶(浆)嘴中气压达到 0.5MPa时,若仍有不通气的注胶(浆)嘴,则应重新埋设注胶 (浆)嘴,并缩短其间距。
检查数量:全数检查。
检验方法:封缝胶泥固化后立即进行压气试验。沿封缝胶泥 处涂刷皂液,从注胶(浆)嘴压入压缩空气,压力取等于注胶 (浆)压力,观察是否有漏气的气泡出现.若有漏气,应用胶泥 修补,直至无气泡出现。
1&5.3施工前应复查裂缝修补胶(浆)液的品种、型号及进场 复验报告,以及所配制胶(浆)液的初始黏度。若拌合胶(浆) 液时,发现有突然发热变稠的现象,应弃用该批胶(浆)液。
检查数量:全数检查。
检验方法:观察。
18.5.4注胶(浆)压力控制与注胶(浆)作业应符合下列 规定:
1注胶(浆)压力应按产品使用说明书进行控制;
2压力注胶(浆)作业按从下到上的顺序进行;
3注浆过程中出现下列标志之一时,即可确认裂缝腔内已 注满胶(浆)液,可以转人下一个注胶(浆)嘴进行注胶(浆), 直至注完整条裂縫:
1)在注胶(浆)压力下,上部注胶(浆)嘴有胶(浆) 液流出;
2)在胶(浆)液适用期内,吸胶(浆)率小于0,05L/min。
Ill
标准分享网WWW. bzfxw. com免费下载
(II)一般项目
18.5.5当上部注胶(浆)嘴或排气嘴有胶(浆)液流出时,应 及时关闭上部注胶(浆)嘴,并维持压力Imin〜2min。待缝内 的胶(浆)液初凝时,应立即拆除注胶(浆)嘴和排气嘴,并用 环氧胶泥将嘴口部位抹平、封闭。
18.6施工质量检验
18.6∙1胶(浆)液固化时间达到7d时,应立即采用下列方法 之一进行灌注质量检验:
1超声波法(仅用于混凝土构件):
当采用超声波探测时,其测定的浆体饱满度不应小于90%。
检查数量:见证抽测裂缝总数的10%,且不少于5条 裂缝。
检验方法:按有关超声法检测混凝土缺陷的规定执行。
2取芯法(仅用于混凝土构件);
随机钻取直径D不小于50mm的芯样进行检测。钻芯前应 先通过探测避开钢筋;取芯点宜位于裂缝中部。检查芯样裂缝是 否被胶体填充密实、饱满,粘结完整。如有补强要求,还应对芯 样做劈拉强度试验;试验结果应符合现行国家标准《混凝土结构 加固设计规范》GB 50367的要求,
钻芯后留下的孔洞应采用掺有石英砂的结构胶填塞密实。
检查数量:每一检验批同类构件见证抽查10%,且不少于3 条裂缝;每条取芯样1个。
检验方法:观察、检查修补胶固化7d的抗劈拉试验记录。
3承水法:
仅适用于现浇楼板或围堰类构筑物。以承水24h不渗漏为 合格。
检查数量;按合同要求确定。
检验方法:观察,并检查承水试验报告。 ••
112
19植筋工程
19.1 一般规定'
19.1.1本章适用于混凝土承重结构和砌体承重结构以锚固型结 构胶粘剂种植带肋钢筋(包括拉结筋)和全螺纹螺杆的施工过程 控制和施工质量检验。
19.1.2植筋(包括全螺纹螺杆,以下同)工程施工程序应按施 工设计规定的工序(图19. L 2)进行。
iSJL 胶粘剂安全储存律型∙∣调配胶粘剂
进场复验 ...二.... 一» I
(枪式注射包装)
清理 修整
原结构-基材
 
丄 ɪ
质量检ɪ
钢筋加工并除锈、除油.除污
A F 图19. 1. 2植筋工程施工工序
19. L 3植筋工程的施工环境应符合下列要求:
1基材表面温度应符合胶粘剂使用说明书要求;若未标明 温度要求,应按不低于15t进行控制;
2基材孔内表层含水率应符合胶粘剂产品使用说明书的 规定;
3严禁在大风、雨雪天气进行露天作业。
注:当基材孔内表层含水率无法降低至胶粘剂使用说明书的要求时, 应改用高潮湿面适用的胶粘剂。
19.14植筋位置应经放线并探测钢筋位置后标定。若植筋孔位 受原钢筋干扰,应通知设计单位变更植筋位置,并出具变更设计
113
标准分享网WWW. bzfxw. com免费下载
通知书。
19.1.5植筋焊接应在注胶前进行。若个别钢筋确需后焊时,除 应采取断续施焊的降温措施外,尚应要求施焊部位距注胶孔顶面 的距离不应小于15d,且不应小于200mm;同时必须用冰水浸 渍的多层湿巾包裹植筋外露的根部。
19.1.6基材清孔及钢筋除锈、除油和除污的工序完成后,应按 隐蔽工程的要求进行检查和验收。
19.2界面处理
(I)主控项目
19.2.1植筋孔洞钻好后应先用钢丝刷进行清孔,再用洁净无油 的压缩空气或手动吹气筒清除孔内粉尘,如此反复处理不应少于 3次。必要时尚应用干净棉纱沾少量工业丙酮擦净孔壁。
检查数量:全数检查。
检验方法:观察、触摸孔壁。
19.2.2植筋工程施工过程中,应每日检查其孔壁的干燥程度。 检查数量:全数检查。
检验方法:混凝土用含水率测定仪检测;砌体用烘干法 检测。
19.2.3植筋孔壁应完整,不得有裂缝和其他局部损伤。
检查数量;全数检查。
检验方法:在有照明条件下观察,并检查施工记录。
(Il)一般项目
19. 2.4植筋用的钢筋或螺杆在植人前应复查有无未打磨干净的 旧锈和新锈。若有新旧锈斑,应用砂纸擦净。
检查数量:全数检查。
检验方法:观察。
19.2.5植筋孔壁清理洁净后,若不立即种植钢筋,应暂时封闭
114
其孔口,防止尘土、碎屑、油污和水分等落入孔中影响锚固 质量。
检查数量:全数检查。
检验方法:观察,并检查施工记录。
19.3植筋工程施工
(I)主控项目
19.3.1当采用自动搅拌注射筒包装的胶粘剂时,可选用硬包装 产品,也可采用软包装产品。对软包装产品的使用,应将软包装 产品置于硬质容器内运输和贮存,以防胶粘剂受损、变质。同 时,其植筋作业尚应按产品使用说明书的规定进行,但应经试操 作。若试操作结果表明,该自动搅拌器搅拌的胶不均匀,应予奔 用。当采用现场配制的植筋胶时,应在无尘土飞扬的室内,按产 品使用说明书规定的配合比和工艺要求严格执行,且应有专人负 责。调胶时应根据现场环境温度确定树脂的每次拌合量:使用的 工具应为低速搅拌器孑搅拌好的胶液应色泽均匀,无结块,无气 泡产生。在拌合和使用过程中,应防止灰尘、油、水等杂质混 入,并应按规定的可操作时间完成植筋作业。
检查数量:全数检查。
,检验方法:观察。
19.3.2注入胶粘剂时•其灌注方式应不妨碍孔中的空气排出, 灌注量应按产品使用说明书确定,并以植入钢筋后有少许胶液溢 出为度。在任何工程中,均不得采用钢筋从胶桶中粘胶塞进孔洞 的施工方法。
检查数量;全数检查。
检验方法:由监理人员跟班检查,一经发现应责令重新 返匸
19.3.3注入植筋胶后,应立即插入钢筋,并按单一方向边转边 插,直至达到规定的深度。从注人胶粘剂至植好钢筋所需的时
115
标准分享网WWW. bzfxw. com免费下载
间,应少于产品使用说明书规定的适用期(可操作时间)。否则 应拔掉钢筋,并立即清除失效的胶粘剂,重新按原工序返工。
检查数量:全数检查。 ^
检验方法:观察。
19.3.4植入的钢筋必须立即校正方向,使植入的钢筋与孔壁间 的间隙均匀。胶粘剂未达到产品使用说明书规定的固化期前,应 静置养护,不得扰动所植钢筋a
检查数量:全数检查。
检验方法:专人巡察、监理人员检查。
(Il)-般项目
19.3.5植筋钻孔孔径的偏差应符合表19.3. 5-1的规定。钻孔 深度及垂直度的偏差应符合表19. 3. 5-2的规定。
表19∙3∙S"1植筋钻孔孔径允许偏差(mm)
| 钻孔直径 | 孔径允许偏差 | 钻孔直径 | 孔径允许偏差 | 
| V14 | ≤+1.0 | 22 〜32 | ≤+2∙0 | 
| 14 〜20 | ≤÷1.5 | 34—40 | ≤+2∙5 | 
| 表19.3∙5∙2植筋钻孔深度、垂直度和位置的允许偏差 | |||
| 植筋部位 | 钻孔深度允许偏差 《mm) | 钻孔垂直度允许偏差 (mm∕m) | 位置允注偏差 (mm> | 
| 基础 | +20, O | 50 | 10 | 
| 上部构件 | +10, O | 30 | 5 | 
| -连接节点 | +5, O | 10 | 5 | 
注:当钻孔垂直度偏差超过允许值时,应由设计单位确认该孔洞是否可用I若需 返工,应由施工单位提出技术处理方案,经设计单位认可后实施.对经处理 的孔洞,应重新检查验收。
检查数量:每种规格植筋随机抽查5%,且不少于5根。
检验方法:量角规、靠尺、钢尺量测;重新钻孔时,尚应检 査技术处理方案。
116
19.4施工质量检驗
19.4∙1植筋的胶粘剂固化时间达到7d的当日,应抽样进行现 场锚固承载力检验。其检验方法及质量合格评定标准必须符合本 规范附录W的规定。
检查数量:按本规范附录W确定。
检验方法:监理人员应在场监督.并检查现场技拔检験 报告。
19.4. 2对现场拉拔检验不合格的植筋工程「若现场考察认为与 胶粘剂质量有关且业主单位要求追究责住时,应委托当地独立检 测机构对胶粘剂安全性能进行系‘统的试验室检验与评定。其检验 项目及安全性能指标应符合现行国家标准《混凝土结构加固设计 规范》GB 50367的规定。
检查数量:每一检验项目的试件数量应按常规检验加倍。
检验方法:按现行国家标准《混凝土结构加固设计规范》 GB 50367和本规范规定的试验方法进行。
/VWV
117
标准分享网WWW. bzfxw. com免费下载
20锚栓工程
20.1 一般规定
20. Ll本章适用于混凝土结构、构件后扩底型锚栓工程和特殊 倒锥形锚栓工程的施工过程控制和施工质量检验。
注:后扩底型锚栓包括自切底和模切底两种扩底方式。
20.1.2锚栓工程的施工程序应符合下列规定:
1清理、修整原结构、构件并画线定位;
2锚栓钻孔、清孔、预紧、安装和注胶(当产品有要求 时);
3锚固质量检验。
20.1.3原结构、构件清理、修整后,应按设计图纸进行画线确 定锚栓位置;若构件内部配有钢筋,尚应探测其对钻孔有无影 响。若有影响,应立即通知设计单位处理。
20,1.4锚栓工程的施工环境应符合下列要求:
1锚栓安装现场的气温不宜低于一52。
2严禁在雨雪天气进行露天作业。
20.2锚栓安装施工
(I)主控项目
20.2.1锚栓的钻孔,应采用该产品使用说明书规定的钻头及配 套工具,并应按该说明书规定的钻孔要求进行操作。
检查数量:每一锚栓品种不少于一次。
检验方法:观察,检查钻孔记录。
20.2.2基材表面及锚孔的清理应符合下列要求:
1混凝土基材表面应按本规范第3.0.4条及3. 0.5条的要
118
求进行清理、修整;
2锚栓的锚孔,应用压缩空气或手动气筒清除孔内粉屑;
3锚栓应无浮锈■锚板范围内的基材表面应光滑平整,无 残留的粉尘、碎屑。
检查数量:全数检查。
检验方法:观察,并用含水率测定仪检测。
20. 2.3锚栓的安装作业应符合下列规定:
1自扩底型锚栓的安装,应使用专门安装工具并利用锚栓 专制套筒上的切底钻头边旋转、边切底、边就位;同时通过目测 位移,判断安装是否到位:若已到位,其套筒顶端应低于混凝土 表面的距离为Imm〜3mm:对穿透式自扩底锚栓,此距离系指 套筒顶端应低于被固定物的距离;
2模扩底锚栓的安装应使用专门的模具式钻头切底,将锚 栓套筒敲至柱锥体规定位置以实现正确就位;同时通过目测位 移,判断安装是否到位:若已到位,其套筒顶端至混凝土表面的 距离也应约为IEnl~3τnτn。
注:特殊倒锥形锚栓无需扩底。
检查数量:全数检查。
检验方法:观察,检查安装记录。
(Il)-般项目
20.2.4锚栓孔清孔后•若未立即安装锚栓,应暂时封闭其孔 口,防止尘土、碎屑、油污和水分等落入孔内影响锚固质量。
检查数量:全数检查。
检验方法:观察,并检查施工记录。
20.2.5锚栓固定件的表面应光洁平整。
检查数量:全数检查。'
检验方法:观察。
20.2.6钻孔偏差应符合下列规定:
1垂直度偏差不应超过2.0%;
119
标准分享网WWW. bzfxw. com免费下载
2直径偏差不应超过表20.2.6的规定值,且不应有负 偏差;
3孔深偏差仅允许正偏差,且不应大于5mm;.
4位置偏差应符合施工图规定;若无规定,应按不超过 5 mm执行。
检查数量:每一种孔径随机抽检5%,且不少于5个。
.检验方法:直角靠尺、探针、钢尺量测。
泉20.2.6锚栓钻孔直径的允许偏差<mm)
| 钻孔直径 允许偏差 钻孔直径__ | 允许偏差 | 
| ≤14 ≤+0.3 24〜28 | &十 0. 5 | 
| 16〜22 &+0.4 30-32 | W+0∙6 | 
20.3施工质量检验
(I)主控项目
20.3.1锚栓安装、紧固或固化完毕后,应进行锚固承载力现场 检验。其锚固质量必须符合本规范关于锚固承载力现场检验与评 定的规定并符合附录W的规定。
检查数量:按本规范附录W确定。
检验方法:检查锚栓承载力现场检验报告。
(Il)一般项目
20.3.2锚栓应按设计或产品安装说明书的要求,检查其锚固深 度、预紧力控制值及位置偏差等。
120
21灌浆工程
21.1 一般规定
21.1.1本章适用于以结构加固用水泥基灌浆料加固承重结构混 凝土构件和砌体构件的施工图复查、施工过程控制和施工质量 检验。
21.1.2结构构件增大截面灌浆工程的施工程序及需按隐蔽工程 验收的项目,应按本规范第5章的规定执行,并应符合下列 规定:
1在安装模板的工序中,应增加设置灌浆孔和排气孔的 规定。
2在灌浆施工的工序中,对第一次使用的灌浆料,应增加 试灌的作业;当分段灌注时,尚应增加快速封堵灌浆孔和排气孔 的作业。
21.1.3灌浆工程的施工组织设计和施工技术方案应结合结构的 特点进行论证,并经审查批准。
21.2施工图安全复查
21.2.1在结构加固工程中使用水泥基灌浆料时,应对施工图进 行安全复查,其结果应符合下列规定:
1对增大截面加固,仅允许用于原构件为普通混凝土或砌 体的工程;不得用于原构件为高强混凝土的工程。
2对外加型钢(角钢)骨架的加固,仅允许用于干式外包 钢工程:不得用于外粘型钢(角钢)工程。
21.2.2当用于普通混凝土或砌体的增大截面工程时,尚应遵守 下列规定:
1不得采用纯灌浆料,而应采用以70%灌浆料与30%细石
121
标准分享网WWW. bzfxw. com免费下载
混凝土混合而成的浆料(以下简称混合料),且细石混凝土粗骨 料的最大粒径不应大于12. 5mmβ
2混合料灌注的浆层厚度(即新增截面厚度)不应小于 60mm,且不宜大于80mm;若有可靠的防裂措施,也不座大 于 100mm。
3采用混合料灌注的新增截面,其强度设计值应按细石混 凝土强度等级采用。细石混凝土强度等级应比原构件混凝土提高 一级,且不应低于C25级,也不应高于C50级。
注:当构件新增截面尺寸较大时,宜改用普通混凝土或自密实混凝土。
4梁、柱的新增截面应分别采用三面围套和全围套的构造 方式,不得采用仅在梁底或柱的相对两面加厚的做法。板的新增 截面与旧混凝土之间应采取增强其粘结抗剪和抗拉能力的措施, 且应设置防温度变形、收缩变形的构造钢筋。
21.2.3当用于干式外包钢工程时,不论采用何种品牌灌浆料, 均仅作为充填角钢与原混凝土间的缝隙之用,不考虑其粘结能 力。在任何情况下,均不得替代结构胶粘剂用于外粘型钢(角 钢)工程。
21.2.4当本规范本节的安全规定与其他标准规范不一致时,对 建筑结构加固改造工程应按本规范的规定执行。
21.3界面处理
(I)主控项目
21.3.1原构件界面(即粘合面)处理应符合下列规定:
1对混凝土构件,应采用人工、砂轮机或高压水射流充分 打毛。打毛深度应达骨料新面,且应均匀、平整;在打毛同时, 尚应凿除原截面的棱角。
2对一般砌体构件,仅需剔除勾缝砂浆、已风化的块材面 层和抹灰层或其他装饰层。
3对外观质地光滑,且强度等级高的砌体构件,除应按本
122
条第2款处理外,尚应打毛块材表面;每块应至少打毛两处,且 可打成点状或条状,其深度以3mm〜4mm为度。
在完成打毛工序后,尚应清除已松动的骨料、浮渣和粉尘, 并用清洁的压力水冲洗干净。
检查数量:全数检查。
检验方法:观察、触摸,并检查施工记录。
2L3∙2对打毛的混凝土或砌体构件,应按设计选用的结构界面 胶(剂)及其工艺进行涂刷。对楼板加固,除应涂刷结构界面胶 (剂)外.尚应种植剪切销钉。其具体种植要求,应符合本规范 第5. 2.2条的规定。
界面胶(剂)和锚固型结构胶粘剂进场时,应按本规范第4 章的要求进行复验。
检查数量及检验方法应按该章确定。
(n)一般项目
21.3.3结构界面胶(剂)的涂刷方法及质量要求,应符合产品 使用说明书及施工图说明的要求。若涂刷时间距界面处理时间较 长,尚应检查界面处理质量是否有变化。经复查确认合格后方可 进入本工序。
检查数量:全数检查。
‘检验方法:‘观察、擦拭、触摸,并检查界面胶(剂)的涂刷 记录。
21.4灌浆施工
(I)主控项目
2L4.1新增截面的受力钢筋、箍筋及其他连接件、锚固件、预 埋件与原构件连接(焊接)和安装的质量,应符合本规范第 5. 3.1条的要求。
检查数量及检验方法也按本规范第5.3.1条的规定执行。
123
标准分享网WWW. bzfxw. com免费下载
21.4.2灌浆工程的模板、紧箍件(卡具)及支架的设计与安 装,除应遵守现行国家标准《混凝土结构工程施工质量验收规 范》GB 50204的规定外,尚应符合下列要求:
1当采用在模板对称位置上开灌浆孔和排气孔灌注时,其 孔径不宜小于100mm,且不应小于50mm;间距不宜大于 800mm。若模板上有设计预留的孔洞,则灌浆孔和排气孔应高 于该孔洞最高点约50mm。
2当采用在楼板的板面上凿孔对柱的增大截面部位进行灌 浆时,应按一次性灌满的要求架设模板,并采用措施防止连接处 漏浆。此时,柱高不宜大于3m,且不应大于4m。若将这种方法 用于对梁的增大截面部位进行灌浆,则无需限制跨度,均可按一 次性灌注完毕的要求架设模板。
梁、柱的灌浆孔和排气孔应对称布置,且分别凿在梁的边侧 和柱与板交界边缘上。凿孔的尺寸一般为60mmX 120mm的矩 形孔。
21.4.3新增灌浆料与细石混凝土的混合料,其强度等级必须符 合设计要求,用于检查其强度的试块,应在监理工程师的见证 下,按本规范第5.3.2条的规定进行取样、制作、养护和检验。
注:试块尺寸应为IOomTnXIOOmmXlOOmm的立方体。其检验结果应 换算为边长为150ι≡的标准立方体抗压强度,作为评定混合料强 度等级的依据,换算系数应按现行国家标准《普通混擬土力学性 能试睑方法标准》GB/T50081的规定采用。
检查数量及检验方法按该条规定执行。
21.4.4灌浆工艺应符合国家现行有关标准和产品使用说明书的 规定。灌浆料启封配成浆液后,应直接与细石混凝土拌合使用, 不得在现场再掺入其他外加剂和掺合料。将拌好的混合料灌人模 板内时,允许用小工具轻轻敲击模板。
检査数量:全数检查。
检验方法:观察、温度计检测,并检查施工记录。
21.4.5日平均温度低于50C时,应按冬期施工要求,采取有效
124
措施确保覆浆工艺安全可行。浆体拌合温度应控制在50°C〜 65七之间;基材温度和浆料人模温度应符合产品使用说明书的要 求,且不应低于10七。
.(ID一般项目
21.4.6混合料灌注完毕后,应按施工技术方案及时采取有效的 养护措施,并应符合下列规定:
1养护期间日平均温度不应低于5℃;若低于5℃,应按冬 期施工要求,采取保暖升温措施;在任何情况下,均不得采用负 温养护方法,以确保灌浆工程的养护质量。
2灌注完毕应及时喷洒养护剂或塑料薄膜,然后再加盖湿 麻袋或湿草袋。在完成此道作业后,应按本规范第5. 3. 4条的规 定进行养护,旦不得少于7上
3应在养护期间,自始至终做好浆体的保湿工作;冬期施 工,还应做好浆体保温工作;保湿、保温工作的定期检查记录应 留档备查。
检查数量:全数检查。
检验方法:观察、抽检并检查施工记录。
21.5施工质量检験
2L 5.1以灌浆料与细石混凝土拌制的混合料,并采用灌浆法灌 注而成的新增截面,其施工质量应符合本规范第5章的规定。
21.5.2在按本规范第5章的规定检查混合料灌注的新增截面的 施工质量前,应先对下列文件进行审查。
1灌浆料出厂检验报告和进场复验报告:
2拌制混合料现场取样作抗压强度检验的检验报告。
125
标准分享网WWW. bzfxw. com免费下载
22建筑结构加固工程竣工验收
22∙0.l建筑结构加固工程竣工验收程序和组织应符合下列 规定:
1检验批和分项工程应由监理工程师组织施工单位专业技 术负责人及专业质量负责人进行验收;
2子分部工程应由总监理工程师组织施工单位项目负责人 和技术、安全、质量负责人进行验收;该加固项目设计单位工程 项目负责人及施工单位部门负责人也应参加?
3各子分部工程竣工验收完成后,施工单位应向建设单位 提交分部工程验收报告,建设单位收到报告后,应指派其加固工 程负责人组织施工(含分包单位)、设计、监理等单位负责人进 行分部工程竣工验收;
4分部工程竣工验收合格后,建设单位应负责办理有关建 档和备案等事宜;
5若参加竣工验收各方对加固工程的安全和质量有异议, 应请当地工程质量监督机构协调处理。
22.0.2建筑结构加固工程的施工质量应按下列要求进行竣工 验收:
1加固工程施工质量应符合本规范和相关专业验收标准的 规定,以及加固设计文件的要求;
2参与加固工程施工质量验收的各方人员应具备规定的 资格;
3加固工程质量的验收应在施工单位自行检查评定合格的 基础上进行;
4隐蔽工程应在隐蔽前已由施工单位通知有关单位进行了 验收,并已形成验收文件;
126
5涉及结构安全的检验项目,已按规定进行了见证取样检 测,其检测报告的有效性已得到监理人员检査认可;
6加固工程的观感质量应由验收人员进行现场检查。其检 查结果的综合结论已得到验收组成员共同确认。
22.0.3建筑结构加固子分部工程竣工验收时,应提供下列文件 和记录:
1设计变更文件;
2原材料、产品出厂检验合格证和涉及安全的原材料、产 品的进场见证抽样复验报告:
3结构加固各工序应检项目的现场检查记录和检验报告;
4施工过程质量控制记录;
5隐蔽工程验收记录:
6加固工程质量问题的处理方案和验收记录挙
7其他必要的文件和记录。
22.0. 4子分部工程合格质量标准应符合下列规定:
1子分部工程所含的各分项工程,其质量验收合格,
2质量控制资料完整;
3涉及安全的见证检验项目,其抽检结果符合本规范合格 质量标准的要求:
4观感质量经验收组成员共同确认合格。
22.0.5建筑结构加固工程施工质量不合格时,应由施工单位返 工重做,并重新检查、验收。若通过返工后仍不能满足安全使用 要求的加固工程,严禁验收。
127
标准分享网WWW. bzfxw. com免费下载
附录A建筑结构加固子 分部工程、分项工程划分
表風0/建筑结构加固子分部工程、分项工程划分
| 分部 工程 | 子分部工程 | 分项工程 | 
| 建筑 靖构 加固 《上部 结构 加固) | 混凝土构件增大 截面工程 | 原构件修整、界面处理、钢筋加工、焊接、混 凝土浇筑、养护 | 
| 局部置换构件 混凝土工程 | 局部凿除、界面处理、钢筋修复、混凝土浇筑、 养护 | |
| 混凝土构件 绕丝工程 | 原构件修整、钢丝及钢构件加工、界面处理、 绕丝、焊接、混凝土浇筑、养护 | |
| 混凝土构件外加 预应力工程 | 原构件像整、预应力部件加工与安装、预加应 力、涂装 | |
| 外粘型钢工程 | 原构件修整,界面处理、钢构件加工与安装、 焊接、注胶、涂装 | |
| 粘贴纤维复合材 工程 | 原构件修整、界面处理、纤维材料結貼、防护 面层 | |
| 外粘钢板工程 | 原构件修整、界面处理、钢板加工、胶接与锚 固、防护面层 | |
| 钢丝绳网片外加聚 合物砂浆面层工程 | 原构件修整、界面处理、网片安装与锚固、聚 合物砂浆喷抹 | |
| 承重构件外加钢筋 网一砂浆面层工程 | 原构件修整、钢筋网加工与焊接、安装与锚固、 聚合物砂浆或复合砂浆项抹 | |
| 砌体柱外加预应力 撑杆加固 | 原砌体修整、撑杆加工与安装、預加应力、焊 接、涂装 | 
128
续表Aoj
| 分部 工程 | 子分部工程 | 分项工程 | 
| 建筑 结构 加固 (上部 结构 加固) | 钢构件増大截面 工程 | 原构件修整、界面处理,钢部件加工与安装、 焊接或高强度螺栓连接,涂装 | 
| 钢构件焊缝连接补 强工程 | 原焊缝处理,焊缝补强、涂装 | |
| 钢结构裂纹修复 工程 | 原构件修整.界面处理,钢板加工、焊接、髙 强度螺栓连接,涂装 | |
| 混凝土及砌体裂缝 修补工程 | 原构件修整、界面处理.注胶或注浆、或填充 密封.表面封闭、防护面层 | |
| 植筋工程 | 原构件修整.钢筋加工、钻孔、界面处理、,注 胶、养护 | |
| 锚栓工程 | 原构件修整、钻孔、界面处理.机械锚栓或定 型化学锚栓安装 | 
Λ∕W
129
标准分享网WWW. bzfxw. com免费下载
附录B质量验收记录
B.0.1结构加固检验批质量验收可按表R 0.1记录。
表B.O.1检验批质量验收记录
| 工程名称 | 分项工程名称 | 验收部位 | |||||||||||||
| 施工单位 | -专业工长 | 项目经理 | |||||||||||||
| 分包单位 | 分包项目经理 | 施工班组长 | |||||||||||||
| 批号及批量 | 见证取样人员 | ||||||||||||||
| 执行标准 名称及编号 | |||||||||||||||
| 检査项目 | 质髭验收 规范的规定 (条文号) | 施工单位自查评定记录 | 监理‹建设) 单位验收记录 | ||||||||||||
| 1 | |||||||||||||||
| 2 | |||||||||||||||
| 4 | |||||||||||||||
| 丁 | |||||||||||||||
| 般 项 目 | 1 | ||||||||||||||
| 施工单位检查 评定结果 | 项目专业质量检查员 年 月H | ||||||||||||||
| 监理(建设) 单位验收结论 | 监理工程师(建设单位项目专业技术负责人) 年 月日 | ||||||||||||||
130
B.0.2结构加固分项工程质量验收可按表B.O.2记录Q 装AS2分项工程质量验收记录
| 工程名称 | "结构类型- | I检验批数- | |||||||
| 反工单位 | 项目经理 | 项目技术负责人 | |||||||
| 分包单位 | 分包单位负责人 | 分包项目经理 | |||||||
| 序号 | 检验批部 位、区段 | 施工单位检查 评定结果 | 监理(建设)单位验收结论 | ||||||
| 1 | |||||||||
| 2 | |||||||||
| 3 | |||||||||
| 4 | |||||||||
| 5 | |||||||||
| 6 | |||||||||
| 7 | |||||||||
| 8 | |||||||||
| 9 | |||||||||
| 10 | |||||||||
| 11 | |||||||||
| 12 | |||||||||
| 13 | |||||||||
| 14 | |||||||||
| 检 査 结 论 | 项目专业技术负责人 年 月 日 | 验 收 结 论 | 监理工程师 (建设单位项目专业技术负责人) 年 月 H | ||||||
131
标准分享网WWW. bzfxw. com免费下载
B.0.3结构加固分部(子分部)工程质量验收可按表R0∙ 3 记录。
表R 0.3分部(子分部)工程质■載收记录
| 工程名称 | 结构类型 | 层数 | ||||||
| 施工单位 | 技术部门负责人 | 质St部门负责人 | ||||||
| 分包单位 | 分包单位负责人 | 分包技术负责人 | ||||||
| 序号 | 分项工程名称 | 检验 批数 | 施工单位检查 评定结果 | 验收意见 | ||||
| 1 | ||||||||
| 2 | ||||||||
| 3 | ||||||||
| 4 | ||||||||
| 5 | ||||||||
| 6 | ||||||||
| 质址控制资料 | ||||||||
| 安全或功能检测报告 | ||||||||
| 观感质量验收 | ||||||||
| 验 收 单 位 | 分包单位 | 项目经理 年 月日 | ||||||
| 施工单位 | 项目经理 年 月日 | |||||||
| 勘察单位 | 项目负责人 年 月 日 | |||||||
| 设计单位 | 项目负责人 年 月 日 | |||||||
| 监理 (建设) 单位 | 总■监理工程师 (建设单位项目专业负责人) 年 月日 | |||||||
132
附录C高压水射流技术应用规定
C.1适用范围
CI.1本技术适用于工程结构加固工程中对已有混凝土、钢构 件和砌体的界面处理及残损劣化部位的剔除。
C 1.2高压水射流处理的具体内容包括:
I混凝土结构加固前的表面清洗或打毛,剔除饰面层、保 护层以及劣化区混凝土;也可用于混凝土表面开槽或钢筋除锈。
2钢结构加固前的钢板、型钢的除漆、除锈,去除焊疤、 毛刺、飞溅物等…
3砌体结构加固前剔除饰面层、勾缝砂浆以及已风化的块 材和砂浆层。 "
C.2操作要求
C 2.1当用于混凝土结构构件界面处理时,应根据基材状况, 包括:混凝土强度、混凝土劣化状况、钢筋排列情况及钢筋直径 大小和预定的界面处理要求,选择合适的使用压力J流量和相应 附件,具体可参照表C. 2.1建议值进行设计。
表C.2.1混凝土界面处理参数的建议值
| 混凝土强度 | 使用压力 (MPa) | 流敢 (L∕min) | 喷嘴类型 | 处理深度 (mm) | 
| ≤C25 | 50 | 15~3O | 单向旋转 | 表层打毛1〜3 | 
| C30 〜C35 | 120 | 40 | 4向旋转 | 表层打毛3~5 | 
| C3Q 〜C35 | 120 | 40 | 单向旋转 | 去除保护层 | 
133
标准分享网WWW. bzfxw. com免费下载
续表C. 2.1
| 混凝土强度 | 使用压力‘ (MPa) | 流母 (L∕min) | 喷啸类型 | 处理深度 (mm) | 
| C30 〜C35 | 120 | 40 | 双向旋转 | 去除保护层 | 
| C40 〜C45 | 200 | 23.5 | 4向旋转 | 表层打毛3~5 | 
| C40 〜C45 | 200 | 23.5 | 单向旋转 | 去除保护层 | 
| >C50 | 280 | 18 | 双向旋转 | 表层打毛3〜S | 
| >C50 | 280 | 18 | 单向旋转J | 去除保护层,除锈 | 
| >C50 | 280 | 】8 | 双向旋转 | 去除保护层.除锈 | 
C2.2当用于钢结构构件的表面除漆、除锈时,宜参照下列建 议值进行设计:
1采用压力50MPa、流量30L∕min的高压水设备和喷沙系 统,此喷沙系统需采用O. 7mm〜:L 2mm的石英砂作为研磨剂。
2采用压力280MPa、流量18L∕min的高压水设备和4向 旋转喷嘴,进行钢筋除锈。
C2.3当用于砌体表面处理时,宜采用压力为35MPa〜 50MPa、流量为(15〜21) L/min的高压水进行清洗和打毛。
C2∙4若需为高压水射流设备提供大功率、大压力和相应的流 量时,建议采用柴油驱动。
C 2.5射流设备用水必须使用自来水或水质符合现行行业标准 《混凝土用水标准》JGJ 63规定的洁净天然水。
C2.6人员
高压水射流设备必须由经过严格培训的人员操作,同时必须 严格遵守操作程序。
C2.7操作过程中,操作人员必须佩戴专用头盔、耐压围裙、 安全保护背心、手部保护套、耐压保护鞋或安全保护靴。这些安 全装备应由高压水射流机械生产厂家负责提供。
134
C∙3处理效果检测与评定
C 3.1应按本规范第3. 0.5条以及第5.2节、6. 3节、7. 2节、 9.3 节,12. 2 节、13.2 节、14. 2 节、15.2 节,16. 2 节、93 节的要求以及相关的国家现行标准进行检查与评定。
/VVV
135
标准分享网WWW. bzfxw. com免费下载
附录D加固材料或产品进场复验抽样规定
D∙O.1结构加固工程用的材料或产品,应按其工程用量一次进 场到位,若加固用材料或产品的量很大,确需分次进场时,必须 经设计和监理单位特许,且必须逐次进行抽样复验。
D.0.2对一次进场到位的材料或产品,应按下列规定进行见证 抽样:
1当本规范条文中对检查数量有具体规定时,应按本规范 的规定执行,不得以任何产品标准的规定替代。
2当本规范条文中未对检查数量作出规定,而国家现行有 关标准已有具体规定时,可按该标准执行,但若是计数检验,应 选用符合现行国家标准《孤立批计数抽样检验程序及抽样表》 GB/T 15239规定的方案。
3若所引用的标准仅对材料或产品出厂的检验数量作出规 定,而未对进场复验的抽样数量作出规定时,应按下列情况确定 复验抽样方案:
D当一次进场到位的材料或产品数量大于该材料或产品 出厂检验划分的批量时,应将进场的材料或产品数量 按出厂检验批量划分为若干检验批,然后按出厂检验 抽样方案或本规范有关的抽样规定执行;
2)当一次进场到位的材料或产品数量不大于该材料或产 品出厂检验划分的批量时,应将进场的材料或产品视 为一个检验批量,然后按出厂检验抽样方案或本规范 有关的抽样规定执行;
3)对分次进场的材料或产品,除应逐次按上述规定进行 抽样复验外,尚应由监理单位以事前不告知的方式进 行复查或复验,且至少应进行一次;其抽样部位及数
136
量应由监理总工程师决定;
4)对强制性条文要求复验的项目,其每一检验批取得的 试样,应分成两等份。其中一份供进场复验使用;另 一份应封存保管至工程验收通过后(或保管至该产品 失效期),以备有关各方对工程质量有异议时供仲裁检 验使用。
4在施工过程中,若发现某种材料或产品性能异常,或有 被调包的迹象,监理单位应立即下通知停止使用,并及时进行见 证抽样专项检验。专项检验每一项目的试件数量不应少于15个。
/VW、
137
标准分享网WWW. bzfxw. com免费下载
附录E粘结材料粘合加固材与基材的 正拉粘结强度试验室测定方法及评定标准
E.1适用范围
E.I.]本方法适用于试验室条件下以结构胶粘剂、界面胶 (剂)或聚合物砂浆为粘结材料粘合(包括涂布、喷抹、浇注等) 下列加固材料与基材,在均匀拉应力作用下发生内聚、粘附或混 合破坏的正拉粘结强度测定:
1纤维复合材与基材混凝土;
2钢板与基材混凝土;
3结构用聚合物砂浆层(或复合砂浆层)与基材混凝土;
4结构界面胶(剂)与基材混凝土。
E.L2本方法不适用于测定室温条件下涂刷、粘合与固化的, 质量大于300g∕m2碳纤维织物与基材混凝土的正拉粘结强度。
E.2试验设备
E.2.1拉力试验机的力值量程选择,应使试样的破坏荷载,发 生在该机标定的满负荷的20%〜80%之间;力值的示值误差不 得大于1%。
E2.2试验机夹持器的构造应能使试件垂直对中固定,不产生 偏心和扭转的作用。
E.2.3试件夹具应由带拉杆的钢夹套与带螺杆的钢标准块构 成,且应以45号碳钢制作:其形状及主要尺寸如图E.2.3 所示。
138
A
 
 
(b)带螺杆钢标准块
图E.2.3试件夹具及钢标准块尺寸
1 -钢夹具:2-螺杆;3一标准块 注:图中尺寸为mm
E∙3试件
E∙3.l试验室条件下测定正拉粘结强度应采用组合式试件,其
构造应符合下列规定:
1以胶粘剂为粘结材料 的试件应由混凝土试块(图 E. 3. M).胶粘剂、加固材料 (如纤维复合材或钢板等)及 钢标准块相互粘合而成(图 E∙ 3. l-2a)°
2以结构用聚合物砂浆 为粘结材料的试件应由混凝土 试块(图E.3.1-1)、结构界 面胶(剂)涂布层、现浇的聚
 
图E.3.:LT 混凝土试块形式及尺寸
I-混凝土试块,2一预切缝 注I图中尺寸为mm
合物砂浆层及钢标准块相互粘合而成(图E∙ 3.b2b);
3若检验结构界面胶(剂),应将聚合物砂浆层换为细石混 凝土层。
139
标准分享网WWW. bzfxw. com免费下载
 
图E. 3.1-2正拉粘结强度试验的试件
1 一加固材料;2一钢标准块;3一受检胶的胶缝;4-粘贴标准块 的快固胶;5一预切缝i 6一混凝土试块;7TlO摞孔5 8一现浇 聚合物砂浆层(或复合砂浆层):9-结构界面股(剂). 10一虚 线部分表示浇注砂浆用可拆卸模具的安装位置
注:图中尺寸为mm
E. 3.2试样组成部分的制备应符合下列规定:
1受检粘结材料应按产品使用说明书规定的工艺要求进行 配制和使用。
2混凝土试块的尺寸应为70mmX70mmX40mm;其混凝 土强度等级,对A级和B级胶粘剂均应为C40〜C45;对A级和 B级界面胶(剂),应分别为C40和C25。对I级和II级聚合物 砂浆,其试块强度等级与界面胶(剂)的要求相同。试块浇注后 应经28d标准养护i试块使用前,应以专用的机械切出深度为 4mm~5mm的预切缝,缝宽约2mm,如图E. 3.1-1所示。预切 缝围成的方形平面,其净尺寸应为40mmX40mm,并应位于试 块的中心。混凝土试块的粘贴面(方形平面)应作打毛处理。打
140
毛深度应达骨料新面,且手感粗糙,无尖锐突起。试块打毛后应 清理洁净,不得有松动的骨料和粉尘。
3受检加固材料的取样应符合下列要求:
1)纤维复合材应按规定的抽样规则取样:从纤维复合材 中间部位裁剪出尺寸为40mmX 40mm的试件;试件 外观应无划痕和折痕;粘合面应洁净,无油脂、粉尘 等影响胶粘的污染物(S
2)钢板应从施工现场取样,并切割成40mmX40mm的 试件,其板面及周边应加工平整,且应经除氧化膜、 锈皮、油污和糙化处理;粘合前,尚应用工业丙酮擦 洗干净。
3)聚合物砂浆和复合砂浆,应从一次性进场的批量中随 机抽取其各组分,然后在试验室进行配制和浇注S
4钢标准块
钢标准块(图E 2. 3b)宜用45号碳钢制作¥其中心应车有 安装旬0螺杆用的擦孔。标准块与加固材料粘合的表面应经喷砂 或其他机械方法的糙化处理;糙化程度应以喷砂效果为准(本规 范第9. 3. 2条及注)。标准块可重复使用,但重复使用前应完全 清除粘合面上的粘结材料层和污迹,并重新进行表面处理。 E.3.3试件的粘合、浇注与养护
首先在混凝土试块的中心位置,按规定的粘合工艺粘贴加固 材料(如纤维复合材或薄钢板),若为多层粘贴,应在胶层指干 时立即粘贴下一层。当检验聚合物砂浆或复合砂浆时,应在试块 上先安装模具,再浇注砂浆层,若产品使用说明书规定需涂刷结 构界面胶(剂)时,还应在混凝土试块上先刷上界面胶(剂), 再浇注砂浆层。试件粘贴或浇注时,应采取措施防止胶液或砂浆 流入预切缝。粘贴或浇注完毕后,应按产品使用说明书规定的工 艺要求进行加压、养护f分别经7d固化(胶粘剂)或28d硬化 (砂浆)后,用快固化的高强胶粘剂将钢标准块粘贴在试件表面。 每一道作业均应检查各层之间的对中情况。
141
标准分享网WWW. bzfxw. com免费下载
注:对结构胶粘剂的加压、养护,若工期紧,且征得有关各方同意, 允许采用以下快速固化、养护制度I
1在40(条件下烘24h;烘烤过程中仅允许有2℃的正偏差;
2自然冷却至23七后,再静置16h,即可贴上标准块。
E.X4试件应安装在钢夹具(图曰3. 4)内并拧上传力螺杆。 安装完成后各组成部分的对中标志线应在同一轴线上。
 
(a) (b)
图E 3. 4试件组装
1一受检胶粘剂• 2-被粘合的纤维复合材或钢板:3-混凝土试块;4一
聚合物砂浆层;5-钢标准块;6一混凝土欲块预切縫;7一快固化高强 胶粘剂的胶缝;8 •传力螺杆;9一钢夹具
E.3.5常规试验的试样数量每组不应少于5个;仲裁试验的试 样数量应加倍。
E.4试验环境
E.4.1试验环境应保持在:温度(23士2)七、相对湿度(50士 5)%〜(65士 10)%。
注:仲裁性试验的试验室相对湿度应控制在45%〜55%.
142
κ4.2若试样系在异地制备后送检,应在试验标准环境条件下 放置24h后才进行试验,且应作异地制备的记载于检验报吿上。
E.5试验步骤
E∙5.l将安装在夹具内的试件(图E 3. 4)置于试验机上下夹 持器之间,并调整至对中状态后夹紧。
E.5.2以3mm/min的均匀速率加荷直至破坏,记录试样破坏 时的荷载值,并观测其破坏形式。
E.6试验结果
E. 6.1正拉粘结强度应按下式计算:
fii=Pi∕Aβi (E∙6.1)
式中 A—-试样,的正拉粘结强度,MPa;
B--试样J破坏时的荷载值,Nj
Aa.-—-金属标准块,的粘合面面积,mm∖
E 6.2试样破坏形式及其正常性判别:
1试样破坏形式应按下列规定划分:
D内聚破坏:应分为基材海凝土内聚破坏和受检粘结材 料的内聚破坏;后者可见于使用低性能、低质量的胶 j * 粘剂(或聚合物砂浆和复合砂浆)的场合:
2)粘附破坏(层间破坏):应分为胶层或砂浆层与基材之 间的界面破坏及胶层与纤维复合材或钢板之间的界面 破坏;
3)混合破坏:粘合面出现两种或两种以上的破坏形式。
2破坏形式正常性判别,应符合下列规定:
1)当破坏形式为基材混凝土内聚破坏,或虽出现两种或 两种以上的混合破坏形式,但基材混凝土内聚破坏形 式的破坏面积占粘合面面积85%以上,均可判为正常 破坏:
2)当破坏形式为粘附破坏、粘结材料内聚破坏或基材混
143
标准分享网WWW. bzfxw. com免费下载
凝土内聚破坏面积少于85%的混合破坏,均应判为不 正常破坏。
注:钢标准块与检验用高强、快固化胶粘剂之间的界面破坏,属检验 技术问题,应重新粘贴;不参与破坏形式正常性评定。
E.7试验结果的合格评定
E.7.1组试验结果的合格评定,应符合下列规定:
1当一组内每一试件的破坏形式均属正常时,应舍去组内 最大值和最小值,而以中间三个值的平均值作为该组试验结果的 正拉粘结强度推定值;若该推定值不低于现行国家标准《混凝土 结构加固设计规范》GB 50367规定的相应指标(对界面胶、界 面剂暂按底胶的指标执行),则可评该组试件正拉粘结强度检验 结果合格;
2当一组内仅有一个试件的破坏形式不正常,允许以加倍 试件重做一组试验。若试验结果全数达到上述要求,则仍可评该 组为试验合格组。
E. 7.2检验批试验结果的合格评定应符合下列要求:
1若一检验批的每一组均为试验合格组,则应评该批粘结 材料的正拉粘结性能符合安全使用的要求J
2若一检验批中有一组或一组以上为不合格组,则应评该 批粘结材料的正拉粘结性能不符合安全使用要求:
3若检验批由不少于20组试件组成,且仅有一组被评为试 验不合格组,则仍可评该批粘结材料的正拉粘结性能符合使用 要求。
E.7.3试验报告应包括下列内容:
1受检胶粘剂、聚合物砂浆或界面剂的品种、型号和批号:
2抽样规则及抽样数量;
3试件制备方法及养护条件;
4试件的编号和尺寸;
5试验环境的温度和相对湿度;
144
6仪器设备的型号、量程和检定日期;
7加荷方式及加荷速度;
8 •试件的破坏荷载及破坏形式;
9试验结果整理和计算;
10取样、测试、校核人员及测试日期。
NWV
145
标准分享网WWW. bzfxw. com免费下载
附录F结构胶粘剂抗冲击剥离 能力测定方法及评定标准
F.1适用范围
F.1.1本标准适用于常温固化结构胶粘剂韧性重要标志--抗 冲击剥离能力的测定。
F.L2地震区建筑加固,对所使用结构胶粘剂的韧性要求与检 验,可按本标准进行测试与合格评定。
F.2原 理
F.2.1以一对软钢薄片胶接成T形冲击剥离试样,在规定的条 件下,对试样未胶接端施加冲击力,使试样沿其胶接线产生剥 离。韧性不同的结构胶粘剂,其剥离长度有显著差别,从中可判 别出其韧性的优劣。
F. 2. 2通过测量试样剥离长度以及对不同型号胶粘剂测试数据 的比较分析,可制定出以剥离长度为指标的、简易、实用的结构 皎粘剂韧性合格评定标准。
F.3试验装置
F∙3∙l采用自由落体式冲击剥离试验装置,如图F. 3.1所示。
F.3.2冲击剥离试验装置采用45号钢制作,其表面应作防锈 处理。
F∙3∙3试验装置的零部件加工应符合下列要求:
1作为自由落体的冲击块,应采用45号钢制作,其质量应 为 90θ+5gj
2自由滑落导杆应笔直,其表面加工的光洁度应达到费Z 级;其设计控制的自由落下高度H应为305mm±lmm。
146
 
图F.3.1冲击剥离试验装置示意图
I-T形剥离试样;2—伺0销棒:3一夹持器;4一冲击块R
5T2O导杆F 6一!⅛Q圆钢杆:7一顶板(厚20): 8-螺母:
9-底板(厚16)(单位,mm)
F.3.4试验夹具的加工,应能使试样安装后的导杆轴线通过试 样两孔中心。
F.4试 样
F.4.l T形冲击剥离试样由一对Q235薄钢片胶接而成(图
F.4.1)β
F.4.2试片加工的允许偏差应符合下列规定:
1试片弯折后长度人士Imm;
2试片宽度仇仅允许有。2mm负偏差:
3试片厚度J +0.1mm,且不得有负偏差。
147
标准分享网WWW. bzfxw. com免费下载
 
图F. 4. 1 T形冲击剥离试样尺寸(mm) I-试片厚度2=1.0,2一胶缝;3一力2孔
F∙4.3试片胶接前应按结构胶粘剂对碳钢表面处理的要求,进 行机械喷砂糙化处理:糙化的均匀度和深度以接近喷砂效果为准 (本规范第9. 3. 2条)。
F.4.4试样制备应按结构胶粘剂产品说明书规定的胶接工艺及 设计要求的胶层厚度进行。胶接后的试样应在加压状态下,固化 养护7d;若有关各方同意,允许采用快速固化养护法,即:胶 粘、加压后立即置入烘箱,在40*℃条件下连续烘24h,经自然 冷却并静置16h后进行试验。
F.4.5每组试样不应少于5个。
F.5试验条件
F.5.1试验环境温度应为(23士2)C,相对湿度应为55%〜 70%。仲裁试验必须按标准的湿度条件45%〜55%执行。
F.5.2若试样系在异地制备后送检,应在试验室环境下放置 12h后才进行测试,且应作异地制备的记载于试验报告上。
148
F.6试验步骤
F.6.l试障前,应测量试片的胶缝厚度和胶缝长度,应分别精 确到O. Olmmo试样宽度的尺寸偏差应符合F. 4. 2的要求,否则 该试样不得用于测试。
F.6∙2将试样挂在夹持器上,经检查对中无误后,用手将作为 自由落体的冲击块提至设计高度H;突然松手,让钢块自由落 下,使试样产生剥离。
F. 6.3测量并记录试样的剥离长度,精确到0.1mm。
E 7试验结果表示
F∙ 7∙ 1试验结果以5个试样测得的剥离长度的平均值表示。
F.7.2若5个试样中,有一个试样的剥离长度大于其余4个试 样剥离长度平均值的25%,表明胶粘工艺有问题,应重新制作5 个试样进行测试。原测试结果应全部作废,不得参与新测试结果 的计算.
F.7.3试件破坏后的残件应按原状妥为保存,在未经设计人员 观察并确认前不得销毁。
A^ K 8试验结果评定
F.8∙l T形试样抗冲击剥离的试验结果,应按表F.&1的冲击 剥离韧性标准进行评定。
表F.8.1結构胶粘剂冲击剝离的韧性评定榇准
| 使用对象 | 结构胶粘剂等级 | 平均剥离长度 (mm) | 评定结论 | 
| 混凝土结构 | A级 | ≤20 | 韧性符合A级胶要求 | 
| 加固工程 | B级 | ≤35 • | 韧性符合B级胶要求 | 
| 钢结构 | AAA 级(3A 级) | ≤6 | 韧性符合'3 A级要求 | 
| .加固工程 | AA级(2A级) | ≤12 | 韧性符合2A级要求 | 
149
标准分享网WWW. bzfxw. com免费下载
F.9试验报告
F. 9.1结构胶粘剂抗冲击剥离能力测试及其韧性评定的报告应 包括下列内容:
1受检结构胶粘剂来源、品种、型号和批号;
2取样规则及抽样数量;
3试样制备方法及固化养护条件;
4试样编号、尺寸、外观质量、数量;
5试验环境温度和相对湿度;
6冲击装置的自由落体冲击块质量、自由落下高度;
7试样剥离长度(应为经设计人员观察后确认的剥离 长度);
8试验结果的整理、计算和评定;
9取样、测试、校核人员及测试日期。
150
附录G结构胶粘剂不挥发物含量测定方法
G.1适用范围
G. 1.1本方法适用于室温固化的改性环氧类和改性乙烯基酯类 结构胶粘剤不挥发物含量的测定,
G.1.2本方法的测定结果,可用以判断被检测的胶粘剂产品中 是否掺有影响结构胶粘剂性能和质量的挥发性成分.
G2仪器设备
&2.1测定胶粘剂不挥发物含量用的仪器设备应符合下列 要求:
1电热鼓风干燥箱(烘箱),其温度波动不应大于士2C;
2温度计应备有两种,其测温范围分别为OH〜150七和
Ot 〜250C;
3称量容器应采用铝制称量盒或耐温称量瓶,其直径宜为 50mm;高度宜为30mm;
4称量天平应为分析天平;其感量应为Img;最大称量应 为 200g;
5干燥器应为有密封盖的玻璃干燥器,数量应不少于4个, 且均应盛有蓝变色硅胶:
6胶皿,其制皿材料与酸∣⅛剂原材料之间应不发生化学反应。
G.3测1试前准备工作
G&1仪器设备校正
分析天平、烘箱温控系统均应按国家计量部门的检定规程定 期检定,不得使用已超过检定有效期的仪器设备。
G3.2烘干硅胶
151
标准分享网WWW. bzfxw. com免费下载
将两个干燥器所需的硅胶量,置于200(C烘箱中烘烤约8h, 至完全蓝变色后取出,分成两份放入干燥器待用。
G.3∙3烘干称量盒(瓶).
在约1051的烘箱中,置入所需数量的空称量盒(瓶),揭 开盖子烘至恒重,记录其质量,精确至0.001g,然后放进于燥 器待用。
注:恒重以最后两次称母之差不超过0.002g为准进行测定。
G.4取样与状态调节
G. 4.1取样
应在包装完好、未启封的结构胶粘剂检睑批中,随机抽取一 件。经检查中文标志无误后,拆开包装,从每一组分容器中各称 取样品约50g,分别盛于取胶皿,签封后送检测机构。
G 4.2样品状态调节
将所取的各组分样品连同取胶皿放进干燥器内,在试验室正 常温湿度条件下静置一夜,调节其状态。
G.5測试步骤
G.5.1制作试样要求.
1应根据该胶粘剂产品使用说明书规定的配合比,按配制 30g胶粘剂分别计算并称取每一组分的用量。经核对无误后,倒 入调胶器皿中混合均匀。
2应用两个称量盒(瓶)从混合均匀的胶液中,各称取一 份试样,每份约1g,分别记其净质量为阵]和砧2,称量应准确 至 0. OOlge
3应将两份试样同时置于40弔七的环境中固化24h。
4应将已固化的两份试样移入已调节好温度的烘箱中,在 105P±2C条件下,烘烤 18Omin±5min°
5取出两份试样,放入干燥器中冷却至室温。
6分别称量两份试样,记其净质量为物]和执12,称量应精
252
确至 0. OOlg。
注:净质量指已扣除称量盒(瓶)质量的胶粘剂质量。
G.6结果表示
G 6.1 一次平行试验取得的两个结果,可按式(G.6.1-1)和 式(G 6.1-2) •分别算得试样1和试样2的不挥发物含量测值:
的=^l X 100(⅜) (G. 6.1-1)
收1
S =≡X1OO(⅝) (G 6.1-2)
制02
式中:x1和n2—分别为试样1和试样2的不挥发物含量 测值,%:
加3和%2--分别为试样1和试样2加热前的净质量,g; m"和年2—分别为试样1和试样2加热后的净质量,go 计算结果应保留3位有效数字。
G.6.2在完成第一次平行试验后,尚应按同样的步骤完成第二 次平行试验,并得到相应的不挥发物含量测值々和"4。
测试结果以两次平行试验的平均值表示。
G7试验报告
G.7.1试验报告应包括下列内容:
1受检结构胶粘剂的品种、型号和批号;
2取样规则和取样数量;
3试样制备方法;
4试样编号;
, S测试环境温度和相对湿度;
6分析天平型号、精确度和检定日期;
7测试结果及计算确定的该胶粘剂不挥发物含量,%;
8取样、测试、校核人员及测试日期。
153
标准分享网WWW. bzfxw. com免费下载
附录H结构胶粘剂湿热老化性能测定方法
H.1适用范围及应用条件
H∙ 1.1本方法适用于结构胶粘剂耐老化性能的验证性试验。
H.L2采用本方法进行老化试验的结构胶粘剂或聚合物砂浆应 符合下列条件:
1该产品已通过其他项目安全性能检验;
2被检验的样本应来源于成批产品的随机抽样。
HL 2试验设备及试驢用水
H.2.1试件的老化应在可程式恒温恒湿试验机中进行。该机老 化箱内的温度和相对湿度应能自动控制、连接记录,并保持稳 定;箱内的空气流速应能保持在(0.5〜LO) m/s;箱壁和箱顶 的冷凝水应能自动除去,不得滴在试件上。
H.2.2试验机用水应采用蒸帽水或去离子水;未经纯化的冷凝 水不得再重复利用。仲裁性试验机用水,还应要求其电阻率不得 小于500Q∙m。湿球系统也应采用相同水质的水。每次试验前 应更换湿球纱布及剩水,且纱布使用期不得超过30d。
H.2.3试验机电源应为双电源,并应能在工作电源断电时自动 切换:任何原因引起的短时间断电,均应记录在案备查。
H.3试 件
H.3.1老化性能的测定应采用钢对钢拉伸剪切试件,并应按现 行国家标准《胶粘剂拉伸剪切强度的测定(刚性材料对刚性材 料)》GB/T 7124的规定和要求制备,粘结用的金属试片应为粘 合面经过喷砂或机械打磨处理的45号钢。
对聚合物砂浆及复合砂浆的老化性能测定允许采用符合本规
154
范附录R规定的钢套筒式试件。
H3.2试件的数量不应少于15个,且应随机均分为3组:其 中一组为对照组,另两组为老化试验组。
H.3.3试件胶缝静置固化7d后,应对金属外露表面涂以防锈 油漆进行密封,但应防止油漆沾染胶缝。
乩拿试验条件
H. 4.1湿热条件应符合下列规定:
1温度应保持50(Ct:0
2相对湿度 应保持95%〜Io0%;
3恒温、恒湿时间 自箱内温、湿度达到规定值算起,应 为 60d 或 90do
H.4.2升温、恒温及降温过程的控制
1升温制度.
应在L5h〜2h内,使老化箱内温度自25CTC连续、均匀 地升至50t^。C:相对湿度也应升至95%以上;此过程中试样 表面应有凝结水出现。
2恒温、恒湿制度
老化箱内有效工作区的温、湿度应均匀,且无明显波动;应 按传感器的示值进行实时监控。
3降温制度
应在连续恒温达到90d时立即开始降温,且应在L 5h〜2h 内从50t连续、均匀地降至25。C±2C:但相对湿度仍应保持在 95%以上。
H.5试髓步骤
H. 5.1老化性能测定的步骤应符合下列规定:
1试件完全固化时应立即按现行国家标准《皎粘剂拉伸 剪切强度的测定(刚性材料对刚性材料)》GB/T7124或本规范 附录R的规定,先测定对照组试件的初始抗剪强度。
155
标准分享网WWW. bzfxw. com免费下载
2将老化试验组的试件放入老化箱内,试件相互之间、试 件与箱壁之间不得接触。对仲裁性试验,试样与箱壁、箱底和箱 顶的距离均不应少于150mm。
3老化试验的温度和湿度控制应按本附录第H. 4节的规定 和要求进行。
4在试验过程中,若需取出或放入试样,开启箱门的时间 应短暂,防止试样表面出现凝结水珠。
5在恒温、恒湿达到28d时,应取出一组试件进行抗剪试 验。若试件抗剪强度降低百分率大于15%,该老化试验便应中 止,并直接判为不合格;不得继续进行试验;以避免造成误判。 若抗剪强度降低百分率小于15%,尚应继续进行至规定时间。
6试验达到90d (对B级胶为60d),并降温至35C时,即 可将试样取出置于密闭器皿中,待与室温平衡后,逐个进行抗剪 破坏试验,且每组试验均应在30min内完成。
H∙6试验结果
H.6.1老化试验完成后,应按下式计算抗剪强度降低百分率, 取两位有效数字
空i =厩_& X 100% (H. 6.1)
式中:依"--第2组老化试验后抗剪强度降低百分率,%;
R。/--对照组试样初始抗剪强度算术平均值;
R—经老化试验后第2•组试样抗剪强度算术平均值。
H.7试验报告
H.7.1湿热老化试验报告应包括下列各项内容:
1受检材料来源、品种、型号和批号;
2取样规则及取样数量;
3试样制备及试样编号;
4试验条件和试样状态调节过程:
156
5仪器设备型号及检定日期:
6试验开始和结束日期、实验室的温度及相对湿度;
7试验过程老化箱内温湿度控制情况(若遇短时间停电, 应作记录)?
8试件的破坏荷载及破坏形式:
9试验结果的整理和计算:
10取样、测试、校核人员及测试日期。
/VWW
157
标准分享网WWW. bzfxw. com免费下载
附录J结构用粘结材料湿热老化性能 现场快速复验方法及评定标准
J.1适用范围
J. 1.1本方法适用于已通过湿热老化性能验证性试验的结构胶 粘剂和结构加固用聚合物砂浆的进场复验。
注:湿热老化性能验证性试验应按本规范附录H规定的试验方法进 行,并应由独立检验机构出具验证报告。
J.1.2当出具本复验报告时,必须附有湿热老化性能验证性试 验报告,否则本复验报告无效。
J.2试验设备及装置
J. 2.1恒温水槽
试件的老化应在可调控水温的恒温水槽中进行,恒温水槽的 水温应能在40℃〜Io(TC之间可调,且能在任一温度点上保持稳 定。其水温误差不应大于0.5七。
注:试验用水应采用蒸儀水或去离子水,且试验用过的水不得重复 使用。
J.2.2试验机
根据受检粘结材料的不同,选用拉力试验机或压力试验机。 试验机的加荷能力,应使试件的破坏荷载处于试验机标定满负荷 的20%〜80%之间。试验机的示值误差不应大于1%。
J.2.3加荷装置(包括夹持器)
根据不同受检粘结材料所执行的剪切试验方法国家标准 确定。
J.3试 件
J. 3.1结构胶粘剂或结构用聚合物砂浆的老化性能的快速复验,
158
应采用测定其抗剪强度的试件;其形式、尺寸和表面处理方法应 按所执行的剪切试验方法标准确定。
注:若按现行国家标准《胶粘剂 拉伸剪切强度的測定(刚性材料对 刚性材料)》GB/T 7124制作试件不成功•.则本试验无需进行,即可直接判 定该胶粘剂为不合格产品.
工3.2试件的数量不应少于10个,且应随机分为2组;其中一 组为老化试验组:另一组为对照组。
J.3∙3试件的粘合、养护条件和方法以及固化或硬化时间的要 求,应符合其产品说明书的要求。试件在231条件下固化养护 时间以7d为准,但若工期紧,且已征得有关各方同意,对胶粘 剂则允许在40C+jC条件下固化养护24h,经自然降温至 23C±2°C后,再静置16h,即可开始复验。
J.4复验条件
J. 4.1现场老化性能的复验条件应符合下列规定:
1水温:对一般结构胶粘剂及聚合物砂浆,应保持80℃: 对低黏度压力灌注胶粘剂,应保持55C,允许偏差均为+:。Cb
2恒温时间:对一般结构胶粘剂及聚合物砂浆为168%对 低黏度压力灌注结构胶粘剂为24Ok -
J∙4∙2升温、恒温及降温过程的控制
1升温制度
应在Ih〜L 5h之间,使恒温水槽内的水温自25℃均匀地升 至规定温度(80七或55(),并开始计时。
2恒温制度
恒温水槽内有效工作区的水温应均匀,且不应有明显波动。 水温应按传感器示值进行实时控制。
3降温制度
在连续恒温达到规定的时间(168h或24Oh)时,应立即开始降 温,且应在Ih〜1.5h之间从801连续、均匀地降至23℃士2℃。
159
标准分享网WWW. bzfxw. com免费下载
J.5复验步骤
J. 5.1老化性能快速测定的步骤应符合下列规定:
1应先测定对照组试件的初始抗剪强度;
2将老化试验组试件置人恒温水槽;试件与水面、槽壁和 槽底的距离不应小于50mm;
3启动温控装置,按本附录第J.4. 2节的升温制度进行升 温。在达到试验要求的温度时,进入保持恒温的阶段,并进行实 时监控i •
4若试验过程中突然遭遇短时间停电或停机,应记录在案 备查;
5当恒温达到规定时间并降温至23七时,取出试件拭干后 立即进行剪切破坏试验,加荷速度取(3〜5) mm/min。同一组 试件的试验应在30min内全部完成。
J∙6复验结果计算与评定
J.&1老化复验结束后,应按下式计算抗剪强度降低百分率, 取两位有效数字:
%,= R。'展 RM X 100% (J. 6∙ 1)
式中:Pw--第W组老化复验后抗剪强度降低百分率,%;
凡,i-第,组对照试件初始抗勇强度算术平均值;
Kw"--第Z组试件经老化复验后抗剪强度算术平均值。
J. 6.2当现场快速老化复验后的抗剪强度下降百分率满足下列 规定时,可判为复验合格:
对A级结构胶及I级聚合物砂浆:自"《8%;
对B级结构胶及II级聚合物砂浆:Pw&12%。
J.6.3当对复验结果有异议时,允许用本规范附录H的测定方 法进行检验,但试件数量应加倍。若检验合格,仍可改判为老化 性能符合使用要求。
160
J. 7试验报告
J. 7.1湿热老化复验报告应包括下列各项内容:
1受检材料来源、品种、型号和批号;
2复验试样制备及试样编号;
3试验条件和试样状态调节过程;
4仪器设备型号及检定日期;
5试验开始和结束日期、实验室温度及相对湿度控制状况多
6水煮过程恒愠浴(槽)水温控制情况(若遇短时间停电, 应做记录);
7俄验结果的整理和计算;
8取样、测试、校核人员及测试日期。
ZVW
161
标准分享网WWW. bzfxw. com免费下载
附录K结构胶粘剂初黏度测定方法
K.1基本规定
KLl为统一结构胶粘剂混合后初黏度的测试方法,使所测黏 度的测量误差能控制在5%c以内,并在各试验室之间具有可再现 性,制定本规定。
K.1.2结构胶粘剂应按其流变特性分为两类;
1近似牛顿流体特性的结构胶粘剂,其黏度一般低于8X 104πιPa • s;
2非牛顿流体特性的结构胶粘剂,其黏度一般大于8X IO4mPa ∙ s°
K. 1.3当加固工程测定结构胶粘剂的初黏度时,其所使用的仪 器应符合下列规定:
1当黏度的估计值不大于8X104mPa ∙ s时,可使用游丝 扭矩式旋转黏度计或具有规定剪切速率的同轴双圆筒旋转黏度计 进行测试;
2当黏度的估计值大于8×104mPa-s时,应统一使用具 有规定剪切速率的同轴双圆筒旋转黏度计进行测试。
K.2仪器设备
K.2.1仪器
1对近似牛顿流体的结构胶粘剂,宜使用国产NDJ-I型旋 转黏度计;必要时,也可使用ASTM D1084推荐的B法旋转黏 度计,但应经国家仪器检定机构确认其适用性。
2对非牛顿流体的结构胶粘剂,宜使用国产NXs41型双 圆筒旋转黏度计;必要时,也可使用瑞士产EPPreChtRheOmat 黏度计,但应经国家仪器检定机构确认其适用性。
162
K 2.2配套设备
1恒温浴(槽):应能保持23℃士0.2七,且在20七〜 K)Ot范围内可调。
2温度计:分度为0.1七。
3容器,应按黏度计使用说明书的规定,您用合适的形状 和尺寸。
K3试验条件
K 3.1试验温度
对加固工程用胶,统一定为23βC±O∙2C。若用于个别工程 项目的实时控制,也可按设计规定的试验温度进行测试,但应在 仪器使用说明书允许范围内Q
K.3.2测量系统选择
1对NDJ-I型旋转黏度计,应按该仪器提供的量程表,决 定转子号及转速。
2对NX&11型旋转黏度计,应统一采用D转子系统,取 剪切速率为7.204ST (即转速为65r∕min).
K.4试样制备
K.4.1测试前,应将抽样取得的各组分,置于23第〜25。C恒温 试验室中调节其状态不少于6h.
K.4 2在称量试样前,应将试样各组分(包括其容器)置于恒 温水浴中30min〜60min,然后按配合比分别称量所需的质量。 K.4.3对易吸湿的或含有挥发性物质的试样,应密封于容器中。
K.5试验步骤
(A)估计黏度值小于8klO4mPa-s的胶液
K.5.1试样各组分经搅拌混合成均匀胶液后,倒入直径不小于 70mm的烧杯或直筒形容器内,并置于恒温浴中准确控制胶液温
163
标准分享网WWW. bzfxw. com免费下载
度。若试样含有气泡,应在注入前,完全去掉。
K.5.2将保护架安装在仪器上。安装前应先熟悉旋入方向。
K.5.3按仪器使用说明书给出的量程表(mPa -s),选择转子 号及转速(r/min)。
IC5.4按仪器使用说明书规定的操作方法和步骤,先旋转升降 组,让转子缓缓浸入胶液中,直至转子液面标志和液面齐平。然 后启动电机,转动变速旋钮,使所选转速数对准转速指示点,使 转子在胶液中旋转,待指针趋于稳定立即读数,然后关闭电源, 又重新启动仪器,进行第二、第三次读数。
K.5.5若指针读数不处于30格〜90格之间,应更换转子号及 转速;重新制备试样进行测试:原胶液试样应弃去,不得继续使 用。若更换转子号及转速,仍测不出黏度,应改用同轴双圆筒旋 转黏度计进行测试。
(B)估计黏度值大于8Xl()4mPa・s的胶液
K.5.6按规定的剪切速率选择转筒、转速及固定筒,并按仪器 使用说明书规定的步骤和方法安装好仪器。
K.5.7按仪器测量系统尺寸表规定的试样用量将配制好的胶液 (试样),细心地注入仪器的外筒,胶液必须完全浸没转子的工作高 度,且以有少量胶液溢入转子上部凹槽中为宜;注胶后应静置片刻 消去气泡。必要时,还可用洁净的金属小针挑破气泡,以加速消泡。 K.5.8将仪器与预热已达231的恒温装置连接,使内、外筒系 统浸入恒定温度的水中。
K.5.9接通电源,开动马达,使转筒旋转。待指针稳定后读取 第一次读数,随即关闭电源。若读数介于表盘满刻度的20%〜 90%之间,则认为读数有效。随即又重新启动电源两次,分别读 取第二、三两次读数。
K.5.10测量结束后,应立即用丙酮或其他适用的洗液,彻底 清洗黏度计转子系统及内外筒等零部件,不得因延误此项作业而 损坏仪器。
164
K.6结果计算与表示
《6.1结构胶粘剂混合后的初黏度7 (mPa ∙ s)应按下式 计算:
7 = K ∙ α CK- 6-1)
式中:K——仪器常数,mPa∙s,应按仪器使用说明书给出的 仪器常数表取值;
。一3次读数平均值。若其中一个读数与平均值之间相 差较显著,应采用格拉布斯(GrUbbO检验法进行 判定,不得随意舍弃。
注:读数精确度应符合仪器使用说明书的要求。
K.6.2结果表示:测定的黏度值应取3位有效数,并应在括号 中注明下列参数值;
1对NDJ-I型仪器测定的黏度,应表示为下(23七)值:
- 2对NXS41型仪器测定的黏度,应表示为¥ (23七,
7. 204ST)值;
3对其他仪一器测定的黏度,应表示为电(23eC,选用的剪 切速率)值。
K.6.3试验报告应包括下列内容:、
C 1受检材料品种、型号和批号J
2抽样规则及抽样数量;
3试样制备及调节方法:
4试样编号:
5试验环境温度和相对湿度扌
6仪器设备的型号、量程和检定日期;
7采用的转子系统、转速、剪切速率;
8恒温浴(槽)的水温及其偏差;
9黏度测定值:
10试验人员、校核人员及试验日期。
165
标准分享网WWW. bzfxw. com免费下载
附录L结构胶粘剂触变指数测定方法
Ll适用范围
L.1.1本方法适用于以不同转速下动力黏度比值表征结构胶粘 剂触变性能的触变指数(thixotropic index)测定。
L.1.2对常温下施工的涂刷型结构胶粘剂,其工艺性能所要求 的触变性,可通过测定其触变指数进行评估。
L 2仪器和设备
L2∙l旋转黏度计:当采用牛顿流体黏度计(如国产NDJ-I型 黏度计)时,其转子速度应有6r/min和60r/min两种;当釆用 非牛顿流体黏度计(如国产NXS-IlA型黏度计)时,若其转子 速度设置不同,允许用5. 6r∕min和65r∕min替代。
注:对掺有填料的胶粘剂,应采用NXSdlA型黏度计.
L∙2∙2恒温浴(槽):应能在20t〜IooeC范围内可调,且恒定 水温的误差不大于0∙2t。
L.2.3温度计:分度为0.1C。
L.2.4容器:按所使用旋转式黏度计的说明书确定容器形状和 尺寸。
L∙3试 样
L.3.1结构胶粘剂各组分应从检验批中随机抽取,并在试验室 置放不少于24人测试前,按产品使用说明书规定的配合比,在 231士0.5七的室温下进行拌合均匀后,作为测定胶液黏度的 试样。
L.3.2试样应均匀、色泽一致,无结块。
L. 3.3试样量应能满足旋转式黏度计测试需要。
166
L4试验步骤
L4.1将盛有试样的容器放入已升温至试验温度的恒温浴 (槽)中,使试样温度与试验温度23°C±0∙5C平衡,并保持试 样温度均匀。
L.4.2将6r/min (或5.6r/min)的转子垂直浸入试样中的部 位,并使液面达到转子液位标线。
L.4.3按黏度计说明书规定的操作方法开动黏度计,读取旋转 的指针稳定后的第一次读数。关闭马达后再重新后动两次,分别 读取指针第二次和第三次稳定后的读数。
L»4. 4 将 6r∕min (或 5. 6r∕min)的转子更换为 60r∕min (或 65r/min)的转子,重复上述步骤+测量其指针穩定后的读数, 共三次。
L 5结果计算与表示
L.5.1按旋转黏度计使用说明书规定的方法,分别计算6r/min (或 5. 6r∕min)和 60r∕min (或 65r∕min)的黏度福(或 %$)和 ⅜ (或他)。计算时,指针读数值S取3次读数的平均值,且 取有效数字3位。黏度的单位以mPa , s表示。
L.5.2触变指数L应按下式计算
对中、低黏度胶液:L =为/偽 (L.5.2-1)
对高黏度胶液: L =依6/瓶 (L.5.2-2)
计算结果取有效数字两位,并应注明试验的温度。
L.5.3试验报告应包括下列内容:
1受检材料来源、品种、型号和批号;
2取样规则及抽样数量扌
3试样制备及试样编号;
4试验条件及试样状态调节过程;
5仪器设备型号及检定日期;
6采用的转子号及转速:
167
标准分享网WWW. bzfxw. com免费下载
7恒温浴(槽)的水温及其偏差;
8黏度测定值及触变指数的计算;
9试验人员、校核人员及试验日期。
168
附录M碳纤维织物中碳纤维 K数快速判定方法
M.0.1适用范围
本方法适用于碳纤维织物(布)中碳纤维纤度——K数的 快速检测与判定。
M.0.2应用条件
当采用本方法测定碳纤维K数时,该织物必须是以机织工 艺生产的单向连续纤维稀纬定型的产品。
M.0.3术语
经纱密度WarP density
织物经向单位长度内碳纤维纱线根数:一般以根/IOmm 表示。
注:检测时应注意,本术语所谓的纱线根数,也称束数,但不得误解 为单丝的根数。 ;
M.0.4原理
N本方法系通过检测碳纤维织物的经纱密度来判定其纤度(K 数)。检测应在室温条件下,用往复移动式织物密度镜或直尺, 测量一定宽度编(一般取心)10Omm)内碳纤维经向纱线根数, 并按下式计算其经纱密度(NjX
Ni = ni X 10/右 (M. 0. 4)
式中:%-T在为宽度内纱线的总根数。
M.0.5检测方法
1将受检的碳纤维织物平铺在平整台面上。在不施加张力 的状态下,把往复移动式织物密度镜或直尺按垂直于碳纤维纱线 方向放置在碳纤维织物上,使织物密度镜或直尺的标线的左侧起 点与纱线的同侧边缘相重合。
169
标准分享网WWW. bzfxw. com免费下载
2测量织物密度镜或直尺的起点至最终计数的纱线右侧边 的精确长度。
3样本量确定:每检验批织物取样Im?;每平方米织物测 10个数据。
4计算得到的经纱密度,以平均值表示。
M.0.6判定规则
1按表M. 0.6给出的经纱密度与碳纤维纱线纤度(K数) 对照表,判定所检测碳纤维织物的K数。
2当检测的经纱密度超出表M. 0.6某一最接近的经纱密度 范围,而又不落入另一经纱密度范围时,应加倍抽样复验该碳纤 维织物的经纱密度。若复验结果合格,仍可判该织物的K数符 合其产品说明书给定值:若复验结果不合格,则判定该织物说明 书的给定值与实际不符,应予退货;不得用于工程上。
表M.0.6经纱密度与K数对照表
| 碳纤维织物规格 | 经纱密度N (根/1Omln) | .碳纤维K擊 | 
| 200g∕m2 | 2.50 〜2.70 | 12 | 
| 2.OO~2.10 | 15 | |
| 1. 67-1. 80 | 18 | |
| 1.25-1.35 | 24 | |
| 0.63 〜0.68 | 48 | |
| 300g∕m* | 3.75 〜3.85 | 12 | 
| 3.00 〜3.15 | 15 | |
| 2.50-2.70 | 18 | |
| 1.88 〜2.03 | 24 | |
| 0.95 〜L 02 | 48 | 
170
附录N纤维复合材层间剪切强度测定方法
N.1适用范围
MLl本方法适用于测定以湿法铺层、常温固化成型的单向纤 维织物复合材的层间剪切强度;也可用于测定叠合胶粘、常温固 化的多层预成型板的层间剪切强度。
对多向纤维织物复合材,若其试件长度方向的纤维体积含量 在25%以上时,也可按本方法测定其层间剪切强度。
ML2本方法测定的纤维复合材层间剪切强度可用于纤维材料 与胶粘剂的适配性评定。
N∙2试样成型模具
N.2.1试样成型模具的制备应符合下列规定:
1成型模具由一对尺寸为40OmmX30OmmX25mm光洁的 钢板组成,其中一块作为压板,另一块作为织物铺层的模板。在 模具的上下各有一对长50Omm的10号或12号槽钢:在槽钢端 部钻有D= 18mm的螺孔,并配有4根用于拧紧施压的直径 8=16的螺杆、螺母及套在螺杆上的压力弹簧,作为纤维织物粘 合成试样时的施压工具。
2成型模具的钢板,应经刨平后在儀床上銃平,其加工面• 的表面光洁度应为6. 3。
3成型模具尚应配有2块长30Omm、宽20mm、厚4mm 的钢垫板,用于控制织物铺层经加压后应达到的标准厚度。 N.2.2辅助工具及材料应符合下列规定:
1可测力的活动扳手4把:
2厚0.1mm、平面尺寸为500mmX 400mm的聚酯薄膜若
干张:
171
标准分享网WWW. bzfxw. com免费下载
3专用滚筒一支;
4刮板若干个。
N.3试样制备
N.3.1备料应符合下列规定:
1受检的纤维织物应按抽样规则取得;并应裁成30OmmX 20Omm的大小。其片数:对200g/n√的碳纤维织物,一次成型 应为14片;对300g∕m2的碳纤维织物,一次成型应为10片; 对玻璃纤维或芳纶纤维织物,应经试制确定其所需的片数。受检 的纤维织物,应展平放置,不得折叠;其表面不应有起毛、断 丝、油污、粉尘和皱褶;
2受检的预成型板应按抽样规则取得;并截成长30Omm 的片材3片,但不得使用板端50mm长度内的材料做试样。受检 的板材,应平直,无划痕,纤维排列应均匀,无污染;
3受检的胶粘剂,应按抽样规则取得;并应按一次成型需 用量由专业人员配制;用剩的胶液不得继续使用。配制及使用胶 液的工艺要求应符合产品使用说明书的规定。
N.3.2试样制备应符合下列规定:
1纤维织物复合材
D湿法铺层工序
在室温条件下,安装好钢模板,经清理洁净后,将聚酯薄膜 铺在其板面上,铺时应充分展平,不得有皱褶和破裂口。在薄膜 上用刮板均匀涂布胶液,随即进行铺层(即敷上一层纤维织物); 铺层时,应用刮板和滚筒刮平、压实,使胶液充分浸渍织物,使 纤维顺直、方向一致;然后再涂胶、再铺层,逐层重复上述操 作,直至全部铺完,并在最上层纤维织物面上铺放一张聚酯 薄膜。
2)施压成型工序
在顶层铺放聚酯薄膜后,即可安装钢压板,准备进入施压成 型工序。施压成型全过程也应在室温条件下进行。此时,应先在
172
钢模板长度方向两端置放本附录N.2. 1第3款规定的钢垫板, 以控制层积厚度。在安装好钢压板、槽钢和螺杆,并经检查无误 后,即可拧紧螺杆进行施压,使层积厚度下降,直至钢压板触及 两端钢垫板为止,并应在施压状态下静置24h。
3)养护工序
试样从成型模具中取出后,尚应继续养护144h,养护温度应控 制在(23士2)1。严禁采用人工高温的养护方法。在养护期间不得 扰动或进行任何机械加工,也不得受到日晒、雨淋或受潮。
2预成型板
采用3块条形板胶粘叠合而成的试样。制备时,可利用上述 成型模具进行涂胶、粘贴、加压(不加垫板)和养护,且加压和 养护时间也应符合本条第1款第3项的规定。
N.4试件制作
N.4.1试件应从试样中部切取;最外一个试件距试样边缘不应小 于30mm,加工试件宜用金刚石车刀,且宜在用水润滑后进行锯、 刨或磨光等作业。试件边缘应光滑、平整、相互平行。试件加工人 员应戴防尘眼镜,应着防护衣帽及口罩■严防粉尘粘附皮肤。
N.4.2 一般情况下,应取试件长度2=3Omm±Hnm:宽度)= 6.0mm±0.5mm;对纤维织物制成的试件,其厚度按模压确定, 即∕t=4mm士O. 2mm;对预成型板粘合成的试样,其厚度若大于 4mm,允许在机床上单面细加工到4mm (图N∙4.2)。每组试件 数量不应少于5个;若需确定试验结果的标准差,每组试件数量
纤维方向
■
 
N■电2试件形状及尺寸符号 一试件长度,a一试件高度:6一试件宽度
173
标准分享网WWW. bzfxw. com免费下载
不应少于15个:仲裁试验的试件数量应加倍。
N.5试验条件
N.5.1试件状态调节、试验设备及试验的标准环境应符合现行国 家标准《纤维增强塑料性育鹹验方法总则》GB/T 1446的规定。
 
N.5.2试验装置(图N.5.2) 的加载压头及支座与试件的 抵承面应为圆柱曲面;加载 压头及支座应采用45号钢 制作,其表面应光滑,无凹 陷及疤痕等缺陷。
加载压头的半径R应为 3mm±0.1mm;支座圆柱半径 r 应为(1∙ 5mm 〜2. Omm) ±0.1mm,加荷压头和支座的
长度宜比试件的宽度大4mm。
N.6试验步骤
N.6.1试验前应对试件外观进行检查,其外观质量应符合现行 国家标准《纤维增强塑料性能试验方法总则》GB/T 1446的 要求。
N.6.2试件应置于试验装置的中心位置上。其跨度应调整为 L=20mm,且误差不应大于O. 3mm;加载压头的轴线应位于两 支座之间的中央:且应与支座轴线平行。
N.6.3以(1〜2) mm/m風的加荷速度连续加荷至试件破坏J 记录最大荷载Pb及试件破坏形式。
N.6.4当试验出现下列情形之一时,即可确认试件已破坏,并 可立即停止试验;
1荷载读数已较峰值下降30%;
2加荷压头移动的行程已超过试件的名义厚度(即4mm);
174
/VW
3试件分离成两片.
N. 7试验结果
N.7.1试件层间剪切强度应按下式计算:
"誉 (N∙7∙1)
式中:九一层间剪切强度,MPa;
Pb—试件破坏时的最大载荷,Ni
6--试件宽度.mm;
A..试件厚度,mm。
N. 7.2试件破坏形式及正常性判别,应符合下列规定:
试件的破坏典型形式(图N. 7. 2):
D,层间剪切破坏(图N∙7.2a);
2)弯曲破坏:或呈上边缘纤维压皱.或呈下边缘纤维拉 断(图 N. 7. 2b);
3)非弹性变形破坏(图N.7.2c)。
破坏正常性判别及处理:
1)当发生图N. 7. 2a形式的破坏时,属层间剪切正常破 坏}当发生图N∙ 7. 2b或C的破坏时,属非层间剪切 的不正常破坏。
 
匕)层间剪切破坏
 
弯曲受压破坏 弯曲受拉破坏
(b)学曲破坏
 
(C)非弹性变形破坏
图N.7.2试件的破坏形式
175
标准分享网WWW. bzfxw. com免费下载
2)当一组试件中仅有一根破坏不正常时,可重做试验, 但试件数量应加倍。若重做试验全数破坏正常,仍可认为该组试 验结果可以使用;若仍有试件破坏不正常,则应认为该种纤维与 所配套的胶粘剂在适配性上不良,并应重新对胶粘剂进行改性, 或改用其他型号胶粘剂配套。
N.7∙3试验报告应包括下列内容:
1受检纤维材料及其胶粘剂的来源、品种、型号和批号;
2取样规则及抽样数量;
3试件制备方法及养护条件;
4试件的编号和尺寸;
5试验环境的温度和相对湿度;
6试验设备的型号、量程及检定日期;
7加荷方式及加荷速度;
8试样的破坏荷载及破坏形式;
9试验结果的整理和计算;
10取样、试验、校核人员及试验日期。
276
附录P锚固型结构胶及聚合物砂浆浇注体 劈裂抗拉强度测定方法
El适用范围
p*l.l本方法适用于测定锚固型结构胶及聚合物砂浆(复合砂 浆)浇注体的劈裂抗拉强度。
P.1.2本方法也可用于裂縫注浆料和结构加固用灌浆料浇注体 的劈裂抗拉试验。
P.2斌 件
P. 2.1劈裂抗拉试件的直径为20mm;长度为40mmf允许偏 差为±0.1mm;由受检的胶粘剂或聚合物砂浆浇注而成。试件 的养护方法及要求应符合产品使用说明书的规定,但养护时间, 对胶粘剂和砂浆应分别以7d和28d为准,
P.2.2试件拆模后,应检查其表面的缺陷;凡有裂纹、麻面、 孔洞、缺陷的试件不得使用。
P. 2.3劈裂抗拉试验的试件数量,每组不应少于5个.
P. 3试验设备及装置
P∙3∙l劈裂抗拉试件的制作应在专门的模具中浇注而成。模具 可自行设计,但应便于脱模,且不应伤及试件;模具的内壁应经 抛光,其光洁度应达到丹。其他技术要求应符合现行行业标准 《混凝土试模》JG 3019的规定。
P.3 2劈裂抗拉试件的加载,应采用最大压力标定值不大于 400ON的压力试验机;其力值的示值误差不应大于1%;每年应 检定一次。试件的破坏荷载应处于试验机标定满负荷的20%〜 80%之间。
177
标准分享网WWW. bzfxw. com免费下载
P∙3.3劈拉试验装置,由45号钢制作的加载钢压头、带小压 头钢底座及钢定位架等组成(图P. 3. 3)。
 
 
 
 
(b)钢底座
⑹试殴装置的组装
图P.3.3劈拉试验装置
1一小压头I 2一试件安装位置;3一定位架;4一挡板 注:单位为mm
P. 4试驢步骤
P. 4.1圆柱体劈裂抗拉强度试验步骤应符合下列规定:
1试件从养护室取出后应及时进行试验;先将试件擦拭干 净,与垫层接触的试件表面应清除掉一切浮渣和其他附着物;
178
2标出两条承压线。这两条线应位于同一轴向平面,并彼 此相对,两线的末端应能在试件的端面上相连,以判断划线的正 确性;
3将嵌有试件的试验装置置于 试验机中心,在上下压头与试件承压 线之间各垫一条截面尺寸为2mmX 2mm木垫条,圆柱体试件的水平轴线 应在上下垫条之间保持水平,与水平 轴线相垂直的承压线应位于垫条的中 心,其上下位置应对准(图P.4.1);
4施加荷载应连续均匀地进行, 并控制在Imin〜1. 5min内破坏;
5试件破坏时,应记录其最大荷 载值及破坏形式。
 
图P.4.1试件安装示意图
1一试件:2一木垫条
E 4.2当按本附录第P. 4.1条规定的试验步骤进行试验时,若 试件的破坏形式不是劈裂破坏,应检查试件的上下对中情况是否 符合要求;若对中没有问题,应检查试件的原材料是否固化不 良,或不属于富填料的粘结材料。
P∙5试验结果
P.5∙l圆柱体试件劈裂抗拉强度试脸结果的整理应符合下列 规定:
1圆柱体劈裂抗拉强度应按下式计算:
厶=務=呼 (P∙5d
式中:九--圆柱体劈裂抗拉强度测试值(MPa);
F~~试件破坏荷载(N);
d--劈裂面的试件直径(mm);
2..试件的长度(mm);
圆柱体劈裂抗拉强度计算精确至O. OlMPao
179
标准分享网WWW. bzfxw. com免费下载
2圆柱体劈裂抗拉强度有效值应按下列规定进行确定:
D以5个测值的算术平均值作为该组试件的有效强度值;
2)若一组测值中,有一最大值或最小值,与中间值之差 大于15%时,以中间值作为该组试件的有效强度值;
3)若最大值和最小值与中间值之差均大于15%,则洪组 试验结果无效,应重做。
P.5.2当需要计算劈裂抗拉试验结果的标准差及变异系数时, 应至少有15个有效强度值。
P.5.3试验报告应包括下列内容:
1受检富填料胶粘剂或聚合物砂浆的来源、品种、型号和 批号:
2取样规则及抽样数量;
3试件制备方法及养护条件;
4试件的编号和尺寸;
5试验环境的温度和相对湿度S
6试验设备的型号、量程及检定日期;
7加荷方式及加荷速度J
8试样的破坏荷载及破坏形式;
9试验结果的整理和计算;
10取样、试验、校核人员及试验日期。
180
附录Q结构加固用砂浆体和 灌浆料浆体抗折强度测定方法
Q.1适用范围
Q∙l∙l本方法适用于结构加固用聚合物砂浆体、复合砂浆体和 灌浆料浆体抗折强度的测定。
QJ.2本方法不适用于测定低强度普通水泥砂浆体的抗折 强度。
Q.2试睑装置和设备
Q. 2,1浇注试件用的模具应符合下列要求:
1应为可拆卸的钢制模具;其钢材宜为45号钢:模具内表 面的光洁度应达受乙
2 模具内部净尺寸应为30mm X 30mm X 130mm及4OmmX 40r≡X160π≡两种:其允许偏差应符合下列规定:
1)模内净截面各边尺寸的偏差不得超过0.20mm:模内 净长度的偏差不得超过1mm;
‘2)组装后模内各相邻面的夹角应为90°,其不垂直度不 应超过士0. 5*
3)模具各边组成的上表面,其平面度偏差不得超过短边 长度的L 5%。
3模具的拆卸构造不应在操作时伤及武件。
Q.2.2当浇注试件需经振实成型时,振实台的技术性能和质量 应符合现行行业标准《水泥胶砂试体成型振实台》JG/T 682的 规定。
Q2.3抗折试验使用的压力试验机应为液压式压力试验机,其 测量精度应达±1.。%;试验机应能均匀、连续、速度可控地施
181
标准分享网WWW. bzfxw. com免费下载
加荷载:试件破坏荷载应处于压力机标定满负荷的20%〜80% 之间。
Q.2.4试件的支座和加载压头应为直径IOmm〜15mm、长度 分别为35mm和45mm的45号钢圆柱体。分配荷载的钢板,也 应采用45号钢制成;其尺寸应根据试件的尺寸分别取为IQmmX 35mmX50mπι 和 IOmmX 45mm× βθmm0
Q.2.5抗折试验装置,应为图Q∙ 2. 5所示的三分点加荷装置。
 
图Q 2.5抗折试验装置 注:单位为mm
Q3取样规则
Q.3.1验证性试验用的抗折试样,应在试验室按产品使用说明 书的要求专门配制,并按每盘拌合物取样制作一组试件,每组不 少于5个试件的原则确定应拌合的盘数。拌合时试验室的温度应 在23C士2"C。若需采用搅拌机拌合时,宜采用符合现行行业标 准《行星式水泥胶砂搅拌机》JC/T 681要求的搅拌机。
Q.3.2工程质量检验用的抗折试样,应在现场随机选取3盘拌 合物,每盘取样制作一组试件,每组试件不应少于4个。
Q.3.3拌合物取样后,应在产品说明书规定的适用期(按分钟 计)内浇注成试件;不得使用逾期的拌合物浇注试件。
182
Q.4试件制备
Q.4.1试件形式及尺寸:当测定聚合物砂浆及复合砂浆抗折强 度时,应采用30mmX30mmX120mm的棱柱形试件;当测定灌 浆料抗折强度时,应采用ROmm X 40mm X 160mm的棱柱形 试件。
Q.4.2试件应在符合本附录第Q. 2门条要求的模具中制作、浇 注、捣实和养护;其养护制度和拆摸时间应按产品使用说明书确 定,但为结构加固提供设计、施工依据的试件,其养护时间应以 28d为准。
注:若需评估浆体强度增长的正常性,可增加试件组数,在浇注后Id, 3d、7d等时段拆模进行强度试验。
Q.4.3试件拆摸后,应检查试件表面的缺陷;凡有裂纹、麻 点、孔洞、缺损的试件应弃用。
Q.5试验步骤
Q・5.l试件养护到期后应及时进行试验,若因故需推迟试验不 得超过1丸
Q. 5∙2在试验机中按图Q.2.5安装试件时,应以试件成型时的 侧面作为加荷的承压面,并应从试验机前后两面对试件进行对 中,若发现试件与支座或施力点接触不严或不稳时,应予以 垫平。
Q.5.3试件加荷应均匀、连续,并应控制在1.511^〜2.01^11 内破坏,破坏时除应记录试验机荷载示值外,还应记录破坏点位 置及破坏形式。
当试件的破坏点位于两集中荷载作用线之间时为正常破坏; 若破坏点位于集中荷载作用线与支座之间时为非正常破坏:应检 查其发生原因,并经整改后,重新制作试件进行试验。
183
标准分享网WWW. bzfxw. com免费下载
• Q.6试验结果
Q.6.1正常破坏的试件,其抗折强度值八应按下式计算:
A =p厶/跳2 (Q, 6.1)
式中;P--试件破坏荷载,N;
Zb---试件跨度,mm;
6和无--试件截面的宽度和高度。
抗折强度计算应精确至O. IMPa0
Q. 6.2 一组试件的抗折强度值的确定应符合下列规定:
1当一组试件的破坏均属正常破坏时,以全组测值的算术 平均值表示;
2当一组试件中仅有1个测值为非正常破坏时,应弃去该 测值,而以其余3个测值的算术平均值表示;
3当一组试件中非正常破坏值不止一个时,该组试验无效。 Q.6.3试验报告应包括下列内容:
1受检材料的来源、品种、型号和批号:
2取样规则及抽样数量:
3试件制备方法及养护条件;
4试件的编号和尺寸;
5试验环境的温度和相对湿度;
6仪器设备的型号、量程和检定日期;
7加荷方式及加荷速度;
8试件破坏荷载及破坏形式;
9试验结果的整理和计算;
10取样、试验、校核人员及试验日期。
184
附录R聚合物砂浆及复合砂浆拉伸抗 剪强度测定方法(钢套筒法)
Rl适用范围
R.L1本方法适用于下列粘结材料拉伸抗剪强度的测定:
1结构用聚合物砂浆或聚合物水泥砂浆(钢丝绳对专用钢 套筒);
2结构用水泥复合砂浆或聚合物水泥复合砂浆(带肋钢筋 对专用钢套筒)。
注:在以下条文中,若无需区别哪类砂浆,则统称为砂浆或砂浆层。 RLZ本方法不适用于富填料胶粘剂(如植筋胶等)的拉伸抗 剪强度测定。
注:对富填料胶粘剂(如植筋、锚检用胶粘剂)拉伸抗剪强度应按现行国 家标准《胶粘剂 拉伸剪切强度的测定(刚性材料对刚性材料)》GB/T 7124进行测定。若按该方法制作试片无法粘合成功.则直接判该胶粘剂为 不适合承重结构使用的产品。
R 2试验设备及装置
R2∙l试验机的加荷能力,应使试件的破坏荷载处于试验机标 定满负荷的20%〜80%之间.试验机力值的示值误差不应大 于1%。
’ 试验机应能连续、平稳、速率可控地施荷。
R.2.2夹持器及其夹具
试验配备的夹持器及其夹具,应能自动对中,使力线与试样 的轴线始终保持一致。
R.3试 件
R 3.1试件的设计应符合下列规定:
185
标准分享网WWW. bzfxw. com免费下载
1当用于钢丝绳粘结时,应由受检砂浆、直径为5mm的 钢丝绳与钢套筒相互粘结而成(图R∙3∙D。试件剪切面长度为 36mm÷0. 2mm,即钢丝绳埋深为7. 2Z G4 .为绳径)。
2当用于钢筋粘结时,应由受检砂浆、直径为8mm的带 肋钢筋与钢套筒相互粘结而成(图R∙3.1)。试件剪切面长度亦 为36mm,即钢筋埋深为4. 5" (d为钢筋直径)。
注:若缺乏①8mm带肋钢筋.可采用光圆钢筋以牙板套成螺杆替代。 套螺纹的牙板,其牙距和牙深分别为1. 25mm和O. 62mm.
 
(a)试件底座 (可重要便用)
 
 
 
 
 
 
 
Q)试件 (一次性使用)
(C)试件安装 (d)植筋并养护
图R 3.1标准试件的形式与尺寸(Em)
1一M24标准件:2一退刀槽D=26: 3-M24标准螺纹; ,4一梯形螺纹(螺距4,深度0.4九5-钢丝绳或带肋钢筋(Z=150)t
6一注胶;7一胶缝:8-底座
R3.2,受检砂浆应按规定的取样规则从一定批量的产品(或检 验批)中抽取。
R.3.3专用钢套筒应采用45号碳钢制作。套筒内壁应有螺距 为4mm、深度为0. 4mm的梯形螺纹。
R 3.4试件数量应符合下列规定:
1常规试验的试件:每组不应少于5个;仲裁试验的试件
186
数量应加倍。
2当需确定抗剪强度标准值时,其试件数量应符合现行国 家标准《混凝土结构加固设计规范》GB 50367关于置信水平和 强度保证率的要求。
R.4试件制备
R.4,1钢筋、钢丝绳和钢套筒,应经除锈、除油污:套简内壁 尚应无毛刺;粘结前,钢筋和套筒应用工业丙酮清洗一遍。
R4.2 .钢筋、钢丝绳的直径以及套筒的内径和深度,应用量具 测量,精确到0.05mm。
R4.3粘结时,聚合物砂浆或复合砂浆的配合比、粘结工艺及 养护时间等的要求应按其产品使用说明书的规定执行,但为结构 加固设计提供依据的试验,其养护时间应以28d为准。
R.5试验条件
R5.1试件应在胶粘剂或高强度砂浆养护到期的当日进行试 验。若因故需推迟试验日期,应征得有关方面一致同意,且不得 超过14
R.5.2试验应在室温为23C士2°C的环境中进行。对仲裁性试 验,其相对湿度尚应控制在45%〜55%之间。
R5.3对温度、湿度有要求的试验,其试件在测试前的调控时 间不应少于24h。 ,
R∙6试验步骤
R.6.1试验时应将试件(图R6.D对称地夹持在夹具中;夹 持长度不应少于50mm。 ,
R.6.2开动试验机,以连续、均匀的速率加荷;自试样加荷至‘
破坏的时间应控制在Imin〜3min内,
R.6∙3试样破坏时,应记录其最大荷载值,并记录粘结的破坏 形式(如内聚破坏、粘附破坏等)。
187
标准分享网WWW. bzfxw. com免费下载
 
 
4=24
,l-:-------a
钢螺杆C,40
(可重复使用)
图 R. 6.1
试件安装钢螺杆
R7试验结果
R.7.1砂浆的抗剪强度人U,应按下列公式计算:
∕vu = F∕τv或
(R. 7.1)
式中:P——拉伸的破坏荷载,N;
Z----粘结面长度,mm;
d-一钢丝绳或带肋钢筋的公称直径。 R.7.2试验结果的计算应取三位有效数字。 R.Z3试验报告应包括下列内容:
1受检粘结材料的来源、品种、型号和批号, 2取样规则及抽样数量;
3试件制备方法及养护条件;
4试件的编号及其剪切面的尺寸;
5试验环境的温度和相对湿度;
6仪器设备的型号、量程和检定日期;
188
7加荷方式及加荷速度;
8试件破坏荷载及破坏形式:
9试验结果的整理和计算;
10取样、测试、校核人员及测试日期。
/VWW
189
标准分享网WWW. bzfxw. com免费下载
附录S结构界面胶(剂)剪切粘结强度 测定方法及评定标准
S.1适用范围
S.1.1本方法适用于承重结构混凝土界面胶(剂)粘结剪切性 能的试验室测定及合格评定。
S.1.2当混凝土基材表面喷抹高强度聚合物砂浆或复合水泥砂浆 为面层时,其与基材粘合面压缩剪切强度的测定也可采用本方法。
S.2试验设备及装置
S.2.1压力试验机
压力试验机的加荷能力,应使试件的破坏荷载处于试验机标 定满负荷的20%〜80%之间。试验机的示值误差不应大于1%。 S.2.2剪切加荷装置
剪切加荷装置的构造如图S. 2. 2所示,宜采用45号碳钢制 作,其零部件的加工允许偏差应取为±0.1mm。
S. 2.3浇筑混凝土试坯的模具
测定界面剂粘合面剪切强度的试件,是以混凝土凸形块为试 坯经专门加工而成。混凝土凸形块应在特制的铝合金模具中浇筑 成型。该模具应为钢模,采用45号碳钢制作。其设计和加工应 符合下列要求:
1模具应可拆卸,且拆卸的构造不应在操作时伤及试坯;
2模具内表面的光洁度应达6.3级:
3模具加工的允许偏差应符合下列规定:
1)模内净截面各边尺寸:±0.1Omm;模内净长度尺寸: 士0. 50mm;
2)模具各相邻平面的夹角应为90°,其允许偏差为士6‘;
190
3)模具各边组成的上、下两表面,其平面度的允许偏差 为短边长度的士 l∙0%.
 
 
图S.2∙ 2剪切加荷装置构造
1,一钢垫块,2一加荷示意1 3一试件位置2
4-活动抵承块;5一定位螺杆;6一底座
S.3试坯和试件的制备
£3.1试坯(混凝土凸形块,见图s.3. D应采用符合下列要
 
 
 
 
图S∙3∙l混凝土凸形块(试坯)
19〕
标准分享网WWW. bzfxw. com免费下载
求的材料按C40混凝土的配合比进行配制,并在符合本附录
S.2. 3要求的模具中浇筑成型;
1水泥应为强度等级不低于42. 5级的普通硅酸盐水泥,其 质量应符合现行国家标准《通用硅酸盐水泥》GB 175的规定;
2细骨料应为中国ISO标准砂,其质量应符合现行国家标 准《水泥胶砂强度检验方法(ISO法)》GB/T 17671的规定;
3粗骨料应为最大颗粒直径不大于4. 5mm的碎石或卵石 (豆石),其质量应符合现行国家标准《普通混凝土用砂、石质量 及检验方法标准》JGJ 52的规定;
4拌合用水应为饮用水。
注:每次配制混凝土,应制作一组标准尺寸的试块,供检验其强度等 级使用.
S.3.2试坯浇筑成型后,应覆盖塑料薄膜进行养护,其养护制 度及拆模时间应符合现行国家标准《普通混凝土力学性能试验方 法标准》GB/T 50081的规定。配制混凝土时制作的试块应随同 试坯在同条件下进行养护。
S∙3∙3试坯拆模后,应检查其外观质量;凡有裂纹、麻面、孔 洞、缺损的试坯均应弃用.
注:试坯的数量应按所需试件总数增加20%制备。
S. 3.4测定界面剂剪切粘结强度的试件应按下列规定进行制备: 1试坯养护到期后,立即置入剪切加荷装置,在压力试验 机中加荷至试坯凸出部分完全剪断;
2弃去试坯的凸出部分,将留下的棱柱形部分作为涂刷界 面胶(剂)的基材;
3清除基材剪断面的松动骨料及粉尘;
4按界面胶(剂)产品使用说明书的规定,在基材剪断面 上涂刷界面胶(剂)并嵌入原钢模;
5按产品使用说明书规定的时间晾置后,将新配制的混凝 土填入钢模内原凸出部分的空缺(对砂浆面层试验,应改用聚合 物砂浆填补空缺3经捣实后重新形成的凸形试件,即为本试验
192
方法所使用的试件;
6新成型的试件,应按本附录S3. 2的要求进行养护。养 护到期经外观质量检查合格后,即可供检验界面剂剪切粘结强度 使用。
S3.5测定粘合面剪切强度的试件,每组不得少于5个。当为 仲裁性检验时,试件数量应加倍。
S.4试験条件
S∙4.l试件应在新补浇混凝土(或聚合物砂浆)养护28d到期 的当日进行试验,若因故需推迟试验日期,应征得有关方面一致 同意,且不得超过"。
S.4.2试验应在室温为23°C±2°C的环境中进行,仲裁性试验, 其试验环境的相对湿度应控制在45%〜55%之间。
S.5试验步骤
$5.1试验时应将试件置入剪切加荷装置,通过调整可移动的 下支承块,使试件恰好触及加荷装置的侧壁,而又不产生挤压应 力为度。
S. 5.2开动压力试验机,以连续、均匀的(3〜5) mm/min的 A,:•速度施加压缩剪切荷载,直至试件破坏,记录最大荷载值,并记• 录粘合面破坏形式(如内聚破坏、粘附破坏、混合破坏等)。
S.6试验结果
S∙ 6.1界面剂粘结面剪切强度AU,应按下式计算:
‰1 = Pv∕AV (S. 6.1)
计算结果应取3位有效数字。
式中:PV—压缩剪切施加的最大荷载值(破坏荷载值),N;
4--粘合面面积(剪切面面积),mm:
S.6.2试件的破坏形式及其正常性判别应符合下列规定J 1试件破坏形式应按下列规定划分:
193
标准分享网WWW. bzfxw. com免费下载
1)混凝土内聚破坏--破坏发生在混凝土内部;
2)粘附破坏--破坏发生在涂刷界面胶粘剂的原剪断 面上;
3)混合破坏。
2破坏形式正常性判别准则,应符合下列规定:
D混凝土内聚破坏,或混凝土内聚破坏面积占粘合面积 85%以上的混合破坏,均可判为正常破坏;
2)粘附破坏,或混凝土内聚破坏面积少于85%的混合破 坏,均应判为不正常破坏。
S.7试验结果的合格评定
S.7.1组试验结果的合格评定,应符合下列规定:
1当一组内每一试件的破坏形式均属正常时,以组内最小 值作为该组试验结果的粘结剪切强度推定值;若该推定值不低于 表S 7.1规定的合格指标,则可评该组试件剪切粘结强度检验结 果合格。
表S∙7.1界面胶(剂)剪切粘结强度合格指标
| 检验项目 | 界面胶(剂)等级 | _______28d合格指标_______ | |
| 剪切粘结强度 (MPa) | A级 | 沁5 | 且为混凝土内聚破坏 | 
| W | >2.5 | ||
2当一组内仅有一个试件的破坏形式不正常,允许以加倍 试件重做一组试验。若试验结果全数达到上述要求,仍可评该组 为试验合格组。
S.7.2检验批试验结果的合格评定,应符合下列规定:
1若一检验批中每一组均为试验合格组,则应评该批界面 胶(剂)的剪切性能符合承重结构安全使用要求;
2若一检验批中有一组或一组以上为不合格组,应评该批 界面胶(剂)的剪切性能不符合承重结构安全使用要求;
3若一检验批所抽的试件不少于20组,且仅有一组被评为
194
不合格组,则仍可评该批界面胶(剂)符合承重结构安全使用
要求0
*7.3试验报告应包括下列内容:
1受检界面胶(剂)的品种、型号和批号:
2抽样规则及抽样数量;
3试坯及试件制备方法及养护条件;
4试件的编号和尺寸:
5试验环境温度和相对湿度;
6仪器设备的型号、量程和检定日期扌
7加荷方式及加荷速度;
8试件的破坏荷载及破坏形式;
9试验结果整理和计算;
10试验人员、校核人员及试验日期。
S.7.4当委托方有要求时,试验报告应附有试验结果合格评定 报告,且合格评定标准应符合本附泉的规定。
/VWv
195
标准分享网WWW. bzfxw. com免费下载
附录T现场推定新增混凝土 强度的取样规则与评定方法
τ.o.ι本方法适用于结构加固工程新浇混凝土试块漏取或丢失 的补救;也适用于对试块强度试验报告有疑义的核查;但不得用 以替代正常检验程序对混凝土试块的留置与试验;也不得用于替 代有条件取芯样的工程质量检验。
T.0.2当属试块漏取或不慎丢失的情况时,应对该组试块所代 表的构件,逐个进行现场非破损检测,并据以推定每个构件的混 凝土强度,以替代该组试块用于施工质量合格评定C
T. 0.3当利用本方法核查某一检验批混凝土试块强度试验报告 的可信性时,应对该检验批构件进行现场非破损抽样检测。其抽 样规则及检测结果的评定方法应符合下列规定:
1当该检验批仅由1个〜3个构件组成时,应逐个构件进 行检测,并取受检构件强度推定值中最低者作为该检验批构件混 凝土立方体抗压强度标准值fe,k ;
2当该检验批由不少于5个构件组成时,可按批的大小, 由独立检验单位确定随机抽检构件数量2 但制不宜少于5,且 不应小于4。根据所抽构件逐个检测结果推定的构件:混凝土的 立方强度值九m,可按下式算得该检验批混凝土抗压强度标准 值/叫k:
几,k = (∑Λu,i∕n) — ks (T. 0. 3) 式中:s--按n个构件立方函压强度算得,的标准差;
⅛--与a、。和"有关的材料强度标准值计算参数,可由 表T. 0.3查得;
«—确定材料强度标准值所取的概率分布下分位数.,一
196
般取a=0.05,(即保证率为95%);
C-检测所取的置信水平,对混凝土取c=0. 75。
表T.0.3 计算參数上值(C=O.75; α=0.O5)
| 打 | 4 | 5 | 6 | 7 | 3 | 9 | 10 | 12 | 15 | 
| 4值 | 2∙ 680 | 2.463 | 2 336 | 2. 250 | 2.190 | 2.141 | 2. 103 | 2∙ 048 | 1.991 | 
| 汗 | 18 | 20 | \ 25 | 30 | 35 | 40 | 45 | 50 | 100 | 
| 出值 | 1.951 | 1.933 | 1.895 | 1.86S | L 849 | ,费4 | 1,821 | 1.811 | 1.760 | 
注:当%~8 (亦即当"足够大)时.A=L 645.
3根据现场非破损检测结果算得的筛.k值,与该检验批试 验报告给出的混凝土立方抗压强度标准值进行比较。若两者差值 在15%以内,可取两者中的较小值用于施工质量合格评定;若 该差值大于15%,则应对未检测的构件逐根进行补测,然后按 全部检测值计算九仙值,并以该值作为该检验批的代表值,用于 施工质量合格评定。
4本方法所指的现场非破损检测法包括回弹法和超声一回 弹综合法。
,5当篦个数据算得的变异系数(变差系数)大于20%时, 不宜直接按(T.0.3)式计算fu,k值,而应先检查导致离散性增 大的愿因。若查明系混入不同总体(不同批)的样本所致,宜分 别进右统计,分别确定其启.k值。
197
标准分享网WWW. bzfxw. com免费下载
附录U粘结材料粘合加固材与基材的正拉粘结 强度现场测定方法及评定标准
Ul适用范围
ULl本方法适用于现场条件下以结构胶粘剂或高强聚合物砂 浆为粘•结材料,粘合(包括浇注、喷抹)下列加固材料与基材, 在均匀拉应力作用下发生内聚、粘附或混合破坏的正拉粘结强度 测定:
1结构胶粘剂粘合纤维复合材与基材混凝土;
2结构胶粘剂粘合钢板与基材混凝土;
3高强聚合物砂浆喷抹层粘合钢丝绳网片与基材混凝土;
4界面胶(剂)粘合新旧混凝土。
注:本条第2款的测定方法也适用于现场检验原构件混凝土本体的抗 拉强度。
U.1. 2当承重结构加固设计要求做纤维织物与胶粘剂的适配性 检验时,应采用本方法进行正拉粘结强度项目的测定。
U.2试验设备
U.2.1结构加固工程现场使用的粘结强度检测仪,应坚固、耐 用且携带和安装方便;其技术性能不应低于现行国家标准《数显 式粘结强度检测仪》JG 3056的要求。检测仪应每年检定一次。
U.2.2钢标准块的形状可根据实际情况选用方形或圆形。方形 钢标准块的尺寸为40mmX 40mm;圆形钢标准块的直径为 50mm;钢标准块的厚度不应小于20mm,且应采用45号钢 制作。
钢标准块应带有传力螺杆,其尺寸和夹持构造,应根据所使 用的检测仪确定。
198
u.3取样规则
U.3.l粘贴、喷抹质量检验的取样,应符合下列规定:
1梁、柱类构件以同规格、同型号的构件为一检验批。每 批构件随机抽取的受检构件应按该批构件总数的10%确定,但 不得少于3根;以每根受检构件为一检验组;每组3个检验点。
2板、墙类构件应以同种类、同规格的构件为一检验批, 每批按实际粘贴、喷抹的加固材料表面积(不论粘贴的层数)均 匀划分为若干区,每区IoOm2 (不足IoOm2,按IOom2计),且 每一楼层不得少于1区;以每区为一检验组,每组3个检验点。
3现场检验的布点应在粘结材料(胶粘剂或聚合物砂浆等) 固化已达到可以进入下一工序之日进行。若因故需推迟布点日 期,不得超过3d。
4布点时,应由独立检验单位的技术人员在每一检验点处, 粘贴钢标准块以构成检验用的试件。钢标准块的间距不应小于 500mm,且有一块应粘贴在加固构件的端部。
U.3.2适配性检验
1应由独立检验机构会同有关单位,在12℃和35C的气温 (自然或人工环境均可)中各制备3个试样,并分别进行检验;
2应以安装在钢架上的3块预制混凝土板为基材,在两种 气温中,每块板分别仰贴一条尺寸为0. 25mX 2.1m、由4层纤 维织物粘合而成的试样;
3应以每一试样为一检验组,每组5个检验点。每一检验 点粘贴钢标准块后即构成一个试件。
U.4试件制备
U 4.1试件制备应符合下列要求:
1基材表面处理:检测点的基材混凝土表面应清除污渍并 保持干燥。
2切割预切缝:从清理干净的表面向混凝土基材内部切割
199
标准分享网WWW. bzfxw. com免费下载
预切缝,切入混凝土深度为IOmm〜15mm,缝的宽度约2mmo 预切缝形状为边长40mm的方形或直径50mm的圆形,视选用 的切缝机械而定。切缝完毕后,应再次清理混凝土表面。
当检验原构件混凝土抗拉强度标准值五时,预切缝应采用 钻芯机钻成直径为50mm、深度为混凝土保护层厚度加20mm~ 30mm的圆柱状。
3粘贴钢标准块:应选用快固化、高强胶粘剂进行粘贴。 钢标准块粘贴后应立即固定;在胶粘剂7d的固化过程中,不得 受到任何扰动。
- U.5试验步骤
U.5.1试验应在布点日期算起的第8d进行。试验时应按粘结 强度测定仪的使用说明书正确安装仪器,并连接钢标准块(图 U.5. l)β
 
图U.5.1仪器安装及与钢标准块连接示意图
I-粘结强度测定仪:2一夹具:3—加荷摇柄I 4-数字式测力计J 5-反力支承架:6一钢标准块;7一高强、快固化的胶粘剂]8一基材表面 粘贴、喷抹、浇注的加固材料成界面胶;9一基材混凝土; IO-混凝土 表面预切缝
200
U∙5.2以均匀速率连续加荷,控制在Imin〜l∙5mi口内破坏; 记录破坏时的荷载值,并观测其破坏形式。
U.6试验结果
U. 6.1正拉粘结强度应按下式计算:
fLPJA. (U. 6.1)
式中:九--"试件2•的正拉粘结强度,MPa;
Pi--试件2‘破坏时的荷载值,N5
Asu∙--钢标准块3的粘合面面积,mm2o
U.6.2破坏形式及其正常性判别
1破坏形式
1)内聚破坏
--基材混凝土内聚破坏:即混凝土内部(本体)发生 破坏;
--胶粘剂内聚破坏:可见于使用低性能、低质量胶粘剂 的胶层中;
--聚合物砂浆内聚破坏:可见于使用低强度水泥,或低 性能、低质量聚合物的聚合物砂浆层中。
2)粘附破坏(层间破坏)
''' --胶层与基材混凝土之间的界面破坏:
--聚合物砂浆层与基材混凝土之间的界面破坏。
3)混合破坏
粘合面出现两种或两种以上的破坏形式。
注:钢标准块与高强、快固化胶粘剂之间的界面破坏,属检验技术问 题,与破坏形式判别无关,应重新粘贴,重作试验。
2试验结果正常性判别 .
若破坏形式为基材混凝土内聚破坏,或虽出现两种或两种以 上的破坏形式•但基材混凝土内聚破坏形式的破坏面积占粘合面 面积85%以上,均可判为正常破坏。若破坏形式为粘附破坏、
201
标准分享网WWW. bzfxw. com免费下载
胶粘剂或聚合物砂浆内聚破坏,以及基材混凝土内聚破坏的面积 少于85%的混合破坏,均应判为不正常破坏。
U 7检验结果的合格评定
U.7.1加固材料粘贴、喷抹质量的合格评定:
1组检:验结果的合格评定,应符合下列规定;
1)当组内每一试样的正拉粘结强度人均达到几》
1. 5MPa,且为混凝土内聚破坏的要求时,应评定该 组为检验合格组;
2)若组内仅一个试样达不到上述要求,允许以加倍试样 重新作一组检验,如检验结果全数达到要求,仍可评 定该组为检验合格组;
3)若重作试验中,仍有一个试样达不到要求,则应评定 该组为检验不合格组。
2检验批的粘贴、喷抹质量的合格评定,应符合下列规定:
D当批内各组均为检验合格组时,应评定该检验批构件 加固材料与基材混凝土的粘合质量合格;
2)若有一组或一组以上为检验不合格组,则应评定该 检睑批构件加固材料与基材混凝土的粘合质量不 合格:
3)若检验批由不少于20组试样组成,且检验结果仅有一 组因个别试样粘结强度低而被评为检验不合格组,则 仍可评定该检验批构件的粘合质量合格。
U∙7.2适配性检验的正拉粘结性能合格评定,应符合下列 规定:
1当不同气温条件下检验的各组均为检验合格组时,应评 定该型号纤维织物与拟配套使用的胶粘剂,其适配性检验的正拉 粘结性能合格:
. 2若本次检验中,有一组或一组以上检验不合格,应评定 该型号纤维织物与拟配套使用的胶粘剂,其适配性检验的正拉粘
202
结性能不合格:
3当仅有一组,且组中仅有一个检测点不合格时,允许以 加倍的检测点数重做一次检验。若检验结果全组合格,仍可评定 为适配性检验的正拉粘结性能合格Q
/VW \
203
标准分享网WWW. bzfxw. com免费下载
附录V承重构件外加砂浆面层抗压强度 采用回弹法检测的规定
v.u.i本规定适用于承重构件外加砂浆面层(简称砂浆面层) 施工过程中,留置的砂浆试块受损或丢失时,采用回弹法对其抗 压强度进行的现场补测。
V.0.2采用回弹法检测承重构件外加面层的砂浆抗压强度时, 应遵守下列规定:
1外加面层的砂浆应为水泥砂浆;在砂浆组分中允许含有 聚合物及常用的外加剂,但不得掺有石灰或黏土;
2砂浆的龄期应不少于28d:
3砂浆面层的厚度应不小于25mm;其所配钢筋或钢丝绳 的保护层厚度实测值应不小于15mm;
4砂浆面层应干燥、平整,且浮灰、起砂等表面缺陷已清 理干净。
V. 0.3砂浆回弹仪的技术指标应符合表V. 0. 3的规定。
表V.0.3砂浆回弹仪技术性能指标
| _______技术性能项目 | 指 标• | 
| _________冲击动能(J)_________ | 0.196 | 
| 弹击锤冲程(mm) | 75 | 
| 指针滑块的静應擦力(N) | 0. 5土0.1 | 
| _____弹击球面曲率半径(mm)_____ | 25 | 
| 在钢砧上率定平均回弹值(R) | 74 士 2 | 
| 外形尺寸(mm) | D=60, L= 280 | 
注:1砂浆回弹仪每半年应校验一次I
2在工程检测前后,均应对回弹仪在钢砧上作率定试验.
3表中D为回弹仪外径,L为回弹仪长度.
204
v. 0.4对承重构件外加砂浆面层进行回弹和碳化深度测试时, 测区应均匀布置。回弹测点应根据钢筋探测仪扫描钢筋(或钢丝 绳)位置的结果,以尽量避开钢筋(或钢丝绳)和锚固件的位置 为原则,事先予以标出。
V.0.5回弹检测的步骤及检测结果的计算分析,应按现行国家 标准《砌体工程现场检测技术标准》GB/T 50315的规定执行。
V. 0.6承重构件外加层测区2的砂浆抗压强度平均值九心按下 式确定:
Ai,c=%Λ (V∙0∙6)
式中:治--按现行国家标准《砌体工程现场检测技术标准》 GB/T 50315 "回弹法"一章计算确定的测区i的 砂浆抗压强度平均值; ^
%--砂浆面层抗压强度修正系数,一般取等于L 2;若 有可靠的对比试验数据,经监理总工程师同意后, 可按试验结果确定。
/VWv
205
标准分享网WWW. bzfxw. com免费下载
附录W锚固承载力现场检验方法及评定标准
w.ι适用范围及应用条件
W.1.1本方法适用于混凝土结构锚固工程质量的现场检验。
W.1.2锚固工程质量应按其锚固件抗拔承载力的现场抽样检验 结果进行评定。
注:本附录的锚固件仅指种植带肋钢筋、全螺纹螺杆和锚栓。
W. 1.3锚固件抗拔承载力现场检验分为非破损检验和破坏性检 验。选用时应符合本附录第w. 1. 4条和第W. 1. 5条的规定。
W.1.4对下列场合应采用破坏性检验方法对锚固质量进行 检验:
1重要结构构件;
2悬挑结构、构件;
3对该工程锚固质量有怀疑;
4仲裁性检验。
W.1.5当按本附录W. 1.4第1款的规定,对重要结构构件锚 固件锚固质量采用破坏性检验方法确有困难时,若该批锚固件的 连接系按本规范的规定进行设计计算,可在征得业主和设计单位 同意的情况下,改用非破损抽样检验方法,但必须按表W. 2. 3 确定抽样数量。
注:若该批锚固件已进行过破坏性试验,且不合格时,不得要求重作 非破损检测。
W.1.6对一般结构构件,其锚固件锚固质量的现场检验可采用 非破损检验方法。
W.1.7若受现场条件限制,无法进行原位破坏性检验操作时, 允许在工程施工的同时(不得后补),在被加固结构附近,以专 门浇筑的同强度等级的混凝土块体为基材种植锚固件,并按规定
206
的时间进行破坏性检验I但应事先征得设计和监理单位的书面同 意,并在场见证试验。
本条规定不适用于仲裁性检验C
W.2抽样规则
W.2.1锚固质量现场检验抽样时,应以同品种、同规格、同强 度等级的锚固件安装于锚固部位基本相同的同类构件为一检验 批,并应从每一检验批所含的锚固件中进行抽样。
W.2.2现场破坏性检验的抽样,应选择易修复和易补种的位 置,取每一检验批锚固件总数的1%。,且不少于5件进行检验。 若锚固件为植筋,且种植的数量不超过Ioo件时,可仅取3件进 行检验。仲裁性检验的取样数量应加倍。
W.2.3现场非破损检验的抽样,应符合下列规定:
1锚栓锚固质量的非破损检验:
1)对重要结构构件,应在检查该检验批锚栓外观质量合 格的基础上,按表W.2. 3规定的抽样数量,对该检验 批的锚栓进行随机抽样。
表W. 2. 3重要结构构件锚栓锚固质量非破损检验抽样表
| 检验批的锚栓总数 I | : ≤ιoo | 5。Q | IOOO | 2500 | >5000 | 
| -按检验批铺栓总数j 计算的最小抽样:s ! | 20%. 且不少于5件 | 10% | 7% | 4% | 3% | 
注:当锚栓总数介于两栏数坦之间时,皿按线性内插法确定抽样数世。
2)对一般结构构件,可按重要结构构件抽样量的50%,
且不少于5件进行随机抽样。
2植筋锚固质量的非破损检验:
D对重要结构构件,应按其检验批植筋总数的3%,且 不少于5件进行随机抽样。
2)对一般结构构件,应按1%,且不少于3件进行随机 抽样。
W.2∙4当不同行业标准的抽样规则与本规范不一致时,对承重
207
标准分享网WWW. bzfxw. com免费下载
结构加固工程的锚固质量检验,必须按本规范的规定执行。
W.2.S胶粘的锚固件,其检验应在胶粘剂达到其产品说明书标 示的固化时间的当天,但不得超过7d进行。若因故需推迟抽样 与检验日期,除应征得监理单位同意外,还不得超过3d。
W.3仪器设备要求
W.3.1现场检测用的加荷设备,可采用专门的拉拔仪或自行组 装的拉拔装置,但应符合下列要求:
1设备的加荷能力应比预计的检验荷载值至少大20%,且 应能连续、平稳、速度可控地运行;
2设备的测力系统,其整机误差不得超过全量程的士2%, 且应具有峰值储存功能;
3设备的液压加荷系统在短时(≤5min)保持荷载期间, 其降荷值不得大于5%;
4设备的夹持器应能保持力线与锚固件轴线的对中;
5设备的支承点与植筋之间的净间距,不应小于3d (d为 植筋或锚栓的直径),且不应小于60mm;设备的支承点与铺栓 的净间距不应小于L 5Af(%为有效埋深)。
W.3.2当委托方要求检测重要结构锚固件连接的荷载-位移曲 线时,现场测量位移的装置,应符合下列要求:
1仪表的量程不应小于50mm,其测量的误差不应超过 士 0.02mm;
2测量位移装置应能与测力系统同步工作,连续记录,测 出锚固件相对于混凝土表面的垂直位移,并绘制荷载-位移的全 程曲线。
注:若受条件限制,允许采用百分表,以手工操作进行分段记录.此 时,在试样到达荷载峰值前,其位移记录点应在12点以上。
W.3.3现场检验用的仪器设备应定期送检定机构检定。若遇到 下列情况之一时,还应及时重新检定:
1读数出现异常;
208
2被拆卸检查或更换零部件后。
W.4拉拔检验方法
W. 4.1检验锚固拉拔承载力的加荷制度分为连续加荷和分级加 荷两种•,可根据实际条件进行选用,但应符合下列规定:
1非破损检验
1)连续加荷制度
应以均匀速率在2min~3min时间内加荷至设定的检 验荷载,并在该荷载下持荷2min。
2)分级加荷制度
应将设定的检验荷载均分为10级,每级持荷Imin至 设定的检验荷载,且持荷2min。
3)非破损检验的荷载检验值应符合下列规定:
a对植筋,应取1.15N作为检验荷载:
b对锚栓,应取L 3M作为检验荷载。
注:N为锚固件连接受拉尾载力设计值,应由设计单位提供; 检测单位及其他单位均无权自行确定。
2破坏性检验
1)连续加荷制度
对锚栓应以均匀速率控制在2min〜3min时间内加荷 至锚固破坏;
对植筋应以均匀速率控制在2min〜7min时间内加荷 至锚固破坏。
2)分级加荷制度
应按预估的破坏荷载值NV作如下划分:前8级,每 级0.1Nu,且每级持荷Imin〜1.5min:自第9级起,每 级Q∙05Nu,且每级持荷30s,直至锚固破坏。
W.5检验结果的评定
W.5.1非破损检验的评定,应根据所抽取的锚固试样在持荷期
209
标准分享网WWW. bzfxw. com免费下载
间的宏观状态,按下列规定进行:
1当试样在持荷期间锚固件无滑移、基材混凝土无裂纹或 其他局部损坏迹象出现,且施荷装置的荷载示值在2min内无下 降或下降幅度不超过5%的检验荷载时,应评定其锚固质量 合格;
2当一个检验批所抽取的试样全数合格时,应评定该批为 合格批;
3当一个检验批所抽取的试样中仅有5%或5%以下不合格 (不足一根,按一根计)时,应另抽3根试样进行破坏性检验。 若检验结果全数合格,该检验批仍可评为合格批;
4当一个检验批抽取的试样中不止5% (不足一根,按一 根计)不合格时,应评定该批为不合格批,且不得重做任何 检验。
W.5.2破坏性检验结果的评定,应按下列规定进行:
1当检验结果符合下列要求时,其锚固质量评为合格:
NQ “] Nt (W. 5. 2-1)
且 Nw,mjn>0.85Nu,m (W. 5.2-2)
式中;Nu.--受检验锚固件极限抗拔力实测平均值;
Nu,min--受检验锚固件极限抗拔力实测最小值;
Nt-受检睑锚固件连接的轴向受拉承载力设计值; [‰]—破坏性检验安全系数,按表W. 5. 2取用。
2当NsV [/J Nt,或M,.V0.85Mm时,应评该锚 固质量不合格。
表W.5.2检脸用安全系数[%]
| 铺固件种类 | 破坏类型 | |
| 钢材破坏 | 非钢材破坏 | |
| 植筋 | >1. 45 | — | 
| 锚栓' | >1. 65 | >3.5 | 
210
附录γ∙钢筋•阻锈剂应用规定
y.ι 一般规定
Y.1.1本方法适用于以喷涂型阻锈剂对已有混凝土结构、构件 中的钢筋进行防锈占锈蚀损坏的修复J
Y. 1.2在下列情况下,应进行阻锈处理:
1结构安全性鉴定发现下列问题之一时:
1)承重构件混凝土的密实性差,且已导致其强度等级低 于设计要求的等级两档以上;
2)混凝土保护层厚度实测平均值不足现行国家标准《混 凝土结构设计规范》GB 50010规定值的90%;或两 次抽检结果,其合格点率均达不到现行国家标准《混 凝土结构工程施工质量验收规范》GB 50204的规定;
3)锈蚀探测表明:内部钢筋已处于“有腐蚀可能”状态F
4)重要结构的使用环境或使用条件与原设计相比,已显 著改变,其结构可靠性鉴定表明这种改变有损于混凝 土构件的耐久性。* ,
2未作钢筋防锈处理的露天重要结构、地下结构、文物建 筑、使用除冰盐的工程以及临海的重要工程结构。
3业主方要求对已有结构、构件的内部钢筋进行加强防 护时。
Y∙L3采用阻锈剂时,应选用对氯离子、氧气、水以及其他有 害介质滤除能力强、不影响混凝土强度和握裹力,并不致在修复 界面形成附加阳极的阻锈剂。
Y.2喷涂型钢筋阻锈剂操作要求
Y∙2.l喷涂型钢筋阻锈剂的操作,应符合下列要求:
211
标准分享网WWW. bzfxw. com免费下载
1喷涂前应仔细清理混凝土的表层,不得粘有浮浆、尘土、 油污、水渍、霉菌或残留的装饰层;
2剔凿、修复局部劣化的混凝土表面,如空鼓、松动、剥 落等,
3喷涂阻锈剂前,混凝土龄期不应少于28d;局部修补的 混凝土,其龄期应不少于14d;
4混凝土表面温度应在5βC〜45C之间;
5阻锈剂应连续喷涂,使被涂表面饱和溢流。喷涂的遍数 及其时间间隔应按产品说明书和设计要求确定;
6每一遍喷涂后,均应采取措施防止日晒雨淋;最后一遍 喷涂后,应静置24h以上,然后用压力水将装面残留物清除 干净。
Y.2.2对露天工程或在腐蚀性介质的环境中使用亲水性阻锈剂 时,应在构件表面增喷附加涂层进行封护。
Y∙2 3若混凝土表面原先刷过涂料或各种防护薇,已使混凝土 失去可渗性且无法清除时,本附录规定的喷涂阻锈方法无效,应 改用其他阻锈技术。
Y.3阻锈剂使用效果检测与评定
Y.3.1本方法适用于已有混凝土结构喷涂阻锈剂前后,通过量 测其内部钢筋锈蚀电流的变化,对该阻锈剂的阻锈效果进行 评估。
Y 3.2评估用的检测设备和技术条件应符合下列规定:
1应采用专业的钢筋锈蚀电流测定仪及相应的数据采集分 析设备,仪器的测试精度应能达到O. lμA/cm2 :
2电流测定可采用静态化学电流脉冲法(GPM法),也可 采用线性极化法(LPM法)。当为仲裁性检测时,应采用静态化 学电流脉冲法;
3仪器的使用环境要求及测试方法应按厂商提供的仪器使 用说明书执行,但厂商必须保证该仪器测试的精度能达到使用焼
212
明书规定的指标。
Y.3・3测定钢筋锈蚀电流的取样规则应符合下列规定:
1梁、柱类构件,以同规格、同型号的构件为一检验批。 每批构件的取样数量不少于该批构件总数的1/5,且不得少于3 根:每根受检构件不应少于3个测值;
2板、墙类构件,以同规格、同型号的构件为一检验批。 至少每200ms5 (不足者按200m2计)设置一个测点,每一测点 不应少于3个测值;
3露天、地下结构以及临海混凝土结构,取样数量应加倍;
4测量钢筋中的锈蚀电流时,应同时记录环境的温度和相 对湿度。条件允许时,宜同步测量半电池电位、电阻抗和混凝土 中的氯离子含量。
Y.3.4混凝土结构中钢筋锈蚀程度及锈蚀破坏开始产生的时间 预测可按表Y∙ 3. 4进行估计。
表γ.3.4混凝土构件中钢筋锈蚀程度判定 及破坏发生时间预测
| 锈蚀电流 | 锈蚀程度 | 锈蚀破坏开始时间预测 | 
| <0. 2μA∕cm2 | 无 | 不致发生锈蚀破坏 | 
| 8 2~lμΛ∕cme | 轻微锈蚀 | >10年 | 
| , I 〜IoRA∕cπ? | 中度锈蚀 | 2年〜10年 | 
| >10μA∕cm2 | 严重锈蚀 | <2年 | 
注:对重要结构.当检测结果>2rA/e2时,应加强锈蚀监测.
Y∙3∙5喷涂阻锈剂效果的评估应符合下列规定:
1应在喷涂阻锈剂15Od后,采用同一仪器(至少应采用相 同型号的测试仪)对阻锈处理前测试的构件进行原位复测。其锈 蚀电流的降低率应按下式计算:
•锈蚀电流的降低率=4nΧ100% (Y. 3. 5)
式中:/—15Od后的锈蚀电流平均值;
213
标准分享网WWW. bzfxw. com免费下载
Io--喷涂阻锈剂前的初始锈蚀电流平均值。
2当检测结果达到下列指标时,可认为该工程的阻锈处理 符合本规范要求,可以重新交付使用:
1)初始锈蚀电流>MA/cm2的构件,其15Od后锈蚀电 流的降低率不小于80%;
2)初始锈蚀电流<%A/cm2的构件,其15Od后锈蚀电 流的降低率不小于50⅜β
 
 
214
本规范用词说明
1为便于在执行本规范条文时区别对待,对要求严格程度 不同的用词说明如下:
1)表示很严格,非这样做不可的用词:•
正面词采用"必须",反面词采用"严禁"3
2)表示严格,在正常情况下均应这样做的用词:
正面词采用"应",反面词采用"不应"或"不得";
3)表示允许稍有选择,在条件许可时首先应这样做的 用词:
正面词釆用"宜”,反面词采用"不宜\
4)表示有选择,在一定条件下可以这样做的,采用 "可\
2条文中指定应按其他有关标准执行的写法为:“应 符合……的规定"或"应按……执行,
215
标准分享网WWW. bzfxw. com免费下载
引用标准名录
1《混凝土结构设计规范》GB 50010
2 ‘《普通混凝土拌合物性能试验方法标准》GB/T 50080
3《普通混凝土力学性能试验方法标准》GB/T 50081
4《混凝土外加剂应用技术规范》GB 50119
5《砌体工程施工质量验收规范》GB 50203
6《混凝土结构工程施工质量验收规范》GB 50204
7《钢结构工程施工质量验收规范》GB 50205
8《建筑工程施工质量验收统一标准》GB 50300
9《砌体工程现场检测技术标准》GB/T 50315
10《建筑结构检测技术标准》GB/T 50344
11《混凝土结构加固设计规范》GB 50367
12《水泥基灌浆材料应用技术规范》GB/T 50448
13《通用硅酸盐水泥》GB 175
14《快硬硅酸盐水泥》GB 199
15《金属材料室温拉伸试验方法》GB/T 228
16《一般用途低碳钢丝》GB/T 343
17《碳素结构钢》GB/T700
18《气焊、手工电弧焊及气体保护焊婦缝坡口的基本形式 与尺寸》GB/T 985
19《纤维增强塑料性能试验方法总则》GB/T 1446
20《钢筋混凝土用钢 第1部分:热车观圆钢筋》GB 1499.1
21《钢筋混凝土用钢 第2部分:热$L带肋钢筋》GB1499. 2
22《低合金高强度结构钢》GB/T 1591
23《紧固件机械性能》GB/T 3098
24《金属熔化焊焊接接头射线照相》GB/T 3323
216
25《定向纤维增强塑料拉伸性能试验方法》GB/T 3354
26《碳纤维增强塑料体积含量试验方法》GB/T 3366
27《碳钢焊条》GB/T 5117
28《低合金钢焊条》GB/T 5118
29《预应力混凝土用钢丝》GB/T 5223
30《预应力混凝土用钢绞线》GB/T 5224
31《胶粘剂适用期和贮存期的测定》GB/T 7123
32《胶粘剂拉伸剪切强度的测定(刚性材料对刚性材 料)》GB/T 7124
33《混凝土外加剂》GB 8076
34《混凝土外加剂匀质性测定方法》GB/T 8077
35《增强制品试验方法 第3部分:单位面积质量的测 定》GB/T 9914. 3
36《不锈钢丝绳》GB/T 9944
37《钢焊缝手工超声波探伤方法和探伤结果分级》 GB 11345
38《钢筋混凝土用余热处理钢筋》GB/T 13014
39《液态胶粘剂密度测定方法》GB/T 13354
40《建筑密封材料试验方法》GB/T 13477
,41《预应力筋用锚具、夹具和连接器》GB/T 14370
V" 42《孤立批计数抽样检验程序及抽样表》GB/T 15239
43《水泥胶砂强度检验方法(IS0法)》GB/T 17671
44《钢筋焊接及验收规程》JGJ 18
45《普通混凝土用砂、石质量及检验方法标准》JGJ 52
46《混凝土拌合用水标准》JGJ 63
47《建筑砂浆基本性能试验方法》JGJ 70
48《建筑钢结构焊接技术规程》JGJ 81
49《钢结构高强度螺栓连接的设计、施工及验收规程》 JGJ 82
50《建筑工程冬期施工规程》JGJlO4
217
标准分享网WWW. bzfxw. com免费下载
51《混凝土用膨胀型、扩孔型建筑锚栓》JG 160
52《水泥胶砂试件成型振实台》JG/T 682
53《混凝土试模》JG 3019
54《数显式粘结强度检测仪》JG 3056
55《航空用钢丝绳》YB/T 5197
56《无碱玻璃纤维布》JC/T 170
57《水泥混凝土养护剂》JC/T 901
58《行星式水泥胶砂搅拌机》JC/T 681
59《环氧浇铸树脂线性收缩率的测定》HG/T 2625
60《水工混凝土试验规程》DL/T 5150
218
中华人民共和国国家标准
建筑结构加固工程施工质量验收规范
GB 50550-2010
条文说明
/VW
制订说明
《建筑结构加固工程施工质量验收规范》GB 50550 -2010经 住房和城乡建设部2010年7月15日以第683号公告批准发布。
本标准制订过程中,编制组进行了大量的调查研究,总结了 我国工程建设加固施工领域的实践经验,同时参考了国外先进技 术标准,通过试验,取得了结构加固施工质量检验用的重要技术 参数。
为便于广大设计、施工、科研、学校等单位有关人员在使用 本规范时能正确理解和执行条文规定,《建筑结构加固工程施工 质量验收规范》编制组按章、节、条顺序编制了本规范的条文说 明,对条文规定的目的、依据以及执行中需注意的有关事项进行 了说明(还着重对强制性条文的强制理由做了解释)。但是,本 条文说明不具备与规范正文同等的法律效力,仅供使用者作为理 解和把握规范规定的参考。
220
目 次
1 总则.................................................................. 225
2 术语.................................................*................ 226
3基本规定............................................................227
4材料..................................................................231
4.1混蹴土原材料...................................................231
4.2 钢材...............................................................233
4.3焊接材料 .........................................................236
4.4结构胶粘剂…••:........................ 236
4.5纤维材料 ........:........ 240
4.6水泥砂浆原材料 ................................................242
4.7聚合物砂浆原材料............................................... 242
4.8裂缝修补用注浆料................................................243
4.9混凝土用结构界面胶(剂) 244
4.10结构加固用水泥基灌浆料............................................. 244
4.11锚栓........................................................ 245
5混凝土构件增大截面工程•;..................................... 247
5.1 一般规定......................................................... 247
5.2界面处理.........................................................248
5.3新增截面施工...................................................248
5.4施工质量检验・:二....................... 250
6局部置换混凝土工程............................................. 252
6,1 一般规定........................................... 252
6.2卸载的实时控制 ..........................*..................... 252
6.3混凝土局部剔除及界面处理.................... 252
6.4置换混凝土施工.................................... 253
221
标准分享网WWW. bzfxw. com免费下载
6∙5施工质量检验...................................................254
7混凝土构件绕丝工程 .............................................255
7.1 一般规定.........................................................255
7.2界面处理.........................................................255
7.3绕丝施工.........................................................255
7.4施工质量检验...................................................256
8混凝土构件外加预应力工程 ....................................257
8.1 一般规定.........................................................257
8.2制作与安装......................................................257
8.3张拉施工................................... 258
8.4施工质量检验...................................................259
9外粘或外包型钢工程 .............................................260
9-1 -般规定.........................................................260
9∙2型钢骨架制作...................................................260
9.3界面处理.........................................................261
9.4型钢骨架安装及焊接.............................................261
9. 5注胶(或注浆)施工.............................................262
9.6施工质量检验..................................-................263
10外粘纤维复合材工程.............................................264
10.1 一般规定.........................................................264
10.2界面处理.........................................................265
10.3纤维材料粘贴施工...................... 266
10.4 施工质量检验 ................................................... 266
11外粘钢板工程......................................................268
11.1 一般规定.........................................................268
11.2界面处理......................... 268
11.3钢板粘贴施工 .................... 269
11.4施工质量检验...................................................270
12钢丝绳网片外加聚合物砂浆面层工程........................271
12.1 一般规定........................................... 271
222
12.2界面处理.........................................................271
12.3钢丝绳网片安装................................................272
12.4聚合物砂浆面层施工..........................................272
12.5施工质一检験 ............................................................. 273
13砌体或混凝土构件外加钢筋网-砂浆面层工程............274
13-1 一般规定.........................................................274
13.2界面处理.........................................................274
13.3钢筋网安装及砂浆面层施工....................................275
13.4施工质量检验...................................................275
14砌体柱外加预应力撑杆工程....................................277
14.1 一般规定.........................................................277
14.2 界面处理................... 278
14.3撑杆制作.......................................:.................278
14.4撑杆安装与张拉 ............ 279
14-5施工质量检验 ....................................... 279
15钢构件增大截面工程.............................................280
15-1 一般规定...............:.........................................280
15-2界面处理...............:......................................... 281
15.3新增钢部件加工 ...................... 281
15-4新增部件安装、拼接施工.......................................283
15.5施工质量检验.......................... 284
16钢构件焊缝补强工程.............................................286
16.1 一般规定…........................................... 286
16. 2焊区表面处理...................................................286
16. 3焊縫补强施工 ............................... 287
16.4焊接质量检验 ................... *........ 287
17钢结构裂纹修复工程............... • 288
17.1 —般规定.................................. 288
17.2焊缝补强施工及质量检验......................................:288
18混凝土及砌体裂缝修补工程....................................290
223
标准分享网WWW. bzfxw. com免费下载
1&1 一般规定.........................................................290
18. 2界面处理.........................................................290
18.3表面封闭法施工 ................................................ 291
18.4柔性密封法施工 ................................................292
18.5压力灌注法施工................................................293
18.6施工质量检验 ................ 294
19植筋工程............................................................295
19.1 一般规定.........................................................295
19.2界面处理.........................................................295
19. 3 植筋工程施工 .................................................. 296
19.4施工质量检验.................................... 297
20锚栓工程...........................................:................298
20.1 一般规定・,;•..................................................... 298
20. 2锚栓安装施工...................................................298
20.3施工质量检验...................................................299
21灌浆工程............................................................300
21.1 一般规定.........................................................300
21.2施工图安全复查................................................300
21-3界面处理.........................................................301
21.4灌浆施工.........................................................301
21.5施工质量检验............... 301
22建筑结构加固工程竣工验收......................... 302
224
1总贝!j
1.0.1编制本规范的主要目的,是为了统一建筑结构加固工程 施工过程控制和施工质量的验收标准,加强施工质量检验的力 度,以确保建筑结构加固工程的安全和质量。
1.0.2本规范的适用范围为工业与民用房屋及一般构筑物的混 凝土结构加固工程、砌体结构加固工程和钢结构加固工程,但不 包括木结构加固工程。因为传统的木结构已很少见,且各地的加 固做法迥异,不易统一:至于新引进的规格材轻型木结构,迄今 尚处试用阶段,未见有加固的案例,故暂不纳入本规范。
l∙0∙3本规范系通用的国家标准,仅对建筑结构加固工程的施 工质量提出最低的合格指标和安全要求。因此,承包合同和工程 技术文件对加固工程安全和质量的要求可高于本规范,但不得低 于本规范的规定。
l,0∙4本条所列出的四个国家标准,与本规范同属通用标准, 其相互间存在着实质性的衔接关系,既不重复,也不抵触,因而 必须配套使用。
1.0.5建筑结构加固工程施工质量验收工作综合性强、牵涉面 广,不仅项目多,而且还与其他施工技术、施工过程控制以及产 品质量评定等方面的标准有关。因此,凡本规范有规定者,应无 例外地遵照执行;凡本规范未作规定者,尚应按照现行有关标准 的规定执行。
225
标准分享网WWW. bzfxw. com免费下载
2术 语
本规范采用的术语名称及其定义或涵义,是根据下列原则确 定的:
1凡现行工程建设国家标准已作规定者,一律加以引用, 不再另行改名,也不再另行定义。
2凡现行工程建设国家标准尚未规定者,由本规范参照国 际标准和国外先进标准给出其定义,或从建筑结构加固工程施H 质量验收的角度赋予其涵义,但涵义不等于术语的定义。
3当现行工程建设国家标准虽已有该术语,但定义(或涵 义)不准确或概括的内涵不全时,由本规范完善其定义(或涵义] 同时,本规范还给出了相应的英文术语,但有些英文术语在 国际上尚未统一。在这种情况下,本规范采用的英文术语不一定 与国外标准或指南相一致。
226
3基本规定
3.0.1本条系根据国家标准《建筑工程施工质量验收统一标准》 GB 50300-2001的相关规定制定的。其目的是使建筑结构加固 工程便于按照其特点组织施工质量检验与验收,同时也便于建立 相对独立的质量管理体系和质量保证体系,以利于运作。
本条除了规定建筑结构加固工程施工单位应建立必要的质量 责任制度,并对建筑结构加固工程施工的质量管理体系提出明确 的要求外,还规定了施工单位应在国家标准的基础上制定本企业 的施工技术标准。因为只有这样,施工单位才能据以推行其最佳 的全过程控制技术,也才能使它所推行的质量管理体系和质量控 制与检验制度落到实处。不少工程实践经验表明:本条提出的三 位一体的现场管理方法,是保证工程质量和企业效益所不可或缺 的措施,施工单位应认真组织实施。
3. 0.3本条较具体地规定了建筑结构加固工程施工质量控制的 主要方面:一是施工图的技术交底、施工组织设计及施工技术方 案的编制。二是涉及安全、卫生、环保的加固材料和产品的进场 复验。三是对原结构、构件的清理、修整与支护.四是控制每道 工序的质量。在每道工序的质量控制中之所以强调按企业标准进 行控制,是考虑到在正常的标准化关系中,企业标准的控制指标 应严于行业标准和国家标准,因为只有这样的企业才具有竞争力 和生存力。五是施工单位在每道工序完成后,除了应进行自检并 应由专职质量检验员检查外,还强调了工序交接检查,上道工序 应满足下道工序的施工条件和要求;同样,相关专业工序之间也 应进行中间交接检查,使各工序间和各相关专业工程之间形成一 个有机的整体。
3.0.4、3.0.5建筑结构加固工程与新建工程相比增加了清理、
227
标准分享网WWW. bzfxw. com免费下载
修整原结构、构件以及界面处理的工序。其工作内容及要求在条 文中已作了系统而清晰的表述,而且很容易理解,无需再加以说 明。这里需要指出的是这两道工序对保证加固工程的质量和加固 的效果至关重要,施工人员和监理人员必须认真对待,否则将使 结构的加固以失败告终。同时,还应指出的是作为业主代表的监 理人员应严格监督这两个工序的全过程。倘若因失察而导致造成 加固质量事故,应负玩忽职守之责。
3.0.6本条系以5.12特大地震的震害调查评估结果为依据制定 的。因为当建筑物受到强震破坏时,良好的结构整体牢固性能起 到防止快速连续倒塌的作用,从而为人们提供了逃生、救援和抢 险加固的机会,因此是一种重要的减灾措施。作为施工质量验收 规范,虽不能对结构加固设计问题作出规定,但有责任在现场核 对原结构构造和清理原结构过程中关注其整体牢固性是否存在需 要增强或补救的问题。一旦发现该结构的圈梁、支撑、连接、拉 结等系统有缺损、间断、错漏等情况时,应立即停工并及时通知 业主和设计单位。在他们尚未采取措施前,不应仍按原加固方案 施工,以免留下隐患或造成不必要的经济损失。
3.0.7众所周知,被加固的结构在实施加固前总是隐含着不安 全的因素,其触发与否,在很大程度上取决于施工所采取的防护 措施是否到位和及时。这一方面要靠施工单位认真落实设计单位 提出的安全措施,把工作做在结构加固施工的前面;而另一方面 则须依靠安全检查监督人员,通过各种实时监控手段进行观测, 并及时采取措施排除事先未发现的不安全因素。只有这样,才能 确保结构加固工程的安全。
3.0.9对混凝土结构和砌体结构的加固工程而•言,当室外日平 均气温连续5d稳定地低于5℃即进入冬期施工,必须采取防冻 害措施才能进行正常的施工作业!> 这是一般施工单位都熟悉的规 定,但对钢筋和钢构件的焊接作业来说,却由于加固工程量小、 施工人员素质较差,设备也很有限,而往往不注意冬期施工的负 温影响问题,致使负温下焊接的质量显著受到影响。另外,胶粘
228
加固作业对低温影响更为敏感,更需要采取冬期施工的措施。因 此,制定本规定予以提示,以保证冬期加固施工的质量。
3. 0.10为了防止加固材料在工作过程中受到环境因素的侵蚀, 以及各种意外作用(如人为破坏和火灾等)对它造成的损害,通 常都要在其表面设置防护面层。但由于防护面层的材料与做法很 多,因此本规范仅作了原则性的规定。然而迄今为止,在小型工 程中,仍以水泥砂浆做面层的居多,为此,应指出两点:
1为了使水泥砂浆面层与加固材料粘结较为牢靠,宜在加 固材料表面涂刷一道结构胶粘剂,并趁它尚未固化前均匀撒上一 层细石(或称豆石)。待胶粘剂固化粘牢石子时,再分层抹上水 泥砂浆。只要胶粘剂质量没有问题,其效果与传统的加设钢丝网 片相近,但施工却简便得多。
2水泥砂浆防护面层,并非起加固作用的砂浆面层,不能 按本规范的各种外加砂浆面层进行验收,而应按现行国家标准 《建筑装饰装修工程质量验收规范》GB 50210的"一般抹灰工 程”进行验收。
3.Q.11本条系以现行国家标准《建筑工程施工质量验收统一标 准》GB 50300的规定为依据制定的。但由于该标准的规定过于 原则,而现行有关抽样方案的国家标唯又有19个之多,因此, 作出了应按本规范所选择或补充的抽样方案执行的规定。
3.0.12本条主要是针对当前结构加固工程施工现场技术管理的 混乱情况作出的规定;一是明确必须进行现场见证检测和结构构 件实体见证检验的范围:二是明确未经见证抽样的此类项目,其 检测或检验报告无效,以防止今后继续使用由施工单位委托取得 的检验报告作为验收的依据。
3∙0∙13本条给出了检验批质量验收合格的条件:主控项目和一 般项目检验均应合格,且资料完整,但对采用计数检验的一般项 目,作出了适当放宽的规定,即对合格点率的要求不是100%, 而是80%,只有个别项目为90%。这与现行国家标准《混凝土 结构工程施工质量验收规范》GB 50204及《钢结构工程施工质
229
标准分享网WWW. bzfxw. com免费下载
量验收规范》GB 50205的取值是一致的。若设计认为其所关注 的某个项目需要以更高的合格率来保证,则应在施工图中加以 注明。
3.0.14〜3.0.16这三条规定是根据现行国家标准《建筑工程施 工质量验收统一标准》GB 50300关于建筑工程质量验收原则制 定的。因此,可参阅该标准有关条文的说明。
230
4材 料
4.1混凝土原材料
4.1.1水泥进场时,应根据产品合格证检查其品种、级别等, 并有序存放,以免造成混级错批。强度、安定性等是水泥的安 全性能指标,进场时应予见证抽样复验;其质量应符合新修订 的现行国家标准《通用硅酸盐水泥》GB 175和《快硬硅酸盐 水泥》GB 199等的要求。水泥是混凝土的重要组成成分,若 其中含有氯化物,可能引起混凝土结构中钢筋的锈蚀,故应严 格控制。
本条为强制性条文,必须严格执行.
4.1.2混凝土外加剂种类较多,且均有相应的质量标准。使用 时,其产品质量及应用技术应符合现行国家标准《混凝土外加剂》 GB 8076、《混凝土外加剂应用技术规范》GB 50119,以及现行行 业标准《混凝土速凝剂》JC 472、《混凝土泵送剂》JC473、《砂浆、 混凝土防水剂》JC 474、《混凝土防冻剂》JC 475等的规定。外加 剂的检验项目、方法和批量也应符合现行相应产品标准的规定。 若外加剂中含有氯化物,同样可能引起混凝土结构中钢筋的锈 蚀,故也应严格控制。本章中凡涉及原材料进场复验抽样数量 的问题,除有明确规定外,均应按本规范附录D规定的原则 执行。
另外,应指出的是,在上部结构加固工程中之所以不得使用 膨胀剂,是因为在养护新浇混凝土全过程中,很难保证其加固部 位始终保有充足的水分,从而导致膨胀剂起不到应有的作用,甚 至还会产生负面的影响。另外不少工程的施工经睑也表明,只有 在建筑物基础和地下室等部位,膨胀剂才能起到一定的作用,其 最主要原因,便是在养护过程中能够保有水分,而这在上部结构
23」
标准分享网WWW. bzfxw. com免费下载
中是很难做到的。
本条为强制性条文,必须严格执行。
4.1.3随着预拌混凝土、自密实混凝土和高强混凝土大量进入 建设工程市场,原中国工程建设标准化协会标准《混凝土结构加 固技术规范》CECS 25 : 90 (已废止)关于"加固用的混凝土中 不应掺入粉煤灰”的规定经常受到质询,纷纷要求本规范采取积 极的措施予以解决。为此,编制组对制订该规范第2. 2. 7条的背 景情况进行了调查,并从中了解到主要是由于20世纪80年代工 程上所使用的粉煤灰,其质量较差,烧失量过大,致使掺有粉煤 灰的混凝土,其收缩率可能达到影响与原构件混凝土协同工作的 程度,因此作出了禁止使用的规定。此次编制本规范,对结构加 固用的混凝土如何掺加粉煤灰作了专题的分析研究,其结论表 明:只要使用I级灰,且限制其烧失量在3%〜5%范围内,便 不致对加固后的结构产生明显的不良影响。但3%在当前生产条 件下很难达到,而本规范作为通用的国家标准,其所要求的主要 是保证加固材料的质量能达到可接受的最低安全水准,因此,取 5%作为控制指标。
4. L 4根据建筑结构加固工程的特点,除了明确要求普通混凝 土用的砂和石子的质量应符合现行行业标准《普通混凝土用砂、 石质量及检验方法标准》JGJ 52的要求外,还结合被加固结构 构造条件的限制和浇筑方法的不同,对砂的细度和石子的最大粒 径作出了具体规定。这里需要指出的是,在执行本条规定时,仍 需同时执行现行国家标准《混凝土结构工程施工质量验收规范》 GB 50204对粗骨料质量的有关规定。
4. L 5考虑到今后建筑工程中利用工业处理水的发展趋势,除 采用自来水或天然洁净水外,还需要采用其他水源,因此,规定 了其水质应符合现行行业标准《混凝土用水标准》JGJ 63的要 求。这一点很重要,因为有不少工程事故表明,由于施工单位不 重视水质的检验,随意使用水质不明的水源,致使新浇的混凝土 在工程完工不久便出现难以弥补的质量问题。
232
4.2钢 材
4.2.1钢筋对混凝土结构构件的承载力至关重要,对其质量应 从严要求"普通钢筋应符合现行国家标准《鋼筋混凝土用热轧带 肋钢筋》GB 1499、《钢筋混凝土用热轧光圆钢筋》GB 13013和 《钢筋混凝土用余热处理钢筋》GB/T 13014等的要求。钢筋进 场时,应检查产品合格证和出厂检验报告,并按规定进行见证抽 样复验。
这里应指出的是:由于工程量、运输条件和各种钢筋的用量 等的差异,很难对各种钢筋的进场检查数量作出统一规定。因 此,应按本规范附录D的规定进行抽样复验方案的设计。
本条规定的检验方法中,其所以要求检查产品合格证和出厂 检验报告,以及中文标志和包装的完整性,主要是为了核查该产 品质量证明资料的可信性和有效性.因此,这些文件中应列出产 品的安全性能指标;当用户有特别要求时,还应列出专门指定的 检验数据。进场复验报告是根据进场见证抽样检验结果出具的有 效文件,主要用于判断该批材料的性能和质量是否与设计、订货 要求相符,并确定该批产品能否在工程中安全使用。因此,见证 抽样的样品应由监理单位签封或送样:其检验扱吿必须由独立的 .检测机构出具。因为他们应对样品和检验报告的可靠性承担法律 责任。这些规定对其他材料同样适用。
本条为强制性条文,必须严格执行。
4.2.2本条系以现行国家标准《钢结构工程施工质量验收规范》 GB 50205为依据制定的。因此,其条文说明对本规范也基本上 适用。但应着重指出的是,在建筑结构加固工程中,由于工程量 一般较小,极易遇到来源不明、质量证明文件不全或是混批的钢 材和紧固件C因此,不论是国产钢材还是进口钢材,应一律进行 见证抽样复验,以免给工程留下安全隐患。这一点应提请监理人 员注意。
本条为强制性条文,必须严格执行。
233
标准分享网WWW. bzfxw. com免费下载
4.2, 3预应力筋等加固专用的钢材是混凝土结构外加预应力加 固工程最重要的原材料。进场时,应根据本规范附录D提出的 进场复验抽样规定进行见证抽样复验方案设计,并付诸实施,以 确保外加预应力工程的质量。另外,考虑到目前各生产厂家所提 供的预应力产品合格证内容不尽相同,故要求厂家除提供产品合 格证外,还应提供预应力筋等加固专用钢材主要性能的出厂检验 报告。在这种情况下,进场复验可仅作主要的力学性能检验。
本条文为强制性条文,必须严格执行。
4.2.4目前国内锚具生产厂家较多,各自形成配套产品,产品 结构尺寸及构造也不尽相同。为确保实现设计意图,故本条要求 锚具、夹具和连接器应按设计规定采用;其性能应符合现行国家 标准《预应力筋用锚具、夹具和连接器》GB/T 14370的规定。 至于其实际应用则可按现行行业标准《预应力筋用锚具、夹具和 连接器应用技术规程》JGJ 85的规定执行。锚具、夹具和连接 器的进场复验一般仅作锚具(夹具、连接器)的静载检验。检验 时,,考虑到加固工程量一般不大的特点,因此,其检验批以不超 过200套为一批较为恰当。此外,其材质、机加工尺寸及热处理 硬度等只需按出厂检验报告中所列指标进行核查即可。
4.2.5绕丝法必须采用退火钢丝,才能保证其缠绕施工的质量 和有效性。近来由于大厂生产的退火钢丝经常脱销,有些施工单 位便擅自改用其他品种钢丝施工,以致给工程留下安全隐患。为 此,给出进场复验指标,并要求一律进行复验。另外应指出的 是:本条对退火钢丝(包括利用冷拔低碳钢丝进行退火的钢丝) 所作的进场复验规定,是完全针对绕丝加固法的用途作出的,不 能引用于其他应用场合。
本条为强制性条文,必须严格执行。
4.2.6就小直径(2. 4mm〜4.5mm)高强度不锈钢丝绳而言, 迄今我国尚未制定结构加固用钢丝及钢丝绳网片的产品质量标 准。在这种情况下,本规范参照现行国家军用标准《航空用不锈 钢弹簧丝规范》GJB 3320、国家标准《不锈钢丝》GB/T 4240、
234
国家标准《制绳用钢丝》GB/T 8919、国家标准《不锈钢丝绳》 GB/T 9944及行业标准《航空用钢丝绳》YB/T 5197等的相关 要求及国内外有关的试验资料,制定了其施工质量验收标准,与 现行国家标准《混凝土结构加固设计规范》GB 50367所给出的 性能指标配合使用。这些标准系经组织专家论证和审査后才纳人 本规范的,较为符合国情,并在安全上较有保证,因此,必须在 这类结构加固工程中予以施行,不得再套用国外标准或指南。
另外,在本条中之所以还加上一注,要求设计、施工单位不 得错用术语,主要是因为同直径的钢丝绳与钢绞线,其性能(特 别是粘结能力)有着显著差别。万一因此而进错了材料,将导致 工程出现安全问题。然而,迄今有不少设计人员为了帮助外国企 业推销产品,并逃避现行国家标准《混凝土结构加固设计规范》 GB 50367较严格规定的约束,故意在施工图上将6X7+IWS规 格的钢丝绳也写成钢绞线,为引用国外企业标准做手脚。因此, 应视为很严重的问题,必须责成设计单位纠正。否则一旦发生质 量问题,应由出施H图的设计单位承担法律责任。
本条为强制性条文,必须严格执行。
4.2.8钢筋的外观质量,若存在严重缺陷,将显著影响钢筋的 强度和锚固性能。为了加强对钢筋外观质量的控制,钢筋进场时 和使用前均应对其外观质量进行检查。例如弯折钢筋不得敲直后 作为受力钢筋使用;钢筋表面不应有颗粒状或片状老锈等等。本 条的规定也适用于加工以后较长时间未使用的钢筋半成品的重新 检查。
4.2.9钢板的厚度、型钢的规格尺寸是影响钢构件承载力的主 要因素之一,进场时加以重点抽查显然是必要的;至于钢材的外 观质量,除了应重点检查其端边或断口处有无分层、夹渣等严重 缺陷外,尚应检查其锈蚀情况。因为许多钢材是露天堆放的,易 受风雨和空气中有害介质的侵蚀,致使钢材表面出现点锈和片状 锈蚀,严重者将影响钢构件的受力。因此,应对钢材表面锈蚀的 允许深度作出规定。
235
标准分享网WWW. bzfxw. com免费下载
4.2.10预应力钢筋和撑杆进场后,可能因露夭存放而导致锈 蚀、污染;对锚固件、锚夹具而言,其进场后虽存放于库房,但 若保管不善,也会由于漏雨、受潮等原因而导致锈蚀。故使用前 均应检查其外观质量。
4.2.12钢丝绳涂抹油脂本是制绳的一道工序,但却对钢丝与聚 合物砂浆的粘结起到隔离作用,致使传力失效。因此,订货时必 须在合同中明确规定:严禁涂抹任何油脂或防锈剂。在进场时, 还应逐盘抽样拆散钢丝进行检查,以防误用于结构加固工程上。
4.3焊接材料
4.3.1结构加固用的焊接材料,虽然按照现行国家标准《碳钢 焊条》GB/T 5117和《低合金钢焊条》GB/T 5118规定的检验 规则,其成品焊条应由制造厂质量检验部门按批检验。但由于焊 接材料对焊接质量的影响重大,兼之结构加固的工程量一般较 小,所用焊接材料极易遇到来源不明或混批的情况。因此,进场 时,必须进行见证取样复验。同时,尚应注意检查其外观质量。 若包装已破损或批号及检验号已无法辨认时,不论有无产品合格 证明书及出厂检验报告,均应通过见证取样进行系统的复验。
另外,当设计单位有其他复验要求时,复验项目必须由设计 单位决定,业主、监理和施工单位均无权代庖,并不得以任何理 由拒绝。
本条为强制性条文,必须严格执行.
4.3.2焊条、焊剂保管不当,将容易受潮,不仅影响操作的工 艺性能,而且会对接头的理化性能造成不良影响。因此,对于外 观质量存在着本条所指出的损伤和缺陷的焊接材料,在进场检查 时应当拒收,以免给结构加固工程埋下隐患。
4.4结构胶粘剂
4.4.1在当前结构加固工程,随着结构胶粘剂的用量骤增,其 良莠不齐的问题也愈见严重。进场接收时稍有失误,将直接危及
236
加固结构的安全。为此,在结构胶粘剂的检查与复验工作中实施 本条的规定时,必须注意掌握以下几个要点:
1结构胶粘剂属本规范强制性条文重点管辖的对象,在结 构加固工程中必须得到严格执行。凡品种、级别和安全性能不符 合现行国家标准《混凝土结构加固设计规范》GB 50367及设计 规定的产品,施工单位不得擅自接收。这一监督责任应由监理单 位承担;不仅要防范施工单位调包,还要抵制建设单位非法干预 (参见国务院发布的《建设工程质量管理条例》第十四条)C
2为了杜绝伪劣胶粘剂混人现场的久禁不止现象,很重要 的一点是要求胶粘剂应按工程用量一次进场到位。因为只有在这 一前提下,才能进行有效的检查和见证抽样复验,近来已发现有 不少厂商先以少量好胶应付进场复验,待检验合格后,再将劣质 胶粘剂大量运入现场,供工程实际使用…同时,还应指出的是, 从接收合格品入库至作业班组领用这段时间里,施工单位仍有机 会调包。为此,建议监理单位应在检验合格的固化剂容器上作标 记,以供识别。 ^
3为防止使用假胃的进口产品,尚应检查其中文标志、产 品合格证书、报关单和商检报告等文件。这些文件所标注的批号 应相互一致,否则也极有可能是伪劣产品。若外国产品在我国设 厂生产尚应标注其实际产地及厂名,并提供其安全性能指标与原 产地产品无显著差别的书面保证材料。因为前段时间,已发现有 些在我国各地生产的外国品牌产品,其性能和质量与直接进口产 品相比,有显著下降.例如:在厦门等地查到的某外资企业在广 东生产的结构胶粘剂,比国产结构胶粘剂的质量还要低很多。对 这类产品进场必须严格进行系统检验。凡不合格者应坚决拒收。
本条为强制性条文,必须严格执行。
4.4,4对承重结构用的胶粘剂而言,其耐湿热老化性能之所以 极为重要,一是因为建筑物对胶粘剂的使用年限要求至少在30 年以上,其后期粘结强度必须得到保证;二是因为本规范采用的 湿热老化检验法,其检出劣质固化剂的能力很强,而固化剂的长
237
标准分享网WWW. bzfxw. com免费下载
期性能在很大程度上又决定着胶粘剂长期使用的可靠性。最近一 段时间,由于恶性的价格竟争愈演愈烈,导致了不少厂商纷纷更 换胶粘剂原配方中抗老化性能较好的固化剂成分,并改用诸如 T31之类的固化剂。尽管这类固化剂虽有可能做到不影响胶粘剂 的短期粘结强度,甚至还有所提高,但却无法制止胶粘剂抗环境 老化能力和抗冲击剥离能力的急剧下降。因此,这些劣质的固化 剂很容易在湿热老化试验或抗冲击剥离试验中被检出。结构加固 设计人员对这一点务必给予高度重视,不论结构加固工程的重要 性如何,均应对结构用胶,坚持进行湿热老化检验;对地震区的 结构用胶还应坚持进行抗冲击剥离检验。.同时,考虑到施工现场 的检验不能等待过长时间才能取得结果,因此,对具有湿热老化 性能验证性试验合格证书的胶粘剂,允许使用现场快速检验方法 进行复验,以缩短检验周期。这个复验方法是参照国外有关标准 的快速检验方法,由四川省建筑科学研究院和HUNTSMAN公 司试验室及武汉大学土木工程学院等共同研究制订的。其大量测 试结果表明:对安全性能指标不符合现行国家标准《混凝土结构 加固设计规范》GB 50367的结构胶粘剂具有较强的检出能力。 然而也应指出,该方法对某些配方设计的结构胶而言,仍有可能 在快速复验中误将性能合格的胶粘剂评定为不合格的情况。尽管 并不多见,但总归是个缺陷.为此,当遇到这种情况时,允许改 用本规范附录H的方法,以加倍的试件数量重作一次检验。若 检验合格,仍可判为老化性能满足安全使用要求的胶粘剂。然而 应指出的是此项检验与评定必须以见证取样为先决条件,才能得 到可靠的结论。
4.4.5本条所列的几种情况,都是制售伪劣胶粘剂产品所必须 依赖的手段。许多工程事故的教训总结表明,正是这些"细节" 问题,很容易成为生产厂家、施工单位与国有建设单位的基建管 理人员或监理人员串通作案的掩护。因为即使事后被发现,也很 容易以经验不足、把关不严等为借口而逃脱应承担的法律责任。 为了杜绝这些伪劣产品混人现场,给结构加固工程留下严重的安
238
全隐患,必须采取有效措施,强制执行本条的规定,才能对生产 厂家、施工单位、监理单位和国有建设单位基建管理人员的行为 进行约束。 ’
另外,需要说明的是,之所以不允许使用"植筋-粘钢两用 胶%是因为植筋胶的价格仅为粘钢胶的70%〜75%,而且在性 能要求上,也较粘钢胶低。在这种情况下,厂家显然不可能按粘 钢胶的标准生产"两用胶",而是让粘钢胶也使用植筋胶的配方。 这对粘钢而言•势必会留下安全隐患。况且这完全是一种欺诈行 为C因此,必须予以严禁使用.
本条为强制性条文•必须严格执行。
4.4.6结构胶粘剂工艺性能的优劣,直接关系到其粘结性能的 用靠性。因此,本条对结构胶粘剂的重要工艺性能指标作出了具 体规定。从表4. 4. 6所列项目可知:大多数均为本专业技术人员 所熟悉,无需再加以说明。其中只有"触变指数"一项略为生 疏,需要作一些说明。为此,应先说明什么是胶粘剂的触变性。 所谓的触变性,是指胶液在一定剪切速率作用下,其剪应力随时 间延长而减小的特性。在胶粘工艺上具体表现为:搅动下,胶液 黏度迅速下降,便于涂刷;停止时,胶液黏度立即增大,不会随 意流淌。这一特性对粘钢、粘贴纤维复合材的预成型板和植筋都 很重要,因为既可减轻劳动强度,又能保证涂刷的均匀性和胶缝 厚度的可控性,故有必要检验涂刷型和锚固型结构胶粘剂的触变 性。为此,必须引入触变性的表征量--触变指数人。该指数的 测定方法是在规定的温度(一般为23C)下,采用两个相差悬 殊的剪切速率,分别测定一种胶粘剂的表观黏度功和功,且令 %>%,贝[I L = %/为。当以It的测值来描述该胶粘剂的触变性 大小时,可以从不同配方胶液的表现情况中看出,L值大的胶 液,其触变性也大,反之亦然。这里应指出的是:胶液的触变指 数并非越大越好。因为过大的触变指数,意味着该胶液的初始黏 度很大。虽然在涂刷过程中,其黏度会很快下降,但涂刷一停 止,其所下降的黏度会立即升高。从而使胶液没有时间让气泡逃
239
标准分享网WWW. bzfxw. com免费下载
逸,以致将因脱泡性变差而影响到胶粘剂的粘结强度。至于粘贴 纤维织物的胶粘剂,虽也要求便于涂刷,但同时还要求胶液对纤 维具有良好的浸润、渗透性。这一性质显然与触变性相左。但试 验表明:可以通过协调,使两项指标均处于可以接受的范围内。 表4∙ 4. 6中的初黏度和触变指数的指标就是按协调结果,并考虑 到经济因素后所确定的可接受的标准。
4.4.7封闭裂缝一般使用无碱玻璃纤维或碳纤维布(若结构加 固后的使用期不长,也可使用无纺布),粘贴这些材料所用的胶 粘剂,主要是要求它具有较好的湿润性和渗透性,而对粘结性能 只要求能达到B级胶即可。因此,按纤维复合材使用的B级胶 性能标准进行检验较为合适。
4.4.8凡遇到本条所指出的外观质量状况,可以肯定该批胶粘 剂的粘结能力已严重下降,且绝对不可能是合格品。故不容许在 结构加固工程中使用。其实,这些问题在现场不难发现。关键在 于监理人员必须忠于自己职守,不能同时监理几个工程,经常不 在现场,以致失去应有的监理作用。这一点应引起业主和设计单 位的关注。必要时,应对监理人员建立考勤制度。
4.5纤维材料
4.5.1纤维材料在进入市场前,虽然多数已委托独立检验机构 作过安全性能的验证性试验或安全性鉴定,但这只能作为设计病 业主单位选材的依据,而不能用以取代进场检查和复验。因为从 材料出厂至进入施工现场,通常要经过市场的几个环节。这也就 意味着这种昂贵的材料具有较大的被调包的风险,故必须在进场 时进行一系列检查和见证抽样复验。同时,为了使检查与复验能 够充分反映该批材料的实际性能和质量,还必须坚持要求碳纤维 等重要加固产品,应按工程用量一次进场到位。这不仅可使抽样 最具代表性,而且更重要的是:可以防范施工单位或材料供应商 的调包6因为前一段时间,曾多次发现材料供应商与施工单位串 通,或施工单位与监理人员串通,先以少量优质纤维材料送检,
240
待检验通过后再大量运进伪劣产品,供实际工程使用,以致埋下 了严重的安全隐恵。据此,为了防范这些涉及安全问题的继续发 生,业主除了应严格选择诚信可靠、无不良记录的监理单位外, 尚应要求监理人员严肃对待本条作出的"一次进场到位"的强制 性规定。
•在一次进场到位的前提下,本规范规定了 3项必须见证取样 复睑的项目,并且还为第3项的复验,配备了检验方法(见附录 N)Q因为前一段时间的抽查情况表明,目前厂家利用设计、检 验单位对碳纤维K数不熟悉,大量地以15K、18K、24K、 36K,甚至48K的碳纤维来冒充12K,致使粘结质量严重下降。 为了扭转这一影响安全的局面,本规范为设计和检验单位提供了 简易而准确的识别方法,以免担当对安全失察的责任。
另外,应指出的是:本条规定的复验项目虽有五项,但由于 前三项均属材料受拉性能的指标,而且是在同一试件的加荷过程 中先后读取其测值。因此,增加不了多少试验工作量,但却能收 到更准确判断材料性能的效果.
本条为强制性条文,必须严格执行。
4.5.2近来有许多不法厂商与施工单位勾结•甚至串通国有建 设单位基建管理人员及监理人员共同作案,以低性能、低质量、 低价位的玄武岩纤维和大丝束碳纤维冒充优质的聚丙烯Je基小丝 束碳纤维:以不耐碱的A、C玻璃纤维冒充E玻璃纤维*且不惜 以工程安全为代价,将这些伪劣材料滥用于结构加固工程上,以 获得丰厚的非法利润。这种行径显然已构成犯罪行为,然而迄今 之所以尚在蔓延,其主要原因之一是缺乏有效的监督机制。这一 点必须引起有关管理部门关注。
本条文为强制性条文,必须严格执行。
4.5.3~4,5.5碳纤维和高强玻璃纤维作为承重结构的加固材 料,其外观质量的严重缺陷,通常会影响结构、构件的受力性能 或耐久性能。因此,应作为主控项目之一进行检查或检验。对已 经出现的严重缺陷,应由施工单位提出技术处理方案,经设计和
241
标准分享网WWW. bzfxw. com免费下载
监理单位认可后进行处理,并重新检查验收。至于外观质量的一 般缺陷,虽不会显著影响结构、构件的受力性能,但毕竟影响观 感,况且还是进场检查不严所造成的,很难以正当理由去说服业 主单位接受有瑕疵的材料。故对已出现的一般缺陷,也应责成施 工单位进行处理,并重新检查验收。
4.5.6过大的尺寸偏差可能影响结构、构件的受力性能。因此, 本条根据结构加固工程的实践经验,经计算分析后给出了允许偏 差值。试用表明,其控制的效果较好,能够保证施工质量符合结 构加固后的安全使用要求。
4.6水泥砂浆原材料
4.6.1混凝土结构加固用的普通水泥砂浆,虽然多是用作加固 材料表面的防护层,但由于近几年来在不少砌体结构的抗震加固 工程中也用作外加钢筋网的面层,故有必要对水泥的强度等级和 施工质量提出要求,这一点必须引起施工人员和监理人员的 重视。
4.6.2、4.6.3为保证砂浆的强度和施工质量达到设计要求,首 先必须控制原材料的质量。因此,提出了水泥及其外加剂质量应 符合现行国家标准《砌体工程施工质量验收规范》GB 50203和 本规范的规定。
4.7聚合物砂浆原材料
4.7.1承重结构使用的聚合物砂浆(包括掺有聚合物的高性能 复合砂浆),其性能与质量的要求与结构胶粘剂不相上下。因此, 对它的进场检查与复验,也应严格对待,不能有丝毫的含糊。另 外,应着重指出的是:目前聚合物砂浆市场极其混乱,市售的形 形色色聚合物砂浆,.其粘结能力很差,耐老化性能更差。从暗访 抽样的结果来看,不仅其主成分多是乙烯一醋酸共聚物(只能用 于非承重构件),而且连这么差的主成分,其含量也很低,完全 不符合承重结构加固的安全使用要求。大多数工程不到半年便普
242
遍出现裂缝。为此,建议设计、施工单位应根据现行国家标准 《混凝土结构加固设计规范》GB 50367规定的安全性能指标向技 术实力强的厂家直接定制。这样在近期内不仅可以避免受不法厂 家和经销商欺诈之害,而且还有助于促使市售产品提高其质量, 加快走上正确的轨道。
本条为强制性条文,必须严格执行。
4.7.2当聚合物砂浆用于镀锌钢丝绳网片外加层加固工程时, 必须在砂浆中掺加阻锈剂,以提高小直径钢丝的抗锈能力。因为 不论锌层多厚,由于其力学性能与钢丝相差悬殊,在受拉应力作 用下,锌层均易断裂。因此,如何选择优质无害的阻锈剂,便显 得十分重要。目前市售的阻锈剂以有害的亚硝酸盐类居多,制售 者也深知其害,常改名为复合亚硝酸挂类阻锈剂,以混淆视听。 故应提请设计单位注意,不能随意选用阻锈剂,而应在了解其阻 锈作用的同时,考察其是否会产生副作用,如产生附加阳极,或 不利于环保等等。否则在使用的后期,极有可能重新生锈。本条 所指出的禁用品种并不全面,只能起到提示作用。因此,要求厂 家在其产品说明书上应给出"本阻锈剂不含有害成分"的标示, 以作为日后追究安全责任的依据。
4.7.3我国迄今尚未制定承重构件外加面层加固专用的砂浆配 合比设计规程。因此,只能按产品使用说明书提供的配合比釆 用。对重要工程还应通过试配确认其使用效果。
4.8裂缝修补用注浆料
4.8.1本条关于裂缝修补剂进场检查与复验的规定,主要应关 注的是有恢复截面整体性要求的混凝土结构、构件的裂缝修复。 此时,不仅需要通过安全性能复验,确定其粘结能力是否能符合 现行国家标准《混凝土结构加固设计规范》GB 50367 - 2006表 4, 6. 2的要求,而且还需要按本规范表4. 4. 6或表4.8.1的要求 进行工艺性能复验,以考察其在产品使用说明书所规定的压力和 时间内,是否具有快速、顺畅地充填裂缝空腔的能力。因为工艺
243
标准分享网WWW. bzfxw. com免费下载
性能倘若欠佳,即使安全性能再好也要受到严重影响。
4.8.2封闭裂缝用的胶粘剂,其复验结果之所以要求能达到纤 维复合材用胶的B级胶水平:一是因为封闭裂缝用的覆盖材料, 多为玻璃纤维和碳纤维,其材性适宜于使用这类胶粘剂;二是因 为在现场粘贴条件下进行封闭,要保证其耐久性满足设计要求并 不容易。很多试验表明:至少要用B级胶,才不致在使用的后 期发生剥离破坏,如果用的是粘结能力低于B级胶的劣质胶粘 剂,将很快随着时间推移而变脆,致使胶层很容易失去抗剥离的 粘结能力。
4. 8. 4参见本规范第4.1. 5条的条文说明。
4.9混凝土用结构界面胶(剂)
4.9.2目前市场上充斥着形形色色杂牌的界面剂,其性能和质 量之低,甚至到了反而起隔离剂作用的程度。为此,本规范对一 般界面剂与结构用界面胶(剂)作了区分,并给出了结构界面胶 (剂)见证抽样复验的指标和要求。然而仍需指出的是:市场情 况极为复杂,即使有了这些要求,仍然会遇到很多执行的阻力。 为了扭转这种局面,业主必须谨慎挑选信誉良好的监理单位,才 有可能期望其所派遣的监理人员能负起责任,既做到真正的见证 抽样,又会亲临试验室观察检验机构的试验,并独立做好原始记 录,以备查验之用。另外,应指出的是前段时间问题多出在国有 企业工程上。因此,应严格实施国务院发布的《建设工程质量管 理条例》,对国有建设单位的基建管理人员进行严格约束。只有 这样,才能确保结构加固工程的安全和质量。
本条为强制性条文,必须严格执行。
4.10结构加固用水泥基灌浆料
主控项目
4. 10. 1. 4. 10.2水泥基灌浆料过去主要用于地脚螺栓的固定、
244
设备基础或钢结构柱脚底板的二次灌浆。近几年来,由于混凝土 构件增大截面加固法在钢筋密集部位浇筑混凝土较为费工,因而 有些施工单位开始以水泥基灌浆料替代普通混凝土用于增大截面 工程上。这一做法虽然取得一定效果,但随着水泥基灌浆料用量 日益增多,鱼龙混杂的灌眼料质量所造成的工程安全问题也越来 越令人担忧。为此,本规范将水泥基灌浆料划分为两类:一是结 构加固用水泥基灌浆料;另一是一般水泥基灌浆料。其区别在于 后者仅可用于非承重结构的用途。基于以上情况,本规范制定了 结构加固用灌浆料的安全性能和工艺性能标准(表4. 10.1)。表 中各项指标和要求,系在编制组成员单位试用不同品牌灌浆料取 得的有关数据基础上,参照国内外有关标准和指南的相应要求制 定的。试点工程经验表明:采用符合表4.10∙ 1安全性能符合要 求的灌浆料与细石混凝土配成的混合料,較为适应混凝土增大截 面加固工程的使用要求,亦即能显著减小单独使用灌浆料容易出 现的裂缝问题。另外,本规范编制组也注意到目前关于灌浆料的 国标、行标有好几个,且规定多从其编制组所在行业的用途出 发,但又随意扩大其适用范围,以致造成了不少混乱;然而这些 管理上的问题也不是短期内所能解决的.因此,本规范作出了对 建筑结构必须执行本规范的规定。这样,至少能保证建筑工程领 域中使用灌浆料的安全。
4.10.3参见本规范4.1.5条的条文说明。
4.11锚 栓
4.11.1在混凝土结构后锚固连接工程中,锚栓的可靠性至关重 要。因此,应对其性能和质量进行严格的检查和复验:尤其是对 国产锚栓更应从严要求。因为目前国内生产的锚栓,几乎都是假 冒的后扩底锚栓和劣质化学锚栓,其质量状况十分令人担忧。设 计和业主单位在选择锚栓产品时,应非常慎重,绝不可利用当前 恶性竞争之风一味压价,以致所得到的全是伪劣产品,其后果必 然是给工程造成难以挽回的损失。
245
标准分享网WWW. bzfxw. com免费下载
本条为强制性条文,必须严格执行。
4. IL 2锚栓所配的钢锚板,一般是根据设计要求在工厂定制。 这类产品进场时均具备产品合格证和出厂检验报告。这两个文件 可供进场接收时检查使用。只有当设计有复验要求时,才需要在 钢锚板上取样,进行力学性能和化学成分复验。
4.11.3. 4. IL 4这两条是对锚栓及其锚板外观质量的要求,外 观质量有严重缺陷和一般缺陷之分。凡条文中不允许出现的缺 陷,均应视为影响其受力性能的严重缺陷而予以拒收。
246
5混凝土构件增大截面工程
5.1 一般规定
5. Ll本条明确了本章的适用范围,但需要说明的是:对仅在 受压区加厚的受弯构件而言,由于其设计、施工方法与叠合式受 弯构件甚为相近,因面后者的经验也往往被混凝土构件增大截面 加固工程所借鉴。这从原则上说虽是适宜的,然而应指出的是: 混凝土增大截面有别于叠合构件I前者是二次设计、二次施工. 而后者是一次设计、两次施工。因此,设计人员对前者的计算和 构造,必然会作出一些专门考虑,而这些考虑需要通过正确的施 工才能得到正确的体现。为此,在技术交底时,施工单位应着重 了解设计人员在这方面有哪些专门要求,以便在做施工技术方案 时考虑周全。
5.L 2混凝土构件增大截面工程的施工程序与一般现浇混凝土 相比增加了清理、修整原结构、构件,原钢筋与新增钢筋的连接 以及原构件界面处理等工序。这些工序对保证新增截面与原截面 的共同工作至关重要,但对习惯于新建工程的施工人员来说,却 最容易忽视。因此,在施工技术方案的制订上,应着重强调对这 三个工序的监督和施工质量检查。
5.1.3考虑到本条所列的5个项目,在混凝土浇筑后无法检查 其施工质量,故必须在浇筑混凝土前,按隐蔽工程的要求进行检 查、验收。
5.1.4为了避免国家现行标准规范之间的不必要重复与矛盾, 本规范明确规定混凝土构件新增截面的施工,应分别按现行国家 标准《混凝土结构工程施工质量验收规范》GB 50204、中国工 程建设标准化协会标准《喷射混凝土加固技术规程》CECSieu 《自密实混凝土应用技术规程》CECS 203,以及本规范第21章
247
标准分享网WWW. bzfxw. com免费下载
关于结构加固用灌浆料的施工规定执行。
S.2界面处理
5.2.1界面处理的质量直接关系到增大截面部分与原构件之间 的界面能否结合良好,加固后的结构、构件是否具有可靠的共同 工作性能。故在结构加固工程中不能有任何疏漏和闪失。为此, 本条就界面处理的最基本一环--原构件表面的糙化(打毛)处 理工艺作出具体规定。同时,应指出的是:不论是否采用结构界 面胶(剂),均不得省去本工序。
5.2.2本条需要说明的是,对板类构件,由于仅靠打毛及涂刷 界面胶(剂),在很多情况下尚不足以保证新旧混凝土之间具有 足够的抗剪粘结强度,因此,尚需锚入一定数量的剪切销钉。本 规范根据各地施工总结的经验,给出了剪切销钉的直径、埋深以 及间距和边距的最低要求。
5. 2.3原构件露筋(包括混凝土已有纵向裂缝处的钢筋)部分, 应进行除锈和防锈处理。对锈蚀严重的钢筋,尚应会同设计单位 进行补筋。至于除锈、补筋后是否还需进行防锈(阻锈)处理, 可视实际情况而定。若设计单位认为有必要在补浇混凝土中掺加 阻锈剂,则应执行现行国家标准《混凝土结构加固设计规范》 GB 50367关于不得在新浇混凝土中采用亚硝酸盐类阻锈剂的 规定。
5.2.4这是因为原构件表面经机械打毛或凿槽后,虽曾经过一 次清洗,但若施工作业人员稍有疏忽,仍有可能遗留一些影响新 旧混凝土粘结强度的局部缺陷、损伤或污垢;倘若表面处理后未 立即进入涂刷界面胶(剂)的工序,也可能出现新的污垢或其他 问题。因此,在喷涂界面剂前尚应进行一次检查,以免给工程留 下隐患。
5.3新增截面施工
5.3.1新增受力钢筋、箍筋以及各种锚固件、预埋件等与原构
248
件的正确连接与安装,是确保新增截面与原截面安全而可靠地协 同工作的最重要一环。施工时,必须严格遵守现行国家标准《混 凝土结构加固设计规范》GB 50367和《混凝土结构工程施工质 量验收规范》GB 50204的规定和要求,才能使这种加固方法获 得成功。例如:若不控制新增受力钢筋与原构件受力钢筋的净距 就难以保证新浇混凝土的密实性;若不控制连接短筋的中距就很 难使新增钢筋能可靠地与原钢筋协同工作等等。又如:新增截面 采用U形箍筋时,U形箍与原构件的连接有两种方法:一种是 U形箍与原箍筋焊接;另一种是将箍筋植入原构件.现行设计 规范之所以推荐前者,是因为焊接最为可靠;只有当构造条件受 限制时,才允许采用植筋方式进行间接的连接。
5.3.2本条针对建筑结构加固工程一般工程量不大的特点,规 定了用于检查结构构件新增截面混凝土强度的试块取样与留置要 求。本条与现行国家标准《混凝土结构工程施工质量验收规范》 GB 50204-2002第7. 4.1条虽然均为强制性条文,但本条的规 定略为严格。这对施工条件较差的结构加固工程来说,还是有必 要加以从严控制的。
本条为强制性条文,必须严格执行。
5.3.3新增混凝土的强度等级应通过留置标准养护试块和同条 件养护试块的试验结果进行评定;只有在遇到特殊情况时,才允 许对漏取试块、丢失试块或对新增混凝土强度试验报告有怀疑等 情况,采用现场非破损检测方法进行推定,这里需要指出的是, 取芯法虽是首选的检测方法,但在结构加固工程中,有可能遇到 新增截面厚度较小的情况,取芯可能有困难,此时,.可考虑采用 回弹法或超声回弹法进行检测。
5.3.4养护条件对新增混凝土强度的增长有着重要的影响。在 结构加固施工过程中,应根据原材料品种、配合比、浇筑部位和 季节等实际情况,制订合理的施工技术方案,采取有效的养护措 施,以保证新增混凝土强度正常增长。
249
标准分享网WWW. bzfxw. com免费下载
5.4施工质量检验
5.4.1对新增混凝土浇筑质量的检验,除应进行试块强度检测 外,还应通过检查其外观缺陷及探测其内部缺陷,并对所查出的 缺陷性质及其严重程度进行评定,才能得到较为全面的检验结 果。为此,本条给出了确定现浇混凝土严重缺陷和一般缺陷的原 则。至于各种缺陷的数量限制可由设计单位根据结构加固工程的 重要性和实际情况作出具体规定,由监理单位监督施工单位实 施。在具体实施中,如何界定施工质量缺陷对结构性能和使用功 能等的影响程度,应由监理单位会同设计、施工单位事前共同确 定并形成书面文件,以便于现场检验与验收使用C
另外,考虑到过大的尺寸偏差同样会影响结构构件受力性能 和使用功能,因此,应由设计单位在施工图上对重要部位尺寸所 允许的偏差作出规定,以作为工程验收的依据。
5.4.2混凝土浇筑质量的严重缺陷通常会影响到结构的性能、 使用功能和耐久性。因此规定:现浇混凝土结构的外观质量不应 有严重缺陷。对已经出现的严重缺陷,应由施工单位根据缺陷的 具体情况提出技术处理方案,经监理(业主)和设计单位共同认 可后进行处理,并重新检查验收。
本条为强制性条文,必须严格执行。
5.4.3本条主要为新旧混凝土界面粘合不良(分离)的检测提 供评定依据。
5.4.4考虑到目前国产界面剂以低档产品居多,质量不甚稳定, 兼之现行产品标准的要求又很低,伪劣产品甚易通过。在这种情 况下,不仅起不到增强粘结能力的作用,相反的还会起到不应有 的隔离作用。因此,在结构加固工程中,不少设计单位会对新旧 混凝土界面粘结强度能否达标感到心中无数,从而要求进行复 验。为此,制定本条文为复验提供依据。
5.4.5钢筋的混凝土保护层厚度关系到结构、构件的承载力、 耐久性能和防火性能,必须作为一项主控项目进行检验。其检验
250
A∕∖
方法及合格评定标准应按现行国家标准《混凝土结构工程施工质 量验收规范》GB 50204的规定执行。但应指出的是:该规范的 要求已较低,各地建筑工程质量监督机构不应再擅自予以放宽。
5.4.6外观质量的一般缺陷,通常不致影响结构、构件性能和 使用功能,但很难要求业主接受。因此,对查出的一般缺陷,也 应及时处理,并重新检查验收。
251
标准分享网WWW. bzfxw. com免费下载
6局部置换混凝土工程
6.1 一般规定
6.1.1在土建工程中,局部置换混凝土工法的应用十分广泛, 它既可用于新建工程混凝土质量不合格的返修处理,也可用于已 有混凝土结构受冻害、介质腐蚀、火灾烧损以及地震、强风和人 为破坏后的修复。因此,本条仅对这一工法的适用范围作了概略 性规定,未刻意强调其所针对的加固对象。
6.1.2置换混凝土的施工程序,原则上应符合本框图的规定。 但在实施时,应结合工程的实际情况进行必要的调整,并由施工 单位提出具体的施工技术方案,经设计和监理单位认可后组织 实施。
6.1.3本条对混凝土浇筑前应按隐蔽工程要求进行检查和验收 的项目作了具体规定。因为这三个项目不仅涉及结构加固的安全 性和耐久性,而且若不及时检查、験枚,将造成不应有的返工。
6.2卸载的实时控制
6. 2.1〜6.2.5这5条规定对保证局部置换混凝土工程的施工安 全虽然十分重要,但在复杂结构体系中如何具体实施还有一定难 度。因此,在遇到这种情况时,施工单位宜事先会同有资质的检 测机构共同制订详细的施工技术方案和安全监控方案。必要时, 还应邀请该机构直接参与卸载全过程的监控工作。因为其实时控 制手段较为完备,监控的经验也较丰富,容易发现卸载过程中出 现的问题。
6.3混凝土局部剔除及界面处理
6.3.1剔除原构件的混凝土,不仅劳动强度大,而且易伤及原
252
钢筋和无需剔除的混凝土部分,其后果是给加固工程留下安全隐 患。为此,应按设计规定的方法、步骤和要求进行剔除。同时, 还应注意:在剔除作业达到缺陷边缘后,还应再向外清除不小于 50mm长的混凝土;对缺陷范围较小的构件,宜从缺陷中心向四 周逐步剔除,其剔除长度和宽度均不应小于200mm。置换混凝 土的顶面,•其外口应略高于内口,倾角不大于10\剔除过程中 不得损伤或截断原纵向受力钢筋。如果需要局部截断箍筋,应在 缺陷清理完毕后立即补焊箍筋。
6.3.2. 6.3.3参见本规范第4.9节及第5. 2节的条文说明。
6.4置换混凝土施工
6.4.1置换混凝土工程遇到补配钢筋或箍筋的情况虽不多见, 但有时还是会遇到,特别是当剔除混凝土伤及钢筋时,就必须对 原钢筋进行补强或补配。在这种情况下,焊接作业必不可少Q尽 管煙接工作量一般不会很大,但焊接过程的质量控制同样应得到 保证。为此,制定本条文予以明确。
6.4.2采用普通混凝土置换时,其施工过程的质量控制,应 符合本规范第5. 3.2条及第5.3. 3条的规定,并应符合现行国 家标准《混凝土结构工程施工质量验收规范》GB 50204的要 求。但需注意的是:在混凝土置换范围较小时,应在模板外侧 进行辅助振动,以保证混凝土的密实;另外,尚应在混凝土置 换面的上方设置漏斗口,使得新浇混凝土与原构件混凝土之间 不致有空隙。
6.4.4本条规定的模板拆除时间与新建工程之所以有所区别, 是因为置换的混凝土存在着与旧混凝土粘结的早期强度发展慢的 问题。试验表明,若拆模不考虑这个问题,较易出现安全和质量 问题,而且所出的问题与构件跨度无关。因此,作出了拆模吋的 混凝土强度应达到设计强度等级的规定。
6.4.5参见本规范第5. 3. 4条的条文说明。
253
标准分享网WWW. bzfxw. com免费下载
6.5施工质♦检验
6.5.1同本规范第5∙ 4. 2条的条文说明,但需要强调的是:在 置换工程中,由于工作面小,浇筑难度大,要比新增截面工程更 容易遇到现浇混凝土外观质量不良的情况。因此,应注意把严浇 筑过程这一工序的关口,不能等出现了问题再采取措施补救。
本条为强制性条文,必须严格执行。
6∙5.2~6.5.4 分别参见本规范第5. 4∙ 3条、第5∙ 4.4条及第 5. 4. 5条的条文说明。
6.5.5、6.5.6分别参见现行国家标准《混凝土结构工程施工质 量验收规范》GB 50204相应条文的条文说明。
254
7混凝土构件绕丝工程
7.1 一般规定
7.1.1本条除了明确本章的适用范围外,还强调了绕丝用的钢 丝应优先选用钢厂生产的退火钢丝(本规范第4. 2.5条),只有 在它的供应有困难时,才允许采用低碳冷拔钢丝进行退火处理。 因为工艺试验表明,自行退火的钢丝,其柔性不均匀,在使用效 果上不如工厂生产的退火钢丝。
7,1.2本条规定的绕丝工程施工程序,未列入钢丝退火和钢件 (如钢楔等)加工两个分项。这是因为一般将退火钢丝和钢楔视 为场外加工的产品,可以事先订货。因此只有进场验收工作,而 无现场加工作业,可不列为施工的一个程序。
7.1.3考虑到本条所列的4个项目,在混凝土面层浇筑后无法 检查其施工质量,故必须在浇筑混凝土前,按隐蔽工程的要求进 行检查、验收°
7.2界面处理
7.2.1对绕丝的受力性能和绕丝工艺要求而言,25mm的圆化 半径乃是最低的要求。若原构件的保护层较厚,可考虑采用 30mm〜40mm的圆化半径,以提高其约束的效果。
7.2.2、7.2.3分别参见本规范第5. 2. 2条和第5. 2. 4条的条文 说明.
7.3绕丝施工
7.3.1、7.3.2在原构件钢筋上通过焊接固定钢丝及构造钢筋 时,之所以应采用间歇点焊法,主要是为了保护原钢筋不致因焊 接温度过高而降低其承载力,甚至危及结构的安全。
255
标准分享网WWW. bzfxw. com免费下载
7.3∙3混凝土面层的施工从浇筑质量和受力性能来说,喷射混 凝土优于人工浇筑混凝土,但由于一般施工人员很难控制喷射的 回弹率,致使回弹所造成的废料量居高不下。因此,本规范将两 种施工方法并列,任由施工单位进行选择。
7.3.4绕丝的间距决定着这种加固方法对原构件混凝土的约束 能力。因此,必须严格执行设计规定。绕丝间距的允许偏差及其 抽查数量系按工程经验确定。
7.3.5分别参见本规范所引用的两本标准的有关条文及其说明。 7.3.6参见本规范第5. 3. 4条的条文说明。
7.4施工质量检验
7∙ 4. 2绕丝法混凝土面层的密实性远不如新建工程现浇的混凝 土。因此,需要较厚的保护层才能防止钢丝锈蚀。为此,参照国 外使用退火钢丝指南的要求,取最小保护层厚度为30mm,作为 对设计要求的补充。
另外,对绕丝构件而言,钢丝保护层厚度的正偏差,对其工 作无甚影响。因此,根据工程经验,仅制定了正偏差的允许值。 7.4.4绕丝构件的混凝土面层厚度是根据构造需要,由设计单 位自行确定C从现有的工程情况来看,一般都不会很厚。因此, 为了保证施工质量,作出了不允许有负偏差的规定。
至于对混凝土面层平整度的要求,基本上是根据编制组对现 有加固工程测量的统计结果,以无碍观瞻为原则,对检测的平均 值稍作调整后确定。
256
8混凝土构件外加预应力工程
8.1 一般规定
8.1.1混凝土构件施加预应力的方法很多。本章仅涉及已有结 构使用的两种方法,且针对性很强,故执行时不应随意扩大其适 用范围。
8.1.2外加预应力工程施工方法的选择,既要考虑结构加固的 具体条件,也要考虑工艺条件。当工程要求的张拉力较大时,宜 采用机张法施工;当工程要求的张拉力小于150kN,且可用 HPB235级(原I级)钢筋制作预应力拉杆时,宜采用人工横向 张拉法施工。
8∙ L 3本条规定了混凝土构件外加预应力工程的一般施工程序。 必要时,可根据现场条件和工程的实际情况,对本条规定的施工 程序进行调整或简化,使之更方便作业。
8.1.4、8.1.5这是为确保外加预应力工程的质量和安全所必需 提出的基本要求,施工和监理单位应给予充分重视和严格执行。
8.1.6在浇筑防护面层的水泥砂浆或细石混凝土前,对本条规 定的项目,应逐项按隐蔽工程的要求进行验收。其目的是为了避 免预应力拉杆制作、安装和张拉质量在面层覆盖后无法检查。况 且这4个项目,所反映的是外加预应力工程施工的综合质量,因 此,严格执行本条规定对这一加固方法而言至关重要。
8∙2制作与安装
8.2.1预应力拉杆采用的钢筋或型钢,在制作和安装时,之所 以需要复验其品种、规格和级别,且需要在安装时复验其数量和 位置,是基于两个理由:一是因为其制作和安装的质量对保证混 . 凝土结构构件加固后的受力性能和承载力十分重妻£二是因为制
257
标准分享网WWW. bzfxw. com免费下载
作和安装分属两个工种,任何一方的过失均将留下严重的隐患, 或造成工程返修。因此,必须各负其责,各自独立地进行复查。
本条为强制性条文,必须严格执行。
8.2.2预应力杆件锚固区的受力部件和传力装置的制作质量也 同等重要,同样需要复查。但由于这些部件和装置,一般均在场 外订制,即使在现场加工,也是在车间进行。因此,制作质量较 有保证,虽须复查,但可不列为强制性条文。至于其安装作业, 由于它与预应力拉杆需要相互配套,不可能只检查拉杆,而不检 查其锚固区的部件和装置。因此,其安装质量同样必须达到设计 要求。在这种情况下,虽未列为强制性条文,但已成为与上条密 切相关的内容,也应得到同样严格的执行。
8.2.3作为预应力杆件的钢筋,若受到电火花损伤,容易在张 拉时发生脆断,故应避免。与此同时,还应避免将预应力钢筋作 为电焊的一极使用,因为它也将损害钢筋,故规定必须更换受损 伤的预应力钢筋。
8.2.4、8.2.5参阅现行国家标准《混凝土结构工程施工质量验 收规范》GB 50204 - 2002第6. 3.4条及第6. 3. 5条的条文说明。
8.2.6本条对重要传力部件安装位置规定的允许偏差,系参照 现行有关标准对预埋件安装的允许偏差确定的。在重要结构加固 工程中,若设计认为此允许偏差尚需加严,可补充对承压板和挡 板等传力装置水平高差的要求。例如;取水平高差的允许值 为+^ mm等。
8.3张拉施工
8.3.1制定本条的理由可参阅现行国家标准《混凝土结构加固 设计规范》GB 50367 - 2006第7.1. 3条的条文说明。至于"基 本"这一定语在施工中如何执行的问题,本规范编制组曾收集了 国内外工程实例和有关文献进行统计分析。其结果表明:采用外 加预应力法加固的混凝土结构,其原构件的混凝土强度等级,尽 管从C13〜C48都有过工程实例,但以C23〜C28居多。同时,
258
与这些工程实例有关的文献中,也多认为原构件的混凝土强度等 级不宜比现行设计规范对新建工程的要求低过多。因为原构件混 凝土强度过低,总是要从多方面影响构件的加固效果的。基于以 上认识和观点,对本条中的"基本符合"一词的执行,可理解 为:原构件的混凝土强度等级,可放宽一个等级,即不低于C25 级I对使用旧标号配制的原构件混凝土可理解为不低于250号 (相当于C23级)。
8.3.2采用机张法张拉,其作业与新建工程无显著差别,故可 按现行国家标准《混凝土结构工程施工质量验收规范》 GB 50204的要求执行,但由于结构加固工程的工作条件不如新 建工程,稍有疏忽和不慎,容易影响施工质量和安全。因此,还 应针对有必要强调的事项提出明确的要求。
8. X 3本条系参照原苏联指南性文件《关于采用预应力方法补 强混凝土结构构件的建议》及我国国内施工经验制定的。其中, 为解决横向张拉量△出的起点问题而推荐的控制方法,较为容 易掌握,且具有实用价值,故可供施工人员参照使用。
8∙3.4本条对预应力撑杆的横向张拉法的施工要求作了较详细 的规定。应指出的是:国家标准《混凝土结构加固设计规范》 GB 50367 - 2006第7. 2. 7条之所以将撑杆肢长度中点处的横向 弯折量AH取为AH+ (3mm〜5mm),是有意使撑杆收紧变直 后处于略有预压力的状态,以保证撑杆的正常工作。
8.4施工质量检验
8.4∙I预应力拉杆张拉锚固后,实际建立的预应力值,对于水 平拉杆来说,一般均可用应力测定仪器测得。对于下撑式拉杆, 若按常规检测有困难,可在其水平段进行检测.因为在这个部位 较易进行作业,且所测得的应力也较准确,但可能需用应变仪进 行测定。
8.4.2、8.4.3参阅现行国家标准《混凝土结构工程施工质量验 收规范》GB 50204相应条文的说明。
259
标准分享网WWW. bzfxw. com免费下载
9外粘或外包型钢工程
9.1 -般规定
9.1.1本条明确了本章的规定,既适用于外粘型钢工程(旧称 湿式外包钢),也可用于无粘结外包型钢(也称干式外包钢)工 程。因为这两种加固方法的区别,仅在于其承载力计算的假定不 同,若就施工过程控制和施工质量验收而言,除了胶粘工序外, 其他工序均基本相同。在这种情况下,只要干式外包钢的钢骨架 与原柱所受外力系按各自刚度比例分配,且钢骨架系按现行国家 标准《钢结构设计规范》GB 50017进行设计、计算,则干式外 包钢的施工过程控制和施工质量验收同样可以按本规范的规定 执行。
9∙ 1.2本条规定了外粘型钢及干式外包钢工程的一般施工程序, 执行时可根据实际情况(如型钢骨架是场外制作,还是现场制作 等〉及现场条件予以调整或简化。另外,对干式外包钢工程,若 不采用压力注浆法压入水泥基注浆料充填骨架与原构件混凝土之 间的缝隙,则应将注浆程序删去,而改为在骨架安装的同时填塞 环氧胶泥。
9.2型钢骨架制作
9.2.1考虑到外粘型钢或干式外包钢加固工程的特点,施工单 位多在现场比着原构件尺寸和不甚规则的外形,配制钢骨架。因 为这样制作的骨架比较容易安装,也省去运输的麻烦。不过近年 来,有些施工单位因考虑到加固工程量小,现场制作工种不配 套,改而采取了先在场外加工成半成品,再运至现场拼装,在卡 具卡紧的情况下施焊的做法,其效果也很好。
9.2.2-9.2.4钢骨架与被加固混凝土构件不论是共同承载,还
260
是按刚度分配承受部分荷载,其所起的作用与一般钢结构无甚实 质性差别。因此,其加工、制作的质量均应符合现行国家标准 《钢结构工程施工质量验收规范》GB 50205的规定和要求。
9.3界面处理
9.3.1参阅本规范第5.2.1条的条文说明。
9.3.2对型钢的内表面进行除锈与糙化处理;其目的在于保证 型钢与原构件混凝土之间在注胶后具有可靠的粘结强度,以传递 剪力。
9.3.3对干式外包钢而言,虽不考虑传递剪力的问题,但若适 当修整好界面,其所灌注的浆液或所填塞的胶泥将会使钢骨架与 原构件结合得较为服贴,这对改善加固后结构构件的整体性和耐 久性,必然会起到一定作用。
9.3.4本条采取的圆化措施,是为了保证型钢能较为服贴地粘 合在原构件表面,因为型钢的内角是圆弧形的。
9. 3.5本条是针对外粘型钢工程一般多使用普通型结构灌注胶 的情况.而作出的应控制原构件混凝土含水率的规定,以保证这 类胶粘剂能够正常固化,并具有可靠的粘结能力。若施工所遇到 现场条件,无法通过自然通风降低原构件混凝土表面的含水率, 则应采用局部表面人工烘干措施,或改用高潮湿面适用的结构胶 粘剂进行粘合。
9∙4型钢骨架安装及焊接
9.4.1为了保证型钢骨架的安装质量,必须先用专门卡具箍紧 钢骨架各肢,然后利用垫片和钢楔进行竖向调整并顶紧,经检查 无误后,方可开始焊接作业。上述卡具一般均是自制的,只要是 活动的、可调整的和可重复使用的即可。
9.4.2参阅现行国家标准《钢结构工程施工质量验收规范》 GB 50205相应条文的说明。
9.4.3目前市场上有封缝胶出售,若有些地区买不到,也可采
261
标准分享网WWW. bzfxw. com免费下载
用自行配制的环氧胶泥。这里需要指出的是:当所用的结构灌注 胶系正规产品时,往往都配有封缝胶及注胶零部件,购胶时应提 出配备的要求。
9.4.4参阅现行国家标准《钢结构工程施工质量验收规范》 GB 50205相应条文的说明。
9.4.5 —股以成套产品形式销售的结构灌注胶,往往配有快速 固化密封胶、注胶嘴及其底座等辅料和配件。此时,其产品使用 说明书将给出灌注压力值,以及注胶孔、排气孔的位置与间距等 数据,在这种情况下,可按该产品使用说明书的规定值采用。但 在少数情况下,施工图纸或施工技术方案也给出了这些值.若相 互不一致,宜取用两者中较小的间距值和厂家的压力值,较为 稳妥。
9.5注胶(或注浆)施工
9.5.1执行本条需要注意的是:注股设备及其配套装置的适用 性检查和试验运作的安全检查,应由经过培训的作业人员在生产 厂家派员指导下进行。只有这样,其所进行的检验才能说明问 题,也才有实用的价值。
9.5.2外粘型钢用的灌注胶在经过进场复验,并得到生产厂家 出具的不掺用有害溶剂和非反应性稀释剂的书面保证前提下,其 使用前的试配可仅测定其初黏度。因为它是可灌性和灌注安全性 最直观的标志。如果试配时已考虑了环境温度的影响,而所测定 的初黏度仍然不合格,则应视为胶的质量问题,予以弃用。
9.5.3执行本条应注意的是灌注压力的取值问题。一般高档的 灌注胶,在其产品使用说明书中都提供了合适的压力范围及推荐 值。当采用这些品牌的灌注胶时,即可按其推荐的灌注压力进行 实时控制。若所用的是劣质灌注胶,例如塑料桶分装的小作坊产 品,往往未加标志,或是盗用其他品牌的标志。在这种情况下, 应将这类有劣质嫌疑的产品送检。若检验结果认为可以使用,则 应经试压确定其灌注压力后,进行实时控制。
262
9.6施工质量检验
9.6.1、9.6.2由于无法从实际工程的型钢杆件上直接测得它与 原构件混凝土之间的正拉粘结强度,因此,只能借助于旁贴钢标 准块的方法,来评估该工程的粘贴质量是否达到这项指标的要 求。从编制组所作的对比试验来看,只要能满足以下3点要求, 便可收到相互接近的检验效果:
1钢标准块粘贴位置的混凝土表面处理,应由同一操作人 员在处理加固部位的混凝土表面时一并进行,且不作任何特殊 处理:
2钢标准块的粘贴,应使用同一次搅拌的胶粘剂,并与加 固部位粘贴施工同时进行:
3钢标進块粘貼后应在接触压条件下静置固化。
从试点工程来看,只要有监理人员在场监督,要做到以上3 点并不困难。如果粘贴钢标准块的操作由检验机构人员来完成, 则效果更好。基于以上所做的工作,决定将此方法纳入本规范, 以应现场急需。
在本条第3款及第9.6.2条中,对注胶、注浆和填塞胶泥, 分别给出了饱满度的最低要求,若检测发现注胶的空鼓率超限, 应在探明的确切位置上钻孔,并通过注射器补胶。对干式外包 钢,若发现注胶或填塞胶泥的饱满度较差,可由设计单位酌情 处理。
9∙6∙3本条所列的外观质量要求,虽对结构性能本身无甚影响, 但若不立即清理干净,不仅将增加下一工序的工作量,而且清理 起来很困难。因为胶粘剂完全固化后很难清除.
263
标准分享网WWW. bzfxw. com免费下载
10外粘纤维复合材工程
10.1 一般规定
10.1.1粘贴纤维复合材增强混凝土结构构件的承载力,是一项 新兴的结构加固技术。近年来在各种结构加固工程上得到广泛的 推广应用。其工程量的增长尽管很快,但良莠不齐的现象也日益 令人担忧。为了确保工程使用的安全,有必要对其施工过程予以 控制:对其施工质量检验予以规范化。为此设置本章,但其内容 仅涵盖房屋和一般构筑物的粘贴纤维复合材的加固工程。
10.1.2本条规定了粘贴纤维复合材工程的一般施工程序,可供 现场进行施工组织设计和制订施工技术方案使用。在执行本条 时,应注意的是纤维复合材的用胶,在国内外均分为两类:一类 需要涂刷底胶;另一类则免除底涂。两者所用的胶粘剂品种不 同,其施工程序也不同,必须予以区别对待。但前段时间在福建 等多个省份发现:有些信誉欠佳的施工单位,明知其所用的是配 有底胶的浸润一粘结胶粘剂,但却为了多赚取工料费,不仅肆意 偷工减料,而且还曲解规范,竟称规范允许不刷底胶,以混淆视 听,致使不少结构加固工程留下了安全隐患。因此,应提请监理 单位予以严密注意,一经发现这种偷工减料行为,便应将该工程 直接判为质量不合格工程。
10. L3最近有不少结构胶粘剂的产品使用说明书中,都标注了 该胶可在不低于5七的环境中进行粘贴施工。这也就意味着该胶 已经过改性,否则是不可能做到的。因为几乎所有的试验均表 明:未经改性或改性不当的合成胶粘剂,若在低于15(的环境 中进行粘贴施工,不仅其固化速度缓慢,而且将由于固化不良而 导致粘结强度急剧下降。因此,若所用的胶粘剂,其使用说明书 为复印件,或是其使用说明书无明确标注,则均应视为未作低温
264
固化改性的胶粘剂,而要求其施工作业应在不低于15C的环境 中进行,
10.1.4防护面层对采用纤维复合材的结构加固工程十分重要, 因为它在防止人为破坏、火灾以及紫外线照射等方面都能起到很 可靠的防护作用。因此,施工和监理单位必须给予高度的重视, 以确保防护面层的施工质量。同时,由于可用作防护面层的材料 与构造很多,因此其施工过程控制和施工质量验收,应符合国家 现行有关标准的规定。
10.2界面处理
10.2.1原结构构件及其加固部位除应按本规范第3. 0. 4条及第 3. 0. 5条的规定进行清理和修整外,尚应对其粘贴纤维复合材的 部位进行必要的局部找平或修补,才能进行打磨和糙化处理。因 为试验表明:有凹面的部位在粘贴纤维复合材后易产生拉应力, 从而留下剥离的隐患;而有段差或内转角的部位更需抹成平滑的 曲面,才能避免纤维发生弯折,影响其受力性能。
另外,从现行国家标准《混凝土结构加固设计规范》GB 50367-2006第9. 9. 9条的规定可知,圆化半径1的取值,与材 料和构件的种类有关,但若设计未作规定,则应从稳健的考虑出 发,一律取r>25mm。试验和计算表明,b越大,对构件受力越 有利。只是由于保护层厚度的限制,无法取用更大的1值。
10.2.2混凝土表层含水率超过4%时,其胶粘效果将显著下 降。因此,需要进行人工干燥处理。粘贴面积较大时,可考虑用 红外线灯照射,或热风吹干。其实采用高潮湿面用的结构胶,其 价格也不贵,只是需要提前订货而已。-
10.2.4参阅本规范第10. L 2条的条文说明。
10.2.5使用工业丙酮擦拭混凝土表面有两个目的;一是进一步 清除粘附在加固粘合面上的不洁残留物和新落的灰尘,更好地保 证胶粘质量3二是通过擦拭工业丙酮,可以复查前道工序有无疏 漏或欠缺之处,以便及时弥补,免得造成返工。因此,也是前道
265
标准分享网WWW. bzfxw. com免费下载
工序质量合格的保障措施。
10.3纤维材料粘贴施工
10.3.1执行本条应注意的是:胶粘剂各组分的称量应准确;调 胶应适量。所谓的适量是指每次配胶量应根据粘贴作业所需的时 间和环境气温来控制,从而使每次调的胶均能在产品说明书规定 的适用期(可操作时间)内用完,以免过了胶的初凝时间。同 时.应指出的是:倘若配胶掌握不当,胶液会突然发热、变稠, 甚至结块。
10.3.2纤维织物的粘贴作业应着重注意以下两点:
1纤维织物极易折断,故在任何情况下均不允许折叠。同 时,粘贴时还必须注意展平,不得有皱褶,以免影响其受力 性能。
2浸渍、粘结专用的结构胶能否顺畅地浸透到纤维丝束内, 是保证粘贴施工质量的关键。因此,滚压一定要均匀而充分,以 避免发生虚粘假贴现象,导致纤维复合材失效。
10.3.3粘贴碳纤维板材时,应避免往复碾压,防止板材浮起造 成空鼓.
10. X 5为了保证检验时间确定的公平、公正性,以7d作为结 构胶粘剂粘贴施工质量统一的检验期,是根据我国专业研究机构 及有关厂家达成的共识确定的。因为质量合格的结构胶,经过 7d静置固化后,其粘结强度的增长已达到可接受的固化程度, 可以开始进行力学性能检验,但为了使检验不致白做,一般应先 测定胶层的硬度,据以判断胶的固化质量。如果用邵氏D型硬 度计检测得到的硬度值HdV70,则表明该胶为劣质胶,应揭去 重贴。
10.4施工质量检验
10.4.1近几年来,虽有不少人在研发各种仪器探测方法,但迄 今尚未获得大量应用。在这种情况下,锤击检查法仍是最简便易
266
行的方法,况且其有效性也已通过工程实践的检验,故可在各种 条件下使用。但应指出的是,本方法易受人为偏差的影响。因 此,为了提高本方法检测结果的可信性,对重要结构的锤击检 查,可由检测机构派出两组人员,各自独立地进行检测,然后取 其平均值作为检测结果。若两组检测结果相差较大(例如大于 15%),可分别再重复检测一次,并取4个值中较接近的3个值 的平均值作为检测结果。
1肌4.2结构胶粘剂粘贴纤维复合材与基材混凝土的正拉粘结强 度检验,主要是用以综合评估胶液的固化质量、胶液对纤维织物 的湿润、浸渍程度以及纤维复合材与原构件混凝土的粘结强度, 因此非常重要。然而,这是一种破坏性检验方法。在粘贴碳纤维 织物加固工程中选择测点时,应避开受力的重要部位:在粘贴碳 纤维预成型板加固工程中,应按照本规范10. 3. 3条的做法,在 板端加长的15Omm范围内选择测点。检验完毕后,应对纤维织 物被切割处进行修补。修补时,其搭接长度应符合本规范第• 10. 4.1条的要求。
本条为强制性条文,必须严格执行。
10.4.3、10.4.4粘贴纤维复合材的施工允许偏差,是根据本规 范编制组在大量取得调查、检验数据的基础上,从安全考量的角 度确定的。
267
标准分享网WWW. bzfxw. com免费下载
11外粘钢板工程
11.1 一般规定
11.1.1多年来工程结构加固工程的统计数据表明,外粘钢板 (简称粘钢)加固技术的年使用量及其使用范围,一直比粘贴纤 维复合材和外粘型钢大得多。在这种情况下,由于不问场合随意 使用这种方法而造成的后续处理问题也就很多。因此,在执行本 章规定时,应结合国家标准《混凝土结构加固设计规范》 GB5Q367-2006第10章的"设计规定"一节来理解和掌握,才 不致误认为本章的规定在任何场合都适用。
11.1.2本条规定了粘贴钢板工程的一般施工程序。执行时,可 根据加固工程量大小进行调整或简化。若粘贴钢板也采用压力注 胶工艺,可参照本规范第9. 5节的规定进行施工组织设计。
ILl.3、11.1.4这两条是对粘贴钢板过程中所采用的固定方法 作出具体规定和提示,其目的是为了防止由于锚栓密布可能造成 的混凝土劈裂,也是为了防止以锚栓作为使用劣质胶粘剂的辅助 受力手段。国内外大量试验数据表明:胶粘层与锚栓是不能共同 受力的。然而,目前的粘钢工程,其所使用的锚栓量有越来越多 的趋势,这是很不正常的情况,应引起设计人员的警惕。
11.1.5参阅本规范第10. L 3条的条文说明,
11.1.6粘钢加固用的钢板及配件(如箍板等),其制作、加工 要求的严格程度与一般钢结构无显著差别。因此,应按现行国家 标准《钢结构工程施工质量验收规范》GB 50205的规定进行制 作、加工过程控制和质量检验。
11.2界面处理
11.2.1原构件混凝土粘合面采用喷砂糙化处理的效果较好,但
268
操作时纷飞的砂粒与粉尘对施工环境影响较大。因此,国内多用 砂轮打磨。必要时,还可采用鎏子凿毛。当使用大功率砂轮机打 磨时,原构件混凝土表面的骨料可能松动,或沿其周边出现裂 纹。这种状况对混凝土与钢板粘合不利,应改用输出功率符合本 规范第5. 2.1条规定的砂轮机,或改用高压水射流处理。
钢板粘合面的除锈和糙化,对保证粘钢工程质量十分重要。 因此,监理人员有责任逐块进行检查。检查的重点:一是钢板经 除锈、糙化后是否已显露出金属光泽;二是钢板与混凝土表面的 接触是否平整服贴。如果处理后的钢板在使用前又停放了・一段时 间,尚应检查它是否有新锈或其他污染, ILZ 2参阅本规范第10. 2.2条的条文说明。
11.2.3在混凝土粘合面处理的同时,便应事先确定钢板与混凝 土正拉粘结强度检验的试样(钢标准块)粘贴个数与位置。因为 钢板粘贴后无法切割,只能采用间接的方法进行粘结质量检验。 在这一前提下,必须采取措施度试样的粘贴过程控制尽可能与加 固的钢板一致。为此,有必要从界面处理的工序开始,每一工序 均应考虑检验的同条件问题,并为其创造条件。
11.2.4对粘贴钢板工程而言,试装配工作十分重要。因为胶粘 剂的适用时间(可操作时间)短,固化后便无法作任何调整和变 动。故要求所有与钻孔、定位有关的作业均应在试装配过程中得 到检查与修正。
U. 2.5∙参阅本规范第10. 2. 5条的条文说明。
IL 3钢板粘贴施工
n∙3∙l参阅本规范第10. 3.1条的条文说明。
H.3. 2将配制好的胶液同时涂刷在钢板和混凝土的粘合面上, 更容易保证钢板与混凝土间无空鼓、无漏涂胶的情况。
俯贴时胶层中间厚、边缘薄,钢板粘贴并挤压后,易形成均 匀的胶粘剂层,且不易混入空气。竖贴时胶层上厚下薄,是考虑 到在粘贴过程中构件上部的胶液会逐渐向下流淌。仰贴时,若胶
269
标准分享网WWW. bzfxw. com免费下载
液的下垂度过大,则易因胶液流淌而导致缺胶,影响施工质量。 11.3.3钢板粘贴表面平整,有助于保证胶层厚度基本一致。段 差过渡处如有折角,则可能在局部造成胶粘剂层突然变厚或缺胶 等现象,从而导致此处应力滞后或应力集中严重,或者局部无法 传递应力的情况。
11.3.4夹具加压、锚栓(或螺杆)加压、支顶加压等方法可根 据现场情况灵活选用其中一种或几种。加压点的距离可根据实际 情况确定,但不得大于500mm。
11.3. 5参阅本章第11. 2.3条的条文说明。
11.3.6钢板粘贴位置应符合设计要求。若钢板粘贴位置偏差过 大,将会使钢板受力状态发生改变。因此,编制组根据足尺构件 试验结果,结合工程实践经验确定了其允许偏差值。从所给出的 数值可知,其要求比粘贴纤维复合材稍严。因为钢板本身调整其 内应力的能力相对较差。
11.3.7参阅本规范第10∙ 3.5茶的条文说明。
11.4施工质量检验
11.4. 1参阅本规范第10.4.1条的条文说明。
11.4. 2结构胶粘剂粘贴钢板与基材混凝土的正拉粘结强度检 验,主要是用于综合评估胶液的固化质量、钢板粘合面处理效 果、胶粘剂与钢板及基材混凝土的粘结强度,因而非常重要,必 须按本规范附录U规定的方法与评定标准认真执行。同时,应 指出的是:粘钢加固工程的这个检验项目,在一定程度上还属于 间接的检验方法。因为它只能在加固部位的附近另贴钢板进行检 验,而无法在受力钢板上直接抽样。在这种情况下,必须从打磨 钢板、打毛混凝土、清理界面到涂刷胶液、加压养护整个过程都 要做到检验用钢板与受力钢板同条件操作,不得改变检验用钢板 的粘贴H艺,以避免检验失真。
本条为强制性条文,必须严格执行。
11. 4.3参阅本规范第10. 4. 3条的条文说明。
270
12钢丝绳网片外加聚合物砂浆面层工程
12.1 一般规定
12. L 1钢丝绳网片外加聚合物砂浆面层加固方法可用于混凝土 结构构件的加固,也可用于砌体结构构件的加固,而且两者施工 工艺十分接近,故据以作出本条规定。
12.1.2本条规定了钢丝绳网片外加聚合物砂浆面层的一般施工 程序。执行时,可根据加固工程量和现场条件进行调整或简化。 但应指出的是;钢丝绳网片通常系作为批量生产的产品在工厂制 作的,故本条的施工程序中未列入"钢丝绳网片制作"这一项。 倘若遇到施工单位系在现场自制网片,除应列人这项程序外,尚 应按本规范第4. 2. 6条及第4. 2. 7条规定的检验项目进行检验, 且检验的试样数量应比进场复验多一倍。因为这种小规模生产的 网片.未经系统检验,也缺乏出厂合格检验的把关,其可靠性很 难评估,故应按严格的检验要求加倍取样。
IX 1.3本条对施工现场气温的要求,系根据不同品种聚合物砂 浆的工艺性能及其产品说明书的标注,经归纳后作出按品种予以 区别的规定.以保证不同品种产品的施工质量。
12.2 .界面处理
12.2⅜1采用钢丝绳网片外加生合物砂浆面层的加固工程,其界 面处理较粘贴纤维复合材和粘贴钢板加固简便得多。因为聚合物 砂浆层较厚(25mm〜35mm),在多数情况下,无需将原构件粘 合面修补得十分平整,只要补好原构件混凝土裂缝,并对其粘合 面进行糙化和清洗,且糙化及洁净程度满足设计要求即可。因 此,只有在必要时,才需要对混凝土表面加工平整。
1X2.2目前市场上的聚合物砂浆产品,一般要求在喷抹砂浆层
271
标准分享网WWW. bzfxw. com免费下载
前,尚应先喷涂配套的结构界面胶(剂)。因此,提出了对界面 胶(剂)喷涂质量的要求。
12.3钢丝绳网片安装
12.3.2本条主要规定两点:-•是网片在安装时应经过张拉,使 之展平、绷紧,且以不下垂为度,因此,不应视为外加预应力的 构件,不可在设计中考虑此预应力的作用。二是安装完毕后,应 按隐蔽工程的要求进行检查和验收。因为在喷抹聚合物砂浆后便 无法对其安装质量进行检查。
12.3.3沿网片长度方向的搭接,应保证其传力功能,故应由设 计加以规定。若施工图未注明,则施工时只能从确保安全出发, 取搭接长度不小于200mm,且不应位于最大弯矩区。
12.4聚合物砂浆面层施工
12.4.1本条从结构加固工程量一般不大的特点出发,规定了用 于检查砂浆面层质量的砂浆强度试块的取样与留置要求。其要求 虽略较新建工程严格,但却是十分必要的。因为结构加固工程有 其特殊性,况且这是控制施工质量必不可少的检验项目,因而绝 不可有任何疏漏。至于同条件养护试块所对应的结构构件或结构 部位,应由监理(业主)与施工方共同选定。同条件养护试块拆 模后,仍应放置在紧邻相应结构构件(或结构加固部位)的位 置,待达到28d龄期时,立即进行试验。
本条为强制性条文,必须严格执行。
12.4.3聚合物砂浆的配制,除应保证每一组分的称量准确外, 尚应保证其搅拌的混合质量,其要求与胶粘剂等基本相同。这个 工序看来简易,但若有任何差错,其后果是很严重的。因此,要 求会同监理人员旁站观察,且不得有疏漏。
12.4.4聚合物砂浆面层厚达25mm~35mm,如不分层喷、抹, 则难以擀压密实,且易产生裂纹。为此,制定本条加以控制。另 外,还应指出的是,聚合物砂浆的喷射工艺与喷射混凝土不同,
272
不应套用喷射混凝土的操作经验。
12.5施工质量检验
12∙5∙1聚合物砂浆面层的喷抹质量,其检验标准应参照现行国 家标准《砌体工程施工质量验收规范》GB 50203有关水泥砂浆 面层的施工缺陷检查规定进行制定较为合适Q但遗憾的是该规范 已不包含这方面内容,在此情况下,编制组只能在有关专家共同 研究下制定了表12∙ 5.1的检查标准以供工程急需。
本条为强制性条文,必须严格执行。
12.5.2迄今为止,现场常用的还是敲击法。因为探测方法,或 是尚无现行检测标准,或是尚在研究过程中。近来有些单位开始 参照《超声法检测混凝土缺陷技术规程》的结合面质量检测法, 进行这个项目的探测、检查,但应指出的是:聚合物砂浆的有关 参数与混凝土不同,应另行通过系统的试验确定。
12.5.3本规范表10.4. 2虽然是为结构胶粘剂粘结纤维复合材 与原构件混凝土的粘合质量检验而制定的,但对具有粘结性能的 其他加固材料也是适用的。因为作为结构加固用的粘结材料,其 粘结强度必须高于基材的内聚强度才能起到应有的作用,否则将 会危及被加固构件的安全。为此,现行国家标准《混凝土结构加 固设计规范》GB 50367对结构加固用的聚合物砂浆作出了它与 基材混礙土的正拉粘结强度应不小于混凝土抗拉强度,且应为混 凝土内聚破坏的规定,而这一规定与结构胶粘剂以及所有其他粘 结材料都是一致的。
本条为强制性条文,必须严格执行。
12.5.4参阅本章第12. 5J条的条文说明。
12.5.6本条系参照国内外工程经验制定的,其之所以不允许砂 浆面层厚度有负偏差,是因为这类外加面层本身就很薄,倘若还 允许有负偏差,便很难控制其施工质量。
273
标准分享网WWW. bzfxw. com免费下载
13砌体或混凝土构件外加 钢筋网一砂浆面层工程
13.1 一般规定
13.1.1砌体或混凝土构件外加钢筋网一砂浆面层工程是指在原 构件表面安装钢筋网(墙体:单面或双面;柱:单面、双面、三 面或四面),然后浇筑混凝土或喷抹砂浆面层的工程。钢筋网包 括:钢板网、焊接钢筋网片、绑扎钢筋网等。
这种加固方法多用于砌体结构的墙、柱上;若采用改性砂浆 面层,也可用于混凝土墙、柱上。
13.1.2在执行本条过程中,应注意的是:在清理、修整原构件 和钻孔安装拉结筋过程中,都会对原构件产生一定的扰动和损 伤,因此必须观察墙体及其相邻的结构构件是否有新的开裂、变 形等异常情况发生,以便及时采取必要的措施。
13.2界面处理
13.2.1清理、修整原结构、构件加固部位时,对其裂缝和损伤 部位进行修补或拆砌,是保证混凝土或砌体加固质量的重要一 环,监理单位应给予足够的重视。
原构件经清理、整修后,用水冲刷是为了将表面粉尘、碎渣 清除干净,以免新浇的混凝土或喷抹的砂浆与原构件粘结不牢。 涂刷结构界面胶(剂)是为了进一步提高两者间的粘结强度,增 强其整体工作性能。
13.2.2本条规定应待墙面无明水(即稍干)后再进行面层施 X,主要是为了避免墙体表面附有水膜,而影响外加层与原构件 粘结质量。
274
13.3钢筋网安装及砂浆面层施工
13.3.1由下到上的施工顺序,易于施工操作,且保证工程质 量。墙体在钢筋网面层施工完成后质量会大大增加,若不按此顺 序施工对墙体的受力是很不利的。同层分区段加固,是保证原结 构在施工过程中稳定的重要措施之一。
13.3.2、13.3.3砖墙加固采用钢筋网时,其拉结采用穿墙S形 筋虽然最为牢靠,但应注意的是S形筋不宜过长,否则,不易卡 紧,反而影响钢筋网的整体刚度。同时,S形筋过长,还会使保 护层偏薄,从而使墙面易出现锈斑。至于混凝土结构,其钢筋网 拉结已多改用植筋或锚栓,此时,应注意的是:其锚固深度应按 设计计算确定,不得随意采用一些厂商推荐的浅埋构造。
13.3.4采用机械钻孔,对墙体和楼板的损伤和扰动较小。拉结 施工完毕,还应采用锚固型胶粘剂将孔填实。
13.3.5执行本条时.最应注意的是绑扎的钢筋网片.在上墙前 必须调直钢筋;在安装过程中,应检查其钢筋间距是否有错动, 并及时加以纠正。若采用钢板网片或焊接的钢筋网片,上墙前必 须加工平整。钢筋网之间的搭接宽度不应小于100mm。
13.3.6砌体或混凝土构件外加面层的砂浆,虽可采用人工抹灰 或喷射方法施工。但不论采用哪种方法施工,其砂浆强度的检验 结果均应符合本规范及设计的要求,否则将很难保证粘结的 质量。
本条为强制性条文,必须严格执行.
13.4施工质量检验
13.4.1同本规范第12. 5.1条的条文说明。 本条为强制性条文,必须严格执行。
13.4.2砌体或混凝土构件外加钢筋网面层工程质量的关键是粘 结牢固,无开裂、空鼓与脱落,否则将会显著影响结构性能、使 用功能和耐久性能,故应进行粘结施工质量检验。
275
标准分享网WWW. bzfxw. com免费下载
13.4.3 .同本规范第12. 5. 3条的条文说明。
本条为强制性条文,必须严格执行。
13.4.4参阅本规范第5. 4. 5条的条文说明。
276
14砌体柱外加预应力撑杆工程
14.1 一般规定
14.1.1砌体柱外包角钢加固一般不采用胶粘方法,而采用无粘 结的干式外包钢。但干式外包钢仍有两种方法:一是无预顶力的 干式外包钢:二是外加预应力(也称外加预顶力)的干式外包钢 (图1)。本章的规定仅涉及后者的施工过程控制与施工质量检 验。对前者的钢骨架设计和制作可按现行国家标准《钢结构设计 规范》GB 50017和'《钢结构工程施工质量验收规范》GB 50205 执行:其他施工要求可按本章的规定执行。
/VW
 
 
S
 
 
未施加预应力
已施加预应力
图1预应力撑杆加固砌体柱示意
277
标准分享网WWW. bzfxw. com免费下载
14.1.2清理、修整原结构、构件时,主要是凿除原柱表面风化 酥松层和污垢、青苔等等。原柱抹灰层是否凿除,应按设计规定 执行。若设计方案要求将面层剔除干净,应轻敲轻打,细心剔 除,或采用高压水射流剥除,以尽量避免柱砌体因受振动而损 伤;同时,还应采取措施保证施工过程的安全。
14.2界面处理
14.2.1执行本条应注意的是;砌体柱经整修、打磨棱角后,尚 应使用压缩空气将其表面粉尘、碎渣等清除干净。若有工程经 验,也可采用压力水冲洗干净。
14.2.2砌体柱表面平整度很差时,打磨作业不仅会严重损伤柱 体,而且容易危及结构安全。此时,可改用强度等级不低于 M15的水泥砂浆找平,但应经设计单位同意并出具变更设计的 通知,施工才有依据。
14.3撑杆制作
14.3.1该条的规定是保证杆件制作的准确性,避免不必要的返 工。因为砌体构件不仅尺寸误差较大,而且砌筑也不规整。在现 场就近制作,可以起到量体裁制的作用。
14.3.2先预焊成组合肢再安装,可减少在柱上的施工作业。这 样的安排不仅提高了施工速度,而且更易保证施工质量。
14.3.3补强钢板是对削弱的角钢截面进行补偿性加强的措施。 在安装撑杆过程中,补强钢板要承受较大的横向拉力,其尺寸除 应经设计确定外,尚应考虑构造上的要求。此外,应指出的是: 在补强钢板上为安装拉紧用螺杆而进行的钻孔,宜在焊接翼板前 进行。
14.3.4抵承板与承压板(承压角钢)及撑杆肢的接触面,其所 以应经刨平,是为了保证其相互之间的紧密抵承,传力可靠。
14.3.5对承压板厚度的要求,是为了保证承压板有足够的刚 度,在承受抵承板传来的压力时不致变形。
278
14. 3.6穿在补强钢板钻孔中的螺杆一经收紧便能起到横向张拉 作用。因此,其板厚及螺杆直径均应通过设计、计算确定,若张 拉(即螺杆收紧)过程中发现钢板变形•应立即停止张拉,并通. 知设计单位采取措施进行补强。
14.4撑杆安装与张拉
14.4.1如何确定横向张拉量AH的起点,迄今尚难通过计算 解决,本条的做法系参照俄罗斯预应力专家H.M.欧努甫里耶 夫的工程经验制定的。至于承压板与结构的抵承面之间,之所以 需要涂抹结构胶粘剂,是为了使其接触紧密,传力均匀。但应指 出的是:当使用胶粘剂时,原构件混凝土的表面含水率应符合胶 粘剂产品使用说明书的要求。
14. %2本条对抵承板节点传力面作出了接触面最小面积和最大 间隙限制的规定,其目的与第14. 3. 5条是一致的,都是从施工 质量要求上来保证承压板传力均匀、不变形。
14.5施工质量检验
14.5.1预应力撑杆建立预应力的控制值,可通过计算得到,由 撑杆下料的长短、撑杆中部切口宽度以及横向张拉量△口控制。 预顶过度,加固柱易出现水平或斜向裂缝。
279
标准分享网WWW. bzfxw. com免费下载
15钢构件增大截面工程
15.1 一般.规定
15.1.1钢结构构件增大截面工程常用的施工方法有:负荷加 固、卸荷加固、部分卸荷加固和拆下加固、拆下更新等。当需卸 荷或拆下时,必须措施合理、传力明确,才能确保安全。因此, 在提出拆卸过程控制方案时,设计単位与施工单位应充分研究、 妳商,经取得一致意见后,方可付诸实施。
15.1.2卸荷状态下钢结构构件增大截面工程在实施加固施工 前,同样须按本规范第3.0.4条和第3∙ 0∙ 5条的规定,对原结 构、构件进行清理、修整和必要的卸荷后,才能进入加固的程 序。由于随后的施工过程控制与施工质量检验,与新建工程的要 求无甚显著差别,故可按现行国家标准《钢结构工程施工质量验 收规范》GB 50205的要求执行。
15. L3本条规定的是一般施工程序。具体实施时,宜根据工程 量大小进行调整或简化。
15.1. 4本条的规定系为确保钢结构构件加固工程的安全和质量 而设置的,其内容很明确,无需作进一步说明。
15.1.5在钢结构加固工程施工焊接过程中,焊工是特殊工 种,其操作技能和资格对工程质量起到保证作用,必须予以 充分重视。本条所指的焊工,包括手工操作焊工和机械操作 焊工。从事钢结构加固工程婦接作业的焊工,应根据其所焊 接的结构具体类型和位置等,按现行行业标准《建筑钢结构 焊接技术规程》JGJ 81的要求对施焊焊工进行考试并取得相 应证书。
本条为强制性条文,.必须严格执行。
280
15.2界面处理
15∙Z1〜15∙2∙3这三乗是对原结构、构件经界面处理后应达到 的标准作出具体规定。
15.2.4对待焊区钢材表面处理质量进行复查,可以提高钢材表 面的适焊性,也有助于保证焊接质量。
15.3新增钢部件加工
15.3.1钢材切割面或剪切面应无裂纹、夹渣、分层和大于 Imm的缺棱。这些缺陷在气割后都能较明显地显露出来,一般 用放大镜检查即可;但有疑义或特殊要求的气割面和机械剪切面 则不然,.除观察检查处,还应采用渗透、磁粉或超声波探伤检 査。另外,还应指出的是:切割面出现裂纹、夹渣、分层等缺 陷,一般是钢材本身的质量问题,特别是厚度大于Iomm的沸 腾钢钢材容易出现这类问题,故需特别注意。
15.3. 2为消除切割对主体钢材造成的冷作硬化和热影响的不利 影响,使边缘加工质量达到设计规范的有关要求,本条规定了边 缘加工的最小刨削量不应小于2.0mm.
15.3.3抗滑移系数是高强度螺栓连接的主要设计参数之一,直 接影响构件的承载力。因此构件摩擦面无论由制造厂处理还是由 现场处理,均应对抗滑移系数进行测试?测得的抗滑移系数最小 值应符合设计要求。
执行本条规定时,应注意如下两点:一是当摩擦面的摩擦系 数设计值不大于S3,且施工图上未提出测试要求时,可免作抗 滑移系数检测;二是在现场采用砂轮打磨局部摩擦面时,应以打 磨范围不小于螺栓孔径的4倍,且打磨方向应与构件受力方向垂 直为条件,其测试结果方为有效。■
本条在现行国家标准《钢结构工程施工质量验收规范》 GB 50205中为强制性条文,应严格执行。
15.3.4为了与现行国家标准《钢结构设计规范》GB 50017相
281
标准分享网WWW. bzfxw. com免费下载
协调,本规范对加固用高强度螺栓孔的加工质量提出了要求%其 具体规定的依据如下;
1根据现行国家标准《紧固件公差 螺栓、螺钉、螺柱和 螺母》GB/T 3103.1和《产品几何技术规范(GPS)表面结构轮 廓法表面粗糙度参数及其数值》GB/T 1031,确定了 A、B、C 三级螺栓螺孔的加工精度H和粗糙度Rl的控制值;
2明确了 A、B、C三级螺栓螺孔直径的允许偏差应按现行 国家标准《钢结构工程施工质量验收规范》GB 50205采用。
15.3.5-15. X 7这三条的条文说明与所引用的现行国家标准 《钢结构工程施工质量验收规范》相同。现仅就本条所补充的内 容说明如下: ,
1切割面平面度m(图2),即在所测部位切割面上的最高、 点和最低点,按切割面倾角方向所作两条平行线的间距,应符合 N≤0. 051,且不大于2. Omm的要求c.
 
图2切割面平面度示意图
2切割面割纹深度& (如图3所示),即在沿着切割方向
 
图3切割面割纹深度示意图
282
20mm长的切割面上,以理论切割线为基准的轮廓峰顶线与轮廊 各底线之间的距离。对重要结构,取无≤0.2mm;对一般结构, 取 A≤O. 3mm。
3局部缺口深度,在切割面上形成的宽度、深度及形状不 规则的缺陷,它使均匀的切割面产生中断。其深度应不大 于 1. Ommo
4机械剪切面的边缘缺棱(如图4),或不大于Lomm。
5剪切面的垂直度(如图5),应不大于2. 0mm。
≤2mπι
CZ?1 mi
图4机械剪切面的边嫁 图5剪切面的垂
缺棱示意图 直度示意图
15.4新增部件安装、拼接施工
15.4.1在负荷下进行结构加固,常需进行焊接、开、扩螺孔, 收时必须制定合理的施工工艺和安全措施,才能保证原构件在施 工过程中有足够承载力,从而也才能防止加固工程施工事故的发 生。对于加固后无法检查质最且易影响结构承载能力的部位,尚 应作为隐蔽工程进行验收,并妥善保存其详细记录,以备验收和 评价加固效果使用。
本条为强制性条文,必须严格执行。
15.4.3本条规定的目的在于先点焊固定,以使构件较快具有相 当承载力;然后再对称、平行地按序施焊,以使构件尽可能自由 地变形,从而达到减少残余应力和畸变之目的。
15,4.4本条对螺栓连接施工工艺所作的规定,主要是为了避免 原构件的截面在加固过程中受到过大削弱。
283
标准分享网WWW. bzfxw. com免费下载
15.4.6本条特别强调了对有两个以上构件组成的静不定结构进 行加固时,应先点焊定位,使结构初具整体性,再从受力最大构 件开始,依次焊接,以便被加固结构、构件能较自由变形,从而 减小焊接残余应力。
15.S施工质量检验
15.5.1根据结构承载情况的不同,现行国家标准《钢结构设计 规范》GB 50017将焊缝的质量分为三个质量等级,其内部缺陷 的检测可用超声波探伤和射线探伤。射线探伤具有直观性、一致 性好的优点,过去人们总认为射线探伤可靠、客观。但是射线探 伤成本高、操作程序复杂、检测周期长,尤其是钢结构中大多为 T形接头和角接头,射线检测的效果差,且射线探伤对裂纹、未 熔合等危险性缺陷的检出率低C超声波探伤则正好相反,操作程 序简单、快速,对各种接头形式的适应性好,对裂纹、未熔合的 检测灵敏度高,因此世界上很多国家对钢结构内部质量的控制均 采用超声波探伤,一般已很少采用射线探伤6
本条为强制性条文,必须严格执行。
15. 5.2考虑到设计对不同质量等级焊缝的承载要求不同,以及 现行有关标准对严重影响焊缝承载力的缺陷均予以严禁的实际情 况,本条也将这类严重缺陷的检查列为主控项目,并给出了严重 缺陷的检查标准(表15.5.2)。其中应指出的是:对于一级焊 缝,除了不允许有表面气孔、夹渣、弧抗裂纹、电弧擦伤等缺陷 外,之所以还不允许出现咬边、未焊满、根部收缩等缺陷,是因 为它们对构件承受动载的能力有显著的不良影响。
15.5.3高强度螺栓终拧Ih时,螺栓预拉力的损失已大部分完 成,在随后一两天内,损失趋于平稳,当超过一个月后,损失就 会停止,但在外界环境影响下,螺栓扭矩系数将会发生变化,影 响检查结果的准确性。为了统亠和便于操作,本条规定检查时间 统一定在Ih后的48h之内完成。
15.5.4本条所述的构造原因是指设计不当所造成的空间太小,
284
无法使用专门扳手进行终拧的情况。在扭剪型高强度螺栓施工 中,因安装顺序、安装方向考虑不周,或终拧时因对电动扳手使 用掌握不熟练,致使终拧时尾部梅花头上的棱端部滑牙(即打 滑),无法拧掉梅花头.导致终拧扭矩成为未知数。因此,对此 类螺栓应控制在很小比例内。
15. 5.5-15.5.8参阅现行国家标准《钢结构工程施工质量验收 规范》GB 50205相应条文的条文说明。
NVV
285
标准分享网WWW. bzfxw. com免费下载
16钢构件焊缝补强工程
16.1 -般规定
16.1.1、16.L 2本章的规定虽然适用于焊缝连接在卸荷状态和 负荷状态下补强的施工过程控制和施工质量检验,但由于负荷状 态下的焊缝补强作业稍有失误,便不仅易发生工程事故,而且还 直接涉及安全问题。因此,建议业主和设计单位应坚持要求监理 人员必须全程在场监督负荷状态下的焊接施工,而且还应要求监 理单位所指派的应是具有良好职业道德和责任心强的焊接专业工 程师。否则业主有权要求撤换。
16.1.3、16.1.4钢构件焊接区的表面不能处于潮湿状态。因为 水分子在电弧高温作用下将分解出氢,以致影响焊缝质量。因 此,严禁雨雪天气的露天作业。同时,4级以上风力作用下施 焊,不仅电弧易被吹偏,而且将使焊缝冷却速度加快,以致产生 冷裂纹,故规定应有挡风措施。
16.1.5钢结构加固工程施工中,•落工是特殊工种,其操作技能 和资格对保证工程质量起到最关键作用。至于负荷状态下的焊缝 补强焊接,更是高风险的作业。为确保工程和人身安全,除必须 加严检查焊工的专门资格证书外,还应对焊工进行现场考试或 考核。
本条为强制性条文,必须严格执行。
16.2焊区表面处理
16.2.1执行本条时,应同时执行本规范第3. 0.4条和第3. 0. 5 条的规定,否则可能遇到许多困难。因为钢构件焊区的表面质量 对焊接工艺和焊接质量有很大影响,不仅应认真修整,而且修整 完毕时,还应立即通知监理人员进行检查,经其书面认可并签字
286
后方可进入下一工序。
16∙2∙3参阅本章第16.1.4、16.1.3、16. 2.1条的条文说明. 即可理解此项复查工序的重要性和必要性。
16.3爆缝补强施工
16.3.1钢结构在我国发展很快,除传统建筑钢材之外,高强度 建筑钢材和焊接材料日益增多。同时,进口的高强钢材也很多。 为保证焊接质量,本条规定了钢结构焊接施工前应进行工艺试验 的范围,以期取得最佳工艺参数,为制定焊接施工技术方案提供 依据。
16.3.2负荷状态下实施焊接补强施工,是一项高风险而又复杂 的作业,考虑到加固工程现场的环境和条件差,难以预计的影响 因素多,其焊接难度远比新建工程大,因此必须认真研究其施焊 工序。本条规定的各项措施,是多年工程实践经验的总结,只要 认真执行,就会对施焊作业的顺利完成有很大帮助。
16.3.3焊缝连接加固,尤其是负荷下的加固,施焊时,应力求 不使构件同一连接边的焊缝同时加热,以免导致该连接全部退出 工作。为此,对双角钢与节点板连接的煙缝加固时,规定了从一 角钢一端受力较小的肢尖焊缝加固施焊,再施焊此角钢另一端的 A /肢尖焊缝,然后依次施焊其两端肢背的相应焊缝。•
16.4焊接质量检验
16.4.1参阅本规范第15.5.1条的条文说明。
16.4. 2参阅本规范第15. 5. 2条的条文说明。
16.4.3参阅现行国家标准《钢结构工程施工质量验收规范》 GB 50205相应条文的说明。
287
标准分享网WWW. bzfxw. com免费下载
17钢结构裂纹修复工程
17.1 一般规定
17.1.1本章规定的钢结构、构件裂纹修复工程的施工过程控制 和施工质量检验,是以中国工程建设标准化协会标准《钢结构加 固技术规范》CECS 77的设计方法为基础制定的。因此,其适 用范围和条件也是与该规范相对应的。如果裂纹修复的设计是以 其他标准为依据的,则不宜引用本章的规定。
17∙L2发现钢结构上有裂纹时,一般应先在裂纹端点外约 0.%〜1.0大处钻直径为f α为板件厚度)的孔,以作为应急措 施,暂时阻止其扩展。然后再进一步查明其扩展过程和裂纹性 质,以决定对其采取修堵、清除或加固的适宜方案;不宜一发现 裂纹便直接补姆,因为这样做容易恶化金属的品质、增添焊接附 加应力及产生新的有害裂纹。
17.1.3本条给出了裂缝修复的原则:一是必须严格按设计、施 工图的要求执行;二是应有专门制定的焊接工艺方案。但应指出 的是:要执行这两项原则并非易事。因此,同样应遵守本规范第 16. 3. 4条的规定,亦即:应由专门培训合格的焊工施焊外,还 必须有焊接专业工程师在场指导。同时,监理人员也必须全程实 施检查和监督之责。
17.2焊缝补强施工及质量检验
17.2∙1钢结构板件中的裂纹,多源生于结构应力集中、残余应 力大、或作用应力高、H艺有缺陷、构造不当、材质劣化等处。 故一般用对接焊缝修补时,应沿裂纹清边、剖口,并于施焊时采 取减少焊接残余应力的施焊工艺,本条文中给出的只是堵焊修复 裂纹的一般程序;当遇到复杂情况时,尚应专门研究。
288
对于受有动力荷载结构的疲劳裂纹,用对接焊缝堵焊之后, 其焊缝表面的磨平,应予特别注意,切忌使砂轮旋转的切线方向 与构件受力方向垂直,以免砂粒刻痕形成新的类似裂纹性质的缺 陷.有损构件的抗疲劳性能,
17.2.2对于网状等非单一的裂纹缺陷,可采用挖除和用嵌板对 接的修补方法修复结构,本条给出了修补这类裂纹的一般程序。
17.2.3用附加盖板修复或加固裂纹板件时,裂纹端点处仍需先 钻孔,暂时阻止裂纹扩展,再用两块盖板贴在裂纹板件两面并压 紧,然后沿周边用角焊缝方式焊接:若采用高强度螺栓连接方法 时,应在裂纹每侧布置双排螺栓,每排螺栓数目,除应根据计算 夕卜,其最外一个螺栓应超出裂纹端15Omm以上,以减轻裂纹端 点应力,防止其继续扩展。
17.2.4吊车梁腹板上部裂纹,多与其上安置的轨道偏心等因素 有关,因而首先应对其进行检查、调整,再根据实际情况,采用 条文中建议的修复裂纹和增强上翼缘抗扭能力的各种加固构造措 施进行修复.
17.2.5采用焊接方法修复钢结构裂纹时,其焊接的施工质量检 验要求与本规范第16.4节的规定相同,故可按本规范第16. 4. 1〜 16.4. 3条执行。
Λ∕v
289
标准分享网WWW. bzfxw. com免费下载
18混凝土及砌体裂缝修补工程
18.1 一般规定
18.1.1混凝土结构构件的变形裂缝,主要影响其正常使用功 能、耐久性和外观质量;砌体结构构件的变形裂缝,还影响其结 构的整体性。因此,在有些变形裂缝的处理上有一定的差别,但 其修补的施工方法却很相近,故本章的规定对两者均适用。
这里需要说明的是:对影响结构、构件承载力的裂缝以及地 基不均匀沉降引起的裂缝,若需按本章的规定进行修补,应先采 取必要的加固措施,在消除了裂缝起因或在裂缝停止发展后,再 进行修补施工才能收到设计所要求达到的效果。
18.1.2本条规定了裂缝修补的一般程序。执行时,可根据工程 实际情况加以细化或简化。
18.1.3目前市场上出售的修补胶,凡能在低温环境中固化者, 必定经过改性。若未经改性,则无法在15℃以下的环境中正常 固化。因•此,在修补胶产品使用说明书中未给出使用环境温度 者,或虽给出使用环境温度,但说明书及出厂检验报告却是复印 件者,几乎可以肯定不是低温固化型结构胶,这类胶的使用环境 温度不可能低于151〜16(,因为它要受其固有特性所制约。 对承重结构加固工程而言,应避免使用这类冒名的修补胶。
18.2界面处理
18.2.1裂缝腔内粘合面在灌注修补剂前是否需要处理,以及如 何处理,主要取决于修补胶产品的设计和使用条件。因此,必须 按产品使用说明书的规定严格执行。对重要结构或无使用经验的 施工单位,还应要求厂方派专业技术人员莅临现场指导。若产品 使用说明书不涉及界面处理方法和技术要求,或厂方(包括经销
290
商)无能力派员指导,则应拒用这类产品,否则责任应由业主和 监理单位共同承担。
1&2.2普通型的裂缝修补胶,由于它在高潮湿面条件下固化不 良,因此,必须按产品使用说明书的要求控制原构件裂缝腔内粘 合面的含水率,否则将会给裂缝修补工程留下隐患。若控制含水 率有困难,应改用高潮湿面专用的修补胶。
18.3表面封闭法施工
18. 3.1当修补裂缝不要求恢复该构件截面整体性或无补强要求 时,表面封闭法是最常用的裂縫修补法。因为它不仅可以阻止钢 筋劣化,改善原构件的外观质量和使用功能,而且在裂缝较细的 情况下,还能起到防渗的作用。但是,要使得表面封闭材料与原 构件能够牢靠地粘合,除了应要求所采用的胶粘剂具有较强的抗 剥离能力和很小的收缩性之外,还必须保证原构件的打磨质量及 其表面含水率能够与胶粘剂性能相适应◎因此,在粘结封闭之 前,应按胶粘剂使用说明书的要求对这些问题进行复查。
18.3.2表面封闭用的材料种类不少,目前较常用的是E玻璃 纤维(无碱玻璃纤维)和碳纤维织物。最近有些非结构构件还开 始使用无纺布替代无碱玻璃纤维。但不论采用哪种纤维织物 (布),其粘贴工艺均取决于胶粘剂的性能Q当所采用的胶粘剂是 由底胶、结构胶(浸润一粘结胶)和找平胶组成时,其底胶应具 有较低的初黏度和良好的渗透性。因为其作用是渗入基材的毛细 孔中,以使结构胶在与纤维织物粘结的同时,增强它与基材的粘 结强度。另外,应指出的是:当采用的是免底涂胶粘剂时,虽无 需涂刷底胶,但为了防范材料供应商串通施工单位以普通胶粘剂 来冒名顶替,监理单位必须认真检查免底涂胶粘剂的品牌、型 号、包装、中文标志和出厂检验报告等证明材料。当有怀疑时, 还应见证取样送检。若进场的胶粘剂,其证明文件不全或对其外 观质量有怀疑时,应予拒收。
18.3.3、18.3.4与本规范第10章相应条文的说明相同。
291
标准分享网WWW. bzfxw. com免费下载
18.3.5当采用纤维织物(布)对裂缝表面进行封闭时,应采取 骑缝粘贴方式,方为有效;因此,纤维织物.(布)的宽度分取 决于其边缘与裂缝中心线的距离。亦即要求许?IOOmm,且不 允许有负偏差。若裂缝的走向为非直线,且弯曲段的弯度过大 时,则需采取分段分叉搭接的方式进行封闭处理,以节约材料。
18.3.6采用纤维织物封闭裂缝,一般可仅贴一层,但若有防渗 要求,宜贴两层。此时,第二层织物的粘贴时间应符合胶粘工艺 的要求。
18.3.7在纤维织物最上一层的面上,涂胶、撒石英粗砂,不仅 可以使水泥砂浆与纤维织物粘结牢固,而且还能使水泥砂浆面层 不易开裂。
18.4柔性密封法施工
18.4.1柔性密封法主要用于修补较宽的静止裂缝和活动裂缝。 当为静止裂缝时,可凿成V形槽或U形槽,并充填丙烯酸类或 氨基甲酸乙酯类聚合物砂浆即可。若静止裂缝仍稍有胀缩变形, 或静止裂缝出现在重要结构构件上,则宜凿成U形槽。因为V 形槽的施工虽简便,但它与基材的粘结易发生剥离或脱落。因 此,现行国家标准《混凝土结构加固设计规范》GB 50367根据 国内外经验,推荐使用U形槽。同时建议使用可挠性改性环氧 树脂配制的聚合物砂浆。另外应指出的是:倘若钢筋已开始锈 蚀,不仅应采用U形槽,而且其宽度和深度要凿至能够充分处 理钢筋的程度。此时,为防止聚合物砂浆收缩开裂,应掺入适量 的纤维材料。•
18.4.2当为活动性裂缝时,由于需设置隔离层,故应凿成U 形槽,.且槽内两侧壁应打毛。U形槽的深度和宽度应适当加大, 且应凿成光滑的平底,以利于铺设隔离层。
隔离层可采用聚乙烯片、蜡纸或油毡片等材料制成,但隔离 层应干铺,不得与槽底基材(混凝土或砌体等)有任何粘连。
18. 4.3在填充密封材料前之所以要求在槽内两侧壁表面涂刷胶
292
液,主要是要使充填材料能起到既密封又能适应裂缝处变形的 作用。
18.4.4宼项防护措施均是为了保护填充的密封材料不受人为的 和自然的损害。
■18.5压力灌注法施工
18.5.1~18.5.4原则上可按裂缝修补胶或注浆料的产品使用说 明书进行施工,但由于当前新兴的加固市场尚不规范,有不少伪 劣产品混杂其中5乱贴牌、乱套用其他产品说明书,给出不适用 的参数等现象时有发生。因此,针对本条文的要求,给出下列来 自工程经验的建议供参考、对照使用,以便于设计、监理单位能 及时发现产品有无问题。
1常用的裂缝修补胶和注浆料
1)
2)
/VW
定压针筒注射法使用的裂缝修补胶
修补效果最佳的是:以低黏度改性环氧结构胶为主成 分组成的裂缝修补胶。当结构有补强要求时,还应选 用具有封闭与补强双重效果的裂缝修复胶。
机控压力注浆法使用的注浆料
--当裂缝宽度小于O. 2mm时,宜采用初黏度不大 于20OmPa , s的改性环氧类浆液灌注;若裂缝宽 度小于0. Imm时,其初黏度宜不大于30mPa ∙ si
-—当裂缝宽度不大于6 5mm时,可采用黏度不大 于40OmPa•s的改性环氧类浆液灌注;
--当裂缝宽度不大于2mm时,可采用黏度不大于 80OmPa ∙ s的改性环氧类浆液灌注。
2注浆嘴、注浆帽、注浆管的选用
-—对宽度小于0.3mm的细裂缝,宜用注浆帽;
--对宽度大于0∙3mm的细裂缝,宜用注浆嘴;
--对大体积混凝土结构中很深的裂缝,应骑缝钻孔或斜向 钻孔至裂缝深处,然后在孔内埋设注浆管。
293
标准分享网WWW. bzfxw. com免费下载
3定压针筒注浆法的注浆嘴(帽)间距的选择
定压針筒注浆法的注浆嘴(帽)间距的选择
| 裂縫宽度(mm) | 注浆嘴间距(mm)______ | 
| 0.3以下 O. 3~0.5 O. 5~1.0 __________1,0以上__________ | ≤100 ≤200 ≤250 ≤300 | 
注:注浆嘴(帽)也称注射头.
4机控压力注浆法的注浆压力
胶液一^用的压力为O. 2MPa~0. 6MPa?
水泥基浆液——常用的压力为O. 4MPa〜0∙ 8MPa0 上述压力应逐渐升高,防止骤然加压。
18.6施工质量检验
18.6.1本条规定的三种检验方法虽均可选用,但其中以取芯法 最为可靠,也最难取得试样:超声法虽较简便,但需有经验的专 业技术人员才能测得较可信的结果;承水法也很可靠,但适用范 围较小,一般仅用于测定楼盖类构件的裂缝修补后的防渗漏性 能.因此,应根据工程实际情况和检测单位的实力酌情选用。
294
19植筋工程
19.1 一般规定
19. Ll本条在规定植筋工程的适用范围时,着重强调了混凝土 及砌体结构应以锚固型结构胶粘剂种植带肋钢筋或全螺纹螺杆。 因此,应理解为:既不得采用其他未经安全性鉴定的锚固剂,也 不得采用光圆钢筋。这一规定与"住房和城乡建设部"以建标 [2008] 132号文发布的《地震灾后建筑鉴定与加固技术指南》 的规定是一致的。因为我国是多地震国家,属于地震区的城镇和 乡村分布很广。在这种情况下,对非地震灾区的植筋工程也绝不 能大意,以免给承重结构留下安全隐患。
19.1.2植筋施工程序正确与否,对施工质量影响很大。倘若施 工技术人员不掌握施工程序及施工方法,将很容易出差错。S 此,必须加以明确,并要求施工和监理人员应按该框图规定的程 序执行。
19.1.3本条2、3两款较易理解。这里需要说明的是:对未标 明适用温度的胶,之所以应按“不低于15C"的要求进行控制, 是因为一般合成树脂胶粘剂在未改性的情况下,其基材表面温度 必须在159以上才能正常固化。另外.由于标明了适用的温度, 厂家便应对胶粘质量负责。这样,也有助于打击伪劣产品。
19.1.5在先植筋的情况下,倘若采取了有效的降温措施,虽然 仍可对个别植筋进行补焊,但总归存在着一定风险,故在实际工 程中,对成批的植筋仍应坚持先焊接后植筋的原则,以确保胶层 不致因受高温作用而受损伤。
19.2界面处理
19. 2.1-19.2.5这五条规定是根据国外的工程经验制定的。十
295
标准分享网WWW. bzfxw. com免费下载
多年来国内的大量工程实践经验也表明,这样处理植筋孔壁确实 可以收到良好的效果,应严格执行。前段时间,上海等地曾有无 需清孔、除锈的说法,且流传甚广,但经查证是少数厂家为赢得 市场竞争串通个别科研单位检验人员所编造的不实之词,但其所 造成的不良后果已为不少工程留下安全隐患。因此,务请设计和 监理单位在今后的工程中予以抵制。
19.3植筋工程施工
19.3.1近来发现国内外大多数厂家生产的双组分自动搅拌注射 装置,其搅拌效果不佳,显著地影响了胶液的正常固化和胶粘质 量。因此规定了植筋作业开始前,应对所使用的注射装置进行试 操作:搅拌效果不好的应予弃用。
19.3.2目前由于国内有些监理人员责任心不强,未能尽责地对 植筋施工过程进行监督,致使不少地区施工单位敢于明目张胆地 改变作业方法,擅自取消了灌注胶液的工序,改为将钢筋往胶桶 里一粘,便算了事。这是极端恶劣的行径,但有些监理人员却视 而不见,让它悉数通过;从而给植筋工程留下了严重的安全隐 患。这几年来不少火灾事故中,曾发现这类植筋全被拔出,应当 引为教训。为此,.应提请设计和业主关注植筋工程的施工质量, 一旦发现类似问题,应严肃追究瓏工和监理人员的责任。
19.3.5本条规定的植筋钻孔的孔径允许偏差,系以钻头最大直 径为依据确定的C因为该直径对制定允许偏差较有参照价值,也 便于复核设计的有关参数。同时,工程实践也表明,只要使用质 量合格的钻头,一般孔径偏差均能控制在允许范围内。
另外,应指出的是,本规范对钻孔垂直度允许偏差的规定, 系参照国内外施工经验制定的。以上部结构构件的钻孔为例,基 本上是取倾斜角为L 8。进行控制的。这对一般长度的钢筋是合 适的,但在某些情况下可能偏严。为此,加上一注:当钻孔垂直 度偏差较大时,该孔洞是否可用,应由设计单位进行确认。这也 就意味着该允许偏差值可根据工程实际要求的控制程度进行
296
调整。
19.4施工质量检验
19.4.1 同现行国家标准《混凝土结构加固设计规范》 ■ GB 50367有关条文的说明。
本条为强制性条文,必须严格执行。
19.4,2这类问题一般应以大样本进行检验。就建筑结构而言, 至少应取30个试件,才能勉强被视为大样本.为此,若有条件 尚可酌情增加试件数量。
另外,应指出的是:若怀疑施工单位使用了劣质胶粘剂,例 如使用乙二胺等为主成分的固化剂.尚应取样进行化学分析。一 般情况下,宜在使用剩余的乙组分(固化剂)包装中取样,较为 容易得到化验结果;只有在不得已的情况下,才取已固化的样品 进行化验。
NWw
297
标准分享网WWW. bzfxw. com免费下载
20锚栓工程
20.1 一般规定
20.1.1在承重结构中使用膨胀锚栓,尤其是市售的劣质膨胀锚 栓,极易发生危及工程安全的问题,以致在多年前便被各省、 市、自治区建设主管部门禁止使用,国家标准《混凝土结构加固 设计规范》GB 50367 - 2006也作出了类似规定,而且还是强制 性条文。因此本章所指的锚栓不包括膨胀锚栓。
另外,应指出的是特殊倒锥形锚栓仅指"糖葫芦形锚栓"而 言,不包括一般胶粘螺杆。
20.1.2对本条的规定,应与本规范第3. 0. 4条及第3. 0. 5条相 结合执行,才能系统、正确地进行锚栓工程的施工,否则将会在 施工过程中遇到很多本来可以避免的问题。
20.1.3为避免锚栓钻孔过程中伤及原构件配置的钢筋?保证锚 栓钻孔的质量,应对配有钢筋的构件进行探測,当发现锚栓孔位 处有钢筋时,应通知设计单位到场进行处理。
20.1.4安装锚栓的现场气温低于一5°C时,工人操作的精度等 会受到一定的影响。
20.2锥栓安装施工
20.2.1选用规定的钻头及配套工具是施工质量的基本保证;况 且不同品种锚栓所用的钻头规格也不尽相同。
20.2. 2基材表面及锚孔的清理到位与否直接关系到锚栓与基材 连接的可靠性。由于钻孔而造成的粉尘和碎屑若不清除干净,对 后扩底型机械锚栓而言,将很难与孔壁、孔底完全紧密接触,当 锚栓受外力作用时会发生松弛或位移。因此,应按本规范及设计 要求进行清理。
298
20.2.3本条规定的自扩底、模扩底锚栓的安装作业要点,是保 证锚栓安装到位的措施。
20.2.6本条提出了成孔的质量要求。值得注意的是锚栓的锚孔 直径偏差过大,其孔壁与锚栓之间就很难有锁紧作用0其后果是 会影响锚栓的承载能力。因此,应提高成孔的质量.尽可能地减 小钻孔的偏差。
‘ 20.3施工质量检验
20.3.l 同现行国家标准《混凝土结构加固设计规范》 GB 50367有关条文的说明。
本条为强制性条文,必须严格执行。
A/W
299
标准分享网WWW. bzfxw. com免费下载
21灌浆工程
21.1 一般规定
21.1.1在结构加固工程中使用的水泥基灌浆料,不仅有其专门 的安全性要求,而且有其专门的工艺要求。因此,本章规定的灌 浆工程适用范围,也是以采用结构加固用水泥基灌浆料为前提确 定的。之所以作这样严格的区分,是因为目前在结构加固工程中 滥用灌浆料的情况较为严重。如果不加以限制,可能导致出现安 全质量问题。
21.1.2灌浆工程的施工程序及需按隐蔽工程验收的项目,基本 上与混凝土增大截面工程相同,仅需在加工、安装模板和灌注施 工的工序中考虑到灌浆的特点、手段和要求即可。
21.2施工图安全复查
21.2.1-2L 2.3针对目前结构加固H程中滥用灌浆料所导致的 安全质量问题,有必要通过对施工图的安全复查,规范其应用范 围和应用条件。为此,本规范作出了相应的具体规定。这些规定 都是在调查总结现有灌浆工程存在问題的基础上作出的。其中需 要指出的是:在混凝土增大截面工程中之所以不允许使用纯灌浆 料,而应使用它与细石混凝土混合而成的浆料,是因为纯灌浆料 在它所含的膨胀剂作用消失后,便很容易出现温度裂缝和收缩裂 缝,而混合料在很大程度可以避免或减小这类裂缝的出现。在外 包钢工程中,之所以不允许考虑其粘结能力,是因为在没有采用 环氧类聚合物改性的情况下,水泥基灌浆料的粘结性能仅相当于 普通混凝土;即使有个别灌浆料粘结能力稍强,但也不足以粘结 型钢。 ^
21.2.4考虑到目前存在着多本涉及灌浆料应用的标准、规范,
300
其规定不甚一致,且很难在可以预见的时间内获得统一。因此有 必要对本规范所管辖的建筑结构作出其加固改造工程应按本规范 执行的规定,从而至少可保证在建筑结•构领域中使用灌浆料不致 出现严重的安全问题。
21.3界面处理
21.3.1-21.3.3参阅本规范第5. 2.1条及第5. 2. 2条的条文 说明。 ^
21.4灌浆施工
21.4,1参阅本规范第5∙ 3.1条的条文说明。
21.4.2本条系根据国内灌浆工程总结的经验制定的。其中第2 款系根据厦门地区的灌浆工程经验制定的。
21.4.3参阅本规范第5. 3. 2条的条文说明。
本条为强制性条文,必须严格执行。
21.4.4、21.4,5见现行行业标准《建筑工程冬期施工规程》 JGJIo4及现行国家标准《水泥基灌浆材料应用技术规范》 GB/T 50448相关条文的规定及其茶文说明。
21.5施工质量检验
21.5.1、21.5.2参阅本规范第5章的有关条文说明。
301
标准分享网WWW. bzfxw. com免费下载
22建筑结构加固工程竣工验收
22.0.1对本条应说明以下5点:
,1检验批和分项工程是建设工程质量的基础,因此,所有 的检验批和分项工程应由监理工程师或建设单位项目技术负责人 组织验收。验收前,施工单位先填好"检验批和分项工程的质量 验收记录"(有关监理记录和结论不填),并由项目专业质量检验 员和项目专业技术负责人分别在检验批和分项工程检验记录中相 关栏目签字,然后由监理工程师组织,严格按规定程序进行 验收。
2本条规定了子分部工程验收的组织者及参加验收的相关 单位和人员。工程监理实行总监理工程师负责制。因此,子分部 工程是由总监理工程师或建设单位项目负责人组织施工单位的项 目负责人和项目技术、质量负责人及有关人员进行验收。因为项 目的主要技术资料和质量问题是由技术部门和质量部门掌握,所 以规定施工单位的技术、质量部门负责人参加验收是合理的。
3本条规定分部工程完成后,施工单位首先应以有关质量 标准、设计图纸等为依据,组织力量先进行自检,并对检查结果 进行评定。符合要求后向建设单位提交分部工程验收报告和完整 的质量控制资料。分部工程质量验收应由建设单位负责人或项目 负责人组织,由于设计、施工、监理单位均系责任主体,因此设 计、施工单位负责人或项目负责人及施工单位的技术、质量负责 人和监理单位的总监理工程师均应参加验收。
4建设工程竣工验收备案制度是加强政府监督管理,防止 不合格工程流向社会的一个重要手段。建设单位应根据《建设工 程质量管理条件》和建设部门的有关规定,到县级以上人民政府 建设行政主管部门或其他有关部门备案。否则,不允许投入
302
使用。
.5本条规定了分部工程质量验收意见不一致时的组织协调 部门。协调部门可以是当地建设行政主管部门,或其所委托的机 构或单位,也可是各方认可的中介机构。
22.0.4子分部工程的验收在其所含各分项工程验收的基础上进 行。本条给出了子分部工程验收合格的条件「即:子分部工程的 各分项工程必须已验收合格且相应的质量控制资料文件必须完 整,这是验收的基本条件。此外,由于各分项工程的性质不尽相 同,因此,作为子分部工程不能依简单的组合予以验收,而需划 分为以下两类检查项目分别进行验收:
一是涉及安全的检验项目应有见证取样、送样检验或抽样检 测的文件汇总;二是观感质量的验收。由于后者一般只能以观 察、触摸或简单量测的方式进行,并按个人的主观印象作出判 断,故检查结果应经综合评定后才能给出共同确认的“合格"或 "不合格"的结论。
22.0.5工程存在严重缺陷,经返修或再加固后仍不能满足安全 使用要求时,必须严禁验收.以免给加固工程留下安全隐患。•
/VWv
303
标准分享网WWW. bzfxw. com免费下载