广东省应急管理厅办公室


粤应急办函〔202514


广东省应急管理厅办公室关于印发工贸行业 粉尘涉爆和有限空间作业企业安全检查 工作指引的通知


各地级以上市应急管理局、横琴粤澳深度合作区商事服务局:

为深入推进工贸行业重大事故隐患排查整治,进一步提升基 层监管人员与企业人员精准识别隐患、科学化解风险的能力,有 效防控工贸行业粉尘涉爆、有限空间作业领域企业安全风险,省 应急管理厅组织编制了工贸企业粉尘涉爆、有限空间作业安全检 查工作指引(以下简称指引)。现将指引印发给你们,请各地 深入开展宣贯活动,指导辖区相关工贸企业结合实际参照执行, 切实提升安全生产管理水平,筑牢粉尘涉爆、有限空间作业企业 安全生产基础。

附件:1.广东省工贸企业粉尘涉爆安全检查工作指引

2.广东省工贸企业有限空间作业经金捡查工作指引


[公室 日


(联系人:张韧,联系电话:020-83133414)


广东省粉尘涉爆企业安全检查工作指引


广东省应急管理厅 202511


目录


一、工贸企业重大事故隐患(粉尘涉爆类)排查指引表.................................1

二、工贸企业重大事故隐患(粉尘涉爆类)除外情景指引表...................... 49

三、不涉及粉尘爆炸的涉粉工艺检查说明....................................................... 57

(一)粉尘爆炸危险性辨识评估依据................................................................57

(二)粉尘可爆性筛选测试................................................................................ 58

(三)粉尘不可爆辨识常见问题........................................................................59

(四)粉尘不可爆辨识常见问题示例................................................................60


广东省粉尘涉爆企业安全检查工作指引


一、工贸企业重大事故隐患(粉尘涉爆类)排查指引表


粉尘爆炸重大事故隐患之一(1


检查内容 粉尘爆炸危险场所是否设置在砖混、砖木、砖拱等非框架结构的多层建(构)筑物内。


风险分析 粉尘爆炸破坏力强,设置在非框架结构的多层建构筑物内的粉尘爆炸危险场所一旦发生粉尘爆炸,极易造成整栋厂房的垮塌,导致群死群伤。


1.《工贸企业粉尘防爆安全规定》(应急管理部令第6号)第十四条;2.《工贸企业重大事故隐患判定标准》(应急管理部令第10号)第十一条第一 检查依据

款;3.《粉尘防爆安全规程》(GB 15577-2018)第5.1条。


常见隐患照片


案例图片展示



X


砖木结构


X


砖混结构



曲层顶郁轻质结构



多层推架结构


1


广东省粉尘涉爆企业安全检查工作指引


粉尘爆炸重大事故隐患之一(2




2


广东省粉尘涉爆企业安全检查工作指引


粉尘爆炸重大事故隐患之一(3


检查内容 粉尘爆炸危险场所内是否设置了可能存在人员聚集的员工宿舍、会议室、办公室、休息室等。


风险分析 粉尘爆炸危害波及范围广,如员工宿舍、会议室、休息室、办公室等人员聚集场所设置在粉尘爆炸危险场所内,粉尘爆炸时会造成大量人员伤亡。


检查依据


1.《工贸企业粉尘防爆安全规定》(应急管理部令第6号)第十四条;2.《工贸企业重大事故隐患判定标准》(应急管理部令第10号)第十一条第一 款;3.《粉尘防爆安全规程》(GB 15577-2018)第5.7条。


常见隐患照片


案例图片展示




X


粉尘爆炸危险场所内设置了办公室



打磨车间内未设置人员聚集场冴


3


广东省粉尘涉爆企业安全检查工作指引


粉尘爆炸重大事故隐患之二(1



4


广东省粉尘涉爆企业安全检查工作指引


粉尘爆炸重大事故隐患之二(2



5


广东省粉尘涉爆企业安全检查工作指引


粉尘爆炸重大事故隐患之二(3


检查内容 两栋或者两栋以上独立的建(构)筑物内产尘点是否共用一套除尘系统。


风险分析


不同建构筑物除尘系统互联互通,一旦发生粉尘爆炸,所有通过除尘系统连接的区域都会受到爆炸波及,导致事故的影响范围扩大,可能造成更多 的人员伤亡。


检查依据


1.《工贸企业粉尘防爆安全规定》(应急管理部令第6号)第十五条;2.《工贸企业重大事故隐患判定标准》(应急管理部令第10号)第十一条第二 款;3.《粉尘防爆安全规程》(GB 15577-2018)第8.1.4条。


常见隐患照片


案例图片展示




X


两栋独立的建(构)筑物内产尘点共用一套除尘系统



木工车间专用除尘系统


粉尘爆炸重大事故隐患之二(4

6


广东省粉尘涉爆企业安全检查工作指引


检查内容 同一建(构)筑物不同防火分区的产尘点是否共用一套除尘系统。


风险分析


检查依据


不同防火分区除尘系统互联互通,一旦发生粉尘爆炸,所有通过除尘系统连接的区域都会受到爆炸波及,导致事故的影响范围扩大,可能造成更多 的人员伤亡。

1.《工贸企业粉尘防爆安全规定》(应急管理部令第6号)第十五条;2.《工贸企业重大事故隐患判定标准》(应急管理部令第10号)第十一条第二 款;3.《粉尘防爆安全规程》(GB 15577-2018)第8.1.4条。



一建(构)筑物不同防火分区(楼层)的产尘点是否共用一套除尘系统


粉尘爆炸重大事故隐患之二(5


7


广东省粉尘涉爆企业安全检查工作指引


检查内容 不同建构筑物、不同防火分区的除尘系统通过除尘管道、出风管、风机相联通。


风险分析


不同防火分区除尘系统互联互通,一旦发生粉尘爆炸,所有通过除尘系统连接的区域都会受到爆炸波及,导致事故的影响范围扩大,可能造成更多 的人员伤亡。


检查依据


1.《工贸企业粉尘防爆安全规定》(应急管理部令第6号)第十五条;2.《工贸企业重大事故隐患判定标准》(应急管理部令第10号)第十一条第二 款;3.《粉尘防爆安全规程》(GB 15577-2018)第8.1.4条。


常见隐患照片


案例图片展示



〉同一建(构)筑物不同防火分区(楼层)的除尘系统共用同一个风机,除尘 系统通过风机前出风管相联通



粉尘爆炸重大事故隐患之三(1


8


广东省粉尘涉爆企业安全检查工作指引


检查内容 干式除尘系统除尘器箱体是否采取泄爆、惰化、抑爆等任一种控爆措施。


风险分析 干式除尘系统中的除尘器本体是粉尘爆炸的高发部位,泄爆、惰化、抑爆等都是防范和降低粉尘爆炸事故后果扩大的有效防爆、控爆措施。


1.《工贸企业粉尘防爆安全规定》(应急管理部令第6号)第十五条;2.《工贸企业重大事故隐患判定标准》(应急管理部令第10号)第十一条第三 检查依据

款;3.《粉尘防爆安全规程》(GB 15577-2018)第7.1.3条。



粉尘爆炸重大事故隐患之三(2


9


广东省粉尘涉爆企业安全检查工作指引



粉尘爆炸重大事故隐患之三(3


10


广东省粉尘涉爆企业安全检查工作指引



粉尘爆炸重大事故隐患之三(4


11


广东省粉尘涉爆企业安全检查工作指引




粉尘爆炸重大事故隐患之三(5


12


广东省粉尘涉爆企业安全检查工作指引


检查内容 干式除尘系统采取气体惰化措施时,是否采取氧含量在线监测报警措施。


风险分析 干式除尘系统中的除尘器本体是粉尘爆炸的高发部位,泄爆、惰化、抑爆等都是防范和降低粉尘爆炸事故后果扩大的有效防爆、控爆措施。


1.《工贸企业粉尘防爆安全规定》(应急管理部令第6号)第十五条;2.《工贸企业重大事故隐患判定标准》(应急管理部令第10号)第十一条第三 检查依据

款。


常见隐患热片


案例图片展示





X


煤粉制备磨煤机未采取氧含量在线监测报警措施



控制面板对应昱示作业区内氧含貰


粉尘爆炸重大事故隐患之三(6


13


广东省粉尘涉爆企业安全检查工作指引


检查内容 干式除尘系统采取抑爆措施时,抑爆装置所使用的抑爆剂是否适用于所处理的粉尘。


风险分析


干式除尘系统中的除尘器本体是粉尘爆炸的高发部位,泄爆、惰化、抑爆等都是防范和降低粉尘爆炸事故后果扩大的有效防爆、控爆措施。抑爆剂 可能与粉尘发生反应导致事故的扩大。


检查依据


1.《工贸企业粉尘防爆安全规定》(应急管理部令第6号)第十五条;2.《工贸企业重大事故隐患判定标准》(应急管理部令第10号)第十一条第三 款;3.《粉尘防爆安全规程》(GB 15577-2018)第7.1.3条。


常见隐患照片


案例图片展示



X


抑爆装置所使月的抑爆剂不适用干历处翌的粉尘




抑爆发置所使月的抑爆剂适用二所处匡的粉尘


粉尘爆炸重大事故隐患之四(1


14


广东省粉尘涉爆企业安全检查工作指引


检查内容 铝、镁、锌、钛等金属或者金属合金产生的可燃性粉尘除尘系统是否采用正压除尘方式。


1.风机设置在除尘器前部,属于正压送风方式。正压送风时高浓度含尘气流及可能从工位吸入的异物(如小型工件、工具等)会经过风机高速旋转的 风险分析

风机叶轮与异物撞击、摩擦会引起火花成为点火源,进入到除尘器内易引发粉尘爆炸;2.叶片脱落或蜗壳变形也可能形成危险热源。


1.《工贸企业粉尘防爆安全规定》(应急管理部令第6号)第十五条;2.《工贸企业重大事故隐患判定标准》(应急管理部令第10号)第十一条第四 检查依据

款;3.《粉尘防爆安全规程》(GB 15577-2018)第8.1.7条。


常见隐患照片


案例图片展示



X


铝制品抛光采用正压湿式除尘



铝制品抛光采用负压湿弍除尘


粉尘爆炸重大事故隐患之四(2

15


广东省粉尘涉爆企业安全检查工作指引


检查内容 铝、镁、锌、钛等金属或者金属合金产生的可燃性粉尘除尘系统是否采用正压除尘方式。


1.风机设置在除尘器前部,属于正压送风方式。正压送风时高浓度含尘气流及可能从工位吸入的异物(如小型工件、工具等)会经过风机高速旋转的 风险分析

风机叶轮与异物撞击、摩擦会引起火花成为点火源,进入到除尘器内易引发粉尘爆炸;2.叶片脱落或蜗壳变形也可能形成危险热源。


1.《工贸企业粉尘防爆安全规定》(应急管理部令第6号)第十五条;2.《工贸企业重大事故隐患判定标准》(应急管理部令第10号)第十一条第四 检查依据

款;3.《粉尘防爆安全规程》(GB 15577-2018)第8.1.7条。


常见隐患照片


案例图片展示


X




钛合金打磨抛光采用正压干式除尘



気令登打磨抛光采用负压干式除尘


粉尘爆炸重大事故隐患之四(3


16


广东省粉尘涉爆企业安全检查工作指引


检查内容 其他可燃性粉尘除尘系统采用正压吹送粉尘时,是否在风机与除尘器箱体之间采取火花探测及消除等防范点燃源措施。


风险分析


检查依据


1.风机设置在除尘器前部,属于正压送风方式。正压送风时高浓度含尘气流及可能从工位吸入的异物(如小型工件、工具等)会经过风机高速旋转的 风机叶轮与异物撞击、摩擦会引起火花成为点火源,进入到除尘器内易引发粉尘爆炸;2.叶片脱落或蜗壳变形也可能形成危险热源。

1.《工贸企业粉尘防爆安全规定》(应急管理部令第6号)第十五条;2.《工贸企业重大事故隐患判定标准》(应急管理部令第10号)第十一条第四 款;3.《粉尘防爆安全规程》(GB 15577-2018)第8.1.7条。


常见隐患照片


案例图片展示



面粉尘采用正压吹送除尘,未采取火花探测及消除等防范点燃源措施


粉尘爆炸重大事故隐患之四(4


17


广东省粉尘涉爆企业安全检查工作指引


检查内容 其他可燃性粉尘除尘系统采用正压吹送粉尘时,是否在风机与除尘器箱体之间采取火花探测及消除等防范点燃源措施。


风险分析


1.风机设置在除尘器前部,属于正压送风方式。正压送风时高浓度含尘气流及可能从工位吸入的异物(如小型工件、工具等)会经过风机高速旋转的 风机叶轮与异物撞击、摩擦会引起火花成为点火源,进入到除尘器内易引发粉尘爆炸;2.叶片脱落或蜗壳变形也可能形成危险热源。


检查依据


1.《工贸企业粉尘防爆安全规定》(应急管理部令第6号)第十五条;2.《工贸企业重大事故隐患判定标准》(应急管理部令第10号)第十一条第四 款;3.《粉尘防爆安全规程》(GB 15577-2018)第8.1.7条。


常见隐患照片



大米粉尘采用正压吹送除尘,未采取火花探测及消除等防范点燃源措施


粉尘爆炸重大事故隐患之五(1


18


广东省粉尘涉爆企业安全检查工作指引


检查内容 除尘系统是否采用重力沉降室除尘。


风险分析


当除尘系统采用重力沉降室除尘时,由于粉尘较轻,大量粉尘会在沉降室内经历悬浮、积聚,再慢慢下沉落地的过程,在此过程中粉尘云浓度高, 极易形成爆炸危险环境。


检查依据


1.《工贸企业粉尘防爆安全规定》(应急管理部令第6号)第十五条;2.《工贸企业重大事故隐患判定标准》(应急管理部令第10号)第十一条第四 款;3.《粉尘防爆安全规程》(GB 15577-2018)第8.4.2条。


常见隐患照片


案例图片展示


X



木粉尘沉降室



粉尘爆炸重大事故隐患之五(2


19


广东省粉尘涉爆企业安全检查工作指引


检查内容 除尘系统是否采用砖混或者混凝土砌筑的干式巷道作为除尘风道。


风险分析 当采用砖混材料等构建的干式巷道作为除尘系统时,内部粗糙,阻力系数大,且方形截面结构,容易产生积尘,发生粉尘爆炸。


1.《工贸企业粉尘防爆安全规定》(应急管理部令第6号)第十五条;2.《工贸企业重大事故隐患判定标准》(应急管理部令第10号)第十一条第五 检查依据

款;3.《粉尘防爆安全规程》(GB 15577-2018)第8.3.2条。


常见隐患想片


案例图片展示



X砖混或者混凝土砌筑的干式巷道作为金属打磨抛光工艺的除尘风道



粉尘爆炸重大事故隐患之五(3


20


广东省粉尘涉爆企业安全检查工作指引


检查内容 除尘系统是否采用砖混或者混凝土砌筑的干式巷道作为除尘风道。


风险分析 当采用砖混材料等构建的干式巷道作为除尘系统时,内部粗糙,阻力系数大,且方形截面结构,容易产生积尘,发生粉尘爆炸。


1.《工贸企业粉尘防爆安全规定》(应急管理部令第6号)第十五条;2.《工贸企业重大事故隐患判定标准》(应急管理部令第10号)第十一条第五 检查依据

款;3.《粉尘防爆安全规程》(GB 15577-2018)第8.3.2条。



粉尘爆炸重大事故隐患之六(1

21


广东省粉尘涉爆企业安全检查工作指引


检查内容 铝镁等金属粉尘、木质粉尘的干式除尘系统是否设置锁气卸灰装置。


1.锁气卸灰装置能够把除尘器灰斗和集尘桶(箱)之间进行间隔而起到锁气效果,保证除尘器处于较好的负压运行状态;同时可防止因自燃等原因形

风险分析 成的火源或其他外部火源进入除尘器内引发粉尘爆炸;2.由于铝镁等金属粉尘和木粉尘的爆炸危险级别高,破坏力强,故更强调其除尘器锁气卸灰装


置要规范设置。


检查依据


1.《工贸企业粉尘防爆安全规定》(应急管理部令第6号)第十五条;2.《工贸企业重大事故隐患判定标准》(应急管理部令第10号)第十一条第六 款;3.《粉尘防爆安全规程》(GB 15577-2018)第8.4.6条。


常见隐患照片



X金属粉尘干式除尘系统未规范设置锁气卸灰装置(单层闸板阀)



粉尘爆炸重大事故隐患之六(2


22


广东省粉尘涉爆企业安全检查工作指引


检查内容 铝镁等金属粉尘、木质粉尘的干式除尘系统是否设置锁气卸灰装置。


风险分析


1.锁气卸灰装置能够把除尘器灰斗和集尘桶(箱)之间进行间隔而起到锁气效果,保证除尘器处于较好的负压运行状态;同时可防止因自燃等原因形 成的火源或其他外部火源进入除尘器内引发粉尘爆炸;2.由于铝镁等金属粉尘和木粉尘的爆炸危险级别高,破坏力强,故更强调其除尘器锁气卸灰装 置要规范设置。


检查依据


1.《工贸企业粉尘防爆安全规定》(应急管理部令第6号)第十五条;2.《工贸企业重大事故隐患判定标准》(应急管理部令第10号)第十一条第六 款;3.《粉尘防爆安全规程》(GB 15577-2018)第8.4.6条。


常见隐患照片


案例图片展示


X



木质粉尘的干式除尘系统未设置锁气卸灰装置




星型锁气卸灰装置


粉尘爆炸重大事故隐患之七(1

23


广东省粉尘涉爆企业安全检查工作指引


检查内容 被划分为20区的除尘器、收尘仓等粉尘爆炸危险场所内是否采用适用的粉尘防爆型电气设备。


风险分析 20区属于爆炸性粉尘危险环境持续地或长期地或频繁地出现的区域,也是最易发生粉尘爆炸的区域;常见的20区有除尘器、收尘仓等设备内部。


检查依据 1.《工贸企业重大事故隐患判定标准》(应急管理部令第10号)第十一条第七款;2.《粉尘防爆安全规程》(GB 15577-2018)第6.3.4条。


常见隐患照片


案例图片展示





收尘仓内未采用适用的粉尘防爆型电气设备




粉尘爆炸重大事故隐患之七(2


24


广东省粉尘涉爆企业安全检查工作指引


检查内容 20区防爆电气设备安装是否符合防爆要求。


风险分析 20区属于爆炸性粉尘危险环境持续地或长期地或频繁地出现的区域,也是最易发生粉尘爆炸的区域;常见的20区有除尘器、收尘仓等设备内部。


检查依据


1.《工贸企业重大事故隐患判定标准》(应急管理部令第10号)第十一条第七款;2.《粉尘防爆安全规程》(GB 15577-2018)第6.3.4条。


常见隐患照片


案例图片展示




粉尘防爆电箱紧目件缺失


粉尘防爆电气设各规范的安装

■采用EXta IΠBT135οC Da等符合20区防爆等级的电气设备


粉尘爆炸重大事故隐患之七(3


25


广东省粉尘涉爆企业安全检查工作指引


检查内容 20区防爆电气线路安装是否符合防爆要求。


风险分析 20区属于爆炸性粉尘危险环境持续地或长期地或频繁地出现的区域,也是最易发生粉尘爆炸的区域;常见的20区有除尘器、收尘仓等设备内部。


检查依据 1.《工贸企业重大事故隐患判定标准》(应急管理部令第10号)第十一条第七款;2.《粉尘防爆安全规程》(GB 15577-2018)第6.3.4条。



粉尘爆炸重大事故隐患之八(1


26


广东省粉尘涉爆企业安全检查工作指引


检查内容 粉碎、研磨、造粒等易产生机械点燃源的工艺设备前,是否设置铁、石等杂物去除装置。


在粉碎、研磨、造粒、砂光过程中,由于机械力的作用会扬起大量粉尘,设备内悬浮的特细粉尘往往处于爆炸浓度范围之内,并且在这些工艺过程 风险分析

中混入铁、石、硬杂物等容易产生机械火花或高温表面,易导致粉尘爆炸的发生。


1.《工贸企业粉尘防爆安全规定》(应急管理部令第6号)第十六条;2.《工贸企业重大事故隐患判定标准》(应急管理部令第10号)第十一条第八 检查依据

款;3.《粉尘防爆安全规程》(GB15577-2018)第6.4.2条。


常见隐患照片



案例图片展示




〉^粉碎、 讲磨、造粒等易产生机械点燃源的工艺设备前,未设置铁去除装置



永磁筒云铁装置



粉尘爆炸重大事故隐患之八(2


27


广东省粉尘涉爆企业安全检查工作指引


检查内容 粉碎、研磨、造粒等易产生机械点燃源的工艺设备前,是否设置铁、石等杂物去除装置。

在粉碎、研磨、造粒、砂光过程中,由于机械力的作用会扬起大量粉尘,设备内悬浮的特细粉尘往往处于爆炸浓度范围之内,并且在这些工艺过程

风险分析

中混入铁、石、硬杂物等容易产生机械火花或高温表面,易导致粉尘爆炸的发生。


1.《工贸企业粉尘防爆安全规定》(应急管理部令第6号)第十六条;2.《工贸企业重大事故隐患判定标准》(应急管理部令第10号)第十一条第八 检查依据

款;3.《粉尘防爆安全规程》(GB15577-2018)第6.4.2条。



粉尘爆炸重大事故隐患之八(3


28


广东省粉尘涉爆企业安全检查工作指引




粉尘爆炸重大事故隐患之九(1


29


广东省粉尘涉爆企业安全检查工作指引




粉尘爆炸重大事故隐患之九(2


30


广东省粉尘涉爆企业安全检查工作指引


检查内容 铝粉、镁粉、铝镁合金粉等遇湿自燃金属粉尘收集、堆放、储存场所是否采取通风等防止氢气积聚措施。


铝粉、镁粉、铝镁合金粉作为一种常见的加工废料,因处置不当引发了多起爆炸事故,根本原因是这类粉尘遇湿发热、放出氢气,放热成为点燃 风险分析

源,氢气爆炸引发火灾和爆炸事故,再次造成粉尘的二次爆炸。


1.《工贸企业粉尘防爆安全规定》(应急管理部令第6号)第十八条;2.《工贸企业重大事故隐患判定标准》(应急管理部令第10号)第十一条第九 检查依据

款。


常见隐患照片


案例图片展示




〉^铝粉堆放、储存场历通风条件差,且未设置氢气浓度性测报警装置


/湿式堆放、储存场所已设置氢气浓度监测报警装置(右图)


粉尘爆炸重大事故隐患之九(3


31


广东省粉尘涉爆企业安全检查工作指引


检查内容 铝粉、镁粉、铝镁合金粉等遇湿自燃金属粉尘收集、堆放、储存场所是否采取通风等防止氢气积聚措施。


风险分析


检查依据


铝粉、镁粉、铝镁合金粉作为一种常见的加工废料,因处置不当引发了多起爆炸事故,根本原因是这类粉尘遇湿发热、放出氢气,放热成为点燃 源,氢气爆炸引发火灾和爆炸事故,再次造成粉尘的二次爆炸。

1.《工贸企业粉尘防爆安全规定》(应急管理部令第6号)第十八条;2.《工贸企业重大事故隐患判定标准》(应急管理部令第10号)第十一条第九 款。


常见隐患黑片


案例图片展示



粉尘爆炸重大事故隐患之十(1


32


广东省粉尘涉爆企业安全检查工作指引



检查内容

未制定粉尘清理制度,或者未按照清理制度要求及时清理粉尘,造成作业现场积尘严重。

风险分析

未落实粉尘清理制度,造成粉尘爆炸危险场所的粉尘沉积,是引发粉尘爆炸、二次爆炸、多次爆炸的主要因素。

检查依据

L《工贸企业粉尘防爆安全规定》(应急管理部令第6号)第十八条;2.《工贸企业重大事故隐患判定标准》(应急管理部令第10号)第十-条第十 款;3.《粉尘防爆安全规程》(GB 15577-2018 )第9.4条。


常见隐患照片


案例图片展示


X


粉尘定期清扫制度T

1、日的:为消除火灾隐患、防止粉尘燃烧、爆炸事故、改善作, 业环境、、提高作业现场安全文明生产水平,特制定本制度,.,



2、范用:本制度适造用于公司的粉尘燃烧、爆炸危险场所。



6.SItHisl工应軽常松**区域除全没备的运行情况.期 及时报告至车间主管处.



—’条舒支清HiK  **<.±*"*«)«HMmMa!***■! TIMMaMt,

Jwu**sjta. Ui**•»»*< &*”.“■*. *aλ*mw*c≡4A**. «#«i»«#*•, #«x*4«.


6.6操作人员每日上班前必规将机轟设备及工作岗位清扫ι


下班前均要打扫场地和设备卫生并将所有的门%


6. 7粉尘清扫工作落实到岗位到个人, 况负责,名班组对本班组区域卫生负责, 貴.


电源关例.


卒冋主管对车何萇体」


员工对本工作区域内]


**'KLH∙** 可効•*•*"*■ K ■


3、职责,


3.1粉尘所在车间负責人负责粉尘场所清扫的安全监理。


2粉尘所在车间班组负责粉尘青扫的口常维护与管理


4、管理规定:


4.1粉尘日常清扫由岗位人员完成,岗位人员每日清扫生产现场


及设备外观至少i次,未完成,延长清扫时间,交接班时下一班 的岗位人员就对上二朋属位人贝的涧I111LLS成变兄进行检 査,合格后才可交K^尘器及除尘器管道两年三, 用有资 康的公司来清理.— --".


未针对企业实际情况制定粉尘清扫制度


附件


车间日常清理记录表


I.除尘设多,除尘系统,部用进行一次全面清理.保养

2机白,U求好研次清理,每天下列的务必清理千净方可离开

3 ∙⅛*1要求然Ifl次淸用,每天下班前务必清理干净方可离开

4.吸尘管Iih可大F疏前务必打JHft嗇口.检者瞥道内是否存在就尘

6.除生设%卸料物生I将班次打包带走.不可堆租:

&味冲装■:毎周蔺史枚査•次是否正常工作I

7.0j««15».句剧至少就件次,是否正常工作t

8.风机,用大清算•次.保持∕4机周边环境的卫生

9.配件柜:部大清理一次.保欝JI周边环構的干净

10.车间地面,等大下城后必須清即胞|:物生.不健用KIfe带有帯有岱电.可魅设备

11.期件r务必整齐握放.禁止通IM堵值

12事止车梅瘍火                    .



粉尘爆炸重大事故隐患之十2)

33



*1 t⅞i>J.t« * M HeiitfiM O ***⅛*∙<.

,i ɪɪ. ■»«*■>* "κatts∙i*m, j,jniA∙***∙⅛auα**t≡⅛.

"*,可上t‹也*

4. t⅜χa<t∙*<

't eanαααα4*4'Hahe*.*w.*"*4**ʌ«‹!*"*■*■ ∙≡-*e**

C, J<Λ ⅞41>e Itiai-Ml'° V-

^3⅞ΛJα⅞ tO.«tt«N<l£JEi5M±aA. ⅛Λft*Λ**«-#»⅛l*±a*,**<B*∙≈∙E*44.***. *■**'[ 1Lβek→

«.«*B£ilIUiItAltIt, ∙Xlt*4*.*tt4⅛*f'. S»A«>l*X*<*»**⅛S*∙Λ≡, *∙"*⅛4*I4*H*;

€SK4.qa^«<*.*ltt«£. *B∙∙uΛ*itβ. ⅛*β*JΓX, F<*flB∙≡*e"≈-4S*±*H*M*∙iRH*% <Wι¾*‰*i, <Λ -J-X⅛. TSM.

M7*∙⅛*工计*”#**||*耳工今"τβfc.⅝<ri⅛⅜"!<Λi,m⅜ΛMβ, *naΛβ⅛⅛-⅛⅛∙r**≡ι-,克⅛⅛件人 “3■■尸“KK*ItnMIU*HRUI∙", *t+4F*⅛∙*≡"4W∙∙*件吟人",-βx<∙⅛^⅛** <t>lΛΛ*^*M0M∙'H*n÷K4S-JK. “KT**W-比.tt≡∙κ"**s.κ*W4tr*α*βJKβ<⅛ 43**K. £.«.』#»■"** A*KAit*>∙工这Λ∙*⅛ta. *Wf. ιl*t⅛αx. H≡ltnΛMSittt<⅛∙* .

4” klAb^fAA. xSΛJt*MtA∙>ι4*. «««*. a*<ttlM: h*∙ HJtH*工■*&&«*工X**i*∙砲弱 ■ t?*M*q, ***«■"*£*冃《, ",Ml*∙J="∙"*HaHMA∕M. #XH3«*#e«4*»*+*a<fc' j

*S<A*⅛.

4.r3*R*AAA**∙ ***4tr«»*.f>*»l. «»TT»t«tf --4Γ4⅛t *人“#**∙Λ*⅛⅛.

—→*W*kα∙t. A.⅛*'flA4*4MWTM⅜iΛ∙fc⅛CA.⅛⅛Λ≡*ι

—JtH*κ<t a.n3.nΛ^*tiΛt^l *∙t-^ ɪ

——IttMeK***mMi"*wA*∙o+"*x, -fjis∙i4A⅛κn∙∙w.

& *弓®±a*∙>sw∙4tιf ι*e**∙*. "«■. •**♦> Λi∙ma*j}⅛j-*fi⅜-i⅛iM*a*t 4.i5⅝M^α*∙>*xκ<*0κβans-τNακ:

—XCaAKMAfiH I*>V⅜β 4*a*<M, a<tβ*∙∙"l∙∙*WΛlt⅛∙iHBι

—¢«1h6"""皮**1支"4口**Μ")1。"*,1*> ■*'**<∙*∙i. **IHS»<*<Ml*i

«.f» SKAWCtKtH. *点8* S8 IMS "*•♦■*, ½eβττw⅛t<

—#n *A%⅛. MrA. ⅛ATJt. £*,岭"• ”**,Λ*-<ll**titt⅛ι⅛β*: «»Ai£*.t**4HIM*f:;( TKdfiItHMA-HXMKtt*!

—AMBla«■“七。《纯BA- ***l<∙d*<i I*> ♦. *Λ<l*4*,M*tHΛ*1*:

—N*∙**,HA** (~*W) . JieH**.

—^iABiM∙ΛW*Λ≠*ΛBn*ΛΛΛ*M∙*M***i*ja∙*ι

—Λtctex*ΛM4xvj¾A2'∙f*M⅛*∂: ―'SB±*t*.Λt*Λ**XHtffcΛ*Λl

.—*#7 "«!»”*—.

*:,,**厶*w“AmEMi*. HdKy. “&•

*x£4.un«*i«t. »«MMiJtAft***»*«.. ι,*e∙a**1. M&串*耳***姓・

<L<M⅞4IKfl«««»««*It-A. E&IBH*l**M"*r*Mh∙*∙”"用• it* Ii>XllHll∙SΛttrttkHHlfcT⅛.

t∙∙Λjt**W-l ca*∙54∙. ββU*4H**n*M.∙<*∙Λ*∙∙J****∙**∙      “

tββ∙<4RMt.;-. ***-**t#*.<»«<fitW««Hii 4#*«*T.

jt****"∙<*ql∙∙t-♦.♦. *♦ ∙X"<Λ**∙i *純k*****"."**. ∙H



规范制定切实可行的粉尘清扫制度


广东省粉尘涉爆企业安全检查工作指引


检查内容 未制定粉尘清理制度,或者未按照清理制度要求及时清理粉尘,造成作业现场积尘严重。


风险分析 未落实粉尘清理制度,造成粉尘爆炸危险场所的粉尘沉积,是引发粉尘爆炸、二次爆炸、多次爆炸的主要因素。


1.《工贸企业粉尘防爆安全规定》(应急管理部令第6号)第十八条;2.《工贸企业重大事故隐患判定标准》(应急管理部令第10号)第十一条第十 检查依据

款;3.《粉尘防爆安全规程》(GB 15577-2018)第9.4条。


常见隐患照片


案例图片展示


X



未规范填写清扫记录表



y⅛遮设备编号:%vp I1


清扫责任者:


机器与工作台 (1 次/口)


1次∕周及节 假口放假前)


TM0

Cl次/周及节 假U放假前)


0次/周及节 假口放假蘭)


集尘机

U次/周及节 假日放假前)


备注1按《粉至清扫管理制度》落实


2.节假日指公司放偏2天以上的假期.



3.此裏每月5号前将上月的衷格交女全事务局毛永红主任存档.



规范填写清扫记录表


粉尘爆炸重大事故隐患之十(3


34


广东省粉尘涉爆企业安全检查工作指引


检查内容 未制定粉尘清理制度,或者未按照清理制度要求及时清理粉尘,造成作业现场积尘严重。


风险分析 未落实粉尘清理制度,造成粉尘爆炸危险场所的粉尘沉积,是引发粉尘爆炸、二次爆炸、多次爆炸的主要因素。


1.《工贸企业粉尘防爆安全规定》(应急管理部令第6号)第十八条;2.《工贸企业重大事故隐患判定标准》(应急管理部令第10号)第十一条第十 检查依据

款;3.《粉尘防爆安全规程》(GB 15577-2018)第9.4条。



重大事故隐患-第十四条(1


35


广东省粉尘涉爆企业安全检查工作指引


本标准所列情形中直接关系生产安全的监控、报警、防护等设施、设备、装置,应当保证正常运行、使用,失效或者无效均判定为重大事故隐患。


检查内容 除尘系统停用。


风险分析 除尘系统停用,现场粉尘无法有效收集,造成粉尘爆炸危险场所的粉尘沉积,是引发粉尘爆炸、二次爆炸、多次爆炸的主要因素。


检查依据 1.《工贸企业重大事故隐患判定标准》(应急管理部令第10号)第十四条;3.《粉尘防爆安全规程》(GB 15577-2018)第4.6条。


常见隐患照片


案例图片展示



X


除尘系统未开启,作业现场秋尘



除尘系统正常运行,作业现场未见积尘


重大事故隐患-第十四条(2


36


广东省粉尘涉爆企业安全检查工作指引


本标准所列情形中直接关系生产安全的监控、报警、防护等设施、设备、装置,应当保证正常运行、使用,失效或者无效均判定为重大事故隐患。


检查内容 湿式除尘系统未保证正常使用,湿式除尘系统干式运行,湿式除尘系统失效。


湿式除尘系统水处理装置失效,湿式除尘系统干式运行,除尘系统实际形成了类似重力沉降室结构,由于粉尘较轻,大量粉尘会在除尘器内经历悬 风险分析

浮、积聚,再慢慢下沉落地的过程,在此过程中粉尘云浓度高,极易形成爆炸危险环境。


检查依据 1.《工贸企业重大事故隐患判定标准》(应急管理部令第10号)第十四条;2.《粉尘防爆安全规程》(GB 15577-2018)第4.6条。


常见隐患照片


案例图片展示




X


湿式除尘系统干式运行,内部影成类似沉降室结构



湿式除尘系统正常运行


重大事故隐患-第十四条(3


37


广东省粉尘涉爆企业安全检查工作指引


本标准所列情形中直接关系生产安全的监控、报警、防护等设施、设备、装置,应当保证正常运行、使用,失效或者无效均判定为重大事故隐患。


检查内容 干式除尘系统泄爆面积不符合标准规定要求,导致泄爆措施失效。


风险分析 干式除尘系统中的除尘器本体是粉尘爆炸的高发部位,泄爆、惰化、抑爆等都是防范和降低粉尘爆炸事故后果扩大的有效防爆、控爆措施。


1.《工贸企业粉尘防爆安全规定》(应急管理部令第6号)第十五条;2.《工贸企业重大事故隐患判定标准》(应急管理部令第10号)第十一条第三 检查依据

款、第十四条;3.《粉尘防爆安全规程》(GB 15577-2018)第7.1.3条。


常见隐患照片


案例图片展示



附件L泄攥汁算书"


xxx制造有限公司›.


粉尘防爆评估技术服务项目.

泄爆计算书.


广东省安全生产技术中心有限公司U




泄爆面积未经核算,泄爆面秋偏小,已导致泄爆措施失效



泄爆面积计算书,泄爆面积符合要求


重大事故隐患-第十四条(4


38


广东省粉尘涉爆企业安全检查工作指引


本标准所列情形中直接关系生产安全的监控、报警、防护等设施、设备、装置,应当保证正常运行、使用,失效或者无效均判定为重大事故隐患。

检查内容 干式除尘系统除尘器箱体采取泄爆控爆措施时,是否采用规范的泄爆片或经测试验证合格的泄爆门(需提供测试报告或相关证明文件)。


风险分析 干式除尘系统中的除尘器本体是粉尘爆炸的高发部位,泄爆、惰化、抑爆等都是防范和降低粉尘爆炸事故后果扩大的有效防爆、控爆措施。


1.《工贸企业粉尘防爆安全规定》(应急管理部令第6号)第十五条;2.《工贸企业重大事故隐患判定标准》(应急管理部令第10号)第十一条第三 检查依据

款、第十四条;3.《粉尘防爆安全规程》(GB 15577-2018)第7.1.3条。



重大事故隐患-第十四条(5


39


广东省粉尘涉爆企业安全检查工作指引


本标准所列情形中直接关系生产安全的监控、报警、防护等设施、设备、装置,应当保证正常运行、使用,失效或者无效均判定为重大事故隐患。


检查内容


干式除尘系统除尘器箱体采取抑爆措施时,是否有规范进行设计,并经过相关论证。


风险分析


检查依据


企业使用未经过设计论证的抑爆装置,如:直接使用灭火装置当做抑爆装置、自行设计简易吸尘口将碳酸钙和工艺粉尘一起吸入除尘器中。 二氧化碳、水、碳酸钙等材质的确可以作为抑爆剂,但抑爆系统需要按照《抑制爆炸系统》(GB/T 254452010)的相关要求进行设计和论证。 市面上常见的灭火系统,如二氧化碳灭火系统、水喷淋灭火系统,再未经过相关设计论证的基础上,只能够起到灭火的作用,无法探测到爆炸,只 能在设备异常起火但未发生爆炸的前提下进行灭火功能。自制的未经过论证的抑爆措施,也无法证明其有效性。

1.《工贸企业粉尘防爆安全规定》(应急管理部令第6号)第十五条;2.《工贸企业重大事故隐患判定标准》(应急管理部令第10号)第十一条第三 款、第十四条;3.《粉尘防爆安全规程》(GB 15577-2018)第7.1.3条。



常见隐患照片



重大事故隐患-第十四条(6


40


广东省粉尘涉爆企业安全检查工作指引


本标准所列情形中直接关系生产安全的监控、报警、防护等设施、设备、装置,应当保证正常运行、使用,失效或者无效均判定为重大事故隐患。


检查内容


室内干式除尘系统泄爆片是否直接泄爆在室内,导致泄爆措施失效。


风险分析 干式除尘系统中的除尘器本体是粉尘爆炸的高发部位,泄爆、惰化、抑爆等都是防范和降低粉尘爆炸事故后果扩大的有效防爆、控爆措施。


检查依据


1.《工贸企业粉尘防爆安全规定》(应急管理部令第6号)第十五条;2.《工贸企业重大事故隐患判定标准》(应急管理部令第10号)第十一条第三 款、第十四条;3.《粉尘防爆安全规程》(GB 15577-2018)第7.3.3条、8.4.8条;。


常见隐患照片


案例图片展示





X


干弍除尘系统泄爆到室内作业人员岗位



干式除尘系统采用无焰泄爆装置


重大事故隐患-第十四条(7


41


广东省粉尘涉爆企业安全检查工作指引



重大事故隐患-第十四条(8


42


广东省粉尘涉爆企业安全检查工作指引


本标准所列情形中直接关系生产安全的监控、报警、防护等设施、设备、装置,应当保证正常运行、使用,失效或者无效均判定为重大事故隐患。

检查内容 火花探测消除装置(其他粉尘正压除尘防范点燃源措施、木制品加工砂光家火花消除措施)是否有效。

火花探测消除装置作为其他可燃性粉尘正压除尘防范点燃源措施时,火花探测消除装置失效时,正压风机可能引起的火花,一旦进入干式除尘器会 风险分析 导致粉尘爆炸;火花探测消除装置作为砂光机火花消除措施时,火花探测消除装置失效时,砂光机可能引起的火花,一旦进入干式除尘器会导致粉 尘爆炸。


检查依据 1.《工贸企业重大事故隐患判定标准》(应急管理部令第10号)第十四条;2.《粉尘防爆安全规程》(GB 15577-2018)第10.3条。



重大事故隐患-第十四条(9


43


广东省粉尘涉爆企业安全检查工作指引


本标准所列情形中直接关系生产安全的监控、报警、防护等设施、设备、装置,应当保证正常运行、使用,失效或者无效均判定为重大事故隐患。

检查内容 火花探测消除装置(其他粉尘正压除尘防范点燃源措施、木制品加工砂光家火花消除措施)是否有效。

火花探测消除装置作为其他可燃性粉尘正压除尘防范点燃源措施时,火花探测消除装置失效时,正压风机可能引起的火花,一旦进入干式除尘器会 风险分析 导致粉尘爆炸;火花探测消除装置作为砂光机火花消除措施时,火花探测消除装置失效时,砂光机可能引起的火花,一旦进入干式除尘器会导致粉 尘爆炸。


检查依据 1.《工贸企业重大事故隐患判定标准》(应急管理部令第10号)第十四条;2.《粉尘防爆安全规程》(GB 15577-2018)第10.3条。



重大事故隐患-第十四条(10)


44


广东省粉尘涉爆企业安全检查工作指引


本标准所列情形中直接关系生产安全的监控、报警、防护等设施、设备、装置,应当保证正常运行、使用,失效或者无效均判定为重大事故隐患。


检查内容 火花探测消除装置(其他粉尘正压除尘防范点燃源措施、木制品加工砂光家火花消除措施)是否有效。


火花探测消除装置作为其他可燃性粉尘正压除尘防范点燃源措施时,火花探测消除装置失效时,正压风机可能引起的火花,一旦进入干式除尘器会 风险分析 导致粉尘爆炸;火花探测消除装置作为砂光机火花消除措施时,火花探测消除装置失效时,砂光机可能引起的火花,一旦进入干式除尘器会导致粉 尘爆炸。


检查依据 1.《工贸企业重大事故隐患判定标准》(应急管理部令第10号)第十四条;2.《粉尘防爆安全规程》(GB 15577-2018)第10.3条。


常见隐患照片



X


火花探测与熄灭系统距离不足


案例图片展示




规范安装的火花探测与熄灭系统


重大事故隐患-第十四条(11)


45


广东省粉尘涉爆企业安全检查工作指引



重大事故隐患-第十四条(12)


46


广东省粉尘涉爆企业安全检查工作指引


本标准所列情形中直接关系生产安全的监控、报警、防护等设施、设备、装置,应当保证正常运行、使用,失效或者无效均判定为重大事故隐患。


检查内容


铝粉、镁粉、铝镁合金粉等遇湿自燃金属粉尘收集、堆放、储存场所的通风等防止氢气积聚措施是否失效。


风险分析


检查依据


铝粉、镁粉、铝镁合金粉作为一种常见的加工废料,因处置不当引发了多起爆炸事故,根本原因是这类粉尘遇湿发热、放出氢气,放热成为点燃 源,氢气爆炸引发火灾和爆炸事故,再次造成粉尘的二次爆炸。

1.《工贸企业粉尘防爆安全规定》(应急管理部令第6号)第十八条;2.《工贸企业重大事故隐患判定标准》(应急管理部令第10号)第十一条第九 款;3.《粉尘防爆安全规程》(GB 15577-2018)第4.6条。


常见隐患照片


案例图片展示





通风、氢气探测等措施正常运行


重大事故隐患-第十四条(13)


47


广东省粉尘涉爆企业安全检查工作指引


本标准所列情形中直接关系生产安全的监控、报警、防护等设施、设备、装置,应当保证正常运行、使用,失效或者无效均判定为重大事故隐患。


检查内容 铝粉、镁粉、铝镁合金粉等遇湿自燃金属粉尘收集、堆放、储存场所的通风等防止氢气积聚措施是否失效。


风险分析

铝粉、镁粉、铝镁合金粉作为一种常见的加工废料,因处置不当引发了多起爆炸事故,根本原因是这类粉尘遇湿发热、放出氢气,放热成为点燃 源,氢气爆炸引发火灾和爆炸事故,再次造成粉尘的二次爆炸。


1.《工贸企业粉尘防爆安全规定》(应急管理部令第6号)第十八条;2.《工贸企业重大事故隐患判定标准》(应急管理部令第10号)第十一条第九 检查依据

款;3.《粉尘防爆安全规程》(GB 15577-2018)第4.6条。


常见隐患照片



且总聲号I GTTW f∕4*n ±7DlE1


底哂春邑曲,用re •证 R OgmWTM M^Efli 24.皿


商业用途点型可,

<nn*≈中厘

α 杼林熏;E8>5J2? 1√1,

产用崎事BiaJiKi


*■i岬左电子料接,黑公品


■3雷,3⅛El~ IBklL 工件甲反,OnG

18僅,麟% Wfeii

≡tlt: MCFCfc

使用哥丸必冊用匿


,備 FlqB


球碗



案例图片展示



7 bl Wtliu 检,气体:气气 嫌i∙⅛4h =⅛2∕


工业及商业JIJ途点型可燃T体探测器


执行标進:GBI5322.1 -2019 EX 检费精度:±3%FS


量程:3%LEL-100%IJ'1  工作屯IK DC24V


报警设定:低限报警设定值:25%LEL 生产厂:e8g寛口黑幽今可


高网报警设定值:50%IEL


EXd IlC T6 Gb

产品编号:赛:«'>'i ⅛j ■ ⅜⅛r 1 制造日期:2024.01 使用M⅛:室外使用型


厂址:I跟书宜∙ i⅞κ≡^婚-菊


区 严禁住危险场所带电开詬


X


监测装置选型错误,无法检测氢气浓度,导致等防止氢气旗聚措施失效



氢气探测装置选型正确


48


广东省粉尘涉爆企业安全检查工作指引


、工贸企业重大事故隐患(粉尘涉爆类)除外情景指引表

可燃性粉尘与可燃气体共用除尘系统


检查内容

(二)不同类别的可燃性粉尘、可燃性粉尘与可燃气体等易加剧爆炸危险的介质共用一套除尘系统,或者不同建(构)筑物、不同防火分区共用一套 除尘系统、除尘系统互联互通的。

除外情景

因生产工艺原因,同一部位可燃性粉尘与可燃性气体共生、伴生。

原因分析 及说明

因生产工艺原因造成的可燃性粉尘与可燃性气体共生、伴生是不可避免的。

现场其他安全措施,如电气防爆等要求,应同时满足可燃性粉尘和可燃性气体的相关需求,或按照其中要求更加严格的部分去进行设计。

常见除外 情景举例

1、密度板生产需要加胶,热压、锯切等工艺中产生的溶剂蒸气。

2、利用正己烷浸出油脂后的豆片,粉碎、收集过程中含有少量的正己烷蒸气。

3、利用有机溶剂生产的物料,在烘干物程中产生的少量可燃气体和可燃粉尘。

4、煤粉制备过程同时存在煤粉和煤气。


除尘系统互联互通(1


49


广东省粉尘涉爆企业安全检查工作指引


检查内容

(二)不同类别的可燃性粉尘、可燃性粉尘与可燃气体等易加剧爆炸危险的介质共用一套除尘系统,或者不同建(构)筑物、不同防火分区共用一 套除尘系统、除尘系统互联互通的。

除外情景

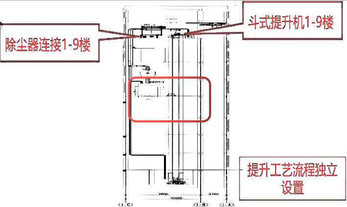
工贸企业中因谷物磨制、淀粉和饲料加工等生产工艺需要,除尘系统纵向跨越不同防火分区但按工艺流程独立设置的。

原因分析 及说明

因谷物磨制、淀粉和饲料加工等生产工艺需要,生产设备垂直跨越不同防火分区,垂直方向互联互通无法避免。

但应注意,不同工艺流程,或者水平不同防火分区,不可以互联互通。


常见除外情景举例




斗式提升设备跨越不同楼层,不同楼层属于不同防火分区。


但提升工艺流程独立,按工艺流程独立设置了除尘系统。


不同楼层同一工艺流程共用除尘系统


除尘系统互联互通(2

50


广东省粉尘涉爆企业安全检查工作指引


(二)不同类别的可燃性粉尘、可燃性粉尘与可燃气体等易加剧爆炸危险的介质共用一套除尘系统,或者不同建(构)筑物、不同防火分区共用一 检查内容

套除尘系统、除尘系统互联互通的。


除外情景 两个或者两个以上防火分区的除尘系统设置了锁气卸灰装置通过输灰管道互相联通的。


原因分析 木材加工等行业通过气力输灰将所有除尘器的粉尘输送至料仓中,输灰装置存在连接不同除尘系统的情况

及说明 除尘系统的锁气卸灰装置具有工艺隔离作用,在一定程度上可以避免互联互通带来的影响。


常见除外情景举例















⅛⅛JKS* ∙6)-

2H峰*便■片»r



SS气卸反后气力输送系统管路


锁气卸灰后,气力输送将粉尘输送至料仓中


除尘系统互联互通(3


51


广东省粉尘涉爆企业安全检查工作指引


检查内容


二)不同类别的可燃性粉尘、可燃性粉尘与可燃气体等易加剧爆炸危险的介质共用一套除尘系统,或者不同建(构)筑物、不同防火分区共用一


套除尘系统、除尘系统互联互通的。


除外情景


原因分析


及说明


两个或者两个以上防火分区的除尘系统风机后共用一个排气烟囱的。


因为环保部门排放口的要求,除尘系统风机后存在共用一个排气烟囱的情况。


风机本身就是天然的隔断装置,可以一定程度避免互联互通带来的影响。


常见除外情景举例



多个除尘器风机后合并为同一个排气口


除尘系统爆炸防控措施(1


52


广东省粉尘涉爆企业安全检查工作指引


检查内容 (三)干式除尘系统未采取泄爆、惰化、抑爆等任一种爆炸防控措施的。


除外情景 设置在生产设备设施本体上的除尘装置。


原因分析 设备本体的除尘器,规格一般较小,且和生产设备连接在一起。

及说明 不纳入重大隐患判定,不代表不需要进行泄爆等爆炸防控措施,但可以和生产设备一起考虑泄爆要求


常见除外情景举例





斗式提升机除尘器


埋刮输送机除尘器


料仓顶部用于气力输送的配套除尘器


除尘系统爆炸防控措施(2


53


广东省粉尘涉爆企业安全检查工作指引




除尘系统爆炸防控措施(3


54


广东省粉尘涉爆企业安全检查工作指引


检查内容 (三)干式除尘系统未采取泄爆、惰化、抑爆等任一种爆炸防控措施的。


除外情景 已采取控爆措施的两级及以上干式除尘系统,用于收集较大颗粒粉尘的一级旋风除尘器。


原因分析 及说明


以上旋风除尘器,仅用于大颗粒收集,内部结构简单,风险较小。

但不纳入重大隐患判定,不代表不需要进行泄爆等爆炸防控措施,没有泄爆等爆炸防控措施,依然是安全隐患。

《粉尘爆炸泄压指南》(GB/T15605-2024)将于2026.01.01实施,旋风除尘器在满足标准A4.3b)相关条件,可在标准实施后不进行泄爆。


常见除外情景举例



二级干式除尘系统已经采取泄爆措施,仅一级旋风除尘器未设置。


干式巷道式构筑物作为除尘风道


55


广东省粉尘涉爆企业安全检查工作指引


检查内容

(五)除尘系统采用重力沉降室除尘,或者采用干式巷道式构筑物作为除尘风道的。

除外情景

纺织企业采用的除尘地沟。

原因分析 及说明

纺织企业,因工艺原因,除尘地沟有一定必要性。

纺织企业,纺织纤维容易团聚,在及时清理的前提下,除尘地沟内纺织纤维积聚引起爆炸的风险不如传统干式巷道式构筑物除尘风道。但大量积聚 时依然可按积尘严重判为重大事故隐患


常见除外情景举例



纺织企业的除尘地沟


56


广东省粉尘涉爆企业安全检查工作指引


三、不涉及粉尘爆炸的涉粉工艺检查说明

(一)粉尘爆炸危险性辨识评估依据

《粉尘防爆安全规程》(GB15577-2018)第4.1条,企业应辨识所存 在的粉尘爆炸危险场所,确定可燃性粉尘爆炸危险性以及粉尘爆炸危险场 所的数量、位置、危险区域等,分析存在的粉尘爆炸危险因素,评估粉 尘爆炸风险,并制定能消除或有效控制粉尘爆炸风险的措施。

《工贸企业粉尘防爆安全规定》(应急管理部令第6号)第十一条, 粉尘涉爆企业应当定期辨识粉尘云、点燃源等粉尘爆炸危险因素,确定 粉尘爆炸危险场所的位置、范围,并根据粉尘爆炸特性和涉粉作业人数 等关键要素,评估确定有关危险场所安全风险等级,制定并落实管控措 施,明确责任部门和责任人员,建立安全风险清单,及时维护安全风险 辨识、评估、管控过程的信息档案。

《工贸企业粉尘防爆安全规定》(应急管理部令第6号)第二十五条, 负责粉尘涉爆企业安全监管的部门可以根据需要,委托安全生产技术服 务机构提供安全评价、检测、检验、隐患排查等技术服务,并承担相关 费用。安全生产技术服务机构对其出具的有关报告和作出的结果负责。

粉尘涉爆企业对粉尘防爆安全工作负主体责任,应当按照要求,进 行粉尘爆炸危险性的识别、辨识、评估工作。对于无法确定是否属于爆 炸性粉尘的样品,可以通过测试进行确认。


57


广东省粉尘涉爆企业安全检查工作指引


(二)粉尘可爆性筛选测试

测定粉尘是否是可燃性粉尘或可燃性飞絮的试验方法,俗称


粉尘可爆性筛选测试。测试应依据《爆炸性环境第32部分:可

燃性粉尘物质特性试验方法》(GB/T 3836.12-2019)进行,具体


流程如下:



58


广东省粉尘涉爆企业安全检查工作指引


(三)粉尘不可爆辨识常见问题

1.粉尘测试报告结果不被认可的常见情况

(1)粉尘检测报告无相关资质,或拥有资质的检测机构未在报告上盖 资质章。

(2)粉尘检测未依据爆炸《爆炸性环境第12部分:可燃性粉尘物质特 性试验方法》(GB/T 3836.12-2019)进行测试。

(3)粉尘检测过程未规范按照《爆炸性环境12部分:可燃性粉尘物质 特性试验方法》进行。如:未进行样品过筛等预处理、仅通过 哈特曼管筛选就直接给出不可爆的结论。

(4)粉尘检测报告出具条件性的判定结论。

(5)检测样品存疑,报告样品照片外观与现场不一致。

2.粉尘辨识过程不被认可常见情况

(1)未确定粉尘全部成分的不可燃性,直接判定为不可爆粉尘。

(2)粉尘未测定颗径分布,通过平均粒径等参数直接认定为不可爆粉 尘。

(3)粉尘取样不具备代表性。如:多个工艺或工艺多个不同环节涉及 粉尘及除尘系统,仅对一个除尘系统取样;企业不同批次样品 成分存在区别,仅对一个批次的样品进行检测。


59


广东省粉尘涉爆企业安全检查工作指引


(四)粉尘不可爆辨识常见问题示例


粉尘测试报告结果不被认可

典型情况

粉尘检测报告无相关资质,或拥有资质的检测机构未在报告 上盖资质章。

分析

检测报告无CMACNAS等相关资质,检测报告不具备法律 效力。

典型案例

No^H

粉尘可爆性检测报告

Dust Explosiveness Test Report

化学品名称]打磨粉尘                       //

NanlC _』二_■ ■

申请笠定单位, 铀IiHH^料有限公司         卜0|

4>r=- *                                                             _

-'HA^mJHRSI? J

ʃ*^. ∙nj∙^ijiBa^ c*≡t*r

出具报告未见资质盖章


60



广东省粉尘涉爆企业安全检查工作指引


粉尘测试报告结果不被认可    ____

典型情况

粉尘检测未依据爆炸《爆炸性环境第12部分:可燃性粉尘物质 特性试验方法》(GB/T 3836.12-2019)进行测试。

如美标 ASTM E1226-19、美 标 ASTM EE2019-03 ,德 标

分析

VDI2263与国标GB/T 3836.12均存在不同,不能直接使用他国 标准来进行判定。在满足国标的前提下,可以设定更接近 ASTM等更严苛标准的要求,以降低安全风险。


典型案例




⅛ffl⅛5 /

J√<ι, ζ>f Sample ι Γ.


ff⅛Xβ∙⅞F ^SNofSaιtιplc


230709QU2I


2023^07 H 07ti g


捡拒日JW /Test Dalc


Ie方法 /TestMethod


•202379-2023714



/  i⅛检样品中位粒径为90μιn,水分含量为0∙3%∙2Q0目筛启84试-

Q捡两结黑   /  送检样品粉尘云在IOCX⅛∕ta‘2000g∕m,浓度f点火均不发生燃爆.⅛J

•/TestR^ult  /检停品的粉尘云状态在该试验条件下被认为是不可爆的。

O      /注∕点火能意IOkL


一一^限工处


检期环境

if Eθvironmeιιt


清名称

IDentNamt


温度;21C相对湿


检测仪器/Jnstruπη


I设备编号(设备型号 I ZItIStnlnlent J /1DStrUmeIn


测量范 /Tesl range


100.4kPa


ft许误差/不确定度 ^Maximum peπnissible error∕Uncertainty






检需鉴定报告


τι*r κ∙∙"R


五险特性分类鉴别报告



“$*・


♦Jta® n6,


tfff*9 Γ




*R∙tfi


分S OS «


MKM



經吟I



4F^*.公司


Pim仕川 吵・,?1 :上


ASIM E2UI9∙2Λθi '*'*X.

YDl ftΓh0

血粧H IgHMFJFiE3BT丽^5&*咒值瞥生



一、样品信息


二,鳖定结论


&b 241. #*> 7».大气IiwlLPa

U宣制Kwft下.件4爲耳喪■IKA,滴电弋/由未1示出.件件■


出具报告未使用国标进行测试。


61


广东省粉尘涉爆企业安全检查工作指引


典型情况


分析


世全测稣眼查犖芥丕矍林旦 ___ ___

粉尘检测未依据爆炸《爆炸性环境第12部分:可燃性粉尘物质 特性 试验方法》(GB/T 3836.12-2019 )进行测试。

混淆概念,将化学品分类中的爆炸物,当成了粉尘可爆性筛选 测试。


典型案例


(FA      ^-lpΓ

C/VAS

化学晶危险性要定专"翁‘告、I^r

Identification and Classification Report for Hazards of ChwBical

0. W{21080097                                                         2 贪第 1

样品名称 Naae of Good

閥亮光粉末徐料

茶托单位 Applicant

东莞融8F/a∙LjRl公司

生产单色 ManufecturiDg

东奥A愚 5域聞?/.公司

祥品外<R性状 Appearance & odor

黑色扮末

合同

»21080042

样品■号

Sax^le No

W21080042

接样日窮

Accepting Data

2021810

IeLgbt

400 S

鑒定姑巣(Conclufiian)

根据GH/T 22232-2008《化学物痂的热混定性測定差示扫描量热法)进行化学物质的热梅定性测定

根据GB 30000.2 -20J3《化学品分类和标笈规色第2部分:爆炸物A. 2.2判定,读样品不属于爆 炸性物质.



臨®" 尹甚魏,才3当譎‘" Controller %                               •'』


化学品危险特性检验当成了粉尘爆炸性筛选测试 出具不属于爆炸物的鉴定报告


62


广东省粉尘涉爆企业安全检查工作指引


粉尘测试报告结果不被认可


典型情况

粉尘检测过程未规范按照《爆炸性环境第12部分:可燃性粉尘 物质特性试验方法》进行。如:仅通过哈特曼管筛选就直接给 出不可爆的结论。

分析

依据《爆炸性环境第12部分:可燃性粉尘物质特性试验方法》 (GB/T 3836.12-2019)第5.2.3.2条,哈特曼管试验如不发生点

燃,需要继续进行20L球试验。


典型案例


粉尘可雌检解报告

Dust Explosh cnc⅝⅞ Te⅝t Rrport



出具报告未规范按照标准方法进行测试,仅用哈特曼管就得出不可爆结论。


63


广东省粉尘涉爆企业安全检查工作指引


粉尘测试报告结果不被认可


典型情况

粉尘检测过程未规范按照《爆炸性环境第12部分:可燃性粉尘 物质特性试验方法》进行。如:未按照标准进行样品前处理, 样品不能代表工艺物质。

分析

依据《爆炸性环境第12部分:可燃性粉尘物质特性试验方法》 (GB/T 3836.12-2019)第4.3条,如试验不能再代表工艺物

质,则需要进行处理。

除尘器内部等粉尘环境,主要形成粉尘云的是依靠其中小颗粒 部分的贡献,大颗粒虽然可能因为工艺原因(如木材加工产生 的刨花)被吸入除尘器,但大颗粒在粉尘环境中基本不起到贡 献。因此小颗粒部分才能代表除尘器内的粉尘云实际情况。


典型案例


樹尘可礎捡需报告

Dmt Exp05n'eRf⅜⅝ Tnt REPOrt NO. F-『                             第2页共2

M⅜*            水分d


W品亲命





出具报告未规范按照标准方法进行测试。


64


广东省粉尘涉爆企业安全检查工作指引


粉尘测试报告结果不被认可

典型情况

粉尘检测报告出具条件性的判定结论。

分析

部分机构,未规范依据标准要求进行测定,只测定其中的部分 内容,并根据测定内容,出具有条件性限制的报告结论。导致 报告结论无实际意义。


典型案例



聘品

f


:倬萌■/皆. /Synonym


祥品批号 /Lot Nb. of Sample


样品编号 /SN of Sample


检测日期 /Test Date


检测方法 /TestMethod


4检测结果

x^ '/TestReSwr


检测环境

FestEnviromnent



2307090112]


/M⅛ufactu⅛r 样品外就一 /Sample..

Appearance 样品接收日期 /Date of receiving


黄色无味固体粉末


20230707


沸方年79.2023714




方式,或者其他间 未采取火花探国


3干武巷道式櫻?


4STMEq26]9《粉尘云可燃性的标准测定方法》


统未设置翅线 "^S^^^≡


送捡样品中位粒径为90μm,水分含量为0.3%,200目筛后测试。f\ 送检样品粉尘云在IOOOg/n?2000g∕n?浓度下点火均不发生燃爆,该区 祥品的粉尘云状态在该试验条律下被认为是不可爆的。

『火能量IOkJ.:


温度:213相对湿虐JPiRH;



WOAkPa


检测仪器/Instrui



段备名称

t⅛ment Name

/设备编号 //Instrument Number

]设备型号

I /Instrument

TyPe

测量^X

/Test range

⅛8M ^⅞⅜iτe~a⅜^

$爆炸装置/

NS∙M71

2 ea⅛b

HY16426A

一爆炸压力 传感器0--J^ta^

2024,01,10



^. . ^⅛-r⅛⅞: .R ‰¾¾⅛


-株存场1

"^^匹慌白


计允许误差/不确定度 /Maximum permissible error/UnCerta⅛ty


U=0.012m4,15⅛



出具包含"限定特定浓度”、"限定试验条件环境”等约束性结论。

报告结论无参考意义,仅能证明粉尘“特定浓度""特定环境”下的情况。


65


广东省粉尘涉爆企业安全检查工作指引


____^^ 担 ⅜^⅛^i<^___

典型情况 检测样品存疑,报告样品照片外观与现场不一致。


粉尘爆炸性筛选,样品由企业寄送,采样、送样过程存在样品替 换嫌疑。

典型案例                   一



(预处理后照片)


(取样后留样照片)



#». V‰M*


・—

Hf⅜ «M«»t»a^a


AM OfM C≡X<t<4**M>MM)

,       (报告样品与留样比对照片)


报告中样品照片和现场取样留样不一致。


66


广东省粉尘涉爆企业安全检查工作指引


粉尘辨识过程不被认可


典型情况

使用平均粒径、中位径、体积平均粒径等参数,直接认定粉尘为 不可爆粉尘。

分析

依据《爆炸性环境第12部分:可燃性粉尘物质特性试验方法》 (GB/T 3836.12-2019)第5.2.2条,不含可燃性飞絮的样品,颗粒

分布中没有小于500μm的颗粒,不是可燃性粉尘。而平均粒径、中 位径、体积平均粒径等参数,均不能代表粉尘中无小于500μm的颗 粒。


典型案例



通过平均粒径体积平均粒径直接认定粉尘不可爆。


67


广东省粉尘涉爆企业安全检查工作指引


粉尘辨识过程不被认可


典型情况

粉尘取样不具备代表性

分析

不具有代表性的样品,无法全面反映企业粉尘工艺的实际情况


典型案例


报吿S⅞% CrCWS-FC.fC-20M0056


3页共7


广东省安全生产技术中心有限公司检测报告


广东省安全生产技术中心有限公司检测报告", 一报告编号.:∙GTCWS-RnC-202⅜Otha                          第T •与•疋 5 •美 L


样品名称

混会费尘

收样日期

2024.09.03-

委托单位

东卷›  .于制晶有

限公司

委托单位地址

东莞市r

样品单位

兆羌声P电予制油有 限公司

样品来源地址

东莞市;."望 矇自g ¾

取样方式

金业避算

取样地点

喷磅隼何

样品编号

GTCWS-FCJC^1024∂S6λ

样品预处理

祥品主要成分

金刚哥.對

祥品外观

黑色幣尘


环境温湿度


颠:2⅛⅛ 相对就庆I 53HRH



检测日期


2024.09.0S


检测项目


野生可爆性检那


检测标准


《建離性辱境■ 12部分:用燃性野生細质唇桂试卷淋法》 GBZT 3836. IMOl 9.


主要仪器设务


20L球形堤外融医


检测结果



⅛⅛⅞⅛⅛⅛r⅛⅛^


本次委托检测禅品及箕咸分信, 收样•负:¢.不遗行成分发定.若: ⅛⅞g⅛⅞



本报喈•仅对 ⅛⅛⅛-^


山硏材F


串核人,渉条摊准后JV


样品名称U

渥含粉尘L

收样日期"

2024.11.5<j

委托单位U

牛荒,-电子制品有 限公融

委托单位地址 U

东莞用F "•-"" 『≡…一孔

样品单位"

e3 "电子制1

样品来源地址"

东芟市.『5T" 2

取样方式,

企业如样亠

取样地点U

1号巾喷砂者金柜拍

样品编号"

GTCWS-FCJC-2024∞70AtJ

样品预处理。

4 35日第.取僚下 物进行就验W

样品主要成分V

金刚砂、铝"

样品外观U

灰色粉尘W

环境温湿度V

弱度E 24=C-∙ •招对.强,度:4g%SHa

检测日期V

2&24.11.&

检测项目U

.粉尘可爆性毋测"

检测标准"

•《爆•姓性环境•符12部•分*可想性粉尘物质特性•试验方•狭3U

GB/T ∙3836.12-201 ‰

主要仪器设备。

20L球形爆评测反装置U

检測结果U

汇试验条件F赏生焜讦

I可烛性粉3U

备注U

4次委托后測样品及其或分話息词.E 收徃負宽.不进行成疗卷定.若委托 员篦新¾Z•测C U

⅛J≠⅛ ⅛⅛ W ± ⅛ ⅛-单位样髭工艺或成分改

叉对

支桂


20249月检测结论为非可爆/可燃


202411月检测结论为可爆/可燃


企业出具粉尘不可爆的报告,将工艺辨识为不涉及粉尘爆炸工艺。

但企业不同批次,原材料成分比例、工艺参数等存在不同,单个样品不具备 代表性,后期抽样发现粉尘可爆。


68


广东省工贸企业有限空间作业安全 检查指引


广东省应急管理厅

202511


目录


一、有限空间重大事故隐患检查指引表........................................................... 1

二、有限空间安全管理检查指引表......................................................................8

(一)主要负责人履职情况..............................................................................8

(二)监护人员履职情况.................................................................................. 9

(三)有限空间辨识与管理台账....................................................................10

(四)有限空间作业审批................................................................................ 11

(五)有限空间作业安全培训........................................................................12

(六)有限空间作业现场处置方案与演练................................................... 13

(七)有限空间安全警示标志与风险告知牌............................................... 14

(八)有限空间物理隔离措施........................................................................15

(九)防护和应急装备配备与使用................................................................16

(十)作业前安全交底与现场条件确认....................................................... 22

(十一)监护与监测........................................................................................ 23


广东省工贸企业有限空间作业安全检查指引


一、有限空间重大事故隐患检查指引表 有限空间重大事故隐患之一


检查内容


风险分析


企业是否辨识存在硫化氢、一氧化碳等中毒风险的有限空间并纳入有限空间安全管理台账,同时,有限空间场所出入口是否设置安全警 示标志。

企业未管理存在硫化氢、一氧化碳等中毒风险的有限空间,相关作业人员或企业人员不清楚有限空间场所风险,有限空间作业未落实审 批制度和“先通风、再检测、后作业”措施,可能发生中毒和窒息事故。


检查依据


1.《工贸企业有限空间作业安全规定》(应急管理部令第13号)第六条、第十一条;2.《工贸行业重大生产安全事故隐患判定标准》 (应急管理部令第10号)第十三条(一)。


常见隐患照片


案例图片展示




序号

有限空间 名称或编号

位置

主要危险 因素

可能事

故后果

防护要求

作业主体

审批人

1

XXD

XX罐区


污水池未辨识、未纳入台账,且现场未设置安全警示标志


有限空间出入口设置安全警示标志,且已纳入台账管理


1


广东省工贸企业有限空间作业安全检查指引


有限空间重大事故隐患之二(1


检查内容

存在硫化氢、一氧化碳等中毒风险的有限空间作业,未落实有限空间作业审批。

风险分析

有限空间作业未严格落实审批制度和安全措施,作业人员可能暴露在积聚一定量的硫化氢等有毒有害气体的环境,导致发生中毒和窒息 事故。未设置监护人员,可能导致伤亡情况扩大。

检查依据

1. 《工贸企业有限空间作业安全规定》(应急管理部令第13号)第七条;2.《工贸行业重大生产安全事故隐患判定标准》(应急管理 部令第10号)第十三条(二)。

常见隐患照片

案例图片展示

I 戸见                  一 r______r —___ .     —

卜叩       ≈BaβW     ^*ff*          __*«*«_

'2024-12-20 1β 3? PW                    f^∙

2024.12-20 1«

2024-12*20 1*42 Wwl         [                  ■•

-    .9         m

F 2024.,2 6,6:52 W1∙        J                 ∙∙

2024-12-20 17^13                                           

I ^θa<~T2-23 11⅝3 ⅜κa⅛                          “           B

二…M^lR

------------------X 映工旧YF⅝⅜项—

^^r~1~>__有限空间作业现场记录表

P^⅛⅛≡i⅛^⅛jz     J

^<W∙m    θ鹿41216时8分.至202412221700价卄

~~~≡≡≡ΞE^T~~

仲业Ner)

整修血,人                      urrʌ

作业人                   界眺临拿人潮

IF制宜■作如財縛    畢,万日 时华皐年月日 时 务

可登春在煩

⅞⅛⅛⅝⅜⅜⅜___________________________

*j* 口而 绘岩,把伊BU*Br,人

^L^E⅛⅛⅛τffl⅛⅛⅛⅞ AAiTft, ⅛⅛i⅛ TM⅛h ⅛tt⅛ff⅛Λ⅛'~□^—

2.巳用玩灯第空*1ik■⅝F魂禽处置捕. 口

作业*nt∙*  ⅛ 9K^ΛVriLK^^I!l^^^iL^t.W∙ H¾W ⅛ft. □

L串业睢啟個口已JE■渦理求的X含的#役■冷*価宜售養橫Α鲁淹*,口

配场.也應人,世■山 □ft^ DTfltft

S-Tt                      * JJ H Bf ⅜

隹垣⅛⅛⅛Hfi,i⅛入*⅛⅛Ta⅛⅛f C^FM

黑*              専 月 日 解 修

国/也*ftfi feλ* nt* Ti •*其贫耳普蜀麻⅛⅛⅛}J行战落 刁下■*

霹*          ■日 自 衅 外

未审批先作业

有限空间严格按照企业的审批制度进行作业审批


2


广东省工贸企业有限空间作业安全检查指引


有限空间重大事故隐患之二(2


检查内容


存在硫化氢、一氧化碳等中毒风险的有限空间作业,未执行“先通风、再检测、后作业”要求,或在有毒气体浓度检测不合格的情况下 开展有限空间作业。


风险分析


有限空间作业未严格落实审批制度和安全措施,作业人员可能暴露在积聚一定量的硫化氢等有毒有害气体的环境,导致发生中毒和窒息 事故。未设置监护人员,可能导致伤亡情况扩大。


检查依据


1.《工贸企业有限空间作业安全规定》(应急管理部令第13号)第十四条;2. 《工贸行业重大生产安全事故隐患判定标准》(应急管理


部令第10号)第十三条(二)。


常见隐患照片


案例图片展示




有限空间作业未执行“先通风、再检测、后作业”


有限空间作业前严格执行“先通风,再检测,后作业”


3


广东省工贸企业有限空间作业安全检查指引


有限空间重大事故隐患之二(3


检查内容


存在硫化氢、一氧化碳等中毒风险的有限空间作业,作业现场未设置专门的监护人员,或者监护人员进入有限空间参与有限空间作业,或 者监护人员未全程监护。


风险分析


有限空间作业未严格落实审批制度和安全措施,作业人员可能暴露在积聚一定量的硫化氢等有毒有害气体的环境,导致发生中毒和窒息事 故。未设置监护人员,可能导致伤亡情况扩大。


检查依据


1.《工贸企业有限空间作业安全规定》(应急管理部令第13号)第五条、第十五条;2. 《工贸行业重大生产安全事故隐患判定标准》(应 急管理部令第10号)第十三条(二)。


常见隐患照片


案例图片展示




有限空间作业现场未设置监护人


有限空间作业现场设置监护人


4


广东省工贸企业有限空间作业安全检查指引


有限空间重大事故隐患之三(1


检查内容

工贸企业将有限空间作业或场所依法发包或出租给其他单位的, 议中约定各自的安全生产管理职责。

未与承包单位、承租单位签订专门的安全管理协议,或未在合同或者协

风险分析

承包单位不具备安全生产条件,不了解有限空间作业风险,

容易发生中毒和窒息事故,盲目施救的情况。

检查依据

1. 《工贸企业有限空间作业安全规定》(应急管理部令第13号)第八条;2. 《工贸行业重大生产安全事故隐患判定标准》(应急管理 部令第10号)第三条第一款;3.《中华人民共和国安全生产法》第四十九条。

常见隐患照片

案例图片展示

4^^

安全生产静伏书(WRsra*⅛)

0右根

甲方(項s-⅛⅜,⅛r_________________________

L^(⅛S承包方);_________________________

*7iB⅛⅛⅛∙fi<.預収生?∙fc∙*ft舞生,根番*中単人民井 和国蜚金生产法* A LLjiI企业南株空同作北安■全!1用› **美法仲 津就的机定.Si7*¼tt∙甲,Zs*方共旬*守此行,

-.甲方件皐竇

ISf乙方提供作业现场就比骄R⅛⅛f⅛与有展空同作业书关时真实, 率礁一完修用竹制.设备备施.及m也坏现事得芻.

2不祥鶏作*发电第不具占安全.电产条件出挙也或个人一

3.行自声農劇的有黑空何作业专项方置*.行車核.鬓出κ∙aι意见 井窗督文雋.

4.由乙方提丞斑里曲安唾生产条件,包括他不强于*n∙s*. ⅛ Mft#. ⅛⅛ft⅛Λ*⅜.

3.对乙方的官网空俯盖业建肝唐看接堂.⅛<⅛⅛⅛»ΛM<* 乙方!E款.

-.2方峙項贵

I具务•5折承理的有限里修代出任务t0∙⅛at⅛安全生产会件.叁立 質金*風卍同作史賢全■生产中理制艮和畏作微《L

2ftWfrBΦB^Λ⅜⅛Λ⅛. #斐甲才*l⅛同喜庐*i⅛. ⅛⅛* t方案应&括作主克∙血拒分橘「安息唾#惨篇,直由我(t*案等内

審.

3.对作业人.艮逸行要全敦育出训.使其JSiSBI空飼作业的安全村 爭..操他航程和应念救擾措域.奉经Je⅛⅛⅛⅛人员不禅从李宿It电 同作.£

4∙⅛.作*孙#麻R至同通行通风,检刷. 确保作出环境符含安全. 营求,⅛a⅛⅛⅛i⅛!i'*usæ.耳雄多轟物腐施反.中毒#害气体浓 «•?

S修作业人员《5+曲界的安臺障护用用.如哼吸暮.安/帝、安金. 縄等•井普任作业K员金确匿用.

6住作业过専中.产簿遥才累作捷程.加强现漏买金督理,嚙保传 业替4∙. ∙∣黑年全應息.立立困件止作业弄呆単指JfclIff要我.

?*龙井买施应爲救援華案.KiiA-⅝^^⅝⅞⅞%⅞¼⅛4t.如 发学串故.拉史印肩电4蠢救掩華案.姐换救提.并及外向甲.方也砲 ⅛⅛∏gft.

三、甲.乙双方共UJ费任

I乙腐才共同更守国案中关安全生产的:第.强知和执定.* ⅛L行国家,ft*.公司安全生产其章制Λt.

2,½⅛∙t⅛⅛M^. aM,At..除含泊息"的安•全生产方針.不将注 t⅛fff⅛t⅛⅛.在鼓里传里圭产时先售卖安全Sf1eι*. »±# ft⅛i.

3热好安∙⅛4t⅛严*■动电律,州前安全行为,率化作必耳医, 禁止野童作变陈止作业龍t⅛.

未与承包商、

承租单位签订专门的安全管理协议且合同中也未明确双方安 全管理职责

签订安全生产管理协议,

且明确甲乙双方的职责


5


广东省工贸企业有限空间作业安全检查指引


有限空间重大事故隐患之三(2


检查内容

生产经营项目、场所发包或者出租给其他单位的,企业与承包单位、承租单位签订的安全生产管理协议、承包合同、承租合同中,免除 或者转嫁企业安全生产工作统一协调、管理义务。

风险分析

承包单位不具备安全生产条件,不了解有限空间作业风险,容易发生中毒和窒息事故,盲目施救的情况。

检查依据

2. 《工贸企业有限空间作业安全规定》(应急管理部令第13号)第八条;2. 《工贸行业重大生产安全事故隐患判定标准》(应急管理 部令第10号)第三条第一款;3.《中华人民共和国安全生产法》第四十九条。

常见隐患照片

案例图片展示

判定示例:

A任何安全事故与甲方无关

A由于乙方管理不到位造成安全事故发生, 乙方将承担全部责任

A由于乙方违规操作发生安全事故,由乙方 全权承担法律和经济责任

A因乙方人员直接责任或因乙方对作业现场 管理不善等原因,发生生产安全事故的,由 乙方承担全部责任

合同中存在免责条款

签订安全生产管理协议内不存在免责条款


6


广东省工贸企业有限空间作业安全检查指引


有限空间重大事故隐患之三(3


检查内容


工贸企业将有限空间作业或场所依法发包或者出租给其他单位的,未定期对承包、承租单位进行安全检查,或者发现安全问题未督促整


改。


风险分析 承包单位不具备有限空间作业安全生产条件,不了解有限空间作业风险,容易发生中毒和窒息事故,盲目施救的情况。


检查依据


3. 《工贸企业有限空间作业安全规定》(应急管理部令第13号)第八条;2. 《工贸行业重大生产安全事故隐患判定标准》(应急管理 部令第10号)第三条第一款;3.《中华人民共和国安全生产法》第四十九条。


常见隐患照片



R


患I


描.

述“


整1


改7


耍J


求Q




案例图片展示


安 全 隐 患整改 通知 单J


No; 2132 <j


NjIS a


监护人


XXXXX有限公司


隐患问题:腌制池清洗作业过程中,作业人员呼吸防护用品礪不规范。


立即停止作业,,要求作业人员作业过程规范佩戴呼吸防护用品。


都门主管Q XXXXX食品有限公司


未对承包商进行统一协调、管理


对承包商安全检查


7


广东省工贸企业有限空间作业安全检查指引


二、有限空间安全管理检查指引表

(一)主要负责人履职情况


检查内容


风险分析


检查依据


1. 有限空间安全管理制度:主要负责人作为有限空间作业安全第一责任人,是否组织制定有限空间作业安全管理制度,制度中是否明 确有限空间作业审批人、监护人员、作业人员的职责,以及安全培训、作业审批、防护用品、应急救援装备、操作规程和应急处置等 方面的要求。安全管理制度是否符合企业实际情况,具有科学性、针对性和可操作性。

2. 有限空间掌握情况:主要负责人是有限空间作业安全第一责任人,是否掌握企业有限空间底数,是否了解本企业有限空间作业安全 防范措施。

主要负责人不重视有限空间作业安全,不清楚企业有限空间基础信息,未按照规定建立和落实有限空间作业安全管理制度,相关作业 人员或企业人员不清楚有限空间场所风险,可能发生中毒和窒息事故,相关人员盲目施救,伤亡扩大。

1. 《工贸企业有限空间作业安全规定》(应急管理部令第13号)第四条;2. GBZ 2.1-2019 工作场所有害因素职业接触限值 第1部 分:化学有害因素》第4.1条(附表化学品接触限值)。


常见隐患照片


案例图片展示



批制度的执行.


有限空间作业审批的监管各部门负贵有限空间作业t


二、内容 企业没有安环部

I、本IW度所述有限空间是指:封闭城部分封Ifl与外界相对隔离,出N 口较为狭窄.作业人员不能长时间在内工作自然通风不良易造成有] 毒冇害、易燃易爆物质积聚或者制含量不足的空间。

2、进入有限空间作业必须提前申请办理《进入有限空间安全作业暴J

3、未经审批.任何人不得独自进入有限空间作业.         ■

W有限空间安全作"应包含作业活动WM*1|MlN1^1


(七)有限空间作业安全操作知程"

按照先通网、再检测、后作业的原则,膜进入有限空间危险作业场所作业, 必须•根据实际情况事先测定其氧气、有害气体、可燃性气体、粉尘的浓度,符合 安全要求后,方可进儿在未准畴则定氧气浓度、有害气体、可燃性气体、粉尘 的浓度前,严禁进入该作业场所。"

确保有限空间危险作业现场的空气质量O氧气含量应在L8¾u上,23.5下。其有害有毒气体、可燃气体、瘫容许浓度藤页符合国麺隹的吐要求。" 在有限空间危险作业曲亍过程中,应加强通网换气,在氧气浓度、有害气体、 可燃性气体、粉尘的浓度可能发生变化的危险作业中应保持必要的吸症次勤或连 续检测。J

作业时所用的一切电气设备,必须符合有关用电安全技术操作规程。照明应 使用安封灯或36伏以下的安纨蔭超说全⅛E的粉电⅛T具,必须 按规定配备漏电保护器。"

发现可育清在有害气体、可燃气体时,检测人员应同时使用有害气体检测仪 表、可燃气体测试仪等设备进行检测。#

检测人员应佩戴隔离式呼吸器,严禁使用氧气呼吸器,-

有可燃气体或可燃性触存在的作业现场,所有的检测仪器,电动工具,照 明灯具等,必须使用符合《爆炸和火灾危险环境电力装蹙设计规范》要求的防爆 型产品,"



管理制度部分内容与企业实际情况不符、模板化严重、气体浓度限值错误


建立具有科学性、针对性和可操作性的有限空间管理制度;主要负责 人了解企业有限空间基本情况并带队检查


8


广东省工贸企业有限空间作业安全检查指引


(二)监护人员履职情况


1. 是否落实作业监护制,是否明确有限空间专职或兼职监护人员,负责监督有限空间作业安全措施的落实;


检查内容 2. 监护人员是否清楚自身职责,责任落实是否到位;是否具备与监督有限空间作业相适应的安全知识和应急处置能力,是否能够正确使


用气体检测、机械通风、呼吸防护、应急救援等用品、装备。


风险分析


未设置监护人或监护人不履职,不具备应急处置能力,可能发生中毒和窒息事故,不能制止盲目施救,造成伤亡扩大。


检查依据


《工贸企业有限空间作业安全规定》(应急管理部令第13号)第五条。


常见隐患照片


案例图片展示



关于任命有限空问作业數界人的it知(示例)

为邊一步加强•公司有限空祠作业的安全普理,确保作业人Ia的生命安 金与褪康.根据《工贸企业有Bl空同作业安室规定》及相关法律法規要求, 经公司研究决定,特任备以下人员为有限空间作业的专取/兼职宣护人:

一、住当人员名单

姓年:_______

Jffi舟,岗位:__________

品*电话:______

任命类型:专裁/兼銀

(如有名名立蛇人,跑续列出)

二、暨护人取責

I.接受有限空同作业安全知识和应急处置能力培训,物悉并掌握有 唯空冋作业的安全操作规程和应急諛援技能.Sfe⅛⅛正确使用气体检謝仪. 机械通风一呼吸防妒用品.应急救援等用Ia装备.

2作业前员费解除物理備商措苑,对通风,检测和势变的隔断,清 餘.置换等风险皆控措施逐质处行检查,确认l⅛弁用品能结正當使用且作 业现场記备必要的应急救我■等.靖保接项作业条件济合安全要求.

3.作业中应全程览板,与作业人员保拌实时联络,不得离开作更现 场或者进入有限空何参与作业.

4、发现安全隐患或异常情况时,立即要求作业人员停止作业井傘宏 作业人员撤离现场.未做好安全措施盲目施救的.应当于KIH止.

5i己录作业过程中的安全情况.及时向安全管理部门报告.



未以任命书或责任书明确专兼职监护人且监护人不能熟练使用应急救援装备


以任命书或责任书形式明确专兼职监护人,监护人熟练使用应急救援装备


9


广东省工贸企业有限空间作业安全检查指引


(三)有限空间辨识与管理台账


检查内容


风险分析


1. 是否全面辨识本单位有限空间及其主要风险,是否建立有限空间安全管理台账,台账与有限空间现场情况是否一致,是否包括有 限空间数量、位置、危险因素和对应的作业审批人等信息,是否及时更新。

2. 企业是否根据《工贸企业有限空间重点监管目录》辨识存在硫化氢、一氧化碳、二氧化碳等中毒和窒息风险的有限空间,是否落实相关管理制 度。

未全面辨识本企业有限空间或台账中内容的缺失,可能导致部分漏辨识的有限空间出现管理缺漏,人员误入容易发生中毒和窒息事


故,盲目施救的情况。


检查依据


1. 《工贸企业有限空间作业安全规定》(应急管理部令第13号)第六条、第十六条;2. 《工贸企业有限空间重点监管目录》。


常见隐患照片


案例图片展示



序号"

所在区域"

有限空间名称 或编号U

主要危险

有害因素。

可能事

故后果U

防护要求U

作业主体P

审批人。

4-'

P

a

U

U

P

ɪ-1

P

J

J

P

+J

W


T贸企业行限空问重点监管11


一、冶金:行业

L工艺炉窑t使用燃气的均热炉、敢热炉、热风炉、加热炉、混铁炉、连接退火炉、常化 炉、干燥炉、回转窑、姿炉、烟气炉,

2候气相美设备设施:有人孔管道.候气柜.布段除尘器、电捕焦油器.电除尘黯.

3.情性气体相关设备设施:嫌.騎制各系统布袋收⅛r器,慎蔚仓:使用氨^⅛)气底吹的炼 相转伊、VD⅛⅛真空室.VDD炉真空室I炼铜L设置有氮fi气阀门的地下井t⅜)=

文公轴设备设施:燃气洗潜f冷凝)水处理池L井)、污水收票处理池(井.ST

二、有性行业


有限空间管理台账不完整,缺少有限空间具体位置等内容


根据《监管目录》建立完整的有限空间管理台账


10


广东省工贸企业有限空间作业安全检查指引


(四)有限空间作业审批


检查内容


风险分析


1. 企业审批制度是否根据有限空间作业安全风险大小,明确审批要求,其中对于存在硫化氢、一氧化碳、二氧化碳等中毒和窒息等风险的 有限空间作业,是否经主要负责人或者其书面委托的人员进行审批。

2. 有限空间作业是否留存审批记录,作业审批流程是否符合企业审批制度要求;审批表是否至少包括有限空间名称、作业单位名称、作业 内容、作业时间、可能存在的危险有害因素、作业相关人员、主要安全防护措施、作业负责人意见及签字项、审批责任人意见及签字项等内 容。

未经审批开展有限空间作业,高风险有限空间作业内容与相关安全防控措施不满足要求,容易发生中毒和窒息事故,盲目施救的情况。


检查依据


《工贸企业有限空间作业安全规定》(应急管理部令第13号)第七条。


常见隐患照片


案例图片展示



ITfll空附名件

柞业内容

作亜単(/厦门

W⅛⅛Λλ

口步人

作业人

*■作•人黄

计划卖*作业时间

年 月日 酎分華 军月 日 It

可能存在的

危輪有客因*

是否涉及发包作业

□a 口杳

Sfi*t⅛⅛W

发白単收的期æ督人

ft⅛Wtt*l!

l.e«#»SWHift«ffHSfftt. #«1ST#I»> SVIftSMiaMi. □

?.已*f定有RI交间件业■靛点為处置措及.□

3.*如本次件业人员已径过有黑空傍作业安全*调,井若檀合格.口

4作业单位部门己配・満足JItJR的安全防拧设备设施相应爺輙据设务设♦ □


现场■贡人审nt■总,□MJ9 口不世潛


要%             年  冃  日  时  分

1⅝.业*位审批贵任人車8«S^ CUM 口不鞋Jt

芳新              年  冃  日  时  分

黑瓦革位申批贵任人未飴*里 (普及发包作业的电电徴为口顧® □制tt»

警*              年  冃  日  时  分


在限空載作亜审批人授权委托书(承倒)

____IX⅛fei⅛⅛>

4有一 —(工费企业会称).国业芬需要及史金管理要求,帝 对存在硫化奮.L氧化礒;二氧化嗅乘中毒和女息等风险的有限空间作生审批 事宜,特委托以下人员代为行使审批职权:

-、委托*項

I呻批存在硫化氢、一氧化疾.二我佗破駕中才和里息等风陈的有限空间 作业计*k

.2,对作业风愈挑行全面评借,#作出是否抵確作业施决定.

3串督作业过程中的安全措Jfc执行惜此,输保作业安全进行.

二、被委非人信息

姓名:_______________________

^JR⅛: ______________________________

身份逝号4 ______________

«t索方式:______________________

三,»ft«m

被委托人具木在授权范围内代:本企业安号有限空间作业审批其件.作出 审批腐定等忍权.被委托大应产!連守国家强律法丸.行业标推及本企土的安 全管理制度,靖保申UL工作的含法.合⅛l.安全.

B.赛托期K

本委托书自一年—月—任起至一年—冃—B■止.如需在长金托辦 K.应重新办理表托手争•

五、*fi*


1.論委托人应认真履行,职责.确保串批工作的准确性和安全性.如因it委 托人破忽我放席行为导超审批不当或发生安全事假.被委托人戚承祖相戚的法 伊黃任.

2.本企业主要负责人对披娄托人的审敏:行为承担散缪责任.如因装委托人 审批不当导致安全事故,本企业主奨董贵人将依按侬M道克讓委托人的责住, 弁承担相应的法律责任.

六、其他*項

⅛⅝ftfi-⅛W⅛.本企业和談委托人各执一份,具育同等正律效力, 本委托卷未用事宜,由本企、业与被蜃托人协商解决.

手托人(工舅企业生黑丸贵人1蒙字:

日期: 年 月 日

徴美託人器字:

Qffi:    专•调   B


作业审批单模板化严重,审批流程不符合要求


作业审批单包含完整内容,主要负责人或其书面委托人对中毒和窒息等风险的有限空间作业进行审批


11


广东省工贸企业有限空间作业安全检查指引


(五)有限空间作业安全培训


1. 企业是否每年至少组织一次有限空间作业专题安全培训,培训对象是否覆盖齐全,培训内容是否系统、深入,培训后是否进行考核并如实

记录。作业审批人、监护人员、作业人员和应急救援人员等有限空间作业相关人员是否经培训考核合格后上岗作业。

检查内容

2. 培训内容建议包括有限空间作业安全相关法律法规和标准、有限空间作业事故案例、有限空间作业危险有害因素、有限空间作业安全管


理、有限空间作业安全操作规程、安全防护设备设施和应急救援设备设施的正确使用、紧急情况下的应急处置措施等。

风险分析 相关人员未经培训开展有限空间作业,对有限空间风险认知不足,容易发生中毒和窒息事故,盲目施救的情况。

检查依据 《工贸企业有限空间作业安全规定》(应急管理部令第13号)第九条。

常见隐患照片                            案例图片展示


佇联审制体∙*AMA *也从业KM的安生通眞


n旅金用电殛川M卜仙的员r坦甘强顏件安+堵牖.保証員1


H,本岗位安色lh(l, fj!⅛ FLfHX凌同W世宜所曲的IniHWSL后.


Λne⅛ιn |陶件业.


前六訴K他从亦入依,住1:得祖45須匿妙厂.乍剧CTSJ. 0


限口安全靖四代日.


公刊UJWIwUK KfTiIMiWJUfea业人GI遇疗安全牖IM.LiR


女备不出位支会It作.巨期代无尋口识顯技匯


砲匕a⅛公词新匕尚的从欠人m,悔前增呢时间市R少于24学时.j


串租IiH手公司班庵側版書∣∣∙r剧为40小肘.


现八第厂出由IiiJ安全卦四内容网当但指I


(-)本不位安全生产情况氏玄全生产星本如迅1


<二)本单位安全生产現尊制度和用动*e#i


(三)从业人昆安峪生产UlFJfliRJh



(秤)有关事故案例等.


培训内容不系统不深入


培训有限空间作业安全知识和技能


12


广东省工贸企业有限空间作业安全检查指引


(六)有限空间作业现场处置方案与演练


检查内容


风险分析


检查依据


1.是否编制有限空间作业现场处置方案,方案是否具有科学性、针对性和可操作性。

2.是否按规定至少每半年组织一次现场处置方案演练,并进行演练效果评估。

相关人员未能根据现场处置方案的流程进行作业、救援,容易发生中毒和窒息事故,出现盲目施救、伤亡扩大的情况。


1.《工贸企业有限空间作业安全规定》(应急管理部令第13号)第十条;2.《生产安全事故应急预案管理办法》第三十三条。


常见隐患照片


案例图片展示



MlkW⅛^4c*⅜k⅝vι

I λ w V w *tmπn «4« h**|B*中・电心> f HWW∙Mjr)1∙*.,>ff,l^


*Ψ**M MKvI


!VMIftftUft


C ⅝⅛).


aRm*!*∣∣!ι*Λ∏(fl. tM⅜a*.。■属, 厶"低 I^Ji∙"ακ^"∙}*∙ua*.


W∙itt⅛Λ


τ ffβ^ffl*⅜nw⅛⅛∙n*wι



有限空间作业事故现场处1η方案


«nc«n«+».2


AlQM«*泊宣*件,■并R"ιflW*∙MtH, UlΛαSIλ MV. ft*Aa*lfftHM8AXft. *RMRR, ■■■■ «*- a***∙aBw∙*ajFgt⅞sM.


⅞!KA*fte


nftλa⅜∙. Mt. in. *⅛. βtt. >m>. aa⅝MHa W


w*∏≡. RCMW.


血曰修*■人.M±V. *4ff*ΛaVH*ilM*M. UtV ass«.


⅞ OHtVSHMK. AItfMINt. λ^*Afl≡Bin4

? m. KWASKBBaaffiia. avamvaa. »■«

*人貝,

sπ *r F a KMHff Rn s⅞wr. κ**>*κxe,

4 SnKAaaHMaiMqvaioaiixfr.

iɔ ua. β⅜w≡eMff*⅜⅛<∕*∙tttt. mκ*ewifftβ ∙λ. «*«. z*>∙κβ<

:)Oi°M2nft^K- *inuftMa. WiSfifeMiAX. « ⅞M*tιa**ιι≡MnftviE(ul

3J ■*青H虫博作受釣安全改入,eRMAR*KflA- M. ν. r. IWiVkftnrifiMKTAMrAAi

41 fffl. «■ * a Q M BSNft *MC *⅛ΛXft. MKHH9fl t**i⅞ftl>*tw*.

ΛfflΛ*aeneι⅞ατ. ι∙ιt. l⅞axn±at*. ∙<3aκ* «**«. aa*taMAvawιιnaAVBM. «■&. SMAfRtfAMWQMn*.

61 HB≡βff**Λr∙BHi -X«Ei. Jl∙∙, BfT∙' IW R. xaAAM*«»i. ΛMn⅛Λ∏aλfitfiMif*.

n ■IR9EfT*CIE无筋3m殖匠工"作*e1110生*& ffi. n««&li«ttMBMAIt.

S作:UE&Jl作业人aι*mwιt,


"*K*ακλai)




未制定现场处置方案或模板化严重;应 急演练中正压式空气呼吸器佩戴不规范


制定符合企业实际操作性的现场处置方案,根据方案开展应急演练及演练效果评估(查找不足)


13


广东省工贸企业有限空间作业安全检查指引


(七)有限空间安全警示标志与风险告知牌


检查内容


风险分析


检查依据


1.是否在有限空间出入口等醒目位置设置明显的安全警示标志。

2.是否在具备条件的场所设置安全风险告知牌,设置尺寸、高度、位置是否合理,安全风险告知牌内容是否清晰可见。

3.安全风险告知牌是否包括有限空间名称、标号、责任人等重要内容,主要危险有害因素及安全防范措施是否符合有限空间情况,有毒有害 气体与爆炸性气体浓度限值是否有误。

现场安全警示标志缺失,致人员未经许可随意进入有限空间,易引发中毒窒息事故,且企业人员难以及时知晓危险并营救;同时,安全风险 告知牌缺失或内容模板化失指导意义,使人员无法及时了解有限空间危害及防控措施,不仅易引发中毒窒息事故,还会因未配应急装备救援 出现盲目施救、伤亡扩大的情况。

《工贸企业有限空间作业安全规定》(应急管理部令第13号)第十一条。2. GBZ 2.1-2019 工作场所有害因素职业接触限值 第1部分:化学 有害因素》第4.1条(附表化学品接触限值)。

常见隐患照片                            案例图片展示




J危险


有限空间 未经许可 禁止进入


有限空间出入口未设置安全警示标志


有限空间出入口设置明显的安全警示标志





安全风险告知牌设置尺寸过小,显示不清晰;告知牌缺少有限空


间基本内容


在明显位置设置尺寸合适的风险告知牌


14


广东省工贸企业有限空间作业安全检查指引


(八)有限空间物理隔离措施


检查内容


风险分析


1. 是否对可能产生有毒物质的有限空间采取上锁、隔离栏、防护网或者其他物理隔离措施。

2. 有限空间物理隔离措施是否有效。

3. 作业前,物理隔离措施仅能由监护人员解除,其他员工未经审批是否随意解除物理隔离措施。

未对有限空间进行物理隔离措施管理,无关人员未经审批可随意进入,容易发生中毒和窒息事故。


检查依据  《工贸企业有限空间作业安全规定》(应急管理部令第13号)第十二条。


常见隐患照片


案例图片展示





污水池未采取物理隔离措施


有限空间采取防护门上锁


有限空间采取防护栏杆及防护网


15


广东省工贸企业有限空间作业安全检查指引


(九)防护和应急装备配备与使用


气体检测报警仪器(1


检查内容

风险分析


是否配备与有限空间作业场所相适应的气体检测报警仪器,是否配备泵吸式气体检测报警仪。

未配备泵吸式气体检测报警仪,无法在有限空间外部检测气体环境,未经检测即进入作业,容易造成发生中毒和窒息事故。


检查依据 《工贸企业有限空间作业安全规定》(应急管理部令第13号)第十三条。


常见隐患照片


案例图片展示





仅配备单一扩散式气体检测仪


仅配备复合式扩散式气体检测仪


配备复合式泵吸式气体检测报警仪


16


广东省工贸企业有限空间作业安全检查指引


气体检测报警仪器(2


检查内容 配备的气体检测报警仪器是否进行经常性维护、保养和定期检测,是否能够正常使用。


风险分析 气体检测报警仪器不能正常使用,相关人员无法得知有限空间气体环境危险性大小,容易造成发生中毒和窒息事故。


1. 《工贸企业有限空间作业安全规定》(应急管理部令第13号)第十三条;2. GBZ 2.1-2019 工作场所有害因素职业接触限值 第1部分: 检查依据

化学有害因素》第4.1条(附表化学品接触限值)。


常见隐患照片



仪器未进行定期检测


气体探头异常


17


案例图片展示



仪器定期检测


广东省工贸企业有限空间作业安全检查指引


气体检测报警仪器(3


检查内容 配备的气体检测报警仪器是否正确设置高低报警值。


风险分析


气体检测报警仪器未正确设置高低报警值,缺少有效警示作用,人员无法得知有限空间气体环境危险性大小,容易造成发生中毒和窒息事 故。


检查依据


2. 《工贸企业有限空间作业安全规定》(应急管理部令第13号)第十三条;2. GBZ 2.1-2019 工作场所有害因素职业接触限值 第1部分: 化学有害因素》第4.1条(附表化学品接触限值)。


常见隐患照片


案例图片展示



l>对于有限空间四合一气体检测仪有毒有害气体、可燃气体低报值的设置,并没有阻确的痂定。从风险的 角度考虑,预警越早趣好。气体检测报警仪出厂设置的高低报警限值(一般排除氧气浓度限值),远超 有限空间作业安全要求的最高允许浓度限值。

>有限空间风险的特点

> 1、有限空间的有雷有害气体不是泄漏产生的,是本来就积聚存在的;


> 2、浓度值都很高,能快速导致事故;

A 3、发现的越早,越能及时反应和处置。


*有的四合一气体检测仪低报值设置为其可 设・的最小值


可以设■为O,有的最小只能设■为1,情 况不一


有限空间四合T体检滿R,仪低、离报设置值

气体名好

低报他

离报值

单位

可*;

0

10

%LEL

*■

冶.5

23.5

%

磴化融-

0«1

7

PPm

一限化碳

(MI

25

RDE


报警值设置错误


正确设置仪器的高低报警限值


18



广东省工贸企业有限空间作业安全检查指引


机械通风设备


1. 是否配备符合环境要求的机械通风设备,设备必备的配套附件(如风管)是否齐全,是否进行经常性维护、保养,是否能够正常使用。


检查内容 2. 作业现场是否满足机械通风设备的用电需求。


3. 存在爆炸风险有限空间的企业,配备的机械通风设备是否符合防爆安全要求。


风险分析 未严格遵守“先通风、再检测、后作业”,作业人员进入作业容易造成发生中毒和窒息事故。


检查依据  《工贸企业有限空间作业安全规定》(应急管理部令第13号)第十三条、第十四条。


常见隐患照片


案例图片展示




机械通风设备损坏


机械通风设备附件齐全


19


广东省工贸企业有限空间作业安全检查指引


呼吸防护用品


检查内容


1. 是否配备符合作业环境的呼吸防护用品,作业期间使用的过滤式防毒面具滤盒是否符合有限空间作业环境,是否能够过滤硫化氢或其他有 毒有害气体;

2. 是否配备应急救援使用的正压式空气呼吸器或者高压送风式长管呼吸器等隔绝式呼吸器,正压式空气呼吸器气瓶压力是否达到25MPa,是 否能够正常使用。


风险分析


未配备符合要求的呼吸防护用品,作业过程中或事故后救援相关人员呼吸防护未得到保障,容易造成发生中毒和窒息事故,增加救援难度。


检查依据 《工贸企业有限空间作业安全规定》(应急管理部令第13号)第十三条。


常见隐患照片


案例图片展示





滤盒不能过滤硫化氢等气体


气瓶压力不足25Mpa


配备正压式空气呼吸器、送风式长管呼吸器


20


广东省工贸企业有限空间作业安全检查指引


全身式安全带


检查内容


是否配备全身式安全带,安全带是否有损坏,是否能够正常使用。对于存在高处坠落风险的有限空间作业,是否配备了符合《坠落防护 安 全带》(GB 6095)的坠落悬挂式安全带。


风险分析


有限空间出入困难,未配备符合要求的安全带,待救援人员移动难度增加,大大降低救援效率,可能造成伤亡扩大的情况。


检查依据 《工贸企业有限空间作业安全规定》(应急管理部令第13号)第十三条。


常见隐患照片


案例图片展示




不得配备三点式安全带


21




配备全身式坠落悬挂型安全带


广东省工贸企业有限空间作业安全检查指引


(十)作业前安全交底与现场条件确认


检查内容


风险分析


1. 作业前,是否对作业人员进行安全交底,作业人员作业前是否掌握安全防护措施和应急处置措施,是否留有安全交底记录。

2. 相关人员是否严格遵守“先通风、再检测、后作业”的顺序要求进行作业。

3. 监护人员是否对通风、检测和必要的隔断、清除、置换等风险管控措施逐项进行检查,是否留存检查记录。

4. 是否确认作业人员防护用品正确佩戴情况,作业现场是否配备必要的应急救援装备,确保各项作业条件符合安全要求;对于有专业救援 队伍的工贸企业,应急救援人员是否做好应急救援准备,确保及时有效处置突发情况。

作业人员未经安全交底开展有限空间作业,对有限空间风险认知不足,作业前未采取安全防护措施,发生事故时缺少应急处置知识,极有 可能造成伤亡扩大的情况。


检查依据


《工贸企业有限空间作业安全规定》(应急管理部令第13号)第十四条。


常见隐患照片


案例图片展示




作业前未进行安全交底


作业前接受安全交底,按照“先通风、再检测、后作业”开展作业,检查各类风险管控措施


22


广东省工贸企业有限空间作业安全检查指引


(十一)监护与监测


监护人全程监护


检查内容 监护人员是否全程进行监护,是否与作业人员保持实时联络,是否离开作业现场或者进入有限空间参与作业。


风险分析 监护人员未能全程监护作业人员作业安全,出现异常情况未能及时通知撤离,发生事故时未能及时救治,导致人员伤亡扩大的事故后果。


检查依据


《工贸企业有限空间作业安全规定》(应急管理部令第13号)第十五条。


常见隐患照片


案例图片展示




企业未设置监护人员


监护人员全程在场监护


23


广东省工贸企业有限空间作业安全检查指引


持续通风与检测


1. 企业是否安排专人对作业区域持续进行通风和气体浓度检测,是否对气体浓度检测结果进行如实记录。

检查内容

2. 有限空间作业中断的,作业人员再次进入有限空间作业前,是否重新通风、进行气体检测,是否留存气体再次检测记录。


风险分析

未对作业区域持续进行通风,有限空间内气体浓度可能积累并高于合格浓度,未进行气体浓度检测,未能及时获取异常情况,容易发生中毒和窒息事故。

检查依据

《工贸企业有限空间作业安全规定》(应急管理部令第13号)第十五条。


常见隐患照片                            案例图片展示


KtSJI

C^个上一u

AAfi

雷气J 和浓度

一箕北.硯

其电杠图一 有書/律

砲潔用标

ι%sv~ 23.5⅛

<1$

t⅛

遇入附 怜泄我

ZMZ

ɪz



附录4有限空间作业气体检测记录表


作业 陰城

检测 位宣

^ 时间

検潮内容及畋惚

判定

薛化氧

一冠化王

&«/ 不合摄

~s-

M-H-

Oρpm□mj∙m∙

>ρra □α⅞,∏r'

∏pf<n Chtig u,

WF始气

体阳H

得次

检測

作业中

如恒

»


惟測人同 (筵字),       ____年____月.


未检测硫化氢、记录不规范


专人持续气体检测并记录,中断作业重新通风、检测


24